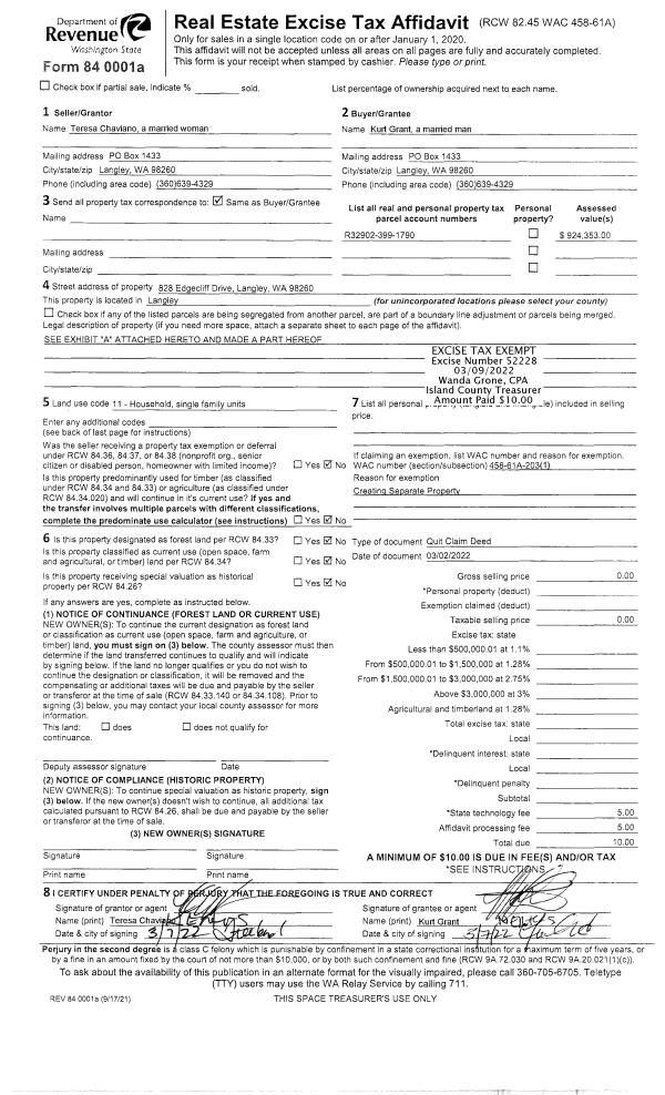
Property
Account |
| Property ID: | 148156 | Abbreviated Legal Description: | 10 - SE NE SW |
| Geographic ID: | R33014-163-2300 | Agent Code: | |
| Type: | Real | | |
| Tax Area: | 549 - APPRAISER-Stan/Cam Schl Dist, Special Dist, vacant & 50 acres or less | Land Use Code | 91 |
| Open Space: | N | DFL | N |
| Historic Property: | N | Remodel Property: | N |
| Multi-Family Redevelopment: | N | | |
| Township: | 30 | Section: | 14 |
| Range: | R3 |
Location |
| Address: | CAMANO ISLAND, WA 98282 | Mapsco: | |
| Neighborhood: | 58SofTamarackAC | Map ID: | 869 |
| Neighborhood CD: | 58RstamAC |
Owner |
| Name: | HACKETT, MATHEW E. | Owner ID: | 307515 |
| Mailing Address: | AMY R. HESSELTINE 26910 92ND AVE NW STE C-5 PMB 320 STANWOOD, WA 98292 | % Ownership: | 100.0000000000% |
| | | Exemptions: | |
Taxes and Assessment Details
Values
| (+) Improvement Homesite Value: | + | $0 | |
| (+) Improvement Non-Homesite Value: | + | $0 | |
| (+) Land Homesite Value: | + | $0 | |
| (+) Land Non-Homesite Value: | + | $250,000 | |
| (+) Curr Use (HS): | + | $0 | $0 |
| (+) Curr Use (NHS): | + | $0 | $0 |
| | | -------------------------- | |
| (=) Market Value: | = | $250,000 | |
| (–) Productivity Loss: | – | $0 | |
| | | -------------------------- | |
| (=) Subtotal: | = | $250,000 | |
| (+) Senior Appraised Value: | + | $0 | |
| (+) Non-Senior Appraised Value: | + | $250,000 | |
| | | -------------------------- | |
| (=) Total Appraised Value: | = | $250,000 | |
| (–) Senior Exemption Loss: | – | $0 | |
| (–) Exemption Loss: | – | $0 | |
| | | -------------------------- | |
| (=) Taxable Value: | = | $250,000 | |
Taxing Jurisdiction
| Owner: | HACKETT, MATHEW E. | | |
| % Ownership: | 100.0000000000% | | |
| Total Value: | $250,000 | | |
| Tax Area: | 549 - APPRAISER-Stan/Cam Schl Dist, Special Dist, vacant & 50 acres or less |
| CF | Conservation Futures | 0.0316035091 | $250,000 | $250,000 | $7.90 | | |
| EMS1 | Fire & Rescue Dist #1 Camano GEN (EMS) | 0.3677864386 | $250,000 | $250,000 | $91.95 | | |
| CE | County Current Expense | 0.3708482477 | $250,000 | $250,000 | $92.71 | | |
| CR | County Roads | 0.4584763726 | $250,000 | $250,000 | $114.62 | | |
| LCIB | Library Sno-Isle BOND (Camano Island) | 0.0396325772 | $250,000 | $250,000 | $9.91 | | |
| LIB | Library Sno-Isle GEN | 0.3153421757 | $250,000 | $250,000 | $78.84 | | |
| SCH205_401 | School 205-401 Enrichment | 1.2698420524 | $250,000 | $250,000 | $317.46 | | |
| SCH205BOND | School 205-401 BOND | 0.9396497583 | $250,000 | $250,000 | $234.91 | | |
| ST | State School | 1.3035497053 | $250,000 | $250,000 | $325.89 | | |
| ST2 | State School Part 2 | 0.8169543533 | $250,000 | $250,000 | $204.24 | | |
| | Total Tax Rate: | 5.9136851902 | | | | | |
| | | | | Taxes w/Current Exemptions: | $1,478.43 | | |
| | | | | Taxes w/o Exemptions: | $1,478.43 | | |
Improvement / Building
Sketch
| No sketches available for this property. |
Property Image
Land
| 1 | 35 | AC (10.00-30.99) | 10.0000 | 435600.00 | 0.00 | 0.00 | 1.00 | $250,000 | $0 |
Roll Value History
| 2026 | N/A | N/A | N/A | N/A | N/A |
| 2025 | $0 | $250,000 | $0 | $250,000 | $250,000 |
| 2024 | $0 | $240,000 | $0 | $240,000 | $240,000 |
| 2023 | $0 | $230,000 | $0 | $230,000 | $230,000 |
| 2022 | $0 | $230,000 | $0 | $230,000 | $230,000 |
| 2021 | $0 | $150,000 | $1,296 | $16,296 | $16,296 |
| 2020 | $0 | $125,000 | $1,296 | $13,796 | $13,796 |
| 2019 | $0 | $125,000 | $1,251 | $13,751 | $13,751 |
| 2018 | $0 | $105,000 | $1,233 | $11,733 | $11,733 |
| 2017 | $0 | $100,000 | $1,233 | $11,233 | $11,233 |
| 2016 | $0 | $80,000 | $1,321 | $9,321 | $9,321 |
| 2015 | $0 | $80,000 | $1,321 | $9,321 | $9,321 |
| 2014 | $0 | $80,000 | $1,321 | $9,321 | $9,321 |
| 2013 | $0 | $60,000 | $1,321 | $7,321 | $7,321 |
| 2012 | $0 | $80,000 | $1,321 | $9,321 | $9,321 |
| 2011 | $0 | $80,000 | $1,539 | $9,539 | $9,539 |
| 2010 | $0 | $80,000 | $1,539 | $9,539 | $9,539 |
| 2009 | $0 | $160,000 | $0 | $160,000 | $160,000 |
| 2008 | $0 | $154,800 | $0 | $154,800 | $154,800 |
| 2007 | $0 | $155,000 | $0 | $155,000 | $155,000 |
Deed and Sales History
| 1 | 10/07/2022 | WD | Warranty Deed | TI FOLTZ AS TRUSTEE | HACKETT, MATHEW E. | | | $239,900.00 | 54869 | 4552599 |
| 2 | 06/03/1998 | WD | Warranty Deed | GULCROUX, STERLING L | TI FOLTZ AS TRUSTEE, | | | $38,000.00 | 82225 | 98011563 |
| 3 | 03/01/1997 | WD | Warranty Deed | COUMBE, ARTHUR E | GULCROUX, STERLING L | | | $46,000.00 | 70972 | 97004419 |
| 4 | 01/01/1900 | OTHER | Other - Misc. Documents | Unknown | TAMARACK, TRUST | | | $0.00 | 82225 | 98011563 |
| 5 | 01/01/1900 | OTHER | Other - Misc. Documents | TAMARACK, TRUST | COUMBE, ARTHUR E | | | $0.00 | 0 | 0 |
Payout Agreement
| No payout information available.. |