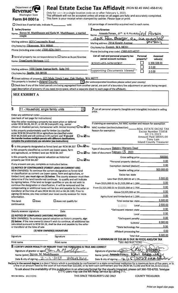
Property
Account |
| Property ID: | 148209 | Abbreviated Legal Description: | 72 - BG SECR SEC 14 N1*W243 .87' TO ELN E CAMANO DR N33*W1590.29' TPB N33*W77 .50' N65*E810'M/L TO HITDLN SELY 130' M/L TP N69*E FR TPB S69*W790' TPB INCL ADJ TIDES |
| Geographic ID: | R33014-177-4860 | Agent Code: | |
| Type: | Real | | |
| Tax Area: | 542 - APPRAISER-Stan/Cam Schl Dist, Special Dist, improved, greater than 1 acre | Land Use Code | 11 |
| Open Space: | N | DFL | N |
| Historic Property: | N | Remodel Property: | N |
| Multi-Family Redevelopment: | N | | |
| Township: | 30 | Section: | 14 |
| Range: | R3 |
Location |
| Address: | 3475 S EAST CAMANO DR CAMANO ISLAND, WA 98282 | Mapsco: | |
| Neighborhood: | 58RecamWF-East Cam | Map ID: | 870 |
| Neighborhood CD: | 58RecamWF |
Owner |
| Name: | RINGEN, JOHN HERBERT | Owner ID: | 59681 |
| Mailing Address: | VICKY LEE RINGEN 3475 S EAST CAMANO DR CAMANO ISLAND, WA 98282-8294 | % Ownership: | 100.0000000000% |
| | | Exemptions: | |
Taxes and Assessment Details
Values
| (+) Improvement Homesite Value: | + | $0 | |
| (+) Improvement Non-Homesite Value: | + | $1,045,640 | |
| (+) Land Homesite Value: | + | $0 | |
| (+) Land Non-Homesite Value: | + | $551,300 | |
| (+) Curr Use (HS): | + | $0 | $0 |
| (+) Curr Use (NHS): | + | $0 | $0 |
| | | -------------------------- | |
| (=) Market Value: | = | $1,596,940 | |
| (–) Productivity Loss: | – | $0 | |
| | | -------------------------- | |
| (=) Subtotal: | = | $1,596,940 | |
| (+) Senior Appraised Value: | + | $0 | |
| (+) Non-Senior Appraised Value: | + | $1,596,940 | |
| | | -------------------------- | |
| (=) Total Appraised Value: | = | $1,596,940 | |
| (–) Senior Exemption Loss: | – | $0 | |
| (–) Exemption Loss: | – | $0 | |
| | | -------------------------- | |
| (=) Taxable Value: | = | $1,596,940 | |
Taxing Jurisdiction
| Owner: | RINGEN, JOHN HERBERT | | |
| % Ownership: | 100.0000000000% | | |
| Total Value: | $1,596,940 | | |
| Tax Area: | 542 - APPRAISER-Stan/Cam Schl Dist, Special Dist, improved, greater than 1 acre |
| CF | Conservation Futures | 0.0316035091 | $1,596,940 | $1,596,940 | $50.47 | | |
| EMS1 | Fire & Rescue Dist #1 Camano GEN (EMS) | 0.3677864386 | $1,596,940 | $1,596,940 | $587.33 | | |
| FIRE1 | Fire & Rescue Dist #1 Camano GEN | 1.2502910536 | $1,596,940 | $1,596,940 | $1,996.64 | | |
| FIRE1BOND | Fire & Rescue Dist #1 Camano BOND | 0.1570001679 | $1,596,940 | $1,596,940 | $250.72 | | |
| CE | County Current Expense | 0.3708482477 | $1,596,940 | $1,596,940 | $592.22 | | |
| CR | County Roads | 0.4584763726 | $1,596,940 | $1,596,940 | $732.16 | | |
| LCIB | Library Sno-Isle BOND (Camano Island) | 0.0396325772 | $1,596,940 | $1,596,940 | $63.29 | | |
| LIB | Library Sno-Isle GEN | 0.3153421757 | $1,596,940 | $1,596,940 | $503.58 | | |
| SCH205_401 | School 205-401 Enrichment | 1.2698420524 | $1,596,940 | $1,596,940 | $2,027.86 | | |
| SCH205BOND | School 205-401 BOND | 0.9396497583 | $1,596,940 | $1,596,940 | $1,500.56 | | |
| ST | State School | 1.3035497053 | $1,596,940 | $1,596,940 | $2,081.69 | | |
| ST2 | State School Part 2 | 0.8169543533 | $1,596,940 | $1,596,940 | $1,304.63 | | |
| | Total Tax Rate: | 7.3209764117 | | | | | |
| | | | | Taxes w/Current Exemptions: | $11,691.15 | | |
| | | | | Taxes w/o Exemptions: | $11,691.15 | | |
Improvement / Building
| Improvement #1: | RESIDENTIAL | State Code: | Y | 2017.0 sqft | Value: | $334,568 |
| Bathrooms: | 2 | Bedrooms: | 1 | | Ceiling: | DRYWALL PAINTED | Exterior Wall/Cover: | WOOD SIDING | | Floor Covering: | TILE CERAMIC | Floor Structure: | SLAB ABOVE GRADE | | Foundation: | SLAB/CONCRETE | Heating: | WALL HEAT ELECTRIC | | Interior Finish: | DRYWALL PAINT | Plumbing Fixture Cnt: | 5 | | Roof Slope: | 6" IN 12" | Roof Structure/Cover: | BEAM ASPHALT |
|
| | Type | Description | Class CD | Sub Class CD | Year Built | Area |
| | BAS | BASE/MAIN FLOOR | 3 | 0 | 1997 | 897.0 |
| | OP4 | OPEN PORCH W/CEILING-ROOF | 3 | 0 | 1997 | 30.0 |
| | AGR | ATTACHED GARAGE | 3 | 0 | 1997 | 648.0 |
| | OWP | OPEN WOOD PORCH W/STEPS | 3 | 0 | 1997 | 200.0 |
| | DWN | DOWNSTAIRS LIVING AREA | 3 | 0 | 1997 | 1120.0 |
| Improvement #2: | RESIDENTIAL | State Code: | Y | 5002.3 sqft | Value: | $711,072 |
| Bathrooms: | 3 | Bedrooms: | 4 | | Ceiling: | DRYWALL PAINTED | Exterior Wall/Cover: | WOOD SIDING | | Floor Covering: | HARDWOOD/CARP 20-80 | Floor Structure: | WOOD W/SUBFLOOR | | Foundation: | CONCRETE | Heating: | FHA GAS | | Interior Finish: | DRYWALL PAINT | Plumbing Fixture Cnt: | 12 | | Roof Slope: | 12" IN 12" | Roof Structure/Cover: | CJ ASPHALT |
|
| | Type | Description | Class CD | Sub Class CD | Year Built | Area |
| | BAS | BASE/MAIN FLOOR | 5 | 0 | 2002 | 2501.8 |
| | OP1 | OPEN PORCH SLAB | 5 | 0 | 2002 | 106.5 |
| | OWP | OPEN WOOD PORCH W/STEPS | 5 | 0 | 2002 | 527.5 |
| | OWP | OPEN WOOD PORCH W/STEPS | 5 | 0 | 2002 | 26.0 |
| | OWC | OPEN WOOD PORCH W/STEPS/ROOF/C | 5 | 0 | 2002 | 192.5 |
| | DWN | DOWNSTAIRS LIVING AREA | 5 | 0 | 2002 | 2500.5 |
Sketch
| No sketches available for this property. |
Property Image
Land
| 1 | 55 | TIDES | 0.0000 | 0.00 | 130.00 | 0.00 | 1.00 | $1,300 | $0 |
| 2 | HB | HIGH BLUFF | 1.6700 | 72745.20 | 130.00 | 0.00 | 1.00 | $550,000 | $0 |
Roll Value History
| 2026 | N/A | N/A | N/A | N/A | N/A |
| 2025 | $1,045,640 | $551,300 | $0 | $1,596,940 | $1,596,940 |
| 2024 | $1,058,301 | $526,300 | $0 | $1,584,601 | $1,584,601 |
| 2023 | $1,070,959 | $526,300 | $0 | $1,597,259 | $1,597,259 |
| 2022 | $981,255 | $476,300 | $0 | $1,457,555 | $1,457,555 |
| 2021 | $835,891 | $276,300 | $0 | $1,112,191 | $1,112,191 |
| 2020 | $817,451 | $251,300 | $0 | $1,068,751 | $1,068,751 |
| 2019 | $669,994 | $301,300 | $0 | $971,294 | $971,294 |
| 2018 | $671,972 | $251,300 | $0 | $923,272 | $923,272 |
| 2017 | $675,930 | $221,300 | $0 | $897,230 | $897,230 |
| 2016 | $683,848 | $221,300 | $0 | $905,148 | $905,148 |
| 2015 | $613,122 | $201,300 | $0 | $814,422 | $814,422 |
| 2014 | $620,120 | $201,300 | $0 | $821,420 | $821,420 |
| 2013 | $621,314 | $208,525 | $0 | $829,839 | $829,839 |
| 2012 | $628,311 | $225,502 | $0 | $853,813 | $853,813 |
| 2011 | $635,309 | $281,552 | $0 | $916,861 | $916,861 |
| 2010 | $682,092 | $311,691 | $0 | $993,783 | $993,783 |
| 2009 | $705,762 | $335,187 | $0 | $1,040,949 | $1,040,949 |
| 2008 | $714,398 | $335,187 | $0 | $1,049,585 | $1,049,585 |
| 2007 | $728,298 | $334,277 | $0 | $1,062,575 | $1,062,575 |
Deed and Sales History
| 1 | 11/17/2008 | WD | Warranty Deed | WEICHERT RELOCATION RESOURCES | RINGEN, JOHN HERBERT | | | $900,000.00 | 83098 | 4241049 |
| 2 | 06/30/2006 | WD | Warranty Deed | WEEDE, GARY | WEICHERT RELOCATION RESOURCES | | | $1,317,500.00 | 71001 | 4197777 |
| 3 | 11/10/2004 | WD | Warranty Deed | EDMUNDS, ROBERT/SILVIA P | WEEDE, GARY | | | $685,000.00 | 45561 | 4119284 |
| 4 | 10/01/1994 | WD | Warranty Deed | COE, ROBERT C | EDMUNDS, ROBERT/SILVIA P | | | $95,000.00 | 44315 | 94022212 |
| 5 | 10/01/1988 | WD | Warranty Deed | MACLEOD, JOHN B | COE, ROBERT C | | | $40,000.00 | 83521 | 88013114 |
| 6 | 09/01/1981 | TRUSTEED | Trustee's Deed | CLEVELAND, ROBERT E | MACLEOD, JOHN B | | | $42,500.00 | 13253 | 389127 |
| 7 | 01/01/1900 | OTHER | Other - Misc. Documents | Unknown | CLEVELAND, ROBERT E | | | $0.00 | 0 | 0 |
Payout Agreement
| No payout information available.. |