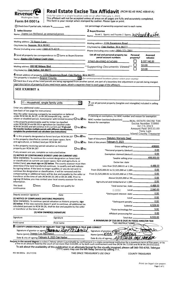
Property
Account |
| Property ID: | 148281 | Abbreviated Legal Description: | 76 - BG SECR SEC 14 N1*W243 .87' TO ELN E CAMANO DR N33*W ALG SD RD 1700.27' ALG CUR/L 202.16' TPB CONT ALG CUR/L 12.55' N53*W57.46 N47*E ALG LN PAR/W & 658.72 SELY FR SELY LN OF TYEE BCH #2 930' M/L TO HITDLN SELY ALG SD HITDLN 160' M/L TP N53*E FR TPB S |
| Geographic ID: | R33014-218-4630 | Agent Code: | |
| Type: | Real | | |
| Tax Area: | 542 - APPRAISER-Stan/Cam Schl Dist, Special Dist, improved, greater than 1 acre | Land Use Code | 11 |
| Open Space: | N | DFL | N |
| Historic Property: | N | Remodel Property: | N |
| Multi-Family Redevelopment: | N | | |
| Township: | 30 | Section: | 14 |
| Range: | R3 |
Location |
| Address: | 3447 S EAST CAMANO DR CAMANO ISLAND, WA 98282 | Mapsco: | |
| Neighborhood: | 58RecamWF-East Cam | Map ID: | 870 |
| Neighborhood CD: | 58RecamWF |
Owner |
| Name: | STRATTON, MARK D | Owner ID: | 286042 |
| Mailing Address: | NANCY M STRATTON 5005 200TH ST SE BOTHELL, WA 98012 | % Ownership: | 100.0000000000% |
| | | Exemptions: | |
Taxes and Assessment Details
Values
| (+) Improvement Homesite Value: | + | $0 | |
| (+) Improvement Non-Homesite Value: | + | $4,000 | |
| (+) Land Homesite Value: | + | $0 | |
| (+) Land Non-Homesite Value: | + | $301,600 | |
| (+) Curr Use (HS): | + | $0 | $0 |
| (+) Curr Use (NHS): | + | $0 | $0 |
| | | -------------------------- | |
| (=) Market Value: | = | $305,600 | |
| (–) Productivity Loss: | – | $0 | |
| | | -------------------------- | |
| (=) Subtotal: | = | $305,600 | |
| (+) Senior Appraised Value: | + | $0 | |
| (+) Non-Senior Appraised Value: | + | $305,600 | |
| | | -------------------------- | |
| (=) Total Appraised Value: | = | $305,600 | |
| (–) Senior Exemption Loss: | – | $0 | |
| (–) Exemption Loss: | – | $0 | |
| | | -------------------------- | |
| (=) Taxable Value: | = | $305,600 | |
Taxing Jurisdiction
| Owner: | STRATTON, MARK D | | |
| % Ownership: | 100.0000000000% | | |
| Total Value: | $305,600 | | |
| Tax Area: | 542 - APPRAISER-Stan/Cam Schl Dist, Special Dist, improved, greater than 1 acre |
| CF | Conservation Futures | 0.0316035091 | $305,600 | $305,600 | $9.66 | | |
| EMS1 | Fire & Rescue Dist #1 Camano GEN (EMS) | 0.3677864386 | $305,600 | $305,600 | $112.40 | | |
| FIRE1 | Fire & Rescue Dist #1 Camano GEN | 1.2502910536 | $305,600 | $305,600 | $382.09 | | |
| FIRE1BOND | Fire & Rescue Dist #1 Camano BOND | 0.1570001679 | $305,600 | $305,600 | $47.98 | | |
| CE | County Current Expense | 0.3708482477 | $305,600 | $305,600 | $113.33 | | |
| CR | County Roads | 0.4584763726 | $305,600 | $305,600 | $140.11 | | |
| LCIB | Library Sno-Isle BOND (Camano Island) | 0.0396325772 | $305,600 | $305,600 | $12.11 | | |
| LIB | Library Sno-Isle GEN | 0.3153421757 | $305,600 | $305,600 | $96.37 | | |
| SCH205_401 | School 205-401 Enrichment | 1.2698420524 | $305,600 | $305,600 | $388.06 | | |
| SCH205BOND | School 205-401 BOND | 0.9396497583 | $305,600 | $305,600 | $287.16 | | |
| ST | State School | 1.3035497053 | $305,600 | $305,600 | $398.36 | | |
| ST2 | State School Part 2 | 0.8169543533 | $305,600 | $305,600 | $249.66 | | |
| | Total Tax Rate: | 7.3209764117 | | | | | |
| | | | | Taxes w/Current Exemptions: | $2,237.29 | | |
| | | | | Taxes w/o Exemptions: | $2,237.29 | | |
Improvement / Building
| Improvement #1: | RESIDENTIAL | State Code: | Y | 0.0 sqft | Value: | $4,000 |
Sketch
| No sketches available for this property. |
Property Image
Land
| 1 | HB | HIGH BLUFF | 1.6700 | 72745.20 | 160.00 | 0.00 | 1.00 | $300,000 | $0 |
| 2 | 55 | TIDES | 0.0000 | 0.00 | 160.00 | 0.00 | 1.00 | $1,600 | $0 |
Roll Value History
| 2026 | N/A | N/A | N/A | N/A | N/A |
| 2025 | $4,000 | $301,600 | $0 | $305,600 | $305,600 |
| 2024 | $4,000 | $276,600 | $0 | $280,600 | $280,600 |
| 2023 | $4,000 | $276,600 | $0 | $280,600 | $280,600 |
| 2022 | $4,000 | $251,600 | $0 | $255,600 | $255,600 |
| 2021 | $4,000 | $176,600 | $0 | $180,600 | $180,600 |
| 2020 | $4,000 | $151,600 | $0 | $155,600 | $155,600 |
| 2019 | $4,000 | $151,600 | $0 | $155,600 | $155,600 |
| 2018 | $4,000 | $151,600 | $0 | $155,600 | $155,600 |
| 2017 | $4,000 | $151,600 | $0 | $155,600 | $155,600 |
| 2016 | $4,000 | $151,600 | $0 | $155,600 | $155,600 |
| 2015 | $4,000 | $251,600 | $0 | $255,600 | $255,600 |
| 2014 | $4,000 | $251,600 | $0 | $255,600 | $255,600 |
| 2013 | $4,000 | $210,429 | $0 | $214,429 | $214,429 |
| 2012 | $4,000 | $210,429 | $0 | $214,429 | $214,429 |
| 2011 | $4,000 | $262,636 | $0 | $266,636 | $266,636 |
| 2010 | $4,000 | $291,640 | $0 | $295,640 | $295,640 |
| 2009 | $4,000 | $313,595 | $0 | $317,595 | $317,595 |
| 2008 | $4,000 | $303,554 | $0 | $307,554 | $307,554 |
| 2007 | $4,000 | $302,434 | $0 | $306,434 | $306,434 |
Deed and Sales History
| 1 | 07/16/2018 | WD | Warranty Deed | FAY, WILLIAM F / JODY BETH | STRATTON, MARK D | | | $229,100.00 | 35037 | 4448154 |
| 2 | 10/01/1996 | WD | Warranty Deed | PERRY, JANICE K | FAY, WILLIAM F | | | $113,000.00 | 63992 | 96019408 |
| 3 | 04/01/1992 | DECREE | Divorce Decree/Legal Separation | PERRY, RALPH C | PERRY, JANICE K | | | $0.00 | 64764 | 0 |
| 4 | 08/01/1988 | WD | Warranty Deed | JONES, ORAN N | PERRY, RALPH C | | | $50,000.00 | 82692 | 88010133 |
| 5 | 05/01/1987 | WD | Warranty Deed | BROWN, ALBERT L | JONES, ORAN N | | | $45,000.00 | 71506 | 87007165 |
| 6 | 05/01/1985 | WD | Warranty Deed | WENS, JEAN A | BROWN, ALBERT L | | | $39,000.00 | 51306 | 85005349 |
| 7 | 09/01/1979 | EXECUTORD | Executor Deed | DUNEDIN, INDUSTRIES L | WENS, JEAN A | | | $55,000.00 | 94658 | 359092 |
| 8 | 10/01/1978 | OTHER | Other - Misc. Documents | Unknown | DUNEDIN, INDUSTRIES L | | | $24,500.00 | 856070 | 3431370 |
Payout Agreement
| No payout information available.. |