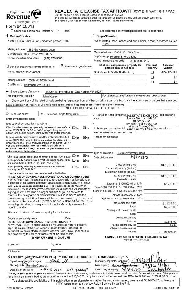
Property
Account |
| Property ID: | 148423 | Abbreviated Legal Description: | 63 - SE SE SW NW SUBJ TO EASM OVER W30' &0S 15' |
| Geographic ID: | R33014-281-1160 | Agent Code: | |
| Type: | Real | | |
| Tax Area: | 549 - APPRAISER-Stan/Cam Schl Dist, Special Dist, vacant & 50 acres or less | Land Use Code | 91 |
| Open Space: | N | DFL | N |
| Historic Property: | N | Remodel Property: | N |
| Multi-Family Redevelopment: | N | | |
| Township: | 30 | Section: | 14 |
| Range: | R3 |
Location |
| Address: | CAMANO ISLAND, WA 98282 | Mapsco: | |
| Neighborhood: | 58NofTamarackS | Map ID: | 871 |
| Neighborhood CD: | 58RntamS |
Owner |
| Name: | BARCHAM, JOSEPH | Owner ID: | 296711 |
| Mailing Address: | LISI STADLER 407 DEEPWOOD DR GEORGETOWN, TX 78628 | % Ownership: | 100.0000000000% |
| | | Exemptions: | |
Taxes and Assessment Details
Values
| (+) Improvement Homesite Value: | + | $0 | |
| (+) Improvement Non-Homesite Value: | + | $0 | |
| (+) Land Homesite Value: | + | $0 | |
| (+) Land Non-Homesite Value: | + | $160,000 | |
| (+) Curr Use (HS): | + | $0 | $0 |
| (+) Curr Use (NHS): | + | $0 | $0 |
| | | -------------------------- | |
| (=) Market Value: | = | $160,000 | |
| (–) Productivity Loss: | – | $0 | |
| | | -------------------------- | |
| (=) Subtotal: | = | $160,000 | |
| (+) Senior Appraised Value: | + | $0 | |
| (+) Non-Senior Appraised Value: | + | $160,000 | |
| | | -------------------------- | |
| (=) Total Appraised Value: | = | $160,000 | |
| (–) Senior Exemption Loss: | – | $0 | |
| (–) Exemption Loss: | – | $0 | |
| | | -------------------------- | |
| (=) Taxable Value: | = | $160,000 | |
Taxing Jurisdiction
| Owner: | BARCHAM, JOSEPH | | |
| % Ownership: | 100.0000000000% | | |
| Total Value: | $160,000 | | |
| Tax Area: | 549 - APPRAISER-Stan/Cam Schl Dist, Special Dist, vacant & 50 acres or less |
| CF | Conservation Futures | 0.0316035091 | $160,000 | $160,000 | $5.06 | | |
| EMS1 | Fire & Rescue Dist #1 Camano GEN (EMS) | 0.3677864386 | $160,000 | $160,000 | $58.85 | | |
| CE | County Current Expense | 0.3708482477 | $160,000 | $160,000 | $59.34 | | |
| CR | County Roads | 0.4584763726 | $160,000 | $160,000 | $73.36 | | |
| LCIB | Library Sno-Isle BOND (Camano Island) | 0.0396325772 | $160,000 | $160,000 | $6.34 | | |
| LIB | Library Sno-Isle GEN | 0.3153421757 | $160,000 | $160,000 | $50.45 | | |
| SCH205_401 | School 205-401 Enrichment | 1.2698420524 | $160,000 | $160,000 | $203.17 | | |
| SCH205BOND | School 205-401 BOND | 0.9396497583 | $160,000 | $160,000 | $150.34 | | |
| ST | State School | 1.3035497053 | $160,000 | $160,000 | $208.57 | | |
| ST2 | State School Part 2 | 0.8169543533 | $160,000 | $160,000 | $130.71 | | |
| | Total Tax Rate: | 5.9136851902 | | | | | |
| | | | | Taxes w/Current Exemptions: | $946.19 | | |
| | | | | Taxes w/o Exemptions: | $946.19 | | |
Improvement / Building
Sketch
| No sketches available for this property. |
Property Image
Land
| 1 | 18 | AC (02.01-03.00) | 2.5000 | 108900.00 | 0.00 | 0.00 | 1.00 | $160,000 | $0 |
Roll Value History
| 2026 | N/A | N/A | N/A | N/A | N/A |
| 2025 | $0 | $160,000 | $0 | $160,000 | $160,000 |
| 2024 | $0 | $140,000 | $0 | $140,000 | $140,000 |
| 2023 | $0 | $130,000 | $0 | $130,000 | $130,000 |
| 2022 | $0 | $90,000 | $0 | $90,000 | $90,000 |
| 2021 | $0 | $80,000 | $0 | $80,000 | $80,000 |
| 2020 | $0 | $75,000 | $0 | $75,000 | $75,000 |
| 2019 | $0 | $70,000 | $0 | $70,000 | $70,000 |
| 2018 | $0 | $65,000 | $0 | $65,000 | $65,000 |
| 2017 | $0 | $65,000 | $0 | $65,000 | $65,000 |
| 2016 | $0 | $50,000 | $0 | $50,000 | $50,000 |
| 2015 | $0 | $40,000 | $0 | $40,000 | $40,000 |
| 2014 | $0 | $40,000 | $0 | $40,000 | $40,000 |
| 2013 | $0 | $40,000 | $0 | $40,000 | $40,000 |
| 2012 | $0 | $55,800 | $0 | $55,800 | $55,800 |
| 2011 | $0 | $55,800 | $0 | $55,800 | $55,800 |
| 2010 | $0 | $55,800 | $0 | $55,800 | $55,800 |
| 2009 | $0 | $98,400 | $0 | $98,400 | $98,400 |
| 2008 | $0 | $71,280 | $0 | $71,280 | $71,280 |
| 2007 | $0 | $75,000 | $0 | $75,000 | $75,000 |
Deed and Sales History
| 1 | 11/05/2020 | WD | Warranty Deed | FUNNELL, WARREN B | BARCHAM, JOSEPH | | | $83,000.00 | 45720 | 4502492 |
Payout Agreement
| No payout information available.. |