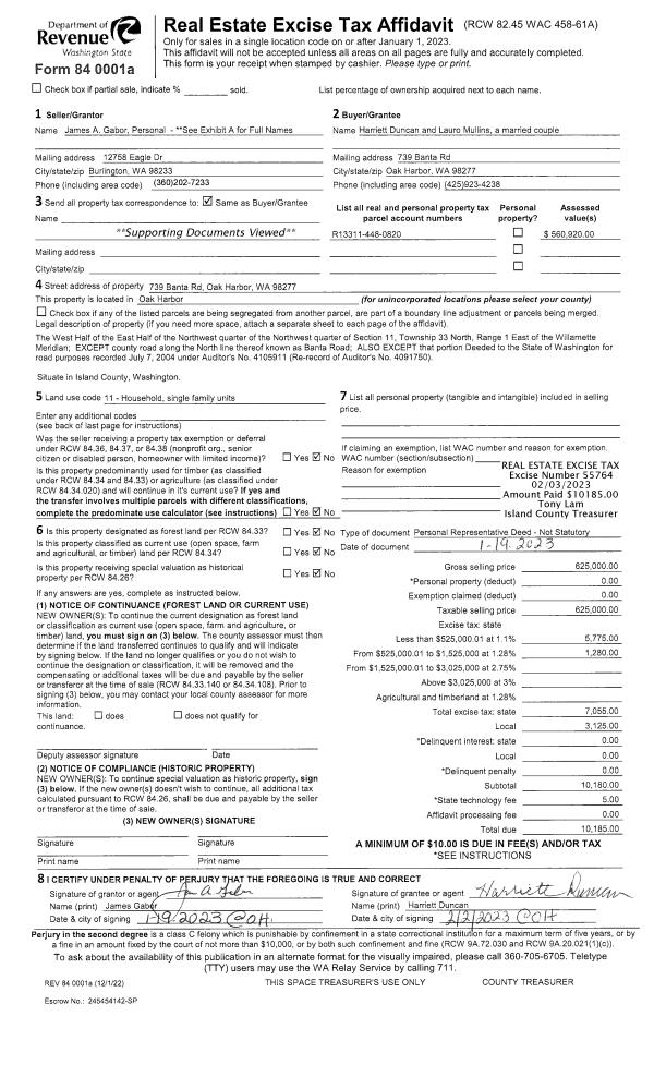
Property
Account |
| Property ID: | 148478 | Abbreviated Legal Description: | 61 - NW SE SW NW SUBJ TO EASM OVER N30' & E 30' |
| Geographic ID: | R33014-313-0830 | Agent Code: | |
| Type: | Real | | |
| Tax Area: | 542 - APPRAISER-Stan/Cam Schl Dist, Special Dist, improved, greater than 1 acre | Land Use Code | 11 |
| Open Space: | N | DFL | N |
| Historic Property: | N | Remodel Property: | N |
| Multi-Family Redevelopment: | N | | |
| Township: | 30 | Section: | 14 |
| Range: | R3 |
Location |
| Address: | 1644 SWORDFERN LN CAMANO ISLAND, WA 98282 | Mapsco: | |
| Neighborhood: | 58NofTamarackS | Map ID: | 871 |
| Neighborhood CD: | 58RntamS |
Owner |
| Name: | KOLEDIN, JACQUELINE M | Owner ID: | 305788 |
| Mailing Address: | BRANISLAV KOLEDIN 8715 23RD AVE NW SEATTLE, WA 98117 | % Ownership: | 100.0000000000% |
| | | Exemptions: | |
Taxes and Assessment Details
Values
| (+) Improvement Homesite Value: | + | $0 | |
| (+) Improvement Non-Homesite Value: | + | $285,595 | |
| (+) Land Homesite Value: | + | $0 | |
| (+) Land Non-Homesite Value: | + | $270,000 | |
| (+) Curr Use (HS): | + | $0 | $0 |
| (+) Curr Use (NHS): | + | $0 | $0 |
| | | -------------------------- | |
| (=) Market Value: | = | $555,595 | |
| (–) Productivity Loss: | – | $0 | |
| | | -------------------------- | |
| (=) Subtotal: | = | $555,595 | |
| (+) Senior Appraised Value: | + | $0 | |
| (+) Non-Senior Appraised Value: | + | $555,595 | |
| | | -------------------------- | |
| (=) Total Appraised Value: | = | $555,595 | |
| (–) Senior Exemption Loss: | – | $0 | |
| (–) Exemption Loss: | – | $0 | |
| | | -------------------------- | |
| (=) Taxable Value: | = | $555,595 | |
Taxing Jurisdiction
| Owner: | KOLEDIN, JACQUELINE M | | |
| % Ownership: | 100.0000000000% | | |
| Total Value: | $555,595 | | |
| Tax Area: | 542 - APPRAISER-Stan/Cam Schl Dist, Special Dist, improved, greater than 1 acre |
| CF | Conservation Futures | 0.0316035091 | $555,595 | $555,595 | $17.56 | | |
| EMS1 | Fire & Rescue Dist #1 Camano GEN (EMS) | 0.3677864386 | $555,595 | $555,595 | $204.34 | | |
| FIRE1 | Fire & Rescue Dist #1 Camano GEN | 1.2502910536 | $555,595 | $555,595 | $694.66 | | |
| FIRE1BOND | Fire & Rescue Dist #1 Camano BOND | 0.1570001679 | $555,595 | $555,595 | $87.23 | | |
| CE | County Current Expense | 0.3708482477 | $555,595 | $555,595 | $206.04 | | |
| CR | County Roads | 0.4584763726 | $555,595 | $555,595 | $254.73 | | |
| LCIB | Library Sno-Isle BOND (Camano Island) | 0.0396325772 | $555,595 | $555,595 | $22.02 | | |
| LIB | Library Sno-Isle GEN | 0.3153421757 | $555,595 | $555,595 | $175.20 | | |
| SCH205_401 | School 205-401 Enrichment | 1.2698420524 | $555,595 | $555,595 | $705.52 | | |
| SCH205BOND | School 205-401 BOND | 0.9396497583 | $555,595 | $555,595 | $522.06 | | |
| ST | State School | 1.3035497053 | $555,595 | $555,595 | $724.25 | | |
| ST2 | State School Part 2 | 0.8169543533 | $555,595 | $555,595 | $453.90 | | |
| | Total Tax Rate: | 7.3209764117 | | | | | |
| | | | | Taxes w/Current Exemptions: | $4,067.51 | | |
| | | | | Taxes w/o Exemptions: | $4,067.51 | | |
Improvement / Building
| Improvement #1: | MANUFACTURED HOME | State Code: | Y | 1297.4 sqft | Value: | $151,589 |
| Bathrooms: | 1 | Bedrooms: | 2 | | Ceiling: | PLASTER PAINTED | Cooling: | EVAP NO DUCT | | Exterior Wall/Cover: | VINYL | Floor Covering: | CARPET 100% | | Floor Structure: | SLAB ON GRADE | Foundation: | SLAB | | Heating: | FHA ELECTRIC | Interior Finish: | PLASTER | | Plumbing Fixture Cnt: | 1 | Roof Slope: | FLAT | | Roof Structure/Cover: | CJ ALUMINIUM HEAVY |   |   |
|
| | Type | Description | Class CD | Sub Class CD | Year Built | Area |
| | BAS | BASE/MAIN FLOOR | 4 | 0 | 2025 | 1297.4 |
| | OWP | OPEN WOOD PORCH W/STEPS | 4 | 0 | 2025 | 40.0 |
| | OWP | OPEN WOOD PORCH W/STEPS | 4 | 0 | 2025 | 20.0 |
| Improvement #2: | MANUFACTURED HOME | State Code: | Y | 1062.1 sqft | Value: | $134,006 |
| Bathrooms: | 1 | Bedrooms: | 2 | | Ceiling: | PLASTER PAINTED | Cooling: | EVAP NO DUCT | | Exterior Wall/Cover: | VINYL | Floor Covering: | CARPET 100% | | Floor Structure: | SLAB ON GRADE | Foundation: | SLAB | | Heating: | FHA ELECTRIC | Interior Finish: | PLASTER | | Plumbing Fixture Cnt: | 1 | Roof Slope: | FLAT | | Roof Structure/Cover: | CJ ALUMINIUM HEAVY |   |   |
|
| | Type | Description | Class CD | Sub Class CD | Year Built | Area |
| | BAS | BASE/MAIN FLOOR | 4 | 0 | 2025 | 1062.1 |
| | OWP | OPEN WOOD PORCH W/STEPS | 4 | 0 | 2025 | 28.0 |
| | OWP | OPEN WOOD PORCH W/STEPS | 4 | 0 | 2025 | 36.0 |
Sketch
Property Image
Land
| 1 | 18 | AC (02.01-03.00) | 2.5000 | 108900.00 | 0.00 | 0.00 | 1.00 | $270,000 | $0 |
Roll Value History
| 2026 | N/A | N/A | N/A | N/A | N/A |
| 2025 | $285,595 | $270,000 | $0 | $555,595 | $555,595 |
| 2024 | $0 | $140,000 | $0 | $140,000 | $140,000 |
| 2023 | $0 | $130,000 | $0 | $130,000 | $130,000 |
| 2022 | $0 | $90,000 | $0 | $90,000 | $90,000 |
| 2021 | $0 | $80,000 | $0 | $80,000 | $80,000 |
| 2020 | $0 | $75,000 | $0 | $75,000 | $75,000 |
| 2019 | $0 | $70,000 | $0 | $70,000 | $70,000 |
| 2018 | $0 | $65,000 | $0 | $65,000 | $65,000 |
| 2017 | $0 | $65,000 | $0 | $65,000 | $65,000 |
| 2016 | $0 | $50,000 | $0 | $50,000 | $50,000 |
| 2015 | $0 | $40,000 | $0 | $40,000 | $40,000 |
| 2014 | $0 | $40,000 | $0 | $40,000 | $40,000 |
| 2013 | $0 | $40,000 | $0 | $40,000 | $40,000 |
| 2012 | $0 | $55,800 | $0 | $55,800 | $55,800 |
| 2011 | $0 | $55,800 | $0 | $55,800 | $55,800 |
| 2010 | $0 | $55,800 | $0 | $55,800 | $55,800 |
| 2009 | $0 | $98,400 | $0 | $98,400 | $98,400 |
| 2008 | $0 | $71,280 | $0 | $71,280 | $71,280 |
| 2007 | $0 | $75,000 | $0 | $75,000 | $75,000 |
Deed and Sales History
| 1 | 09/08/2022 | WD | Warranty Deed | FS PROPERTIES LLC | KOLEDIN, JACQUELINE M | | | $130,000.00 | 54461 | 4550897 |
| 2 | 02/10/2022 | WD | Warranty Deed | YERKAN, ROBERT C | FS PROPERTIES LLC | | | $97,500.00 | 51927 | 4539511 |
Payout Agreement
| No payout information available.. |