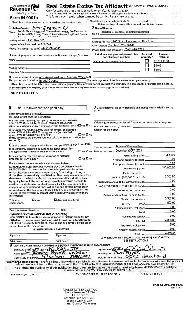
Property
Account |
| Property ID: | 148557 | Abbreviated Legal Description: | 68 - SW NW SW NW EX RD |
| Geographic ID: | R33014-348-0170 | Agent Code: | |
| Type: | Real | | |
| Tax Area: | 542 - APPRAISER-Stan/Cam Schl Dist, Special Dist, improved, greater than 1 acre | Land Use Code | 11 |
| Open Space: | N | DFL | N |
| Historic Property: | N | Remodel Property: | N |
| Multi-Family Redevelopment: | N | | |
| Township: | 30 | Section: | 14 |
| Range: | R3 |
Location |
| Address: | 3333 BERNIE RD CAMANO ISLAND, WA 98282 | Mapsco: | |
| Neighborhood: | 58NofTamarackS | Map ID: | 871 |
| Neighborhood CD: | 58RntamS |
Owner |
| Name: | MCPHERSON, GORDON W | Owner ID: | 301563 |
| Mailing Address: | DIANE L MCPHERSON 3333 BERNIE RD CAMANO ISLAND, WA 98253 | % Ownership: | 100.0000000000% |
| | | Exemptions: | |
Taxes and Assessment Details
Values
| (+) Improvement Homesite Value: | + | $0 | |
| (+) Improvement Non-Homesite Value: | + | $571,082 | |
| (+) Land Homesite Value: | + | $0 | |
| (+) Land Non-Homesite Value: | + | $330,000 | |
| (+) Curr Use (HS): | + | $0 | $0 |
| (+) Curr Use (NHS): | + | $0 | $0 |
| | | -------------------------- | |
| (=) Market Value: | = | $901,082 | |
| (–) Productivity Loss: | – | $0 | |
| | | -------------------------- | |
| (=) Subtotal: | = | $901,082 | |
| (+) Senior Appraised Value: | + | $0 | |
| (+) Non-Senior Appraised Value: | + | $901,082 | |
| | | -------------------------- | |
| (=) Total Appraised Value: | = | $901,082 | |
| (–) Senior Exemption Loss: | – | $0 | |
| (–) Exemption Loss: | – | $0 | |
| | | -------------------------- | |
| (=) Taxable Value: | = | $901,082 | |
Taxing Jurisdiction
| Owner: | MCPHERSON, GORDON W | | |
| % Ownership: | 100.0000000000% | | |
| Total Value: | $901,082 | | |
| Tax Area: | 542 - APPRAISER-Stan/Cam Schl Dist, Special Dist, improved, greater than 1 acre |
| CF | Conservation Futures | 0.0316035091 | $901,082 | $901,082 | $28.48 | | |
| EMS1 | Fire & Rescue Dist #1 Camano GEN (EMS) | 0.3677864386 | $901,082 | $901,082 | $331.41 | | |
| FIRE1 | Fire & Rescue Dist #1 Camano GEN | 1.2502910536 | $901,082 | $901,082 | $1,126.61 | | |
| FIRE1BOND | Fire & Rescue Dist #1 Camano BOND | 0.1570001679 | $901,082 | $901,082 | $141.47 | | |
| CE | County Current Expense | 0.3708482477 | $901,082 | $901,082 | $334.16 | | |
| CR | County Roads | 0.4584763726 | $901,082 | $901,082 | $413.12 | | |
| LCIB | Library Sno-Isle BOND (Camano Island) | 0.0396325772 | $901,082 | $901,082 | $35.71 | | |
| LIB | Library Sno-Isle GEN | 0.3153421757 | $901,082 | $901,082 | $284.15 | | |
| SCH205_401 | School 205-401 Enrichment | 1.2698420524 | $901,082 | $901,082 | $1,144.23 | | |
| SCH205BOND | School 205-401 BOND | 0.9396497583 | $901,082 | $901,082 | $846.70 | | |
| ST | State School | 1.3035497053 | $901,082 | $901,082 | $1,174.61 | | |
| ST2 | State School Part 2 | 0.8169543533 | $901,082 | $901,082 | $736.14 | | |
| | Total Tax Rate: | 7.3209764117 | | | | | |
| | | | | Taxes w/Current Exemptions: | $6,596.79 | | |
| | | | | Taxes w/o Exemptions: | $6,596.79 | | |
Improvement / Building
| Improvement #1: | RESIDENTIAL | State Code: | Y | 2235.0 sqft | Value: | $571,082 |
| Bathrooms: | 2.5 | Bedrooms: | 3 | | Ceiling: | BEAM PAINTED | Cooling: | HEAT PUMP/CONV/V | | Exterior Wall/Cover: | WOOD SIDING | Floor Covering: | CERAMIC TILE/CPT 40-60 | | Floor Structure: | WOOD W/SUBFLOOR | Foundation: | CONCRETE | | Interior Finish: | DRYWALL PAINT | Plumbing Fixture Cnt: | 13 | | Roof Slope: | 8" IN 12" | Roof Structure/Cover: | BEAM ASPHALT |
|
| | Type | Description | Class CD | Sub Class CD | Year Built | Area |
| | BAS | BASE/MAIN FLOOR | 4 | 0 | 2005 | 2235.0 |
| | OP1 | OPEN PORCH SLAB | 4 | 0 | 2005 | 416.7 |
| | OP4 | OPEN PORCH W/CEILING-ROOF | 4 | 0 | 2005 | 81.4 |
| | AGR | ATTACHED GARAGE | 4 | 0 | 2005 | 912.5 |
| | OWP | OPEN WOOD PORCH W/STEPS | 4 | 0 | 2005 | 352.0 |
| | OWP | OPEN WOOD PORCH W/STEPS | 4 | 0 | 2005 | 49.5 |
Sketch
| No sketches available for this property. |
Property Image
Land
| 1 | 18 | AC (02.01-03.00) | 2.2700 | 98881.20 | 0.00 | 0.00 | 1.00 | $330,000 | $0 |
Roll Value History
| 2026 | N/A | N/A | N/A | N/A | N/A |
| 2025 | $571,082 | $330,000 | $0 | $901,082 | $901,082 |
| 2024 | $569,125 | $290,000 | $0 | $859,125 | $859,125 |
| 2023 | $575,574 | $280,000 | $0 | $855,574 | $855,574 |
| 2022 | $525,586 | $240,000 | $0 | $765,586 | $765,586 |
| 2021 | $417,241 | $160,000 | $0 | $577,241 | $577,241 |
| 2020 | $406,788 | $150,000 | $0 | $556,788 | $556,788 |
| 2019 | $303,942 | $200,000 | $0 | $503,942 | $503,942 |
| 2018 | $304,784 | $175,000 | $0 | $479,784 | $479,784 |
| 2017 | $306,468 | $135,000 | $0 | $441,468 | $441,468 |
| 2016 | $309,837 | $100,000 | $0 | $409,837 | $409,837 |
| 2015 | $314,919 | $75,000 | $0 | $389,919 | $389,919 |
| 2014 | $318,458 | $75,000 | $0 | $393,458 | $393,458 |
| 2013 | $321,995 | $75,000 | $0 | $396,995 | $396,995 |
| 2012 | $325,534 | $104,000 | $0 | $429,534 | $429,534 |
| 2011 | $329,073 | $130,000 | $0 | $459,073 | $459,073 |
| 2010 | $332,835 | $130,000 | $0 | $462,835 | $462,835 |
| 2009 | $343,166 | $150,000 | $0 | $493,166 | $493,166 |
| 2008 | $346,810 | $155,000 | $0 | $501,810 | $501,810 |
| 2007 | $350,434 | $130,000 | $0 | $480,434 | $480,434 |
Deed and Sales History
| 1 | 10/05/2021 | WD | Warranty Deed | MILLER, RANDALL J | MCPHERSON, GORDON W | | | $700,000.00 | 50389 | 4530977 |
| 2 | 05/31/2007 | WD | Warranty Deed | BALDASAR, KENNETH M | MILLER, RANDALL J | | | $484,900.00 | 71870 | 4203783 |
| 3 | 04/20/2004 | WD | Warranty Deed | MERCLICH, ROSA | BALDASAR, KENNETH M | | | $85,000.00 | 41646 | 4098159 |
| 4 | 11/04/2003 | 5 | DNU - Marriage License/Name Change | MERCLICH, VLADIMIR | MERCLICH, ROSA | | | $0.00 | 70050 | 0 |
| 5 | 03/01/1983 | CD | DNU - Correction Deed | MERCLICH, VLADIMIR | MERCLICH, VLADIMIR | | | $0.00 | 59904 | 0 |
| 6 | 01/01/1900 | OTHER | Other - Misc. Documents | Unknown | MERCLICH, VLADIMIR | | | $0.00 | 0 | 0 |
Payout Agreement
| No payout information available.. |