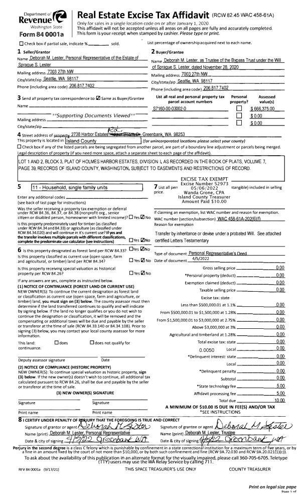
Property
Account |
| Property ID: | 148584 | Abbreviated Legal Description: | 35 - N/2 SE NW LY ELY OF RD |
| Geographic ID: | R33014-369-2330 | Agent Code: | |
| Type: | Real | | |
| Tax Area: | 542 - APPRAISER-Stan/Cam Schl Dist, Special Dist, improved, greater than 1 acre | Land Use Code | 59 |
| Open Space: | N | DFL | N |
| Historic Property: | N | Remodel Property: | N |
| Multi-Family Redevelopment: | N | | |
| Township: | 30 | Section: | 14 |
| Range: | R3 |
Location |
| Address: | 3325 S EAST CAMANO DR CAMANO ISLAND, WA 98282 | Mapsco: | |
| Neighborhood: | 58cRR-scamano rd | Map ID: | 871 |
| Neighborhood CD: | 58cRRscam |
Owner |
| Name: | TYEE FARMS, LLC | Owner ID: | 280892 |
| Mailing Address: | 3325 SOUTH EAST CAMANO DR CAMANO ISLAND, WA 98282 | % Ownership: | 100.0000000000% |
| | | Exemptions: | |
Taxes and Assessment Details
Values
| (+) Improvement Homesite Value: | + | $0 | |
| (+) Improvement Non-Homesite Value: | + | $252,103 | |
| (+) Land Homesite Value: | + | $0 | |
| (+) Land Non-Homesite Value: | + | $330,000 | |
| (+) Curr Use (HS): | + | $0 | $0 |
| (+) Curr Use (NHS): | + | $0 | $0 |
| | | -------------------------- | |
| (=) Market Value: | = | $582,103 | |
| (–) Productivity Loss: | – | $0 | |
| | | -------------------------- | |
| (=) Subtotal: | = | $582,103 | |
| (+) Senior Appraised Value: | + | $0 | |
| (+) Non-Senior Appraised Value: | + | $582,103 | |
| | | -------------------------- | |
| (=) Total Appraised Value: | = | $582,103 | |
| (–) Senior Exemption Loss: | – | $0 | |
| (–) Exemption Loss: | – | $0 | |
| | | -------------------------- | |
| (=) Taxable Value: | = | $582,103 | |
Taxing Jurisdiction
| Owner: | TYEE FARMS, LLC | | |
| % Ownership: | 100.0000000000% | | |
| Total Value: | $582,103 | | |
| Tax Area: | 542 - APPRAISER-Stan/Cam Schl Dist, Special Dist, improved, greater than 1 acre |
| CF | Conservation Futures | 0.0316035091 | $582,103 | $582,103 | $18.40 | | |
| EMS1 | Fire & Rescue Dist #1 Camano GEN (EMS) | 0.3677864386 | $582,103 | $582,103 | $214.09 | | |
| FIRE1 | Fire & Rescue Dist #1 Camano GEN | 1.2502910536 | $582,103 | $582,103 | $727.80 | | |
| FIRE1BOND | Fire & Rescue Dist #1 Camano BOND | 0.1570001679 | $582,103 | $582,103 | $91.39 | | |
| CE | County Current Expense | 0.3708482477 | $582,103 | $582,103 | $215.87 | | |
| CR | County Roads | 0.4584763726 | $582,103 | $582,103 | $266.88 | | |
| LCIB | Library Sno-Isle BOND (Camano Island) | 0.0396325772 | $582,103 | $582,103 | $23.07 | | |
| LIB | Library Sno-Isle GEN | 0.3153421757 | $582,103 | $582,103 | $183.56 | | |
| SCH205_401 | School 205-401 Enrichment | 1.2698420524 | $582,103 | $582,103 | $739.18 | | |
| SCH205BOND | School 205-401 BOND | 0.9396497583 | $582,103 | $582,103 | $546.97 | | |
| ST | State School | 1.3035497053 | $582,103 | $582,103 | $758.80 | | |
| ST2 | State School Part 2 | 0.8169543533 | $582,103 | $582,103 | $475.55 | | |
| | Total Tax Rate: | 7.3209764117 | | | | | |
| | | | | Taxes w/Current Exemptions: | $4,261.56 | | |
| | | | | Taxes w/o Exemptions: | $4,261.56 | | |
Improvement / Building
| Improvement #1: | COMMERCIAL | State Code: | F1 | 1656.0 sqft | Value: | $102,487 |
| Bathrooms: | 0 | Bedrooms: | 0 | | Ceiling: | PAINT OPEN FLOOR BAS | Exterior Wall/Cover: | 8" CONC BLK/WD FRAME | | Floor Covering: | CONCRETE SEALER | Floor Structure: | SLAB ON GRADE | | Foundation: | CONCRETE | Heating: | SPACE HEATERS | | Interior Finish: | CONVENIENCE STORE | Plumbing Fixture Cnt: | 1 | | Roof Structure/Cover: | BEAM BUILT-UP ROCK |   |   |
|
| | Type | Description | Class CD | Sub Class CD | Year Built | Area |
| | BAS | BASE/MAIN FLOOR | 3 | 0 | 1960 | 1656.0 |
| | UTY | STORAGE/UTILITY | 3 | 0 | 1960 | 288.0 |
| | UTY | STORAGE/UTILITY | 3 | 0 | 1960 | 1800.0 |
| | oGRC | GAR/CONBLK | 3 | 0 | 1960 | 80.0 |
| Improvement #2: | RESIDENTIAL | State Code: | Y | 1210.8 sqft | Value: | $149,616 |
| Bathrooms: | 1 | Bedrooms: | 2 | | Ceiling: | DRYWALL PAINTED | Exterior Wall/Cover: | PLY/HARDBOARD T-111 | | Floor Covering: | VINYL 100% | Floor Structure: | WOOD W/SUBFLOOR | | Foundation: | CONCRETE | Heating: | WALL HEAT ELECTRIC | | Interior Finish: | DRYWALL PAINT | Plumbing Fixture Cnt: | 6 | | Roof Structure/Cover: | CJ ASPHALT |   |   |
|
| | Type | Description | Class CD | Sub Class CD | Year Built | Area |
| | BAS | BASE/MAIN FLOOR | 3 | 0 | 1950 | 1210.8 |
| | OP2 | OPEN PORCH W/STEPS | 3 | 0 | 1950 | 144.0 |
| | OWC | OPEN WOOD PORCH W/STEPS/ROOF/C | 3 | 0 | 1950 | 60.5 |
| | UTY | STORAGE/UTILITY | 3 | 0 | 1950 | 864.0 |
Sketch
Property Image
Land
| 1 | 32 | AC (03.01-09.99) | 9.8100 | 427323.60 | 0.00 | 0.00 | 1.00 | $330,000 | $0 |
Roll Value History
| 2026 | N/A | N/A | N/A | N/A | N/A |
| 2025 | $252,103 | $330,000 | $0 | $582,103 | $582,103 |
| 2024 | $263,404 | $300,000 | $0 | $563,404 | $563,404 |
| 2023 | $275,478 | $290,000 | $0 | $565,478 | $565,478 |
| 2022 | $240,466 | $230,000 | $0 | $470,466 | $470,466 |
| 2021 | $252,861 | $230,000 | $0 | $482,861 | $482,861 |
| 2020 | $249,574 | $230,000 | $0 | $479,574 | $479,574 |
| 2019 | $214,010 | $250,000 | $0 | $464,010 | $464,010 |
| 2018 | $221,150 | $250,000 | $0 | $471,150 | $471,150 |
| 2017 | $261,750 | $231,000 | $0 | $492,750 | $492,750 |
| 2016 | $264,279 | $231,000 | $0 | $495,279 | $495,279 |
| 2015 | $225,594 | $263,374 | $0 | $488,968 | $488,968 |
| 2014 | $227,622 | $263,374 | $0 | $490,996 | $490,996 |
| 2013 | $227,864 | $263,374 | $0 | $491,238 | $491,238 |
| 2012 | $227,864 | $263,374 | $0 | $491,238 | $491,238 |
| 2011 | $227,864 | $263,374 | $0 | $491,238 | $491,238 |
| 2010 | $174,631 | $337,075 | $0 | $511,706 | $511,706 |
| 2009 | $176,000 | $337,075 | $0 | $513,075 | $513,075 |
| 2008 | $177,291 | $354,837 | $0 | $532,128 | $532,128 |
| 2007 | $179,238 | $354,837 | $0 | $534,075 | $534,075 |
Deed and Sales History
| 1 | 07/06/2017 | WD | Warranty Deed | EXCHANGE PROPERTIES 05-02 LLC | TYEE FARMS, LLC | | | $475,000.00 | 30144 | 4425984 |
| 2 | 03/14/2005 | WD | Warranty Deed | BARTLETT, RICHARD C | EXCHANGE PROPERTIES 05-02 LLC, | | | $460,000.00 | 51080 | 4128638 |
| 3 | 04/01/1992 | WD | Warranty Deed | STORMO, SIGMOND | BARTLETT, RICHARD C | | | $275,000.00 | 21571 | 92007527 |
| 4 | 06/01/1986 | QCD | Quit Claim Deed | SNOWDEN, TED | STORMO, SIGMOND | | | $0.00 | 61547 | 86007246 |
| 5 | 01/01/1900 | OTHER | Other - Misc. Documents | Unknown | SNOWDEN, TED | | | $0.00 | 0 | 0 |
Payout Agreement
| No payout information available.. |