Property
Account |
| Property ID: | 148600 | Abbreviated Legal Description: | 9 - N/2 SE NW LY W OF E CAMANO DR EX S251' |
| Geographic ID: | R33014-374-1560 | Agent Code: | |
| Type: | Real | | |
| Tax Area: | 542 - APPRAISER-Stan/Cam Schl Dist, Special Dist, improved, greater than 1 acre | Land Use Code | 11 |
| Open Space: | N | DFL | N |
| Historic Property: | N | Remodel Property: | N |
| Multi-Family Redevelopment: | N | | |
| Township: | 30 | Section: | 14 |
| Range: | R3 |
Location |
| Address: | 3306 S EAST CAMANO DR CAMANO ISLAND, WA 98282 | Mapsco: | |
| Neighborhood: | 58NofTamarackAC | Map ID: | 871 |
| Neighborhood CD: | 58RntamAC |
Owner |
| Name: | PYPER, REBECA S | Owner ID: | 288667 |
| Mailing Address: | LEONARD J PYPER 3306 S EAST CAMANO CAMANO ISLAND, WA 98282 | % Ownership: | 100.0000000000% |
| | | Exemptions: | |
Taxes and Assessment Details
Values
| (+) Improvement Homesite Value: | + | $0 | |
| (+) Improvement Non-Homesite Value: | + | $232,788 | |
| (+) Land Homesite Value: | + | $0 | |
| (+) Land Non-Homesite Value: | + | $320,000 | |
| (+) Curr Use (HS): | + | $0 | $0 |
| (+) Curr Use (NHS): | + | $0 | $0 |
| | | -------------------------- | |
| (=) Market Value: | = | $552,788 | |
| (–) Productivity Loss: | – | $0 | |
| | | -------------------------- | |
| (=) Subtotal: | = | $552,788 | |
| (+) Senior Appraised Value: | + | $0 | |
| (+) Non-Senior Appraised Value: | + | $552,788 | |
| | | -------------------------- | |
| (=) Total Appraised Value: | = | $552,788 | |
| (–) Senior Exemption Loss: | – | $0 | |
| (–) Exemption Loss: | – | $0 | |
| | | -------------------------- | |
| (=) Taxable Value: | = | $552,788 | |
Taxing Jurisdiction
| Owner: | PYPER, REBECA S | | |
| % Ownership: | 100.0000000000% | | |
| Total Value: | $552,788 | | |
| Tax Area: | 542 - APPRAISER-Stan/Cam Schl Dist, Special Dist, improved, greater than 1 acre |
| CF | Conservation Futures | 0.0316035091 | $552,788 | $552,788 | $17.47 | | |
| EMS1 | Fire & Rescue Dist #1 Camano GEN (EMS) | 0.3677864386 | $552,788 | $552,788 | $203.31 | | |
| FIRE1 | Fire & Rescue Dist #1 Camano GEN | 1.2502910536 | $552,788 | $552,788 | $691.15 | | |
| FIRE1BOND | Fire & Rescue Dist #1 Camano BOND | 0.1570001679 | $552,788 | $552,788 | $86.79 | | |
| CE | County Current Expense | 0.3708482477 | $552,788 | $552,788 | $205.00 | | |
| CR | County Roads | 0.4584763726 | $552,788 | $552,788 | $253.44 | | |
| LCIB | Library Sno-Isle BOND (Camano Island) | 0.0396325772 | $552,788 | $552,788 | $21.91 | | |
| LIB | Library Sno-Isle GEN | 0.3153421757 | $552,788 | $552,788 | $174.32 | | |
| SCH205_401 | School 205-401 Enrichment | 1.2698420524 | $552,788 | $552,788 | $701.95 | | |
| SCH205BOND | School 205-401 BOND | 0.9396497583 | $552,788 | $552,788 | $519.43 | | |
| ST | State School | 1.3035497053 | $552,788 | $552,788 | $720.59 | | |
| ST2 | State School Part 2 | 0.8169543533 | $552,788 | $552,788 | $451.60 | | |
| | Total Tax Rate: | 7.3209764117 | | | | | |
| | | | | Taxes w/Current Exemptions: | $4,046.96 | | |
| | | | | Taxes w/o Exemptions: | $4,046.96 | | |
Improvement / Building
| Improvement #1: | MANUFACTURED HOME | State Code: | Y | 2038.3 sqft | Value: | $232,788 |
| Bathrooms: | 2 | Bedrooms: | 2 | | Ceiling: | PLASTER PAINTED | Cooling: | EVAP NO DUCT | | Exterior Wall/Cover: | VINYL | Floor Covering: | CARPET 100% | | Floor Structure: | SLAB ON GRADE | Foundation: | SLAB | | Heating: | FHA ELECTRIC | Interior Finish: | PLASTER | | Plumbing Fixture Cnt: | 1 | Roof Slope: | FLAT | | Roof Structure/Cover: | CJ ALUMINIUM HEAVY |   |   |
|
| | Type | Description | Class CD | Sub Class CD | Year Built | Area |
| | BAS | BASE/MAIN FLOOR | 4 | 0 | 1993 | 2038.3 |
| | DGR | DETACHED GARAGE | 4 | 0 | 1993 | 864.0 |
| | CPD | OPEN CARPORT DIRT FLOOR | 4 | 0 | 1993 | 432.0 |
| | UTY | STORAGE/UTILITY | 4 | 0 | 1993 | 1380.0 |
| | OP4 | OPEN PORCH W/CEILING-ROOF | 4 | 0 | 1993 | 100.0 |
| | OP4 | OPEN PORCH W/CEILING-ROOF | 4 | 0 | 1993 | 588.0 |
Sketch
| No sketches available for this property. |
Property Image
Land
| 1 | 32 | AC (03.01-09.99) | 5.0000 | 217800.00 | 0.00 | 0.00 | 1.00 | $320,000 | $0 |
Roll Value History
| 2026 | N/A | N/A | N/A | N/A | N/A |
| 2025 | $232,788 | $320,000 | $0 | $552,788 | $552,788 |
| 2024 | $239,166 | $280,000 | $0 | $519,166 | $519,166 |
| 2023 | $213,521 | $260,000 | $0 | $473,521 | $473,521 |
| 2022 | $198,365 | $210,000 | $0 | $408,365 | $408,365 |
| 2021 | $169,246 | $160,000 | $0 | $329,246 | $329,246 |
| 2020 | $168,356 | $150,000 | $0 | $318,356 | $318,356 |
| 2019 | $135,814 | $200,000 | $0 | $335,814 | $335,814 |
| 2018 | $83,892 | $165,000 | $0 | $248,892 | $248,892 |
| 2017 | $86,688 | $150,000 | $0 | $236,688 | $236,688 |
| 2016 | $89,484 | $130,000 | $0 | $219,484 | $219,484 |
| 2015 | $109,564 | $84,000 | $0 | $193,564 | $193,564 |
| 2014 | $111,368 | $84,000 | $0 | $195,368 | $195,368 |
| 2013 | $113,172 | $84,000 | $0 | $197,172 | $197,172 |
| 2012 | $114,976 | $84,000 | $0 | $198,976 | $198,976 |
| 2011 | $115,878 | $93,000 | $0 | $208,878 | $208,878 |
| 2010 | $113,964 | $93,000 | $0 | $206,964 | $206,964 |
| 2009 | $120,689 | $120,000 | $0 | $240,689 | $240,689 |
| 2008 | $122,061 | $110,000 | $0 | $232,061 | $232,061 |
| 2007 | $125,751 | $110,000 | $0 | $235,751 | $235,751 |
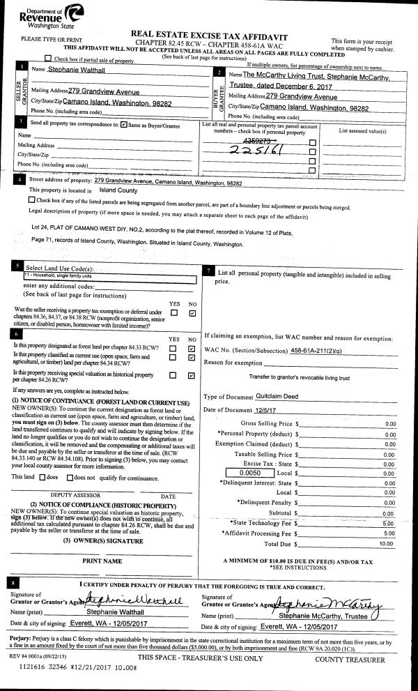
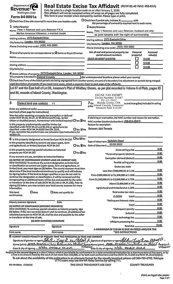
Deed and Sales History
| 1 | 01/28/2019 | WD | Warranty Deed | SECURED HOLDINGS, LLC | PYPER, REBECA S | | | $350,000.00 | 37494 | 4458700 |
| 2 | 01/03/2018 | TTAXD | Treasurer's Tax Deed | O'NEAL, KENDALL S | SECURED HOLDINGS, LLC | | | $0.00 | 32490 | 4436805 |
| 3 | 07/01/1990 | WD | Warranty Deed | BROXSON, WILLIAM C | O'NEAL, KENDALL S | | | $34,950.00 | 4203 | 90013821 |
| 4 | 01/01/1900 | OTHER | Other - Misc. Documents | Unknown | BROXSON, WILLIAM C | | | $0.00 | 0 | 0 |
Payout Agreement
| No payout information available.. |