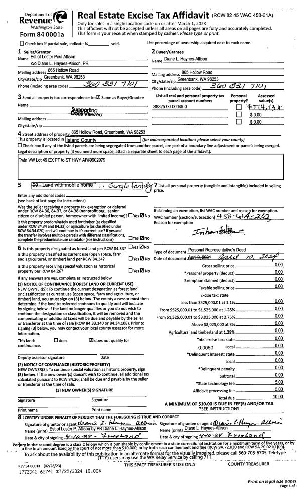
Property
Account |
| Property ID: | 14861 | Abbreviated Legal Description: | 51 - S163'OF N875.03'OF W/2 NWSW TGW & SUB EZ |
| Geographic ID: | R13205-187-0350 | Agent Code: | |
| Type: | Real | | |
| Tax Area: | 112 - APPRAISER-OH Schl Dist, outside OH, improved, greater than 1 acre | Land Use Code | 11 |
| Open Space: | N | DFL | N |
| Historic Property: | N | Remodel Property: | N |
| Multi-Family Redevelopment: | N | | |
| Township: | 32 | Section: | 05 |
| Range: | R1 |
Location |
| Address: | 2150 BOREAS LN OAK HARBOR, WA 98277 | Mapsco: | |
| Neighborhood: | Cycle 1 | Map ID: | 98 |
| Neighborhood CD: | 1 |
Owner |
| Name: | BERGERSON, COLLEEN D | Owner ID: | 261075 |
| Mailing Address: | 2150 BOREAS LN OAK HARBOR, WA 98277 | % Ownership: | 100.0000000000% |
| | | Exemptions: | |
Taxes and Assessment Details
Values
| (+) Improvement Homesite Value: | + | $0 | |
| (+) Improvement Non-Homesite Value: | + | $231,129 | |
| (+) Land Homesite Value: | + | $0 | |
| (+) Land Non-Homesite Value: | + | $260,000 | |
| (+) Curr Use (HS): | + | $0 | $0 |
| (+) Curr Use (NHS): | + | $0 | $0 |
| | | -------------------------- | |
| (=) Market Value: | = | $491,129 | |
| (–) Productivity Loss: | – | $0 | |
| | | -------------------------- | |
| (=) Subtotal: | = | $491,129 | |
| (+) Senior Appraised Value: | + | $0 | |
| (+) Non-Senior Appraised Value: | + | $491,129 | |
| | | -------------------------- | |
| (=) Total Appraised Value: | = | $491,129 | |
| (–) Senior Exemption Loss: | – | $0 | |
| (–) Exemption Loss: | – | $0 | |
| | | -------------------------- | |
| (=) Taxable Value: | = | $491,129 | |
Taxing Jurisdiction
| Owner: | BERGERSON, COLLEEN D | | |
| % Ownership: | 100.0000000000% | | |
| Total Value: | $491,129 | | |
| Tax Area: | 112 - APPRAISER-OH Schl Dist, outside OH, improved, greater than 1 acre |
| CF | Conservation Futures | 0.0316035091 | $491,129 | $491,129 | $15.52 | | |
| CEM1 | Cemetery #1 | 0.0040320932 | $491,129 | $491,129 | $1.98 | | |
| FIRE2 | Fire & Rescue Dist #2 N Whidbey GEN | 0.5475949600 | $491,129 | $491,129 | $268.94 | | |
| HOBOND | Hospital BOND | 0.1910887512 | $491,129 | $491,129 | $93.85 | | |
| HOGEN | Hospital GEN | 0.3902502903 | $491,129 | $491,129 | $191.66 | | |
| CE | County Current Expense | 0.3708482477 | $491,129 | $491,129 | $182.13 | | |
| CR | County Roads | 0.4584763726 | $491,129 | $491,129 | $225.17 | | |
| ISLANDEMS | Hospital GEN (EMS) | 0.5000000000 | $491,129 | $491,129 | $245.56 | | |
| LIB | Library Sno-Isle GEN | 0.3153421757 | $491,129 | $491,129 | $154.87 | | |
| NWHIDPRMT | P & R N Whidbey GEN | 0.2004466701 | $491,129 | $491,129 | $98.45 | | |
| SCH201MO | School 201 Enrichment | 1.8559231640 | $491,129 | $491,129 | $911.50 | | |
| ST | State School | 1.3035497053 | $491,129 | $491,129 | $640.21 | | |
| ST2 | State School Part 2 | 0.8169543533 | $491,129 | $491,129 | $401.23 | | |
| | Total Tax Rate: | 6.9861102925 | | | | | |
| | | | | Taxes w/Current Exemptions: | $3,431.07 | | |
| | | | | Taxes w/o Exemptions: | $3,431.07 | | |
Improvement / Building
| Improvement #1: | RESIDENTIAL | State Code: | Y | 1205.5 sqft | Value: | $231,129 |
| Bathrooms: | 2 | Bedrooms: | 3 | | Ceiling: | DRYWALL PAINTED | Exterior Wall/Cover: | CEMENT FIBER | | Floor Covering: | VINYL 100% | Floor Structure: | WOOD W/SUBFLOOR | | Foundation: | CONCRETE | Heating: | FHA GAS | | Interior Finish: | DRYWALL PAINT | Plumbing Fixture Cnt: | 9 | | Roof Slope: | 4" IN 12" | Roof Structure/Cover: | CJ ASPHALT |
|
| | Type | Description | Class CD | Sub Class CD | Year Built | Area |
| | BAS | BASE/MAIN FLOOR | 3 | 0 | 2001 | 1205.5 |
| | CPD | OPEN CARPORT DIRT FLOOR | 3 | 0 | 2001 | 300.0 |
| | AGR | ATTACHED GARAGE | 3 | 0 | 2001 | 509.6 |
| | OWR | OPEN WOOD PORCH W/STEPS/ROOF | 3 | 0 | 2001 | 294.8 |
Sketch
Property Image
Land
| 1 | 18 | AC (02.01-03.00) | 2.4700 | 107593.20 | 0.00 | 0.00 | 1.00 | $260,000 | $0 |
Roll Value History
| 2026 | N/A | N/A | N/A | N/A | N/A |
| 2025 | $231,129 | $260,000 | $0 | $491,129 | $491,129 |
| 2024 | $234,046 | $250,000 | $0 | $484,046 | $484,046 |
| 2023 | $234,046 | $240,000 | $0 | $474,046 | $474,046 |
| 2022 | $214,568 | $220,000 | $0 | $434,568 | $434,568 |
| 2021 | $188,882 | $180,000 | $0 | $368,882 | $368,882 |
| 2020 | $183,751 | $140,000 | $0 | $323,751 | $323,751 |
| 2019 | $129,221 | $200,000 | $0 | $329,221 | $329,221 |
| 2018 | $129,604 | $160,000 | $0 | $289,604 | $289,604 |
| 2017 | $118,883 | $150,000 | $0 | $268,883 | $268,883 |
| 2016 | $120,316 | $120,000 | $0 | $240,316 | $240,316 |
| 2015 | $121,746 | $90,000 | $0 | $211,746 | $211,746 |
| 2014 | $123,180 | $90,000 | $0 | $213,180 | $213,180 |
| 2013 | $124,612 | $102,000 | $0 | $226,612 | $226,612 |
| 2012 | $126,044 | $102,000 | $0 | $228,044 | $228,044 |
| 2011 | $133,289 | $120,000 | $0 | $253,289 | $253,289 |
| 2010 | $134,636 | $120,000 | $0 | $254,636 | $254,636 |
| 2009 | $140,351 | $200,000 | $0 | $340,351 | $340,351 |
| 2008 | $143,473 | $132,000 | $0 | $275,473 | $275,473 |
| 2007 | $145,094 | $132,000 | $0 | $277,094 | $277,094 |
Deed and Sales History
| 1 | 02/26/2013 | PRD | Personal Representatives Deed | COLLIER, DAVID M | BERGERSON, COLLEEN D | | | $0.00 | 10594 | 4334955 |
| 2 | 06/11/2001 | PRD | Personal Representatives Deed | COLLIER, DAVID M | COLLIER, DAVID M | | | $0.00 | 12118 | 20034304 |
| 3 | 11/20/2000 | OTHER | Other - Misc. Documents | COLLIER, DAVID M | COLLIER, DAVID M | | | $0.00 | 68863 | 0 |
| 4 | 07/27/1999 | WD | Warranty Deed | LAVENDER, FRANCES R | COLLIER, DAVID M | | | $40,257.00 | 93069 | 99017984 |
| 5 | 01/01/1900 | OTHER | Other - Misc. Documents | Unknown | LAVENDER, FRANCES R | | | $0.00 | 0 | 0 |
Payout Agreement
| No payout information available.. |