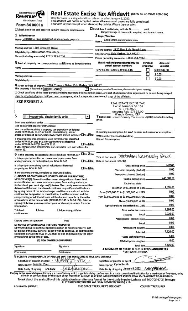
Property
Account |
| Property ID: | 148717 | Abbreviated Legal Description: | 18 - IN GL5 AKA NE NW: BG SWCR NE NW N89*E ALG SLN SD SUBD 357.94' TO ELY R/W E CAMANO DR TPB N39*W ALG SD ELY R/W 96.02' TO SLY MST PT MORGAN TR AF#278362 N28*E ALG SELY LN SD MORGAN TR 581.29' N59*W100' N28*E668.35' TO SWLY LN CAMANO BLVD S59*E ALG SWL |
| Geographic ID: | R33014-444-2240 | Agent Code: | |
| Type: | Real | | |
| Tax Area: | 549 - APPRAISER-Stan/Cam Schl Dist, Special Dist, vacant & 50 acres or less | Land Use Code | 94 |
| Open Space: | Y | DFL | N |
| Historic Property: | N | Remodel Property: | N |
| Multi-Family Redevelopment: | N | | |
| Township: | 30 | Section: | 14 |
| Range: | R3 |
Location |
| Address: | 3299 S EAST CAMANO DR CAMANO ISLAND, WA 98282 | Mapsco: | |
| Neighborhood: | 58ECamanoAcres | Map ID: | 871 |
| Neighborhood CD: | 58RecamAC |
Owner |
| Name: | SABLE, JAMES S | Owner ID: | 295760 |
| Mailing Address: | LINDA A OLMSTEAD 1992 ELGER BAY RD PMB 524 CAMANO ISLAND, WA 98282 | % Ownership: | 100.0000000000% |
| | | Exemptions: | |
Taxes and Assessment Details
Values
| (+) Improvement Homesite Value: | + | $0 | |
| (+) Improvement Non-Homesite Value: | + | $0 | |
| (+) Land Homesite Value: | + | $0 | |
| (+) Land Non-Homesite Value: | + | $0 | |
| (+) Curr Use (HS): | + | $0 | $0 |
| (+) Curr Use (NHS): | + | $310,000 | $186,000 |
| | | -------------------------- | |
| (=) Market Value: | = | $310,000 | |
| (–) Productivity Loss: | – | $124,000 | |
| | | -------------------------- | |
| (=) Subtotal: | = | $186,000 | |
| (+) Senior Appraised Value: | + | $0 | |
| (+) Non-Senior Appraised Value: | + | $186,000 | |
| | | -------------------------- | |
| (=) Total Appraised Value: | = | $186,000 | |
| (–) Senior Exemption Loss: | – | $0 | |
| (–) Exemption Loss: | – | $0 | |
| | | -------------------------- | |
| (=) Taxable Value: | = | $186,000 | |
Taxing Jurisdiction
| Owner: | SABLE, JAMES S | | |
| % Ownership: | 100.0000000000% | | |
| Total Value: | $310,000 | | |
| Tax Area: | 549 - APPRAISER-Stan/Cam Schl Dist, Special Dist, vacant & 50 acres or less |
| CF | Conservation Futures | 0.0316035091 | $186,000 | $186,000 | $5.88 | | |
| EMS1 | Fire & Rescue Dist #1 Camano GEN (EMS) | 0.3677864386 | $186,000 | $186,000 | $68.41 | | |
| CE | County Current Expense | 0.3708482477 | $186,000 | $186,000 | $68.98 | | |
| CR | County Roads | 0.4584763726 | $186,000 | $186,000 | $85.28 | | |
| LCIB | Library Sno-Isle BOND (Camano Island) | 0.0396325772 | $186,000 | $186,000 | $7.37 | | |
| LIB | Library Sno-Isle GEN | 0.3153421757 | $186,000 | $186,000 | $58.65 | | |
| SCH205_401 | School 205-401 Enrichment | 1.2698420524 | $186,000 | $186,000 | $236.19 | | |
| SCH205BOND | School 205-401 BOND | 0.9396497583 | $186,000 | $186,000 | $174.77 | | |
| ST | State School | 1.3035497053 | $186,000 | $186,000 | $242.46 | | |
| ST2 | State School Part 2 | 0.8169543533 | $186,000 | $186,000 | $151.95 | | |
| | Total Tax Rate: | 5.9136851902 | | | | | |
| | | | | Taxes w/Current Exemptions: | $1,099.94 | | |
| | | | | Taxes w/o Exemptions: | $1,099.94 | | |
Improvement / Building
Sketch
| No sketches available for this property. |
Property Image
Land
| 1 | 35 | AC (10.00-30.99) | 17.1600 | 747489.60 | 0.00 | 0.00 | 1.00 | $310,000 | $186,000 |
Roll Value History
| 2026 | N/A | N/A | N/A | N/A | N/A |
| 2025 | $0 | $310,000 | $186,000 | $186,000 | $186,000 |
| 2024 | $0 | $300,000 | $180,000 | $180,000 | $180,000 |
| 2023 | $0 | $300,000 | $0 | $300,000 | $300,000 |
| 2022 | $0 | $300,000 | $0 | $300,000 | $300,000 |
| 2021 | $0 | $240,000 | $0 | $240,000 | $240,000 |
| 2020 | $0 | $225,000 | $0 | $225,000 | $225,000 |
| 2019 | $0 | $225,000 | $0 | $225,000 | $225,000 |
| 2018 | $0 | $200,000 | $0 | $200,000 | $200,000 |
| 2017 | $0 | $200,000 | $0 | $200,000 | $200,000 |
| 2016 | $0 | $200,000 | $0 | $200,000 | $200,000 |
| 2015 | $0 | $225,000 | $0 | $225,000 | $225,000 |
| 2014 | $0 | $225,000 | $0 | $225,000 | $225,000 |
| 2013 | $0 | $253,720 | $0 | $253,720 | $253,720 |
| 2012 | $0 | $253,720 | $0 | $253,720 | $253,720 |
| 2011 | $0 | $253,720 | $0 | $253,720 | $253,720 |
| 2010 | $0 | $253,720 | $0 | $253,720 | $253,720 |
| 2009 | $0 | $274,560 | $0 | $274,560 | $274,560 |
| 2008 | $0 | $298,000 | $0 | $298,000 | $298,000 |
| 2007 | $0 | $298,000 | $0 | $298,000 | $298,000 |
Deed and Sales History
| 1 | 08/14/2020 | WD | Warranty Deed | DAVIS, GEOFFREY M | SABLE, JAMES S | | | $120,000.00 | 44378 | 4494526 |
| 2 | 11/03/2005 | BLA | DNU - Boundary Line Adjustment | DAVIS, GEOFFREY M | JONES, ORAN N | | | $0.00 | 70744 | 4144321 |
| 3 | 07/11/2005 | WD | Warranty Deed | JONES, ORAN N | DAVIS, GEOFFREY M | | | $235,000.00 | 53460 | 4141217 |
| 4 | 02/20/2000 | QCD | Quit Claim Deed | JONES, ORAN N | JONES, ORAN N | | | $0.00 | 636 | 20003374 |
| 5 | 02/01/1995 | WD | Warranty Deed | JONES, ORAN N | JONES, ORAN N | | | $75,000.00 | 50472 | 95002258 |
| 6 | 02/01/1995 | QCD | Quit Claim Deed | ALLEN, JEAN P | JONES, ORAN N | | | $0.00 | 50473 | 95002260 |
| 7 | 03/01/1983 | QCD | Quit Claim Deed | PEASE, DORIS E | ALLEN, JEAN P | | | $0.00 | 30784 | 407673 |
| 8 | 01/01/1900 | OTHER | Other - Misc. Documents | Unknown | PEASE, DORIS E | | | $0.00 | 0 | 0 |
Payout Agreement
| No payout information available.. |