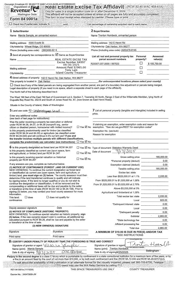
Property
Account |
| Property ID: | 148780 | Abbreviated Legal Description: | 97 - IN GL 5:BG WLN GL5 & SLN DALLMAN RD N88*E354.04' TPB N88*E275.4' S19*W1190.2 NLN RD N39*W158.62' NELY 1120'TPB |
| Geographic ID: | R33014-490-1660 | Agent Code: | |
| Type: | Real | | |
| Tax Area: | 542 - APPRAISER-Stan/Cam Schl Dist, Special Dist, improved, greater than 1 acre | Land Use Code | 11 |
| Open Space: | N | DFL | N |
| Historic Property: | N | Remodel Property: | N |
| Multi-Family Redevelopment: | N | | |
| Township: | 30 | Section: | 14 |
| Range: | R3 |
Location |
| Address: | 1740 DALLMAN RD CAMANO ISLAND, WA 98282 | Mapsco: | |
| Neighborhood: | 58RecamS-East Cam | Map ID: | 871 |
| Neighborhood CD: | 58RecamS |
Owner |
| Name: | VAN HALA TTEE, MATTHEW M | Owner ID: | 311202 |
| Mailing Address: | SARAH M VAN HALA TTEE 1740 DALLMAN RD CAMANO ISLAND, WA 98282 | % Ownership: | 100.0000000000% |
| | | Exemptions: | |
Taxes and Assessment Details
Values
| (+) Improvement Homesite Value: | + | $0 | |
| (+) Improvement Non-Homesite Value: | + | $869,762 | |
| (+) Land Homesite Value: | + | $0 | |
| (+) Land Non-Homesite Value: | + | $300,000 | |
| (+) Curr Use (HS): | + | $0 | $0 |
| (+) Curr Use (NHS): | + | $0 | $0 |
| | | -------------------------- | |
| (=) Market Value: | = | $1,169,762 | |
| (–) Productivity Loss: | – | $0 | |
| | | -------------------------- | |
| (=) Subtotal: | = | $1,169,762 | |
| (+) Senior Appraised Value: | + | $0 | |
| (+) Non-Senior Appraised Value: | + | $1,169,762 | |
| | | -------------------------- | |
| (=) Total Appraised Value: | = | $1,169,762 | |
| (–) Senior Exemption Loss: | – | $0 | |
| (–) Exemption Loss: | – | $0 | |
| | | -------------------------- | |
| (=) Taxable Value: | = | $1,169,762 | |
Taxing Jurisdiction
| Owner: | VAN HALA TTEE, MATTHEW M | | |
| % Ownership: | 100.0000000000% | | |
| Total Value: | $1,169,762 | | |
| Tax Area: | 542 - APPRAISER-Stan/Cam Schl Dist, Special Dist, improved, greater than 1 acre |
| CF | Conservation Futures | 0.0316035091 | $1,169,762 | $1,169,762 | $36.97 | | |
| EMS1 | Fire & Rescue Dist #1 Camano GEN (EMS) | 0.3677864386 | $1,169,762 | $1,169,762 | $430.22 | | |
| FIRE1 | Fire & Rescue Dist #1 Camano GEN | 1.2502910536 | $1,169,762 | $1,169,762 | $1,462.54 | | |
| FIRE1BOND | Fire & Rescue Dist #1 Camano BOND | 0.1570001679 | $1,169,762 | $1,169,762 | $183.65 | | |
| CE | County Current Expense | 0.3708482477 | $1,169,762 | $1,169,762 | $433.80 | | |
| CR | County Roads | 0.4584763726 | $1,169,762 | $1,169,762 | $536.31 | | |
| LCIB | Library Sno-Isle BOND (Camano Island) | 0.0396325772 | $1,169,762 | $1,169,762 | $46.36 | | |
| LIB | Library Sno-Isle GEN | 0.3153421757 | $1,169,762 | $1,169,762 | $368.88 | | |
| SCH205_401 | School 205-401 Enrichment | 1.2698420524 | $1,169,762 | $1,169,762 | $1,485.41 | | |
| SCH205BOND | School 205-401 BOND | 0.9396497583 | $1,169,762 | $1,169,762 | $1,099.17 | | |
| ST | State School | 1.3035497053 | $1,169,762 | $1,169,762 | $1,524.84 | | |
| ST2 | State School Part 2 | 0.8169543533 | $1,169,762 | $1,169,762 | $955.64 | | |
| | Total Tax Rate: | 7.3209764117 | | | | | |
| | | | | Taxes w/Current Exemptions: | $8,563.79 | | |
| | | | | Taxes w/o Exemptions: | $8,563.79 | | |
Improvement / Building
| Improvement #1: | RESIDENTIAL | State Code: | Y | 4501.0 sqft | Value: | $869,762 |
| Bathrooms: | 3 | Bedrooms: | 4 | | Ceiling: | DRYWALL PAINTED | Cooling: | FHA AND AC | | Exterior Wall/Cover: | CEMENT FIBER | Floor Covering: | HARDWOOD/CARP 80-20 | | Floor Structure: | WOOD W/SUBFLOOR | Foundation: | CONCRETE | | Interior Finish: | DRYWALL PAINT | Plumbing Fixture Cnt: | 20 | | Roof Slope: | 6" IN 12" | Roof Structure/Cover: | CJ ASPHALT |
|
| | Type | Description | Class CD | Sub Class CD | Year Built | Area |
| | BAS | BASE/MAIN FLOOR | 4 | 0 | 2024 | 3099.0 |
| | LOF | LOFT | 4 | 0 | 2024 | 1402.0 |
| | AGR | ATTACHED GARAGE | 4 | 0 | 2024 | 984.0 |
| | OP4 | OPEN PORCH W/CEILING-ROOF | 4 | 0 | 2024 | 312.0 |
| | OWC | OPEN WOOD PORCH W/STEPS/ROOF/C | 4 | 0 | 2024 | 857.0 |
| | OP1 | OPEN PORCH SLAB | 4 | 0 | 2024 | 208.0 |
Sketch
| No sketches available for this property. |
Property Image
Land
| 1 | 32 | AC (03.01-09.99) | 5.7400 | 250034.40 | 0.00 | 0.00 | 1.00 | $300,000 | $0 |
Roll Value History
| 2026 | N/A | N/A | N/A | N/A | N/A |
| 2025 | $869,762 | $300,000 | $0 | $1,169,762 | $1,169,762 |
| 2024 | $722,721 | $160,000 | $0 | $882,721 | $882,721 |
| 2023 | $154,234 | $150,000 | $0 | $304,234 | $304,234 |
| 2022 | $0 | $110,000 | $0 | $110,000 | $110,000 |
| 2021 | $0 | $90,000 | $0 | $90,000 | $90,000 |
| 2020 | $0 | $80,000 | $0 | $80,000 | $80,000 |
| 2019 | $0 | $70,000 | $0 | $70,000 | $70,000 |
| 2018 | $0 | $65,000 | $0 | $65,000 | $65,000 |
| 2017 | $0 | $65,000 | $0 | $65,000 | $65,000 |
| 2016 | $0 | $65,000 | $0 | $65,000 | $65,000 |
| 2015 | $0 | $40,000 | $0 | $40,000 | $40,000 |
| 2014 | $0 | $40,000 | $0 | $40,000 | $40,000 |
| 2013 | $0 | $76,342 | $0 | $76,342 | $76,342 |
| 2012 | $0 | $76,342 | $0 | $76,342 | $76,342 |
| 2011 | $0 | $55,800 | $0 | $55,800 | $55,800 |
| 2010 | $0 | $55,800 | $0 | $55,800 | $55,800 |
| 2009 | $0 | $105,600 | $0 | $105,600 | $105,600 |
| 2008 | $0 | $80,000 | $0 | $80,000 | $80,000 |
| 2007 | $0 | $80,000 | $0 | $80,000 | $80,000 |
Deed and Sales History
| 1 | 01/12/2024 | QCD | Quit Claim Deed | VAN HALA, SARAH | VAN HALA TTEE, MATTHEW M | | | $0.00 | 58998 | 4568536 |
| 2 | 01/24/2022 | WD | Warranty Deed | MORGAN, JAMES E | VAN HALA, SARAH | | | $350,000.00 | 51783 | 4538671 |
|   | |
| 3 | 04/01/1978 | OTHER | Other - Misc. Documents | Unknown | MORGAN, JAMES E | | | $12,500.00 | 81804 | 3317030 |
Payout Agreement
| No payout information available.. |