Property
Account |
| Property ID: | 148806 | Abbreviated Legal Description: | 6 - W252.5' OF N/2 NW NW EX RD |
| Geographic ID: | R33014-496-1130 | Agent Code: | |
| Type: | Real | | |
| Tax Area: | 542 - APPRAISER-Stan/Cam Schl Dist, Special Dist, improved, greater than 1 acre | Land Use Code | 11 |
| Open Space: | N | DFL | N |
| Historic Property: | N | Remodel Property: | N |
| Multi-Family Redevelopment: | N | | |
| Township: | 30 | Section: | 14 |
| Range: | R3 |
Location |
| Address: | 3233 BERNIE RD CAMANO ISLAND, WA 98282 | Mapsco: | |
| Neighborhood: | 58NofTamarackS | Map ID: | 871 |
| Neighborhood CD: | 58RntamS |
Owner |
| Name: | MAGNUSON, KAREN | Owner ID: | 316221 |
| Mailing Address: | PO BOX 413 PRESTON, WA 98050 | % Ownership: | 100.0000000000% |
| | | Exemptions: | |
Taxes and Assessment Details
Values
| (+) Improvement Homesite Value: | + | $0 | |
| (+) Improvement Non-Homesite Value: | + | $134,283 | |
| (+) Land Homesite Value: | + | $0 | |
| (+) Land Non-Homesite Value: | + | $320,000 | |
| (+) Curr Use (HS): | + | $0 | $0 |
| (+) Curr Use (NHS): | + | $0 | $0 |
| | | -------------------------- | |
| (=) Market Value: | = | $454,283 | |
| (–) Productivity Loss: | – | $0 | |
| | | -------------------------- | |
| (=) Subtotal: | = | $454,283 | |
| (+) Senior Appraised Value: | + | $0 | |
| (+) Non-Senior Appraised Value: | + | $454,283 | |
| | | -------------------------- | |
| (=) Total Appraised Value: | = | $454,283 | |
| (–) Senior Exemption Loss: | – | $0 | |
| (–) Exemption Loss: | – | $0 | |
| | | -------------------------- | |
| (=) Taxable Value: | = | $454,283 | |
Taxing Jurisdiction
| Owner: | MAGNUSON, KAREN | | |
| % Ownership: | 100.0000000000% | | |
| Total Value: | $454,283 | | |
| Tax Area: | 542 - APPRAISER-Stan/Cam Schl Dist, Special Dist, improved, greater than 1 acre |
| CF | Conservation Futures | 0.0316035091 | $454,283 | $454,283 | $14.36 | | |
| EMS1 | Fire & Rescue Dist #1 Camano GEN (EMS) | 0.3677864386 | $454,283 | $454,283 | $167.08 | | |
| FIRE1 | Fire & Rescue Dist #1 Camano GEN | 1.2502910536 | $454,283 | $454,283 | $567.99 | | |
| FIRE1BOND | Fire & Rescue Dist #1 Camano BOND | 0.1570001679 | $454,283 | $454,283 | $71.32 | | |
| CE | County Current Expense | 0.3708482477 | $454,283 | $454,283 | $168.47 | | |
| CR | County Roads | 0.4584763726 | $454,283 | $454,283 | $208.28 | | |
| LCIB | Library Sno-Isle BOND (Camano Island) | 0.0396325772 | $454,283 | $454,283 | $18.00 | | |
| LIB | Library Sno-Isle GEN | 0.3153421757 | $454,283 | $454,283 | $143.25 | | |
| SCH205_401 | School 205-401 Enrichment | 1.2698420524 | $454,283 | $454,283 | $576.87 | | |
| SCH205BOND | School 205-401 BOND | 0.9396497583 | $454,283 | $454,283 | $426.87 | | |
| ST | State School | 1.3035497053 | $454,283 | $454,283 | $592.18 | | |
| ST2 | State School Part 2 | 0.8169543533 | $454,283 | $454,283 | $371.13 | | |
| | Total Tax Rate: | 7.3209764117 | | | | | |
| | | | | Taxes w/Current Exemptions: | $3,325.80 | | |
| | | | | Taxes w/o Exemptions: | $3,325.80 | | |
Improvement / Building
| Improvement #1: | RESIDENTIAL | State Code: | Y | 1568.0 sqft | Value: | $134,283 |
| Bathrooms: | 1 | Bedrooms: | 2 | | Ceiling: | DRYWALL PAINTED | Exterior Wall/Cover: | PLY/HARDBOARD T-111 | | Floor Covering: | CARPET/VINYL 80-20 | Floor Structure: | WOOD W/SUBFLOOR | | Foundation: | CONCRETE | Heating: | (NONE) | | Interior Finish: | DRYWALL PAINT | Plumbing Fixture Cnt: | 6 | | Roof Slope: | 8" IN 12" | Roof Structure/Cover: | CJ ALUMINIUM HEAVY |
|
| | Type | Description | Class CD | Sub Class CD | Year Built | Area |
| | BAS | BASE/MAIN FLOOR | 3 | 0 | 1936 | 1072.0 |
| | AGR | ATTACHED GARAGE | 3 | 0 | 1936 | 896.0 |
| | UPS | UPPER STORY | 3 | 0 | 1936 | 496.0 |
| | OWP | OPEN WOOD PORCH W/STEPS | 3 | 0 | 1936 | 80.0 |
| | OWP | OPEN WOOD PORCH W/STEPS | 3 | 0 | 1936 | 57.5 |
| | OWP | OPEN WOOD PORCH W/STEPS | 3 | 0 | 1936 | 120.0 |
| | UTY | STORAGE/UTILITY | 3 | 0 | 1936 | 120.0 |
| | UTY | STORAGE/UTILITY | 3 | 0 | 1936 | 120.0 |
| | UTY | STORAGE/UTILITY | 3 | 0 | 1936 | 90.0 |
Sketch
| No sketches available for this property. |
Property Image
Land
| 1 | 32 | AC (03.01-09.99) | 3.7200 | 162043.20 | 0.00 | 0.00 | 1.00 | $320,000 | $0 |
Roll Value History
| 2026 | N/A | N/A | N/A | N/A | N/A |
| 2025 | $134,283 | $320,000 | $0 | $454,283 | $454,283 |
| 2024 | $189,609 | $280,000 | $0 | $469,609 | $469,609 |
| 2023 | $192,810 | $260,000 | $0 | $452,810 | $154,994 |
| 2022 | $177,486 | $210,000 | $0 | $387,486 | $154,994 |
| 2021 | $86,590 | $160,000 | $0 | $246,590 | $84,722 |
| 2020 | $84,876 | $150,000 | $0 | $234,876 | $84,722 |
| 2019 | $61,057 | $200,000 | $0 | $261,057 | $84,722 |
| 2018 | $61,305 | $165,000 | $0 | $226,305 | $84,722 |
| 2017 | $61,805 | $150,000 | $0 | $211,805 | $84,722 |
| 2016 | $62,801 | $130,000 | $0 | $192,801 | $192,801 |
| 2015 | $41,187 | $84,000 | $0 | $125,187 | $125,187 |
| 2014 | $42,000 | $84,000 | $0 | $126,000 | $126,000 |
| 2013 | $42,814 | $62,496 | $0 | $105,310 | $105,310 |
| 2012 | $43,625 | $62,496 | $0 | $106,121 | $106,121 |
| 2011 | $44,439 | $93,000 | $0 | $137,439 | $137,439 |
| 2010 | $44,785 | $93,000 | $0 | $137,785 | $137,785 |
| 2009 | $44,205 | $120,000 | $0 | $164,205 | $164,205 |
| 2008 | $44,415 | $86,000 | $0 | $130,415 | $130,415 |
| 2007 | $44,573 | $86,000 | $0 | $130,573 | $130,573 |
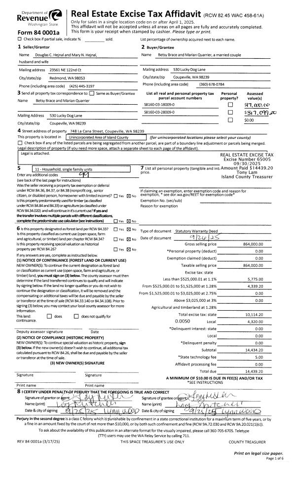
Deed and Sales History
| 1 | 04/23/2025 | WD | Warranty Deed | MARKURT LLC | MAGNUSON, KAREN | | | $420,000.00 | 63234 | 4584899 |
| 2 | 11/14/2024 | WD | Warranty Deed | MCCULLOUGH, KATHLEEN E | MARKURT LLC | | | $240,000.00 | 61858 | 4579506 |
| 3 | 09/15/2022 | QCD | Quit Claim Deed | BOE, JOHN | MCCULLOUGH, KATHLEEN E | | | $0.00 | 54555 | 4551279 |
| 4 | 07/24/2008 | PRD | Personal Representatives Deed | Unknown | BOE, JOHN | | | $0.00 | 82034 | 4234235 |
Payout Agreement
| No payout information available.. |