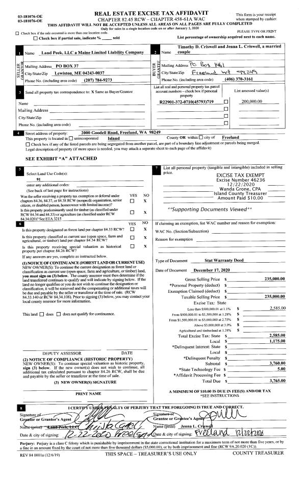
Property
Account |
| Property ID: | 148904 | Abbreviated Legal Description: | 10 - IN GL1: BG SWCR GL1 E2040.69' N34*W192' N8*W175 N40*W100' N49*W90' TPB N49*W60' N40*E130' TO HITDLN SE ALG SD LN TP N40*E FR TPB S40*W120' TPB INCL ADJ TIDES TGW EZ |
| Geographic ID: | R33018-054-1790 | Agent Code: | |
| Type: | Real | | |
| Tax Area: | 730 - APPRAISER-S Whid Schl Dist, Special District, improved & less than 1 acre | Land Use Code | 11 |
| Open Space: | N | DFL | N |
| Historic Property: | N | Remodel Property: | N |
| Multi-Family Redevelopment: | N | | |
| Township: | 30 | Section: | 18 |
| Range: | R3 |
Location |
| Address: | 3563 BELLS BEACH RD LANGLEY, WA 98260 | Mapsco: | |
| Neighborhood: | Cycle 4 | Map ID: | 876 |
| Neighborhood CD: | 4 |
Owner |
| Name: | 3563 BELLS BEACH, LLC | Owner ID: | 295175 |
| Mailing Address: | 3308 43RD AVE NE SEATTLE, WA 98105 | % Ownership: | 100.0000000000% |
| | | Exemptions: | |
Taxes and Assessment Details
Values
| (+) Improvement Homesite Value: | + | $0 | |
| (+) Improvement Non-Homesite Value: | + | $591,295 | |
| (+) Land Homesite Value: | + | $0 | |
| (+) Land Non-Homesite Value: | + | $700,600 | |
| (+) Curr Use (HS): | + | $0 | $0 |
| (+) Curr Use (NHS): | + | $0 | $0 |
| | | -------------------------- | |
| (=) Market Value: | = | $1,291,895 | |
| (–) Productivity Loss: | – | $0 | |
| | | -------------------------- | |
| (=) Subtotal: | = | $1,291,895 | |
| (+) Senior Appraised Value: | + | $0 | |
| (+) Non-Senior Appraised Value: | + | $1,291,895 | |
| | | -------------------------- | |
| (=) Total Appraised Value: | = | $1,291,895 | |
| (–) Senior Exemption Loss: | – | $0 | |
| (–) Exemption Loss: | – | $0 | |
| | | -------------------------- | |
| (=) Taxable Value: | = | $1,291,895 | |
Taxing Jurisdiction
| Owner: | 3563 BELLS BEACH, LLC | | |
| % Ownership: | 100.0000000000% | | |
| Total Value: | $1,291,895 | | |
| Tax Area: | 730 - APPRAISER-S Whid Schl Dist, Special District, improved & less than 1 acre |
| CF | Conservation Futures | 0.0316035091 | $1,291,895 | $1,291,895 | $40.83 | | |
| FIRE3 | Fire & Rescue Dist #3 S Whidbey GEN | 1.2004855531 | $1,291,895 | $1,291,895 | $1,550.90 | | |
| HOBOND | Hospital BOND | 0.1910887512 | $1,291,895 | $1,291,895 | $246.87 | | |
| HOGEN | Hospital GEN | 0.3902502903 | $1,291,895 | $1,291,895 | $504.16 | | |
| CE | County Current Expense | 0.3708482477 | $1,291,895 | $1,291,895 | $479.10 | | |
| CR | County Roads | 0.4584763726 | $1,291,895 | $1,291,895 | $592.30 | | |
| ISLANDEMS | Hospital GEN (EMS) | 0.5000000000 | $1,291,895 | $1,291,895 | $645.95 | | |
| LIB | Library Sno-Isle GEN | 0.3153421757 | $1,291,895 | $1,291,895 | $407.39 | | |
| PORTWHID | Port of S Whidbey GEN | 0.1094540357 | $1,291,895 | $1,291,895 | $141.40 | | |
| SCH206BOND | School 206 BOND | 0.3161759235 | $1,291,895 | $1,291,895 | $408.47 | | |
| SCH206MO | School 206 Enrichment | 0.4547169547 | $1,291,895 | $1,291,895 | $587.45 | | |
| ST | State School | 1.3035497053 | $1,291,895 | $1,291,895 | $1,684.05 | | |
| ST2 | State School Part 2 | 0.8169543533 | $1,291,895 | $1,291,895 | $1,055.42 | | |
| SWHIDPRBD | P & R S Whidbey BOND | 0.0152817568 | $1,291,895 | $1,291,895 | $19.74 | | |
| SWHIDPRBD2 | P & R S Whidbey BOND2 | 0.0138911264 | $1,291,895 | $1,291,895 | $17.95 | | |
| SWHIDPRMT | P & R S Whidbey GEN | 0.2053334452 | $1,291,895 | $1,291,895 | $265.27 | | |
| | Total Tax Rate: | 6.6934522006 | | | | | |
| | | | | Taxes w/Current Exemptions: | $8,647.25 | | |
| | | | | Taxes w/o Exemptions: | $8,647.25 | | |
Improvement / Building
| Improvement #1: | RESIDENTIAL | State Code: | Y | 2342.0 sqft | Value: | $591,295 |
| Bathrooms: | 2 | Bedrooms: | 4 | | Ceiling: | DRY WALL SPRAYED | Cooling: | HEAT PUMP/CONV/V | | Exterior Wall/Cover: | WOOD SIDING | Floor Covering: | HARDWOOD/CARP 60-40 | | Floor Structure: | WOOD W/SUBFLOOR | Foundation: | CONCRETE | | Interior Finish: | DRYWALL PAINT | Plumbing Fixture Cnt: | 12 | | Roof Slope: | 4" IN 12" | Roof Structure/Cover: | CJ ASPHALT |
|
| | Type | Description | Class CD | Sub Class CD | Year Built | Area |
| | BAS | BASE/MAIN FLOOR | 4 | 0 | 1982 | 1514.0 |
| | UB8 | BASEMENT UNFINISHED 8" | 4 | 0 | 1982 | 688.0 |
| | AGR | ATTACHED GARAGE | 4 | 0 | 1982 | 528.0 |
| | UPS | UPPER STORY | 4 | 0 | 1982 | 828.0 |
| | OWP | OPEN WOOD PORCH W/STEPS | 4 | 0 | 1982 | 626.0 |
| | OWP | OPEN WOOD PORCH W/STEPS | 4 | 0 | 1982 | 248.0 |
| | OWC | OPEN WOOD PORCH W/STEPS/ROOF/C | 4 | 0 | 1982 | 36.0 |
| | OWC | OPEN WOOD PORCH W/STEPS/ROOF/C | 4 | 0 | 1982 | 32.0 |
Sketch
Property Image
Land
| 1 | LB | LOW BANK | 0.3447 | 15015.13 | 60.00 | 0.00 | 1.00 | $700,000 | $0 |
| 2 | 55 | TIDES | 0.0000 | 0.00 | 60.00 | 0.00 | 1.00 | $600 | $0 |
Roll Value History
| 2026 | N/A | N/A | N/A | N/A | N/A |
| 2025 | $591,295 | $700,600 | $0 | $1,291,895 | $1,291,895 |
| 2024 | $598,071 | $700,600 | $0 | $1,298,671 | $1,298,671 |
| 2023 | $604,848 | $700,600 | $0 | $1,305,448 | $1,305,448 |
| 2022 | $552,313 | $750,600 | $0 | $1,302,913 | $1,302,913 |
| 2021 | $484,539 | $500,600 | $0 | $985,139 | $985,139 |
| 2020 | $359,545 | $475,600 | $0 | $835,145 | $835,145 |
| 2019 | $272,976 | $450,600 | $0 | $723,576 | $723,576 |
| 2018 | $273,795 | $450,600 | $0 | $724,395 | $724,395 |
| 2017 | $275,436 | $450,600 | $0 | $726,036 | $726,036 |
| 2016 | $278,713 | $450,600 | $0 | $729,313 | $729,313 |
| 2015 | $281,993 | $450,600 | $0 | $732,593 | $732,593 |
| 2014 | $279,221 | $450,600 | $0 | $729,821 | $729,821 |
| 2013 | $223,376 | $408,480 | $0 | $631,856 | $631,856 |
| 2012 | $226,661 | $408,480 | $0 | $635,141 | $635,141 |
| 2011 | $229,948 | $408,480 | $0 | $638,428 | $638,428 |
| 2010 | $238,255 | $408,480 | $0 | $646,735 | $646,735 |
| 2009 | $248,827 | $480,786 | $0 | $729,613 | $729,613 |
| 2008 | $258,895 | $451,122 | $0 | $710,017 | $710,017 |
| 2007 | $262,242 | $317,907 | $0 | $580,149 | $580,149 |
Deed and Sales History
| 1 | 07/01/2020 | WD | Warranty Deed | HAMLIN, WHITNEY DANZ | 3563 BELLS BEACH, LLC | | | $1,655,000.00 | 43788 | 4491262 |
| 2 | 03/27/2013 | WD | Warranty Deed | LEWIS, LAVERNE A | HAMLIN, WHITNEY DANZ | | | $650,000.00 | 10918 | 4337063 |
| 3 | 02/01/1994 | WD | Warranty Deed | LEWIS, LAVERNE A | LEWIS, LAVERNE A | | | $0.00 | 40549 | 94003516 |
| 4 | 08/01/1992 | OTHER | Other - Misc. Documents | LEWIS, STANLEY G | LEWIS, LAVERNE A | | | $0.00 | 65014 | 0 |
| 5 | 01/01/1980 | EXECUTORD | Executor Deed | WALLACE, GLADNEY T | LEWIS, STANLEY G | | | $48,000.00 | 169 | 364025 |
| 6 | 01/01/1900 | OTHER | Other - Misc. Documents | Unknown | WALLACE, GLADNEY T | | | $0.00 | 0 | 0 |
Payout Agreement
| No payout information available.. |