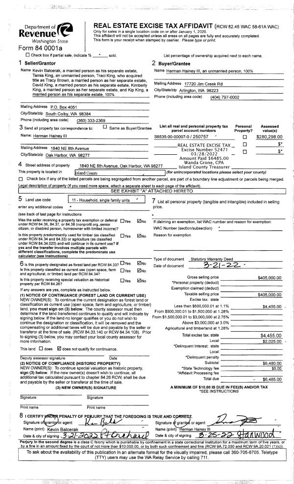
Property
Account |
| Property ID: | 149084 | Abbreviated Legal Description: | 91 - IN GL4: BG SW CR NW SE E660.59' TPB S01*E334.15' W644.51' TO RD N06*W48.95' N86' TO NLN GL4 E640.59' TPB EX RD |
| Geographic ID: | R33023-120-3000 | Agent Code: | |
| Type: | Real | | |
| Tax Area: | 542 - APPRAISER-Stan/Cam Schl Dist, Special Dist, improved, greater than 1 acre | Land Use Code | 11 |
| Open Space: | N | DFL | N |
| Historic Property: | N | Remodel Property: | N |
| Multi-Family Redevelopment: | N | | |
| Township: | 30 | Section: | 23 |
| Range: | R3 |
Location |
| Address: | 1812 WILDE RIDGE DR CAMANO ISLAND, WA 98282 | Mapsco: | |
| Neighborhood: | 58SofTamarackAC | Map ID: | 883 |
| Neighborhood CD: | 58RstamAC |
Owner |
| Name: | LIEN, BRYCE E | Owner ID: | 275790 |
| Mailing Address: | 1812 WILDE RIDGE DR CAMANO ISLAND, WA 98282 | % Ownership: | 100.0000000000% |
| | | Exemptions: | |
Taxes and Assessment Details
Values
| (+) Improvement Homesite Value: | + | $0 | |
| (+) Improvement Non-Homesite Value: | + | $215,036 | |
| (+) Land Homesite Value: | + | $0 | |
| (+) Land Non-Homesite Value: | + | $370,000 | |
| (+) Curr Use (HS): | + | $0 | $0 |
| (+) Curr Use (NHS): | + | $0 | $0 |
| | | -------------------------- | |
| (=) Market Value: | = | $585,036 | |
| (–) Productivity Loss: | – | $0 | |
| | | -------------------------- | |
| (=) Subtotal: | = | $585,036 | |
| (+) Senior Appraised Value: | + | $0 | |
| (+) Non-Senior Appraised Value: | + | $585,036 | |
| | | -------------------------- | |
| (=) Total Appraised Value: | = | $585,036 | |
| (–) Senior Exemption Loss: | – | $0 | |
| (–) Exemption Loss: | – | $0 | |
| | | -------------------------- | |
| (=) Taxable Value: | = | $585,036 | |
Taxing Jurisdiction
| Owner: | LIEN, BRYCE E | | |
| % Ownership: | 100.0000000000% | | |
| Total Value: | $585,036 | | |
| Tax Area: | 542 - APPRAISER-Stan/Cam Schl Dist, Special Dist, improved, greater than 1 acre |
| CF | Conservation Futures | 0.0316035091 | $585,036 | $585,036 | $18.49 | | |
| EMS1 | Fire & Rescue Dist #1 Camano GEN (EMS) | 0.3677864386 | $585,036 | $585,036 | $215.17 | | |
| FIRE1 | Fire & Rescue Dist #1 Camano GEN | 1.2502910536 | $585,036 | $585,036 | $731.47 | | |
| FIRE1BOND | Fire & Rescue Dist #1 Camano BOND | 0.1570001679 | $585,036 | $585,036 | $91.85 | | |
| CE | County Current Expense | 0.3708482477 | $585,036 | $585,036 | $216.96 | | |
| CR | County Roads | 0.4584763726 | $585,036 | $585,036 | $268.23 | | |
| LCIB | Library Sno-Isle BOND (Camano Island) | 0.0396325772 | $585,036 | $585,036 | $23.19 | | |
| LIB | Library Sno-Isle GEN | 0.3153421757 | $585,036 | $585,036 | $184.49 | | |
| SCH205_401 | School 205-401 Enrichment | 1.2698420524 | $585,036 | $585,036 | $742.90 | | |
| SCH205BOND | School 205-401 BOND | 0.9396497583 | $585,036 | $585,036 | $549.73 | | |
| ST | State School | 1.3035497053 | $585,036 | $585,036 | $762.62 | | |
| ST2 | State School Part 2 | 0.8169543533 | $585,036 | $585,036 | $477.95 | | |
| | Total Tax Rate: | 7.3209764117 | | | | | |
| | | | | Taxes w/Current Exemptions: | $4,283.05 | | |
| | | | | Taxes w/o Exemptions: | $4,283.05 | | |
Improvement / Building
| Improvement #1: | MANUFACTURED HOME | State Code: | Y | 2088.0 sqft | Value: | $215,036 |
| Bathrooms: | 0 | Bedrooms: | 0 | | Ceiling: | PLASTER PAINTED | Cooling: | EVAP NO DUCT | | Exterior Wall/Cover: | VINYL | Floor Covering: | CARPET 100% | | Floor Structure: | SLAB ON GRADE | Foundation: | SLAB | | Heating: | FHA ELECTRIC | Interior Finish: | PLASTER | | Plumbing Fixture Cnt: | 1 | Roof Slope: | FLAT | | Roof Structure/Cover: | CJ ALUMINIUM HEAVY |   |   |
|
| | Type | Description | Class CD | Sub Class CD | Year Built | Area |
| | BAS | BASE/MAIN FLOOR | 5 | 0 | 2000 | 2088.0 |
| | OWC | OPEN WOOD PORCH W/STEPS/ROOF/C | 5 | 0 | 2000 | 208.0 |
| | DGR | DETACHED GARAGE | 5 | 0 | 2000 | 649.2 |
| | oCAR | CARPORT | 5 | 0 | 2000 | 610.0 |
| Improvement #2: | RESIDENTIAL | State Code: | Y | 1169.7 sqft | Value: | $0 |
| Bathrooms: | 1.5 | Bedrooms: | 1 | | Ceiling: | DRYWALL PAINTED | Exterior Wall/Cover: | CEMENT FIBER | | Floor Covering: | (NONE) | Floor Structure: | WOOD W/SUBFLOOR | | Foundation: | SLAB | Heating: | (NONE) | | Interior Finish: | DRYWALL PAINT | Plumbing Fixture Cnt: | 9 | | Roof Slope: | 6" IN 12" | Roof Structure/Cover: | CJ ASPHALT |
|
| | Type | Description | Class CD | Sub Class CD | Year Built | Area |
| | BAS | BASE/MAIN FLOOR | 3 | 0 | 2024 | 1169.7 |
| | BIG | BUILT IN GARAGE | 3 | 0 | 2024 | 1199.0 |
| | OCP | OPEN CARPORT | 3 | 0 | 2024 | 365.0 |
| | OWP | OPEN WOOD PORCH W/STEPS | 3 | 0 | 2024 | 0.0 |
Sketch
Property Image
Land
| 1 | 32 | AC (03.01-09.99) | 4.9200 | 214315.20 | 0.00 | 0.00 | 1.00 | $370,000 | $0 |
Roll Value History
| 2026 | N/A | N/A | N/A | N/A | N/A |
| 2025 | $215,036 | $370,000 | $0 | $585,036 | $585,036 |
| 2024 | $220,480 | $340,000 | $0 | $560,480 | $560,480 |
| 2023 | $196,458 | $320,000 | $0 | $516,458 | $516,458 |
| 2022 | $182,166 | $260,000 | $0 | $442,166 | $442,166 |
| 2021 | $136,280 | $190,000 | $0 | $326,280 | $326,280 |
| 2020 | $135,828 | $170,000 | $0 | $305,828 | $305,828 |
| 2019 | $109,777 | $215,000 | $0 | $324,777 | $324,777 |
| 2018 | $112,557 | $175,000 | $0 | $287,557 | $287,557 |
| 2017 | $115,338 | $150,000 | $0 | $265,338 | $265,338 |
| 2016 | $118,117 | $150,000 | $0 | $268,117 | $268,117 |
| 2015 | $120,722 | $125,000 | $0 | $245,722 | $245,722 |
| 2014 | $123,017 | $125,000 | $0 | $248,017 | $248,017 |
| 2013 | $110,997 | $137,760 | $0 | $248,757 | $248,757 |
| 2012 | $112,800 | $137,760 | $0 | $250,560 | $250,560 |
| 2011 | $113,701 | $130,000 | $0 | $243,701 | $243,701 |
| 2010 | $128,633 | $130,000 | $0 | $258,633 | $258,633 |
| 2009 | $129,004 | $150,000 | $0 | $279,004 | $279,004 |
| 2008 | $131,905 | $155,000 | $0 | $286,905 | $286,905 |
| 2007 | $134,768 | $130,000 | $0 | $264,768 | $264,768 |
Deed and Sales History
| 1 | 06/17/2016 | WD | Warranty Deed | FORTUNE, ALAN L | LIEN, BRYCE E | | | $344,000.00 | 24913 | 4401781 |
| 2 | 01/06/2006 | QCD | Quit Claim Deed | FORTUNE, ALAN L | FORTUNE, ALAN L | | | $0.00 | 60079 | 4159208 |
| 3 | 06/15/2005 | WD | Warranty Deed | RICHARDSON, DONALD N | FORTUNE, ALAN L | | | $300,000.00 | 52888 | 4138304 |
| 4 | 01/15/2000 | PACD | Purchaser's Assignment | RICHARDSON, DONALD N | RICHARDSON, DONALD N | | | $76,921.00 | 0 | 0 |
| 5 | 04/01/1978 | OTHER | Other - Misc. Documents | Unknown | RICHARDSON, DONALD N | | | $14,950.00 | 81648 | 3311950 |
Payout Agreement
| No payout information available.. |