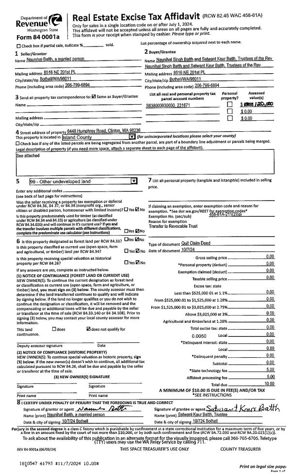
Property
Account |
| Property ID: | 14914 | Abbreviated Legal Description: | 58 - SE NE NE SE TGW & SUBJ TO EZ |
| Geographic ID: | R13205-213-5130 | Agent Code: | |
| Type: | Real | | |
| Tax Area: | 112 - APPRAISER-OH Schl Dist, outside OH, improved, greater than 1 acre | Land Use Code | 11 |
| Open Space: | N | DFL | N |
| Historic Property: | N | Remodel Property: | N |
| Multi-Family Redevelopment: | N | | |
| Township: | 32 | Section: | 05 |
| Range: | R1 |
Location |
| Address: | 2160 BOULDER MEADOW LN OAK HARBOR, WA 98277 | Mapsco: | |
| Neighborhood: | Cycle 1 | Map ID: | 99 |
| Neighborhood CD: | 1 |
Owner |
| Name: | RAMOS, CHRISTOPHER G | Owner ID: | 70324 |
| Mailing Address: | CAROLINE M RAMOS 2160 BOULDER MEADOW LN OAK HARBOR, WA 98277-8849 | % Ownership: | 100.0000000000% |
| | | Exemptions: | |
Taxes and Assessment Details
Values
| (+) Improvement Homesite Value: | + | $0 | |
| (+) Improvement Non-Homesite Value: | + | $389,860 | |
| (+) Land Homesite Value: | + | $0 | |
| (+) Land Non-Homesite Value: | + | $260,000 | |
| (+) Curr Use (HS): | + | $0 | $0 |
| (+) Curr Use (NHS): | + | $0 | $0 |
| | | -------------------------- | |
| (=) Market Value: | = | $649,860 | |
| (–) Productivity Loss: | – | $0 | |
| | | -------------------------- | |
| (=) Subtotal: | = | $649,860 | |
| (+) Senior Appraised Value: | + | $0 | |
| (+) Non-Senior Appraised Value: | + | $649,860 | |
| | | -------------------------- | |
| (=) Total Appraised Value: | = | $649,860 | |
| (–) Senior Exemption Loss: | – | $0 | |
| (–) Exemption Loss: | – | $0 | |
| | | -------------------------- | |
| (=) Taxable Value: | = | $649,860 | |
Taxing Jurisdiction
| Owner: | RAMOS, CHRISTOPHER G | | |
| % Ownership: | 100.0000000000% | | |
| Total Value: | $649,860 | | |
| Tax Area: | 112 - APPRAISER-OH Schl Dist, outside OH, improved, greater than 1 acre |
| CF | Conservation Futures | 0.0316035091 | $649,860 | $649,860 | $20.54 | | |
| CEM1 | Cemetery #1 | 0.0040320932 | $649,860 | $649,860 | $2.62 | | |
| FIRE2 | Fire & Rescue Dist #2 N Whidbey GEN | 0.5475949600 | $649,860 | $649,860 | $355.86 | | |
| HOBOND | Hospital BOND | 0.1910887512 | $649,860 | $649,860 | $124.18 | | |
| HOGEN | Hospital GEN | 0.3902502903 | $649,860 | $649,860 | $253.61 | | |
| CE | County Current Expense | 0.3708482477 | $649,860 | $649,860 | $241.00 | | |
| CR | County Roads | 0.4584763726 | $649,860 | $649,860 | $297.95 | | |
| ISLANDEMS | Hospital GEN (EMS) | 0.5000000000 | $649,860 | $649,860 | $324.93 | | |
| LIB | Library Sno-Isle GEN | 0.3153421757 | $649,860 | $649,860 | $204.93 | | |
| NWHIDPRMT | P & R N Whidbey GEN | 0.2004466701 | $649,860 | $649,860 | $130.26 | | |
| SCH201MO | School 201 Enrichment | 1.8559231640 | $649,860 | $649,860 | $1,206.09 | | |
| ST | State School | 1.3035497053 | $649,860 | $649,860 | $847.12 | | |
| ST2 | State School Part 2 | 0.8169543533 | $649,860 | $649,860 | $530.91 | | |
| | Total Tax Rate: | 6.9861102925 | | | | | |
| | | | | Taxes w/Current Exemptions: | $4,540.00 | | |
| | | | | Taxes w/o Exemptions: | $4,540.00 | | |
Improvement / Building
| Improvement #1: | RESIDENTIAL | State Code: | Y | 2039.2 sqft | Value: | $389,860 |
| Bathrooms: | 2 | Bedrooms: | 3 | | Ceiling: | DRYWALL PAINTED | Exterior Wall/Cover: | WOOD SIDING | | Floor Covering: | CARPET/VINYL 20-80 | Floor Structure: | WOOD W/SUBFLOOR | | Foundation: | CONCRETE | Heating: | FHA ELECTRIC | | Interior Finish: | DRYWALL PAINT | Plumbing Fixture Cnt: | 9 | | Roof Slope: | 4" IN 12" | Roof Structure/Cover: | CJ ASPHALT |
|
| | Type | Description | Class CD | Sub Class CD | Year Built | Area |
| | BAS | BASE/MAIN FLOOR | 3 | 0 | 1984 | 2039.2 |
| | OP4 | OPEN PORCH W/CEILING-ROOF | 3 | 0 | 1984 | 24.0 |
| | DGR | DETACHED GARAGE | 3 | 0 | 1984 | 864.0 |
| | AGR | ATTACHED GARAGE | 3 | 0 | 1984 | 528.0 |
| | OWP | OPEN WOOD PORCH W/STEPS | 3 | 0 | 1984 | 182.0 |
| | ENP | ENCLOSED PORCH | 3 | 0 | 1984 | 156.0 |
| | ENP | ENCLOSED PORCH | 3 | 0 | 1984 | 96.0 |
| | AGR | ATTACHED GARAGE | 3 | 0 | 1984 | 1080.0 |
| | UTY | STORAGE/UTILITY | 3 | 0 | 1984 | 192.0 |
| | OCP | OPEN CARPORT | 3 | 0 | 1984 | 192.0 |
Sketch
Property Image
Land
| 1 | 18 | AC (02.01-03.00) | 2.5000 | 108900.00 | 0.00 | 0.00 | 1.00 | $260,000 | $0 |
Roll Value History
| 2026 | N/A | N/A | N/A | N/A | N/A |
| 2025 | $389,860 | $260,000 | $0 | $649,860 | $649,860 |
| 2024 | $394,907 | $250,000 | $0 | $644,907 | $644,907 |
| 2023 | $389,860 | $240,000 | $0 | $629,860 | $629,860 |
| 2022 | $357,579 | $220,000 | $0 | $577,579 | $577,579 |
| 2021 | $314,921 | $180,000 | $0 | $494,921 | $494,921 |
| 2020 | $307,637 | $140,000 | $0 | $447,637 | $447,637 |
| 2019 | $236,632 | $200,000 | $0 | $436,632 | $436,632 |
| 2018 | $237,359 | $160,000 | $0 | $397,359 | $397,359 |
| 2017 | $219,651 | $150,000 | $0 | $369,651 | $369,651 |
| 2016 | $222,056 | $120,000 | $0 | $342,056 | $342,056 |
| 2015 | $224,463 | $90,000 | $0 | $314,463 | $314,463 |
| 2014 | $226,868 | $90,000 | $0 | $316,868 | $316,868 |
| 2013 | $229,273 | $102,000 | $0 | $331,273 | $331,273 |
| 2012 | $231,681 | $102,000 | $0 | $333,681 | $333,681 |
| 2011 | $231,841 | $120,000 | $0 | $351,841 | $351,841 |
| 2010 | $237,919 | $120,000 | $0 | $357,919 | $357,919 |
| 2009 | $221,462 | $200,000 | $0 | $421,462 | $421,462 |
| 2008 | $195,425 | $132,000 | $0 | $327,425 | $327,425 |
| 2007 | $198,029 | $132,000 | $0 | $330,029 | $330,029 |
Deed and Sales History
| 1 | 08/27/2008 | WD | Warranty Deed | MITCHELL, WILLIAM J | RAMOS, CHRISTOPHER G | | | $415,000.00 | 82280 | 4235832 |
| 2 | 08/01/1979 | REC | Real Estate Contract | GALBRAITH, WILLIAM R | MITCHELL, WILLIAM J | | | $20,500.00 | 94146 | 357706 |
| 3 | 01/01/1900 | OTHER | Other - Misc. Documents | Unknown | GALBRAITH, WILLIAM R | | | $0.00 | 0 | 0 |
Payout Agreement
| No payout information available.. |