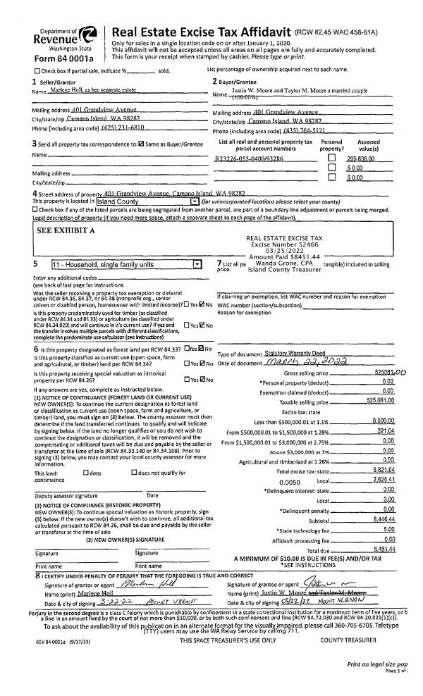
Property
Account |
| Property ID: | 149360 | Abbreviated Legal Description: | 54 - S/2 SW SW NE EX RD |
| Geographic ID: | R33023-281-2950 | Agent Code: | |
| Type: | Real | | |
| Tax Area: | 542 - APPRAISER-Stan/Cam Schl Dist, Special Dist, improved, greater than 1 acre | Land Use Code | 11 |
| Open Space: | N | DFL | N |
| Historic Property: | N | Remodel Property: | N |
| Multi-Family Redevelopment: | N | | |
| Township: | 30 | Section: | 23 |
| Range: | R3 |
Location |
| Address: | 4389 SOUTH CAMANO DR CAMANO ISLAND, WA 98282 | Mapsco: | |
| Neighborhood: | 58SofTamarackAC | Map ID: | 885 |
| Neighborhood CD: | 58RstamAC |
Owner |
| Name: | SMITH, GREG | Owner ID: | 293603 |
| Mailing Address: | MARITA SMITH 4389 S CAMANO DR CAMANO ISLAND, WA 98282 | % Ownership: | 100.0000000000% |
| | | Exemptions: | |
Taxes and Assessment Details
Values
| (+) Improvement Homesite Value: | + | $0 | |
| (+) Improvement Non-Homesite Value: | + | $314,866 | |
| (+) Land Homesite Value: | + | $0 | |
| (+) Land Non-Homesite Value: | + | $320,000 | |
| (+) Curr Use (HS): | + | $0 | $0 |
| (+) Curr Use (NHS): | + | $0 | $0 |
| | | -------------------------- | |
| (=) Market Value: | = | $634,866 | |
| (–) Productivity Loss: | – | $0 | |
| | | -------------------------- | |
| (=) Subtotal: | = | $634,866 | |
| (+) Senior Appraised Value: | + | $0 | |
| (+) Non-Senior Appraised Value: | + | $634,866 | |
| | | -------------------------- | |
| (=) Total Appraised Value: | = | $634,866 | |
| (–) Senior Exemption Loss: | – | $0 | |
| (–) Exemption Loss: | – | $0 | |
| | | -------------------------- | |
| (=) Taxable Value: | = | $634,866 | |
Taxing Jurisdiction
| Owner: | SMITH, GREG | | |
| % Ownership: | 100.0000000000% | | |
| Total Value: | $634,866 | | |
| Tax Area: | 542 - APPRAISER-Stan/Cam Schl Dist, Special Dist, improved, greater than 1 acre |
| CF | Conservation Futures | 0.0316035091 | $634,866 | $634,866 | $20.06 | | |
| EMS1 | Fire & Rescue Dist #1 Camano GEN (EMS) | 0.3677864386 | $634,866 | $634,866 | $233.50 | | |
| FIRE1 | Fire & Rescue Dist #1 Camano GEN | 1.2502910536 | $634,866 | $634,866 | $793.77 | | |
| FIRE1BOND | Fire & Rescue Dist #1 Camano BOND | 0.1570001679 | $634,866 | $634,866 | $99.67 | | |
| CE | County Current Expense | 0.3708482477 | $634,866 | $634,866 | $235.44 | | |
| CR | County Roads | 0.4584763726 | $634,866 | $634,866 | $291.07 | | |
| LCIB | Library Sno-Isle BOND (Camano Island) | 0.0396325772 | $634,866 | $634,866 | $25.16 | | |
| LIB | Library Sno-Isle GEN | 0.3153421757 | $634,866 | $634,866 | $200.20 | | |
| SCH205_401 | School 205-401 Enrichment | 1.2698420524 | $634,866 | $634,866 | $806.18 | | |
| SCH205BOND | School 205-401 BOND | 0.9396497583 | $634,866 | $634,866 | $596.55 | | |
| ST | State School | 1.3035497053 | $634,866 | $634,866 | $827.58 | | |
| ST2 | State School Part 2 | 0.8169543533 | $634,866 | $634,866 | $518.66 | | |
| | Total Tax Rate: | 7.3209764117 | | | | | |
| | | | | Taxes w/Current Exemptions: | $4,647.84 | | |
| | | | | Taxes w/o Exemptions: | $4,647.84 | | |
Improvement / Building
| Improvement #1: | RESIDENTIAL | State Code: | Y | 1437.0 sqft | Value: | $314,866 |
| Bathrooms: | 2 | Bedrooms: | 4 | | Ceiling: | DRYWALL PAINTED | Exterior Wall/Cover: | WOOD SIDING | | Floor Covering: | HARDWOOD 100% | Floor Structure: | WOOD W/SUBFLOOR | | Foundation: | CONCRETE | Heating: | WALL HEAT ELECTRIC | | Interior Finish: | DRYWALL PAINT | Plumbing Fixture Cnt: | 9 | | Roof Slope: | 4" IN 12" | Roof Structure/Cover: | CJ ASPHALT |
|
| | Type | Description | Class CD | Sub Class CD | Year Built | Area |
| | BAS | BASE/MAIN FLOOR | 3 | 0 | 1945 | 1437.0 |
| | ATF | ATTIC FINISHED | 3 | 0 | 1945 | 458.0 |
| | OWP | OPEN WOOD PORCH W/STEPS | 3 | 0 | 1945 | 1572.3 |
| | OWC | OPEN WOOD PORCH W/STEPS/ROOF/C | 3 | 0 | 1945 | 229.0 |
| | UTY | STORAGE/UTILITY | 3 | 0 | 1945 | 384.0 |
| | UTY | STORAGE/UTILITY | 3 | 0 | 1945 | 800.0 |
| | UTY | STORAGE/UTILITY | 3 | 0 | 1945 | 800.0 |
Sketch
| No sketches available for this property. |
Property Image
Land
| 1 | 32 | AC (03.01-09.99) | 5.0000 | 217800.00 | 0.00 | 0.00 | 1.00 | $320,000 | $0 |
Roll Value History
| 2026 | N/A | N/A | N/A | N/A | N/A |
| 2025 | $314,866 | $320,000 | $0 | $634,866 | $634,866 |
| 2024 | $319,479 | $280,000 | $0 | $599,479 | $599,479 |
| 2023 | $324,092 | $260,000 | $0 | $584,092 | $584,092 |
| 2022 | $297,646 | $210,000 | $0 | $507,646 | $507,646 |
| 2021 | $251,562 | $160,000 | $0 | $411,562 | $411,562 |
| 2020 | $245,693 | $150,000 | $0 | $395,693 | $395,693 |
| 2019 | $178,746 | $200,000 | $0 | $378,746 | $378,746 |
| 2018 | $179,372 | $165,000 | $0 | $344,372 | $344,372 |
| 2017 | $180,626 | $150,000 | $0 | $330,626 | $330,626 |
| 2016 | $183,134 | $130,000 | $0 | $313,134 | $313,134 |
| 2015 | $178,118 | $84,000 | $0 | $262,118 | $262,118 |
| 2014 | $196,851 | $84,000 | $0 | $280,851 | $280,851 |
| 2013 | $199,048 | $84,000 | $0 | $283,048 | $283,048 |
| 2012 | $201,243 | $84,000 | $0 | $285,243 | $285,243 |
| 2011 | $203,438 | $93,000 | $0 | $296,438 | $296,438 |
| 2010 | $212,408 | $93,000 | $0 | $305,408 | $305,408 |
| 2009 | $199,642 | $120,000 | $0 | $319,642 | $319,642 |
| 2008 | $202,310 | $110,000 | $0 | $312,310 | $312,310 |
| 2007 | $204,977 | $110,000 | $0 | $314,977 | $314,977 |
Deed and Sales History
| 1 | 02/21/2020 | WD | Warranty Deed | FREDERICK, ROBERT A | SMITH, GREG | | | $245,000.00 | 42223 | |
| 2 | 10/29/2004 | WD | Warranty Deed | HEDINGTON, ROBIN L | FREDERICK, ROBERT A | | | $319,000.00 | 45279 | 4117656 |
| 3 | 12/30/1999 | WD | Warranty Deed | LIPPERT, HELEN D | HEDINGTON, ROBIN L | | | $117,000.00 | 37 | 20000152 |
| 4 | 02/01/1994 | QCD | Quit Claim Deed | LIPPERT, HELEN D | LIPPERT, HELEN D | | | $0.00 | 40773 | 94004820 |
| 5 | 03/01/1989 | QCD | Quit Claim Deed | TUCCI, DEBORAH A | LIPPERT, HELEN D | | | $0.00 | 91678 | 89005790 |
| 6 | 07/01/1988 | QCD | Quit Claim Deed | LIPPERT, HELEN D | TUCCI, DEBORAH A | | | $0.00 | 82772 | 88010463 |
| 7 | 07/01/1988 | QCD | Quit Claim Deed | TUCCI, DEBORAH A | LIPPERT, HELEN D | | | $0.00 | 82773 | 88010464 |
| 8 | 09/01/1981 | CD | DNU - Correction Deed | TUCCI, JOE | TUCCI, DEBORAH A | | | $1.00 | 12897 | 387976 |
| 9 | 01/01/1900 | OTHER | Other - Misc. Documents | Unknown | TUCCI, JOE | | | $0.00 | 0 | 0 |
Payout Agreement
| No payout information available.. |