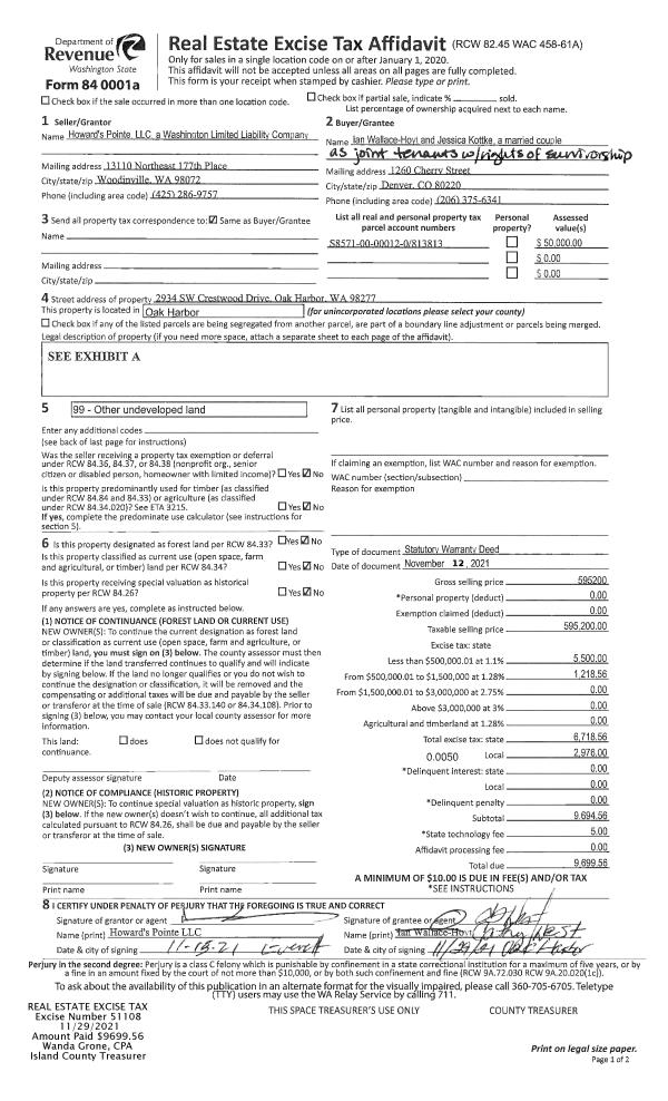
Property
Account |
| Property ID: | 149413 | Abbreviated Legal Description: | 86 - IN GL2:S/2 N/2 E OF OLD CO RD & P/W & W OF W CAM DR EX E300' OF BG 30' W & 795.3' S OF NE CR GL2 W992.7' S13*E473.8' E894.5' N461.7' TPB |
| Geographic ID: | R33023-298-2120 | Agent Code: | |
| Type: | Real | | |
| Tax Area: | 540 - APPRAISER-Stan/Cam Schl Dist, Special Dist, improved & less than 1 acre | Land Use Code | 11 |
| Open Space: | N | DFL | N |
| Historic Property: | N | Remodel Property: | N |
| Multi-Family Redevelopment: | N | | |
| Township: | 30 | Section: | 23 |
| Range: | R3 |
Location |
| Address: | | Mapsco: | |
| Neighborhood: | 58RscamS-South Cam | Map ID: | 884 |
| Neighborhood CD: | 58RscamS |
Owner |
| Name: | TULADHAR, PAVITRA | Owner ID: | 299251 |
| Mailing Address: | AMRIT S TULADHAR 9627 E ROADRUNNER DR SCOTTSDALE, AZ 85262 | % Ownership: | 100.0000000000% |
| | | Exemptions: | |
Taxes and Assessment Details
Values
| (+) Improvement Homesite Value: | + | $0 | |
| (+) Improvement Non-Homesite Value: | + | $39,526 | |
| (+) Land Homesite Value: | + | $0 | |
| (+) Land Non-Homesite Value: | + | $17,000 | |
| (+) Curr Use (HS): | + | $0 | $0 |
| (+) Curr Use (NHS): | + | $0 | $0 |
| | | -------------------------- | |
| (=) Market Value: | = | $56,526 | |
| (–) Productivity Loss: | – | $0 | |
| | | -------------------------- | |
| (=) Subtotal: | = | $56,526 | |
| (+) Senior Appraised Value: | + | $0 | |
| (+) Non-Senior Appraised Value: | + | $56,526 | |
| | | -------------------------- | |
| (=) Total Appraised Value: | = | $56,526 | |
| (–) Senior Exemption Loss: | – | $0 | |
| (–) Exemption Loss: | – | $0 | |
| | | -------------------------- | |
| (=) Taxable Value: | = | $56,526 | |
Taxing Jurisdiction
| Owner: | TULADHAR, PAVITRA | | |
| % Ownership: | 100.0000000000% | | |
| Total Value: | $56,526 | | |
| Tax Area: | 540 - APPRAISER-Stan/Cam Schl Dist, Special Dist, improved & less than 1 acre |
| CF | Conservation Futures | 0.0316035091 | $56,526 | $56,526 | $1.79 | | |
| EMS1 | Fire & Rescue Dist #1 Camano GEN (EMS) | 0.3677864386 | $56,526 | $56,526 | $20.79 | | |
| FIRE1 | Fire & Rescue Dist #1 Camano GEN | 1.2502910536 | $56,526 | $56,526 | $70.67 | | |
| FIRE1BOND | Fire & Rescue Dist #1 Camano BOND | 0.1570001679 | $56,526 | $56,526 | $8.87 | | |
| CE | County Current Expense | 0.3708482477 | $56,526 | $56,526 | $20.96 | | |
| CR | County Roads | 0.4584763726 | $56,526 | $56,526 | $25.92 | | |
| LCIB | Library Sno-Isle BOND (Camano Island) | 0.0396325772 | $56,526 | $56,526 | $2.24 | | |
| LIB | Library Sno-Isle GEN | 0.3153421757 | $56,526 | $56,526 | $17.83 | | |
| SCH205_401 | School 205-401 Enrichment | 1.2698420524 | $56,526 | $56,526 | $71.78 | | |
| SCH205BOND | School 205-401 BOND | 0.9396497583 | $56,526 | $56,526 | $53.11 | | |
| ST | State School | 1.3035497053 | $56,526 | $56,526 | $73.68 | | |
| ST2 | State School Part 2 | 0.8169543533 | $56,526 | $56,526 | $46.18 | | |
| | Total Tax Rate: | 7.3209764117 | | | | | |
| | | | | Taxes w/Current Exemptions: | $413.82 | | |
| | | | | Taxes w/o Exemptions: | $413.82 | | |
Improvement / Building
| Improvement #1: | RESIDENTIAL | State Code: | Y | 288.0 sqft | Value: | $39,526 |
| Bathrooms: | 0 | Bedrooms: | 0 | | Ceiling: | BEAM PAINTED | Exterior Wall/Cover: | WOOD SIDING | | Floor Covering: | VINYL 100% | Floor Structure: | WOOD W/SUBFLOOR | | Foundation: | PEIRS | Heating: | BASEBOARD ELECTRIC | | Interior Finish: | PLASTER | Plumbing Fixture Cnt: | 2 | | Roof Slope: | 3" IN 12" | Roof Structure/Cover: | BEAM ASPHALT |
|
| | Type | Description | Class CD | Sub Class CD | Year Built | Area |
| | BAS | BASE/MAIN FLOOR | 2 | 0 | 1983 | 288.0 |
| | OWP | OPEN WOOD PORCH W/STEPS | 2 | 0 | 1983 | 42.0 |
| | OWP | OPEN WOOD PORCH W/STEPS | 2 | 0 | 1983 | 288.0 |
| | OWR | OPEN WOOD PORCH W/STEPS/ROOF | 2 | 0 | 1983 | 24.0 |
Sketch
Property Image
Land
| 1 | 16 | AC (00.51-01.00) | 0.5300 | 23086.80 | 0.00 | 0.00 | 1.00 | $17,000 | $0 |
Roll Value History
| 2026 | N/A | N/A | N/A | N/A | N/A |
| 2025 | $39,526 | $17,000 | $0 | $56,526 | $56,526 |
| 2024 | $40,231 | $17,000 | $0 | $57,231 | $57,231 |
| 2023 | $40,820 | $15,000 | $0 | $55,820 | $55,820 |
| 2022 | $37,497 | $15,000 | $0 | $52,497 | $52,497 |
| 2021 | $34,450 | $15,000 | $0 | $49,450 | $49,450 |
| 2020 | $33,748 | $15,000 | $0 | $48,748 | $48,748 |
| 2019 | $25,122 | $15,000 | $0 | $40,122 | $40,122 |
| 2018 | $25,211 | $15,000 | $0 | $40,211 | $40,211 |
| 2017 | $25,390 | $100,000 | $0 | $125,390 | $125,390 |
| 2016 | $24,061 | $100,000 | $0 | $124,061 | $124,061 |
| 2015 | $5,268 | $50,000 | $0 | $55,268 | $55,268 |
| 2014 | $5,268 | $50,000 | $0 | $55,268 | $55,268 |
| 2013 | $5,268 | $50,000 | $0 | $55,268 | $55,268 |
| 2012 | $5,268 | $66,400 | $0 | $71,668 | $71,668 |
| 2011 | $5,268 | $83,000 | $0 | $88,268 | $88,268 |
| 2010 | $5,268 | $83,000 | $0 | $88,268 | $88,268 |
| 2009 | $4,440 | $120,000 | $0 | $124,440 | $124,440 |
| 2008 | $4,581 | $99,000 | $0 | $103,581 | $103,581 |
| 2007 | $5,060 | $86,000 | $0 | $91,060 | $91,060 |
Deed and Sales History
| 1 | 05/05/2021 | WD | Warranty Deed | KINHART, DALE | TULADHAR, PAVITRA | | | $350,000.00 | 48144 | 4518615 |
|   | |
| 2 | 01/23/2018 | WD | Warranty Deed | NORRIS, GARY J | KINHART, DALE | | | $65,000.00 | 32753 | 4438186 |
|   | |
| 3 | 02/01/1983 | WD | Warranty Deed | O'NEAL, DENNIS L | NORRIS, GARY J | | | $10,000.00 | 30492 | 406448 |
| 4 | 05/01/1979 | TRUSTEED | Trustee's Deed | RAMAGE, MELVILLE R | O'NEAL, DENNIS L | | | $7,500.00 | 92640 | 353294 |
| 5 | 01/01/1900 | OTHER | Other - Misc. Documents | Unknown | RAMAGE, MELVILLE R | | | $0.00 | 0 | 0 |
Payout Agreement
| No payout information available.. |