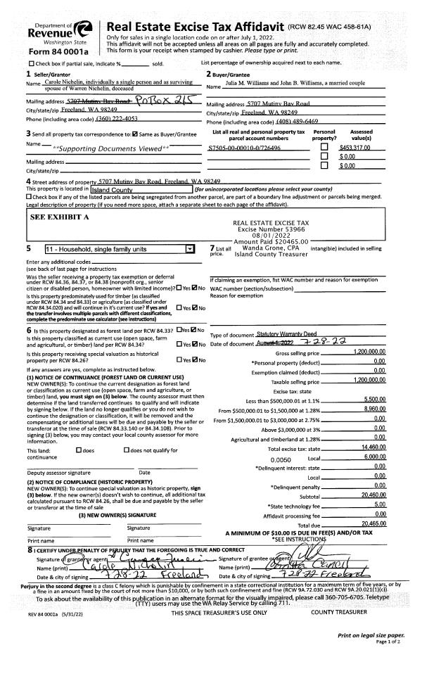
Property
Account |
| Property ID: | 149878 | Abbreviated Legal Description: | 55 - E/2 S/2 W/2 NW NE NE EX RD SUB TO EZ |
| Geographic ID: | R33023-476-4150 | Agent Code: | |
| Type: | Real | | |
| Tax Area: | 549 - APPRAISER-Stan/Cam Schl Dist, Special Dist, vacant & 50 acres or less | Land Use Code | 91 |
| Open Space: | N | DFL | Y |
| Historic Property: | N | Remodel Property: | N |
| Multi-Family Redevelopment: | N | | |
| Township: | 30 | Section: | 23 |
| Range: | R3 |
Location |
| Address: | | Mapsco: | |
| Neighborhood: | 58SofTamarackNB | Map ID: | 885 |
| Neighborhood CD: | 58RstamNB |
Owner |
| Name: | COLE TRUSTEE, ROBERT R | Owner ID: | 4956 |
| Mailing Address: | 16821 SMOKEY POINT BLVD#237 ARLINGTON, WA 98223 | % Ownership: | 100.0000000000% |
| | | Exemptions: | |
Taxes and Assessment Details
Values
| (+) Improvement Homesite Value: | + | $0 | |
| (+) Improvement Non-Homesite Value: | + | $0 | |
| (+) Land Homesite Value: | + | $0 | |
| (+) Land Non-Homesite Value: | + | $0 | |
| (+) Curr Use (HS): | + | $0 | $0 |
| (+) Curr Use (NHS): | + | $46,817 | $235 |
| | | -------------------------- | |
| (=) Market Value: | = | $46,817 | |
| (–) Productivity Loss: | – | $46,582 | |
| | | -------------------------- | |
| (=) Subtotal: | = | $235 | |
| (+) Senior Appraised Value: | + | $0 | |
| (+) Non-Senior Appraised Value: | + | $235 | |
| | | -------------------------- | |
| (=) Total Appraised Value: | = | $235 | |
| (–) Senior Exemption Loss: | – | $0 | |
| (–) Exemption Loss: | – | $0 | |
| | | -------------------------- | |
| (=) Taxable Value: | = | $235 | |
Taxing Jurisdiction
| Owner: | COLE TRUSTEE, ROBERT R | | |
| % Ownership: | 100.0000000000% | | |
| Total Value: | $46,817 | | |
| Tax Area: | 549 - APPRAISER-Stan/Cam Schl Dist, Special Dist, vacant & 50 acres or less |
| CF | Conservation Futures | 0.0316035091 | $235 | $235 | $0.01 | | |
| EMS1 | Fire & Rescue Dist #1 Camano GEN (EMS) | 0.3677864386 | $235 | $235 | $0.09 | | |
| CE | County Current Expense | 0.3708482477 | $235 | $235 | $0.09 | | |
| CR | County Roads | 0.4584763726 | $235 | $235 | $0.11 | | |
| LCIB | Library Sno-Isle BOND (Camano Island) | 0.0396325772 | $235 | $235 | $0.01 | | |
| LIB | Library Sno-Isle GEN | 0.3153421757 | $235 | $235 | $0.07 | | |
| SCH205_401 | School 205-401 Enrichment | 1.2698420524 | $235 | $235 | $0.30 | | |
| SCH205BOND | School 205-401 BOND | 0.9396497583 | $235 | $235 | $0.22 | | |
| ST | State School | 1.3035497053 | $235 | $235 | $0.31 | | |
| ST2 | State School Part 2 | 0.8169543533 | $235 | $235 | $0.19 | | |
| | Total Tax Rate: | 5.9136851902 | | | | | |
| | | | | Taxes w/Current Exemptions: | $1.40 | | |
| | | | | Taxes w/o Exemptions: | $1.40 | | |
Improvement / Building
Sketch
| No sketches available for this property. |
Property Image
Land
| 1 | 17 | AC (01.01-02.00) | 0.9250 | 40293.00 | 0.00 | 0.00 | 1.00 | $15,000 | $172 |
| 2 | 17 | AC (01.01-02.00) | 0.3270 | 14244.12 | 0.00 | 0.00 | 1.00 | $31,817 | $63 |
Roll Value History
| 2026 | N/A | N/A | N/A | N/A | N/A |
| 2025 | $0 | $46,817 | $235 | $235 | $235 |
| 2024 | $0 | $130,000 | $236 | $236 | $236 |
| 2023 | $0 | $15,000 | $0 | $15,000 | $15,000 |
| 2022 | $0 | $15,000 | $0 | $15,000 | $15,000 |
| 2021 | $0 | $15,000 | $0 | $15,000 | $15,000 |
| 2020 | $0 | $15,000 | $0 | $15,000 | $15,000 |
| 2019 | $0 | $15,000 | $0 | $15,000 | $15,000 |
| 2018 | $0 | $15,000 | $0 | $15,000 | $15,000 |
| 2017 | $0 | $5,000 | $0 | $5,000 | $5,000 |
| 2016 | $0 | $5,000 | $0 | $5,000 | $5,000 |
| 2015 | $0 | $3,000 | $0 | $3,000 | $3,000 |
| 2014 | $0 | $3,000 | $0 | $3,000 | $3,000 |
| 2013 | $0 | $3,000 | $0 | $3,000 | $3,000 |
| 2012 | $0 | $3,000 | $0 | $3,000 | $3,000 |
| 2011 | $0 | $3,000 | $0 | $3,000 | $3,000 |
| 2010 | $0 | $9,300 | $0 | $9,300 | $9,300 |
| 2009 | $0 | $10,000 | $0 | $10,000 | $10,000 |
| 2008 | $0 | $29,700 | $0 | $29,700 | $29,700 |
| 2007 | $0 | $30,000 | $0 | $30,000 | $30,000 |
Deed and Sales History
| 1 | 08/02/2000 | WD | Warranty Deed | COLE, ROBERT R | COLE, ROBERT R | | | $1,000.00 | 3043 | 20014308 |
| 2 | 08/02/2000 | WD | Warranty Deed | FIRCHAU CONSTRUCTION, | COLE, ROBERT R | | | $15,000.00 | 3042 | 20014307 |
| 3 | 08/02/2000 | WD | Warranty Deed | GEISMANN, GUNTER | FIRCHAU CONSTRUCTION, | | | $1,000.00 | 2901 | 20013643 |
| 4 | 07/31/2000 | WD | Warranty Deed | FIRCHAU CONSTRUCTION, | FIRCHAU CONSTRUCTION, | | | $1,500.00 | 9202 | 20013644 |
| 5 | 07/31/2000 | QCD | Quit Claim Deed | GEISMANN, GUNTER/DELORES | GEISMANN, GUNTER | | | $1,000.00 | 2900 | 20013642 |
| 6 | 02/01/1995 | TTAXD | Treasurer's Tax Deed | GEISMANN, GUNTER/DELORES | GEISMANN, GUNTER/DELORES | | | $0.00 | 66290 | 95002345 |
| 7 | 11/01/1993 | TTAXD | Treasurer's Tax Deed | CHAMBERS, RICHARD N | GEISMANN, GUNTER/DELORES | | | $0.00 | 65667 | 93023916 |
| 8 | 07/01/1981 | CD | DNU - Correction Deed | CHAMBERS, RICHARD N | CHAMBERS, RICHARD N | | | $1.00 | 11960 | 384721 |
| 9 | 02/01/1981 | CD | DNU - Correction Deed | CHAMBERS, RICHARD N | CHAMBERS, RICHARD N | | | $1.00 | 11959 | 384720 |
| 10 | 01/01/1900 | OTHER | Other - Misc. Documents | Unknown | CHAMBERS, RICHARD N | | | $0.00 | 0 | 0 |
Payout Agreement
| No payout information available.. |