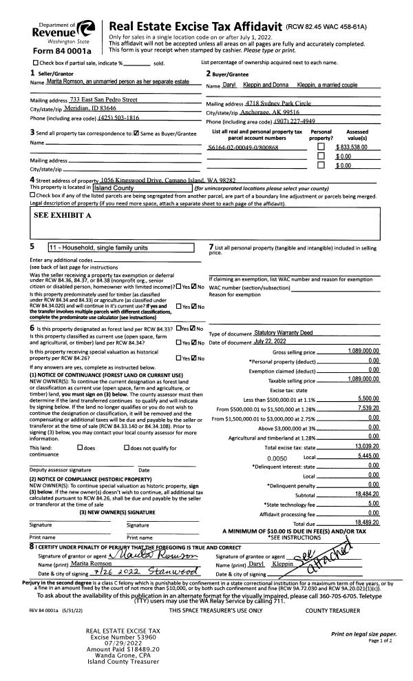
Property
Account |
| Property ID: | 149921 | Abbreviated Legal Description: | 50 - W/2 NE NE NE EX S30' RD |
| Geographic ID: | R33023-495-4750 | Agent Code: | |
| Type: | Real | | |
| Tax Area: | 542 - APPRAISER-Stan/Cam Schl Dist, Special Dist, improved, greater than 1 acre | Land Use Code | 11 |
| Open Space: | N | DFL | N |
| Historic Property: | N | Remodel Property: | N |
| Multi-Family Redevelopment: | N | | |
| Township: | 30 | Section: | 23 |
| Range: | R3 |
Location |
| Address: | 1957 GARRISON RD CAMANO ISLAND, WA 98282 | Mapsco: | |
| Neighborhood: | 58SofTamarackAC | Map ID: | 885 |
| Neighborhood CD: | 58RstamAC |
Owner |
| Name: | ROGERS, JR, JEFFERY R | Owner ID: | 59849 |
| Mailing Address: | JUANITA LETAFILYAL 1957 GARRISON RD CAMANO ISLAND, WA 98282-7015 | % Ownership: | 100.0000000000% |
| | | Exemptions: | |
Taxes and Assessment Details
Values
| (+) Improvement Homesite Value: | + | $0 | |
| (+) Improvement Non-Homesite Value: | + | $2,800 | |
| (+) Land Homesite Value: | + | $0 | |
| (+) Land Non-Homesite Value: | + | $170,000 | |
| (+) Curr Use (HS): | + | $0 | $0 |
| (+) Curr Use (NHS): | + | $0 | $0 |
| | | -------------------------- | |
| (=) Market Value: | = | $172,800 | |
| (–) Productivity Loss: | – | $0 | |
| | | -------------------------- | |
| (=) Subtotal: | = | $172,800 | |
| (+) Senior Appraised Value: | + | $0 | |
| (+) Non-Senior Appraised Value: | + | $172,800 | |
| | | -------------------------- | |
| (=) Total Appraised Value: | = | $172,800 | |
| (–) Senior Exemption Loss: | – | $0 | |
| (–) Exemption Loss: | – | $0 | |
| | | -------------------------- | |
| (=) Taxable Value: | = | $172,800 | |
Taxing Jurisdiction
| Owner: | ROGERS, JR, JEFFERY R | | |
| % Ownership: | 100.0000000000% | | |
| Total Value: | $172,800 | | |
| Tax Area: | 542 - APPRAISER-Stan/Cam Schl Dist, Special Dist, improved, greater than 1 acre |
| CF | Conservation Futures | 0.0316035091 | $172,800 | $172,800 | $5.46 | | |
| EMS1 | Fire & Rescue Dist #1 Camano GEN (EMS) | 0.3677864386 | $172,800 | $172,800 | $63.55 | | |
| FIRE1 | Fire & Rescue Dist #1 Camano GEN | 1.2502910536 | $172,800 | $172,800 | $216.05 | | |
| FIRE1BOND | Fire & Rescue Dist #1 Camano BOND | 0.1570001679 | $172,800 | $172,800 | $27.13 | | |
| CE | County Current Expense | 0.3708482477 | $172,800 | $172,800 | $64.08 | | |
| CR | County Roads | 0.4584763726 | $172,800 | $172,800 | $79.22 | | |
| LCIB | Library Sno-Isle BOND (Camano Island) | 0.0396325772 | $172,800 | $172,800 | $6.85 | | |
| LIB | Library Sno-Isle GEN | 0.3153421757 | $172,800 | $172,800 | $54.49 | | |
| SCH205_401 | School 205-401 Enrichment | 1.2698420524 | $172,800 | $172,800 | $219.43 | | |
| SCH205BOND | School 205-401 BOND | 0.9396497583 | $172,800 | $172,800 | $162.37 | | |
| ST | State School | 1.3035497053 | $172,800 | $172,800 | $225.25 | | |
| ST2 | State School Part 2 | 0.8169543533 | $172,800 | $172,800 | $141.17 | | |
| | Total Tax Rate: | 7.3209764117 | | | | | |
| | | | | Taxes w/Current Exemptions: | $1,265.05 | | |
| | | | | Taxes w/o Exemptions: | $1,265.05 | | |
Improvement / Building
| Improvement #1: | RESIDENTIAL | State Code: | Y | 0.0 sqft | Value: | $2,800 |
Sketch
Property Image
Land
| 1 | 32 | AC (03.01-09.99) | 4.7800 | 208216.80 | 0.00 | 0.00 | 1.00 | $170,000 | $0 |
Roll Value History
| 2026 | N/A | N/A | N/A | N/A | N/A |
| 2025 | $2,800 | $170,000 | $0 | $172,800 | $172,800 |
| 2024 | $2,800 | $160,000 | $0 | $162,800 | $162,800 |
| 2023 | $2,800 | $150,000 | $0 | $152,800 | $152,800 |
| 2022 | $2,800 | $110,000 | $0 | $112,800 | $112,800 |
| 2021 | $0 | $90,000 | $0 | $90,000 | $90,000 |
| 2020 | $0 | $80,000 | $0 | $80,000 | $80,000 |
| 2019 | $0 | $70,000 | $0 | $70,000 | $70,000 |
| 2018 | $0 | $65,000 | $0 | $65,000 | $65,000 |
| 2017 | $0 | $50,000 | $0 | $50,000 | $50,000 |
| 2016 | $0 | $65,000 | $0 | $65,000 | $65,000 |
| 2015 | $0 | $40,000 | $0 | $40,000 | $40,000 |
| 2014 | $0 | $40,000 | $0 | $40,000 | $40,000 |
| 2013 | $0 | $63,574 | $0 | $63,574 | $63,574 |
| 2012 | $0 | $63,574 | $0 | $63,574 | $63,574 |
| 2011 | $0 | $47,800 | $0 | $47,800 | $47,800 |
| 2010 | $0 | $47,800 | $0 | $47,800 | $47,800 |
| 2009 | $0 | $87,400 | $0 | $87,400 | $87,400 |
| 2008 | $0 | $84,000 | $0 | $84,000 | $84,000 |
| 2007 | $0 | $74,500 | $0 | $74,500 | $74,500 |
Deed and Sales History
| 1 | 08/29/2001 | WD | Warranty Deed | MCKINNEY, HOWARD A | ROGERS, JR, JEFFERY R | | | $45,000.00 | 13508 | 20042644 |
| 2 | 07/01/1983 | QCD | Quit Claim Deed | FRAMING, LIMITED | MCKINNEY, HOWARD A | | | $0.00 | 22514 | 92012116 |
| 3 | 12/01/1975 | EZ | Easement | MCKINNEY, ROBERT L | FRAMING, LIMITED | | | $0.00 | 57703 | 0 |
| 4 | 08/01/1967 | EXECUTORD | Executor Deed | GARRISON, DANIEL B | MCKINNEY, ROBERT L | | | $0.00 | 28211 | 0 |
| 5 | 01/01/1900 | OTHER | Other - Misc. Documents | Unknown | GARRISON, DANIEL B | | | $0.00 | 0 | 0 |
Payout Agreement
| No payout information available.. |