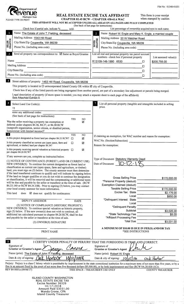
Property
Account |
| Property ID: | 149994 | Abbreviated Legal Description: | 7 - PT L12 BLK 3 V4 SUR P17 IN GL 1: BG SW CR GL 1 N88* E330' TPB N292.9' N88*E693 .4' S24*E319.97' S88*W822. 73' TPB EX E30' |
| Geographic ID: | R33024-016-2090 | Agent Code: | |
| Type: | Real | | |
| Tax Area: | 542 - APPRAISER-Stan/Cam Schl Dist, Special Dist, improved, greater than 1 acre | Land Use Code | 11 |
| Open Space: | N | DFL | N |
| Historic Property: | N | Remodel Property: | N |
| Multi-Family Redevelopment: | N | | |
| Township: | 30 | Section: | 24 |
| Range: | R3 |
Location |
| Address: | 3982 S EAST CAMANO DR CAMANO ISLAND, WA 98282 | Mapsco: | |
| Neighborhood: | 58SofTamarackAC | Map ID: | 886 |
| Neighborhood CD: | 58RstamAC |
Owner |
| Name: | DUNWOODIE, BRUCE | Owner ID: | 286960 |
| Mailing Address: | ELIZABETH DUNWOODIE 3982 S EAST CAMANO DR CAMANO ISLAND, WA 98282 | % Ownership: | 100.0000000000% |
| | | Exemptions: | |
Taxes and Assessment Details
Values
| (+) Improvement Homesite Value: | + | $0 | |
| (+) Improvement Non-Homesite Value: | + | $527,973 | |
| (+) Land Homesite Value: | + | $0 | |
| (+) Land Non-Homesite Value: | + | $320,000 | |
| (+) Curr Use (HS): | + | $0 | $0 |
| (+) Curr Use (NHS): | + | $0 | $0 |
| | | -------------------------- | |
| (=) Market Value: | = | $847,973 | |
| (–) Productivity Loss: | – | $0 | |
| | | -------------------------- | |
| (=) Subtotal: | = | $847,973 | |
| (+) Senior Appraised Value: | + | $0 | |
| (+) Non-Senior Appraised Value: | + | $847,973 | |
| | | -------------------------- | |
| (=) Total Appraised Value: | = | $847,973 | |
| (–) Senior Exemption Loss: | – | $0 | |
| (–) Exemption Loss: | – | $0 | |
| | | -------------------------- | |
| (=) Taxable Value: | = | $847,973 | |
Taxing Jurisdiction
| Owner: | DUNWOODIE, BRUCE | | |
| % Ownership: | 100.0000000000% | | |
| Total Value: | $847,973 | | |
| Tax Area: | 542 - APPRAISER-Stan/Cam Schl Dist, Special Dist, improved, greater than 1 acre |
| CF | Conservation Futures | 0.0316035091 | $847,973 | $847,973 | $26.80 | | |
| EMS1 | Fire & Rescue Dist #1 Camano GEN (EMS) | 0.3677864386 | $847,973 | $847,973 | $311.87 | | |
| FIRE1 | Fire & Rescue Dist #1 Camano GEN | 1.2502910536 | $847,973 | $847,973 | $1,060.21 | | |
| FIRE1BOND | Fire & Rescue Dist #1 Camano BOND | 0.1570001679 | $847,973 | $847,973 | $133.13 | | |
| CE | County Current Expense | 0.3708482477 | $847,973 | $847,973 | $314.47 | | |
| CR | County Roads | 0.4584763726 | $847,973 | $847,973 | $388.78 | | |
| LCIB | Library Sno-Isle BOND (Camano Island) | 0.0396325772 | $847,973 | $847,973 | $33.61 | | |
| LIB | Library Sno-Isle GEN | 0.3153421757 | $847,973 | $847,973 | $267.40 | | |
| SCH205_401 | School 205-401 Enrichment | 1.2698420524 | $847,973 | $847,973 | $1,076.79 | | |
| SCH205BOND | School 205-401 BOND | 0.9396497583 | $847,973 | $847,973 | $796.80 | | |
| ST | State School | 1.3035497053 | $847,973 | $847,973 | $1,105.37 | | |
| ST2 | State School Part 2 | 0.8169543533 | $847,973 | $847,973 | $692.76 | | |
| | Total Tax Rate: | 7.3209764117 | | | | | |
| | | | | Taxes w/Current Exemptions: | $6,207.99 | | |
| | | | | Taxes w/o Exemptions: | $6,207.99 | | |
Improvement / Building
| Improvement #1: | RESIDENTIAL | State Code: | Y | 1843.8 sqft | Value: | $527,973 |
| Bathrooms: | 2 | Bedrooms: | 3 | | Ceiling: | DRYWALL PAINTED | Cooling: | HEAT PUMP/CONV/V | | Exterior Wall/Cover: | CEMENT FIBER | Floor Covering: | VINYL TILE | | Floor Structure: | WOOD W/SUBFLOOR | Foundation: | CONCRETE | | Interior Finish: | DRYWALL PAINT | Plumbing Fixture Cnt: | 13 | | Roof Slope: | 18" IN 12" | Roof Structure/Cover: | CJ ASPHALT |
|
| | Type | Description | Class CD | Sub Class CD | Year Built | Area |
| | BAS | BASE/MAIN FLOOR | 4 | 0 | 2020 | 1843.8 |
| | ATF | ATTIC FINISHED | 4 | 0 | 2020 | 340.0 |
| | AGR | ATTACHED GARAGE | 4 | 0 | 2020 | 528.0 |
| | UTY | STORAGE/UTILITY | 4 | 0 | 2020 | 110.0 |
| | OWC | OPEN WOOD PORCH W/STEPS/ROOF/C | 4 | 0 | 2020 | 257.0 |
| | OWC | OPEN WOOD PORCH W/STEPS/ROOF/C | 4 | 0 | 2020 | 241.7 |
| | OP1 | OPEN PORCH SLAB | 4 | 0 | 2020 | 544.5 |
Sketch
Property Image
Land
| 1 | 32 | AC (03.01-09.99) | 5.1100 | 222591.60 | 0.00 | 0.00 | 1.00 | $320,000 | $0 |
Roll Value History
| 2026 | N/A | N/A | N/A | N/A | N/A |
| 2025 | $527,973 | $320,000 | $0 | $847,973 | $847,973 |
| 2024 | $532,196 | $280,000 | $0 | $812,196 | $812,196 |
| 2023 | $536,419 | $260,000 | $0 | $796,419 | $796,419 |
| 2022 | $490,858 | $210,000 | $0 | $700,858 | $700,858 |
| 2021 | $385,428 | $160,000 | $0 | $545,428 | $545,428 |
| 2020 | $383,017 | $150,000 | $0 | $533,017 | $533,017 |
| 2019 | $0 | $70,000 | $0 | $70,000 | $70,000 |
| 2018 | $0 | $65,000 | $0 | $65,000 | $65,000 |
| 2017 | $0 | $50,000 | $0 | $50,000 | $50,000 |
| 2016 | $0 | $65,000 | $0 | $65,000 | $65,000 |
| 2015 | $0 | $40,000 | $0 | $40,000 | $40,000 |
| 2014 | $0 | $40,000 | $0 | $40,000 | $40,000 |
| 2013 | $0 | $67,963 | $0 | $67,963 | $67,963 |
| 2012 | $0 | $67,963 | $0 | $67,963 | $67,963 |
| 2011 | $0 | $74,400 | $0 | $74,400 | $74,400 |
| 2010 | $0 | $74,400 | $0 | $74,400 | $74,400 |
| 2009 | $0 | $108,000 | $0 | $108,000 | $108,000 |
| 2008 | $0 | $80,000 | $0 | $80,000 | $80,000 |
| 2007 | $0 | $80,000 | $0 | $80,000 | $80,000 |
Deed and Sales History
| 1 | 09/13/2018 | WD | Warranty Deed | BAUKNECHT, HARRY C | DUNWOODIE, BRUCE | | | $120,000.00 | 35953 | 4451961 |
| 2 | 08/08/2011 | WD | Warranty Deed | BRAYTON, DARYL L | BAUKNECHT, HARRY C | | | $60,000.00 | 5213 | 4299463 |
| 3 | 08/08/2008 | WD | Warranty Deed | DEAN, JOHN G | BRAYTON, DARYL L | | | $150,000.00 | 82125 | 4234910 |
| 4 | 06/01/1990 | WD | Warranty Deed | GALEA, JOHN | DEAN, JOHN G | | | $25,000.00 | 3745 | 90012251 |
| 5 | 08/01/1978 | OTHER | Other - Misc. Documents | Unknown | GALEA, JOHN | | | $7,500.00 | 83692 | 337336 |
Payout Agreement
| No payout information available.. |