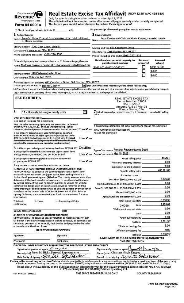
Property
Account |
| Property ID: | 150115 | Abbreviated Legal Description: | 7-3 - LOT 7 BLK 3 PORTERS EST #1 V4 SUR P17 AF#302904 IN GL1 |
| Geographic ID: | R33024-088-2540 | Agent Code: | |
| Type: | Real | | |
| Tax Area: | 549 - APPRAISER-Stan/Cam Schl Dist, Special Dist, vacant & 50 acres or less | Land Use Code | 91 |
| Open Space: | N | DFL | N |
| Historic Property: | N | Remodel Property: | N |
| Multi-Family Redevelopment: | N | | |
| Township: | 30 | Section: | 24 |
| Range: | R3 |
Location |
| Address: | 3925 S EAST CAMANO DR CAMANO ISLAND, WA 98282 | Mapsco: | |
| Neighborhood: | 58RecamWF-East Cam | Map ID: | 886 |
| Neighborhood CD: | 58RecamWF |
Owner |
| Name: | FOJTIK, LACY | Owner ID: | 292665 |
| Mailing Address: | 8825 34TH AVE NE STE L-120 TULALIP, WA 98271 | % Ownership: | 100.0000000000% |
| | | Exemptions: | |
Taxes and Assessment Details
Values
| (+) Improvement Homesite Value: | + | $0 | |
| (+) Improvement Non-Homesite Value: | + | $0 | |
| (+) Land Homesite Value: | + | $0 | |
| (+) Land Non-Homesite Value: | + | $350,000 | |
| (+) Curr Use (HS): | + | $0 | $0 |
| (+) Curr Use (NHS): | + | $0 | $0 |
| | | -------------------------- | |
| (=) Market Value: | = | $350,000 | |
| (–) Productivity Loss: | – | $0 | |
| | | -------------------------- | |
| (=) Subtotal: | = | $350,000 | |
| (+) Senior Appraised Value: | + | $0 | |
| (+) Non-Senior Appraised Value: | + | $350,000 | |
| | | -------------------------- | |
| (=) Total Appraised Value: | = | $350,000 | |
| (–) Senior Exemption Loss: | – | $0 | |
| (–) Exemption Loss: | – | $0 | |
| | | -------------------------- | |
| (=) Taxable Value: | = | $350,000 | |
Taxing Jurisdiction
| Owner: | FOJTIK, LACY | | |
| % Ownership: | 100.0000000000% | | |
| Total Value: | $350,000 | | |
| Tax Area: | 549 - APPRAISER-Stan/Cam Schl Dist, Special Dist, vacant & 50 acres or less |
| CF | Conservation Futures | 0.0316035091 | $350,000 | $350,000 | $11.06 | | |
| EMS1 | Fire & Rescue Dist #1 Camano GEN (EMS) | 0.3677864386 | $350,000 | $350,000 | $128.73 | | |
| CE | County Current Expense | 0.3708482477 | $350,000 | $350,000 | $129.80 | | |
| CR | County Roads | 0.4584763726 | $350,000 | $350,000 | $160.47 | | |
| LCIB | Library Sno-Isle BOND (Camano Island) | 0.0396325772 | $350,000 | $350,000 | $13.87 | | |
| LIB | Library Sno-Isle GEN | 0.3153421757 | $350,000 | $350,000 | $110.37 | | |
| SCH205_401 | School 205-401 Enrichment | 1.2698420524 | $350,000 | $350,000 | $444.44 | | |
| SCH205BOND | School 205-401 BOND | 0.9396497583 | $350,000 | $350,000 | $328.88 | | |
| ST | State School | 1.3035497053 | $350,000 | $350,000 | $456.24 | | |
| ST2 | State School Part 2 | 0.8169543533 | $350,000 | $350,000 | $285.93 | | |
| | Total Tax Rate: | 5.9136851902 | | | | | |
| | | | | Taxes w/Current Exemptions: | $2,069.79 | | |
| | | | | Taxes w/o Exemptions: | $2,069.79 | | |
Improvement / Building
Sketch
| No sketches available for this property. |
Property Image
Land
| 1 | HB | HIGH BLUFF | 5.0900 | 221720.40 | 295.00 | 0.00 | 1.00 | $350,000 | $0 |
Roll Value History
| 2026 | N/A | N/A | N/A | N/A | N/A |
| 2025 | $0 | $350,000 | $0 | $350,000 | $350,000 |
| 2024 | $0 | $325,000 | $0 | $325,000 | $325,000 |
| 2023 | $0 | $325,000 | $0 | $325,000 | $325,000 |
| 2022 | $0 | $300,000 | $0 | $300,000 | $300,000 |
| 2021 | $0 | $175,000 | $0 | $175,000 | $175,000 |
| 2020 | $0 | $150,000 | $0 | $150,000 | $150,000 |
| 2019 | $0 | $150,000 | $0 | $150,000 | $150,000 |
| 2018 | $0 | $150,000 | $0 | $150,000 | $150,000 |
| 2017 | $0 | $70,000 | $0 | $70,000 | $70,000 |
| 2016 | $0 | $70,000 | $0 | $70,000 | $70,000 |
| 2015 | $0 | $70,000 | $0 | $70,000 | $70,000 |
| 2014 | $0 | $70,000 | $0 | $70,000 | $70,000 |
| 2013 | $0 | $87,927 | $0 | $87,927 | $87,927 |
| 2012 | $0 | $87,927 | $0 | $87,927 | $87,927 |
| 2011 | $0 | $109,909 | $0 | $109,909 | $109,909 |
| 2010 | $0 | $157,013 | $0 | $157,013 | $157,013 |
| 2009 | $0 | $186,757 | $0 | $186,757 | $186,757 |
| 2008 | $0 | $319,980 | $0 | $319,980 | $319,980 |
| 2007 | $0 | $319,980 | $0 | $319,980 | $319,980 |
Deed and Sales History
| 1 | 01/07/2020 | WD | Warranty Deed | LU, WEN HUI | FOJTIK, LACY | | | $333,000.00 | 41759 | 4479041 |
|   | |
| 2 | 08/28/2018 | QCD | Quit Claim Deed | DUKES, KENNETH M | LU, WEN HUI | | | $0.00 | 36014 | 4452218 |
| 3 | 09/29/1999 | WD | Warranty Deed | MANSFIELD, COLLEEN M | DUKES, KENNETH M | | | $116,970.00 | 94234 | 99023291 |
| 4 | 09/15/1998 | 5 | DNU - Marriage License/Name Change | PAYNE, COLLEEN M | MANSFIELD, COLLEEN M | | | $0.00 | 67998 | 0 |
| 5 | 07/01/1997 | WD | Warranty Deed | BROWN, CARL F | PAYNE, COLLEEN M | | | $15,000.00 | 72403 | 97011342 |
| 6 | 10/01/1995 | WD | Warranty Deed | BROWN, CARL F | BROWN, CARL F | | | $0.00 | 54116 | 95018923 |
| 7 | 10/01/1979 | TRUSTEED | Trustee's Deed | SMITH, JEFF | BROWN, CARL F | | | $30,000.00 | 95034 | 360297 |
| 8 | 01/01/1900 | OTHER | Other - Misc. Documents | Unknown | SMITH, JEFF | | | $0.00 | 0 | 0 |
Payout Agreement
| No payout information available.. |