Property
Account |
| Property ID: | 150268 | Abbreviated Legal Description: | 34 - S255' OF N3057' OF SEC 24 LY E OF E CAM DR AKA L2BK3 SUR 4PG17 |
| Geographic ID: | R33024-238-2060 | Agent Code: | |
| Type: | Real | | |
| Tax Area: | 542 - APPRAISER-Stan/Cam Schl Dist, Special Dist, improved, greater than 1 acre | Land Use Code | 11 |
| Open Space: | N | DFL | N |
| Historic Property: | N | Remodel Property: | N |
| Multi-Family Redevelopment: | N | | |
| Township: | 30 | Section: | 24 |
| Range: | R3 |
Location |
| Address: | 3821 S EAST CAMANO DR CAMANO ISLAND, WA 98282 | Mapsco: | |
| Neighborhood: | 58RecamWF-East Cam | Map ID: | 886 |
| Neighborhood CD: | 58RecamWF |
Owner |
| Name: | BELANGER, DENNIS | Owner ID: | 306840 |
| Mailing Address: | BETH A BAKER 18656 KELLY PL DENVER, CO 80249 | % Ownership: | 100.0000000000% |
| | | Exemptions: | |
Taxes and Assessment Details
Values
| (+) Improvement Homesite Value: | + | $0 | |
| (+) Improvement Non-Homesite Value: | + | $226,582 | |
| (+) Land Homesite Value: | + | $0 | |
| (+) Land Non-Homesite Value: | + | $418,750 | |
| (+) Curr Use (HS): | + | $0 | $0 |
| (+) Curr Use (NHS): | + | $0 | $0 |
| | | -------------------------- | |
| (=) Market Value: | = | $645,332 | |
| (–) Productivity Loss: | – | $0 | |
| | | -------------------------- | |
| (=) Subtotal: | = | $645,332 | |
| (+) Senior Appraised Value: | + | $0 | |
| (+) Non-Senior Appraised Value: | + | $645,332 | |
| | | -------------------------- | |
| (=) Total Appraised Value: | = | $645,332 | |
| (–) Senior Exemption Loss: | – | $0 | |
| (–) Exemption Loss: | – | $0 | |
| | | -------------------------- | |
| (=) Taxable Value: | = | $645,332 | |
Taxing Jurisdiction
| Owner: | BELANGER, DENNIS | | |
| % Ownership: | 100.0000000000% | | |
| Total Value: | $645,332 | | |
| Tax Area: | 542 - APPRAISER-Stan/Cam Schl Dist, Special Dist, improved, greater than 1 acre |
| CF | Conservation Futures | 0.0316035091 | $645,332 | $645,332 | $20.39 | | |
| EMS1 | Fire & Rescue Dist #1 Camano GEN (EMS) | 0.3677864386 | $645,332 | $645,332 | $237.34 | | |
| FIRE1 | Fire & Rescue Dist #1 Camano GEN | 1.2502910536 | $645,332 | $645,332 | $806.85 | | |
| FIRE1BOND | Fire & Rescue Dist #1 Camano BOND | 0.1570001679 | $645,332 | $645,332 | $101.32 | | |
| CE | County Current Expense | 0.3708482477 | $645,332 | $645,332 | $239.32 | | |
| CR | County Roads | 0.4584763726 | $645,332 | $645,332 | $295.87 | | |
| LCIB | Library Sno-Isle BOND (Camano Island) | 0.0396325772 | $645,332 | $645,332 | $25.58 | | |
| LIB | Library Sno-Isle GEN | 0.3153421757 | $645,332 | $645,332 | $203.50 | | |
| SCH205_401 | School 205-401 Enrichment | 1.2698420524 | $645,332 | $645,332 | $819.47 | | |
| SCH205BOND | School 205-401 BOND | 0.9396497583 | $645,332 | $645,332 | $606.39 | | |
| ST | State School | 1.3035497053 | $645,332 | $645,332 | $841.22 | | |
| ST2 | State School Part 2 | 0.8169543533 | $645,332 | $645,332 | $527.21 | | |
| | Total Tax Rate: | 7.3209764117 | | | | | |
| | | | | Taxes w/Current Exemptions: | $4,724.46 | | |
| | | | | Taxes w/o Exemptions: | $4,724.46 | | |
Improvement / Building
| Improvement #1: | RESIDENTIAL | State Code: | Y | 2906.2 sqft | Value: | $226,582 |
| Bathrooms: | 3 | Bedrooms: | 2 | | Ceiling: | DRYWALL PAINTED | Cooling: | HEAT PUMP/CONV/V | | Exterior Wall/Cover: | CEMENT FIBER | Floor Covering: | (NONE) | | Floor Structure: | WOOD W/SUBFLOOR | Foundation: | CONCRETE | | Interior Finish: | DRYWALL PAINT | Plumbing Fixture Cnt: | 16 | | Roof Slope: | 6" IN 12" | Roof Structure/Cover: | CJ ASPHALT |
|
| | Type | Description | Class CD | Sub Class CD | Year Built | Area |
| | BAS | BASE/MAIN FLOOR | 4 | 0 | 2025 | 1598.6 |
| | UPS | UPPER STORY | 4 | 0 | 2025 | 1307.6 |
| | AGR | ATTACHED GARAGE | 4 | 0 | 2025 | 771.0 |
| | UTY | STORAGE/UTILITY | 4 | 0 | 2025 | 60.0 |
| | OWC | OPEN WOOD PORCH W/STEPS/ROOF/C | 4 | 0 | 2025 | 171.5 |
| | OP1 | OPEN PORCH SLAB | 4 | 0 | 2025 | 132.0 |
| | OWP | OPEN WOOD PORCH W/STEPS | 4 | 0 | 2025 | 144.0 |
Sketch
| No sketches available for this property. |
Property Image
Land
| 1 | HB | HIGH BLUFF | 5.1600 | 224769.60 | 255.00 | 0.00 | 1.00 | $418,750 | $0 |
Roll Value History
| 2026 | N/A | N/A | N/A | N/A | N/A |
| 2025 | $226,582 | $418,750 | $0 | $645,332 | $645,332 |
| 2024 | $0 | $325,000 | $0 | $325,000 | $325,000 |
| 2023 | $0 | $325,000 | $0 | $325,000 | $325,000 |
| 2022 | $0 | $300,000 | $0 | $300,000 | $300,000 |
| 2021 | $0 | $175,000 | $0 | $175,000 | $175,000 |
| 2020 | $0 | $150,000 | $0 | $150,000 | $150,000 |
| 2019 | $0 | $150,000 | $0 | $150,000 | $150,000 |
| 2018 | $0 | $150,000 | $0 | $150,000 | $150,000 |
| 2017 | $0 | $120,000 | $0 | $120,000 | $120,000 |
| 2016 | $0 | $120,000 | $0 | $120,000 | $120,000 |
| 2015 | $0 | $120,000 | $0 | $120,000 | $120,000 |
| 2014 | $0 | $120,000 | $0 | $120,000 | $120,000 |
| 2013 | $0 | $148,686 | $0 | $148,686 | $148,686 |
| 2012 | $0 | $148,686 | $0 | $148,686 | $148,686 |
| 2011 | $0 | $185,858 | $0 | $185,858 | $185,858 |
| 2010 | $0 | $265,512 | $0 | $265,512 | $265,512 |
| 2009 | $0 | $315,808 | $0 | $315,808 | $315,808 |
| 2008 | $0 | $299,081 | $0 | $299,081 | $299,081 |
| 2007 | $0 | $299,081 | $0 | $299,081 | $299,081 |
Deed and Sales History
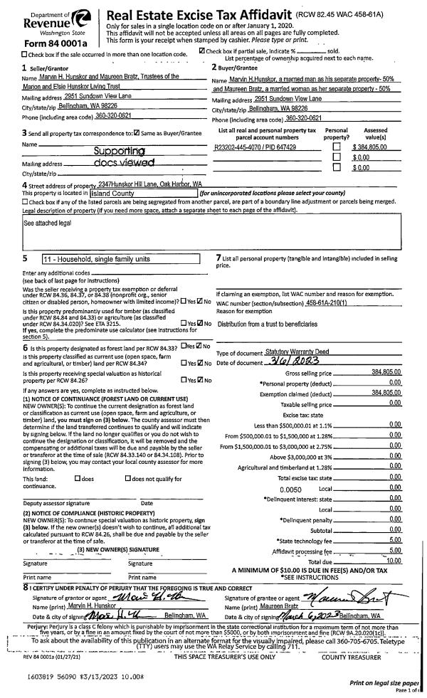
| 1 | 12/07/2022 | WD | Warranty Deed | TRENT, BARRY ALAN | BELANGER, DENNIS | | | $345,000.00 | 55328 | 4554640 |
| 2 | 09/03/2015 | WD | Warranty Deed | PAYNE FAM LTD LIABILITY CO | TRENT, BARRY ALAN | | | $145,000.00 | 21300 | 4385737 |
| 3 | 11/01/1996 | QCD | Quit Claim Deed | PAYNE, J T | PAYNE, FAM L | | | $0.00 | 64328 | 96021103 |
| 4 | 07/01/1978 | OTHER | Other - Misc. Documents | Unknown | PAYNE, J T | | | $34,000.00 | 83247 | 335904 |
Payout Agreement
| No payout information available.. |