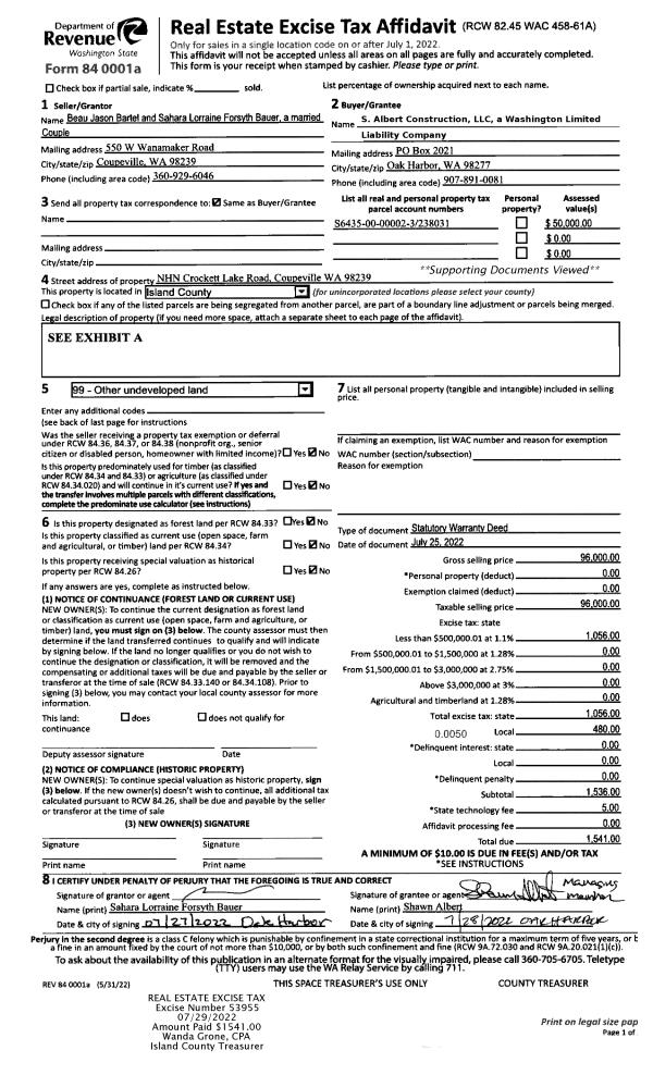
Property
Account |
| Property ID: | 150473 | Abbreviated Legal Description: | 12 - PT GL4 LY WLY OF E CAM DR & N OF CORD DES 157D562 EX N392' |
| Geographic ID: | R33024-480-0230 | Agent Code: | |
| Type: | Real | | |
| Tax Area: | 542 - APPRAISER-Stan/Cam Schl Dist, Special Dist, improved, greater than 1 acre | Land Use Code | 11 |
| Open Space: | N | DFL | N |
| Historic Property: | N | Remodel Property: | N |
| Multi-Family Redevelopment: | N | | |
| Township: | 30 | Section: | 24 |
| Range: | R3 |
Location |
| Address: | 3646 S EAST CAMANO DR CAMANO ISLAND, WA 98282 | Mapsco: | |
| Neighborhood: | 58SofTamarackS | Map ID: | 887 |
| Neighborhood CD: | 58RstamS |
Owner |
| Name: | ROBERSON, BRITT L | Owner ID: | 59908 |
| Mailing Address: | ROSELLA M ROBERSON 9508 186TH ST NE ARLINGTON, WA 98223-5909 | % Ownership: | 100.0000000000% |
| | | Exemptions: | |
Taxes and Assessment Details
Values
| (+) Improvement Homesite Value: | + | $0 | |
| (+) Improvement Non-Homesite Value: | + | $16,767 | |
| (+) Land Homesite Value: | + | $0 | |
| (+) Land Non-Homesite Value: | + | $250,000 | |
| (+) Curr Use (HS): | + | $0 | $0 |
| (+) Curr Use (NHS): | + | $0 | $0 |
| | | -------------------------- | |
| (=) Market Value: | = | $266,767 | |
| (–) Productivity Loss: | – | $0 | |
| | | -------------------------- | |
| (=) Subtotal: | = | $266,767 | |
| (+) Senior Appraised Value: | + | $0 | |
| (+) Non-Senior Appraised Value: | + | $266,767 | |
| | | -------------------------- | |
| (=) Total Appraised Value: | = | $266,767 | |
| (–) Senior Exemption Loss: | – | $0 | |
| (–) Exemption Loss: | – | $0 | |
| | | -------------------------- | |
| (=) Taxable Value: | = | $266,767 | |
Taxing Jurisdiction
| Owner: | ROBERSON, BRITT L | | |
| % Ownership: | 100.0000000000% | | |
| Total Value: | $266,767 | | |
| Tax Area: | 542 - APPRAISER-Stan/Cam Schl Dist, Special Dist, improved, greater than 1 acre |
| CF | Conservation Futures | 0.0316035091 | $266,767 | $266,767 | $8.43 | | |
| EMS1 | Fire & Rescue Dist #1 Camano GEN (EMS) | 0.3677864386 | $266,767 | $266,767 | $98.11 | | |
| FIRE1 | Fire & Rescue Dist #1 Camano GEN | 1.2502910536 | $266,767 | $266,767 | $333.54 | | |
| FIRE1BOND | Fire & Rescue Dist #1 Camano BOND | 0.1570001679 | $266,767 | $266,767 | $41.88 | | |
| CE | County Current Expense | 0.3708482477 | $266,767 | $266,767 | $98.93 | | |
| CR | County Roads | 0.4584763726 | $266,767 | $266,767 | $122.31 | | |
| LCIB | Library Sno-Isle BOND (Camano Island) | 0.0396325772 | $266,767 | $266,767 | $10.57 | | |
| LIB | Library Sno-Isle GEN | 0.3153421757 | $266,767 | $266,767 | $84.12 | | |
| SCH205_401 | School 205-401 Enrichment | 1.2698420524 | $266,767 | $266,767 | $338.75 | | |
| SCH205BOND | School 205-401 BOND | 0.9396497583 | $266,767 | $266,767 | $250.67 | | |
| ST | State School | 1.3035497053 | $266,767 | $266,767 | $347.74 | | |
| ST2 | State School Part 2 | 0.8169543533 | $266,767 | $266,767 | $217.94 | | |
| | Total Tax Rate: | 7.3209764117 | | | | | |
| | | | | Taxes w/Current Exemptions: | $1,952.99 | | |
| | | | | Taxes w/o Exemptions: | $1,952.99 | | |
Improvement / Building
| Improvement #1: | RESIDENTIAL | State Code: | Y | 320.0 sqft | Value: | $16,767 |
| Bathrooms: | 0 | Bedrooms: | 0 | | Ceiling: | (NONE) | Exterior Wall/Cover: | PLY/HARDBOARD T-111 | | Floor Covering: | (NONE) | Floor Structure: | WOOD W/SUBFLOOR | | Foundation: | PEIRS | Heating: | (NONE) | | Interior Finish: | (NONE) | Plumbing Fixture Cnt: | 1 | | Roof Slope: | 4" IN 12" | Roof Structure/Cover: | CJ ASPHALT |
|
| | Type | Description | Class CD | Sub Class CD | Year Built | Area |
| | BAS | BASE/MAIN FLOOR | 1 | 0 | 2001 | 192.0 |
| | LOF | LOFT | 1 | 0 | 2001 | 128.0 |
| | OWR | OPEN WOOD PORCH W/STEPS/ROOF | 1 | 0 | 2001 | 64.0 |
| | OWP | OPEN WOOD PORCH W/STEPS | 1 | 0 | 2001 | 96.0 |
Sketch
Property Image
Land
| 1 | 17 | AC (01.01-02.00) | 1.5200 | 66211.20 | 0.00 | 0.00 | 1.00 | $250,000 | $0 |
Roll Value History
| 2026 | N/A | N/A | N/A | N/A | N/A |
| 2025 | $16,767 | $250,000 | $0 | $266,767 | $266,767 |
| 2024 | $16,986 | $220,000 | $0 | $236,986 | $236,986 |
| 2023 | $17,207 | $220,000 | $0 | $237,207 | $237,207 |
| 2022 | $15,779 | $200,000 | $0 | $215,779 | $215,779 |
| 2021 | $13,894 | $150,000 | $0 | $163,894 | $163,894 |
| 2020 | $13,602 | $140,000 | $0 | $153,602 | $153,602 |
| 2019 | $10,379 | $170,000 | $0 | $180,379 | $180,379 |
| 2018 | $10,412 | $150,000 | $0 | $160,412 | $160,412 |
| 2017 | $10,474 | $135,000 | $0 | $145,474 | $145,474 |
| 2016 | $10,601 | $50,000 | $0 | $60,601 | $60,601 |
| 2015 | $8,395 | $40,000 | $0 | $48,395 | $48,395 |
| 2014 | $8,395 | $40,000 | $0 | $48,395 | $48,395 |
| 2013 | $8,395 | $40,000 | $0 | $48,395 | $48,395 |
| 2012 | $8,395 | $44,640 | $0 | $53,035 | $53,035 |
| 2011 | $8,395 | $55,800 | $0 | $64,195 | $64,195 |
| 2010 | $9,739 | $55,800 | $0 | $65,539 | $65,539 |
| 2009 | $10,886 | $80,400 | $0 | $91,286 | $91,286 |
| 2008 | $11,114 | $71,280 | $0 | $82,394 | $82,394 |
| 2007 | $11,418 | $75,000 | $0 | $86,418 | $86,418 |
Deed and Sales History
| 1 | 05/03/1999 | REC | Real Estate Contract | LAMBIRTH, JAMES R | ROBERSON, BRITT L | | | $7,000.00 | 91672 | 99010629 |
| 2 | 04/16/1999 | QCD | Quit Claim Deed | LAMBIRTH, JAMES R | LAMBIRTH, JAMES R | | | $0.00 | 91671 | 99010628 |
| 3 | 06/05/1998 | OTHER | Other - Misc. Documents | LAMBIRTH, JAMES R | LAMBIRTH, JAMES R | | | $0.00 | 67876 | 98007143 |
| 4 | 06/01/1998 | OTHER | Other - Misc. Documents | LAMBIRTH, JAMES R | LAMBIRTH, JAMES R | | | $0.00 | 67876 | 0 |
| 5 | 01/01/1900 | OTHER | Other - Misc. Documents | Unknown | LAMBIRTH, JAMES R | | | $0.00 | 0 | 0 |
Payout Agreement
| No payout information available.. |