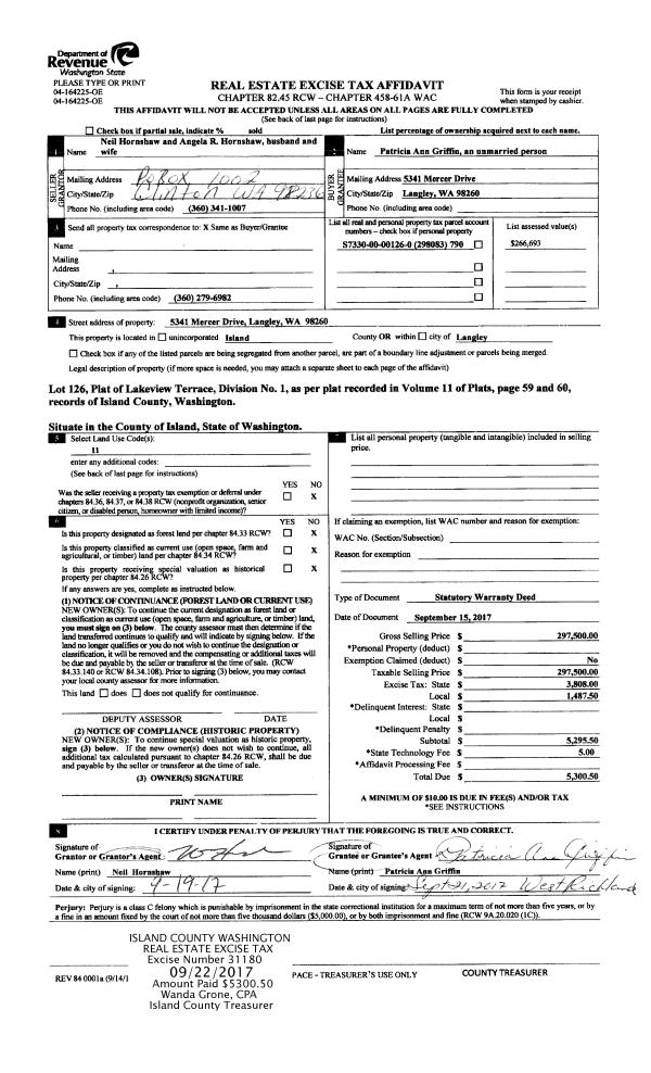
Property
Account |
| Property ID: | 150605 | Abbreviated Legal Description: | 22 - IN GLS 4 & 5: BG NWCR GL4 N88*E148.85' TO ELN CO RD N2.82' TPB N110' N86*E 309.67' S22*E163.27' N86*W 371.96' TPB EX PT LY E OF LN: BG NWCR GL5 N88*E62' TPB S51*E242' S13*E598' S30*E147' S4*E338' S22*E455 S33*W89' S69*W303' S45*W213 S64*W139.70' TP |
| Geographic ID: | R33025-270-4280 | Agent Code: | |
| Type: | Real | | |
| Tax Area: | 542 - APPRAISER-Stan/Cam Schl Dist, Special Dist, improved, greater than 1 acre | Land Use Code | 11 |
| Open Space: | N | DFL | N |
| Historic Property: | N | Remodel Property: | N |
| Multi-Family Redevelopment: | N | | |
| Township: | 30 | Section: | 25 |
| Range: | R3 |
Location |
| Address: | 4197 S EAST CAMANO DR CAMANO ISLAND, WA 98282 | Mapsco: | |
| Neighborhood: | 58RecamWF-East Cam | Map ID: | 891 |
| Neighborhood CD: | 58RecamWF |
Owner |
| Name: | BROWN TTEE, MIKAO | Owner ID: | 289700 |
| Mailing Address: | 4197 SE CAMANO DR CAMANO ISLAND, WA 98282 | % Ownership: | 100.0000000000% |
| | | Exemptions: | |
Taxes and Assessment Details
Values
| (+) Improvement Homesite Value: | + | $0 | |
| (+) Improvement Non-Homesite Value: | + | $435,420 | |
| (+) Land Homesite Value: | + | $0 | |
| (+) Land Non-Homesite Value: | + | $450,000 | |
| (+) Curr Use (HS): | + | $0 | $0 |
| (+) Curr Use (NHS): | + | $0 | $0 |
| | | -------------------------- | |
| (=) Market Value: | = | $885,420 | |
| (–) Productivity Loss: | – | $0 | |
| | | -------------------------- | |
| (=) Subtotal: | = | $885,420 | |
| (+) Senior Appraised Value: | + | $0 | |
| (+) Non-Senior Appraised Value: | + | $885,420 | |
| | | -------------------------- | |
| (=) Total Appraised Value: | = | $885,420 | |
| (–) Senior Exemption Loss: | – | $0 | |
| (–) Exemption Loss: | – | $0 | |
| | | -------------------------- | |
| (=) Taxable Value: | = | $885,420 | |
Taxing Jurisdiction
| Owner: | BROWN TTEE, MIKAO | | |
| % Ownership: | 100.0000000000% | | |
| Total Value: | $885,420 | | |
| Tax Area: | 542 - APPRAISER-Stan/Cam Schl Dist, Special Dist, improved, greater than 1 acre |
| CF | Conservation Futures | 0.0316035091 | $885,420 | $885,420 | $27.98 | | |
| EMS1 | Fire & Rescue Dist #1 Camano GEN (EMS) | 0.3677864386 | $885,420 | $885,420 | $325.65 | | |
| FIRE1 | Fire & Rescue Dist #1 Camano GEN | 1.2502910536 | $885,420 | $885,420 | $1,107.03 | | |
| FIRE1BOND | Fire & Rescue Dist #1 Camano BOND | 0.1570001679 | $885,420 | $885,420 | $139.01 | | |
| CE | County Current Expense | 0.3708482477 | $885,420 | $885,420 | $328.36 | | |
| CR | County Roads | 0.4584763726 | $885,420 | $885,420 | $405.94 | | |
| LCIB | Library Sno-Isle BOND (Camano Island) | 0.0396325772 | $885,420 | $885,420 | $35.09 | | |
| LIB | Library Sno-Isle GEN | 0.3153421757 | $885,420 | $885,420 | $279.21 | | |
| SCH205_401 | School 205-401 Enrichment | 1.2698420524 | $885,420 | $885,420 | $1,124.34 | | |
| SCH205BOND | School 205-401 BOND | 0.9396497583 | $885,420 | $885,420 | $831.98 | | |
| ST | State School | 1.3035497053 | $885,420 | $885,420 | $1,154.19 | | |
| ST2 | State School Part 2 | 0.8169543533 | $885,420 | $885,420 | $723.35 | | |
| | Total Tax Rate: | 7.3209764117 | | | | | |
| | | | | Taxes w/Current Exemptions: | $6,482.13 | | |
| | | | | Taxes w/o Exemptions: | $6,482.13 | | |
Improvement / Building
| Improvement #1: | RESIDENTIAL | State Code: | Y | 1977.7 sqft | Value: | $435,420 |
| Bathrooms: | 2.5 | Bedrooms: | 2 | | Ceiling: | DRYWALL PAINTED | Exterior Wall/Cover: | CEMENT FIBER | | Floor Covering: | VINYL TILE | Floor Structure: | WOOD W/SUBFLOOR | | Foundation: | CONCRETE | Heating: | RADIANT FLOOR | | Interior Finish: | DRYWALL PAINT | Plumbing Fixture Cnt: | 12 | | Roof Slope: | 3" IN 12" | Roof Structure/Cover: | CJ ALUMINIUM HEAVY |
|
| | Type | Description | Class CD | Sub Class CD | Year Built | Area |
| | BAS | BASE/MAIN FLOOR | 4 | 0 | 2019 | 1316.2 |
| | BIG | BUILT IN GARAGE | 4 | 0 | 2019 | 654.8 |
| | DWN | DOWNSTAIRS LIVING AREA | 4 | 0 | 2019 | 661.5 |
| | OWP | OPEN WOOD PORCH W/STEPS | 4 | 0 | 2019 | 348.0 |
| | UTY | STORAGE/UTILITY | 4 | 0 | 2019 | 140.0 |
Sketch
Property Image
Land
| 1 | HB | HIGH BLUFF | 1.0600 | 46173.60 | 110.00 | 0.00 | 1.00 | $450,000 | $0 |
Roll Value History
| 2026 | N/A | N/A | N/A | N/A | N/A |
| 2025 | $435,420 | $450,000 | $0 | $885,420 | $885,420 |
| 2024 | $438,932 | $425,000 | $0 | $863,932 | $863,932 |
| 2023 | $442,444 | $425,000 | $0 | $867,444 | $867,444 |
| 2022 | $403,818 | $375,000 | $0 | $778,818 | $778,818 |
| 2021 | $349,108 | $275,000 | $0 | $624,108 | $624,108 |
| 2020 | $342,170 | $250,000 | $0 | $592,170 | $592,170 |
| 2019 | $62,263 | $150,000 | $0 | $212,263 | $212,263 |
| 2018 | $0 | $150,000 | $0 | $150,000 | $150,000 |
| 2017 | $0 | $70,000 | $0 | $70,000 | $70,000 |
| 2016 | $0 | $70,000 | $0 | $70,000 | $70,000 |
| 2015 | $0 | $70,000 | $0 | $70,000 | $70,000 |
| 2014 | $0 | $70,000 | $0 | $70,000 | $70,000 |
| 2013 | $0 | $129,834 | $0 | $129,834 | $129,834 |
| 2012 | $0 | $129,834 | $0 | $129,834 | $129,834 |
| 2011 | $0 | $162,293 | $0 | $162,293 | $162,293 |
| 2010 | $0 | $231,847 | $0 | $231,847 | $231,847 |
| 2009 | $0 | $255,291 | $0 | $255,291 | $255,291 |
| 2008 | $0 | $203,784 | $0 | $203,784 | $203,784 |
| 2007 | $0 | $203,784 | $0 | $203,784 | $203,784 |
Deed and Sales History
| 1 | 04/05/2019 | WD | Warranty Deed | BROWN, MIKAO | BROWN TTEE, MIKAO | | | $0.00 | 38441 | 4463041 |
| 2 | 09/13/2017 | WD | Warranty Deed | FREITAS, ANNE | BROWN, MIKAO | | | $155,000.00 | 31086 | 4430161 |
| 3 | 07/18/2007 | WD | Warranty Deed | CLINGMAN, MICHAEL | FREITAS, ANNE | | | $300,000.00 | 72548 | 4208250 |
| 4 | 11/01/2005 | 5 | DNU - Marriage License/Name Change | CLINGMAN, MICHAEL | CLINGMAN, MICHAEL | | | $0.00 | 55604 | 4153187 |
| 5 | 07/01/1997 | OTHER | Other - Misc. Documents | CLINGMAN, MICHAEL | CLINGMAN, MICHAEL | | | $3,841.00 | 72217 | 0 |
| 6 | 06/01/1997 | WD | Warranty Deed | GANT, STEPHEN J | CLINGMAN, MICHAEL | | | $52,159.00 | 72216 | 97010327 |
| 7 | 09/01/1989 | WD | Warranty Deed | MEYERS, THOMAS B | GANT, STEPHEN J | | | $28,000.00 | 94208 | 89013845 |
Payout Agreement
| No payout information available.. |