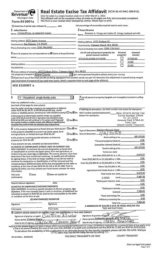
Property
Account |
| Property ID: | 150669 | Abbreviated Legal Description: | MS2:ADD TR 1B SP 78-138 DESC:BG NW CR SEC 25 N88*E1310.55'TO NWCR OF NE NW S35' S54*E805 .24' S1*E949.04' ALG CUR/L 342.08' S34*E252.92'ALG CUR /R 254.96' S10*W280.78' S79*E340.29' S69*E42'TPB S69*E376.24' N369.74' N77*W 348.41' S1*W311.21'TPB TGW & SUB |
| Geographic ID: | R33025-283-2730 | Agent Code: | |
| Type: | Real | | |
| Tax Area: | 542 - APPRAISER-Stan/Cam Schl Dist, Special Dist, improved, greater than 1 acre | Land Use Code | 11 |
| Open Space: | N | DFL | N |
| Historic Property: | N | Remodel Property: | N |
| Multi-Family Redevelopment: | N | | |
| Township: | 30 | Section: | 25 |
| Range: | R3 |
Location |
| Address: | 5051 SOUTH CAMANO DR CAMANO ISLAND, WA 98282 | Mapsco: | |
| Neighborhood: | 58SofTamarackS | Map ID: | 891 |
| Neighborhood CD: | 58RstamS |
Owner |
| Name: | CHANG, XIN A | Owner ID: | 310133 |
| Mailing Address: | DAVID C CHANG 5051 S CAMANO DR CAMANO ISLAND, WA 98282 | % Ownership: | 100.0000000000% |
| | | Exemptions: | |
Taxes and Assessment Details
Values
| (+) Improvement Homesite Value: | + | $0 | |
| (+) Improvement Non-Homesite Value: | + | $576,145 | |
| (+) Land Homesite Value: | + | $0 | |
| (+) Land Non-Homesite Value: | + | $380,000 | |
| (+) Curr Use (HS): | + | $0 | $0 |
| (+) Curr Use (NHS): | + | $0 | $0 |
| | | -------------------------- | |
| (=) Market Value: | = | $956,145 | |
| (–) Productivity Loss: | – | $0 | |
| | | -------------------------- | |
| (=) Subtotal: | = | $956,145 | |
| (+) Senior Appraised Value: | + | $0 | |
| (+) Non-Senior Appraised Value: | + | $956,145 | |
| | | -------------------------- | |
| (=) Total Appraised Value: | = | $956,145 | |
| (–) Senior Exemption Loss: | – | $0 | |
| (–) Exemption Loss: | – | $0 | |
| | | -------------------------- | |
| (=) Taxable Value: | = | $956,145 | |
Taxing Jurisdiction
| Owner: | CHANG, XIN A | | |
| % Ownership: | 100.0000000000% | | |
| Total Value: | $956,145 | | |
| Tax Area: | 542 - APPRAISER-Stan/Cam Schl Dist, Special Dist, improved, greater than 1 acre |
| CF | Conservation Futures | 0.0316035091 | $956,145 | $956,145 | $30.22 | | |
| EMS1 | Fire & Rescue Dist #1 Camano GEN (EMS) | 0.3677864386 | $956,145 | $956,145 | $351.66 | | |
| FIRE1 | Fire & Rescue Dist #1 Camano GEN | 1.2502910536 | $956,145 | $956,145 | $1,195.46 | | |
| FIRE1BOND | Fire & Rescue Dist #1 Camano BOND | 0.1570001679 | $956,145 | $956,145 | $150.11 | | |
| CE | County Current Expense | 0.3708482477 | $956,145 | $956,145 | $354.58 | | |
| CR | County Roads | 0.4584763726 | $956,145 | $956,145 | $438.37 | | |
| LCIB | Library Sno-Isle BOND (Camano Island) | 0.0396325772 | $956,145 | $956,145 | $37.89 | | |
| LIB | Library Sno-Isle GEN | 0.3153421757 | $956,145 | $956,145 | $301.51 | | |
| SCH205_401 | School 205-401 Enrichment | 1.2698420524 | $956,145 | $956,145 | $1,214.15 | | |
| SCH205BOND | School 205-401 BOND | 0.9396497583 | $956,145 | $956,145 | $898.44 | | |
| ST | State School | 1.3035497053 | $956,145 | $956,145 | $1,246.38 | | |
| ST2 | State School Part 2 | 0.8169543533 | $956,145 | $956,145 | $781.13 | | |
| | Total Tax Rate: | 7.3209764117 | | | | | |
| | | | | Taxes w/Current Exemptions: | $6,999.90 | | |
| | | | | Taxes w/o Exemptions: | $6,999.90 | | |
Improvement / Building
| Improvement #1: | RESIDENTIAL | State Code: | Y | 1932.0 sqft | Value: | $576,145 |
| Bathrooms: | 1 | Bedrooms: | 1 | | Ceiling: | TONGUE & GROOVE | Exterior Wall/Cover: | COMMON BRICK VENEER | | Floor Covering: | CERAMIC TILE/CPT 40-60 | Floor Structure: | SLAB ON GRADE | | Foundation: | SLAB | Heating: | BASEBOARD ELECTRIC | | Interior Finish: | DRYWALL PAINT | Plumbing Fixture Cnt: | 5 | | Roof Slope: | 8" IN 12" | Roof Structure/Cover: | BEAM CONCRETE TILE |
|
| | Type | Description | Class CD | Sub Class CD | Year Built | Area |
| | BAS | BASE/MAIN FLOOR | 5 | 0 | 1980 | 1248.0 |
| | ATF | ATTIC FINISHED | 5 | 0 | 1980 | 380.0 |
| | DGR | DETACHED GARAGE | 5 | 0 | 1980 | 572.0 |
| | UPH | HALF STORY | 5 | 0 | 1980 | 684.0 |
| | DGR | DETACHED GARAGE | 5 | 0 | 1980 | 400.0 |
| | ENP | ENCLOSED PORCH | 5 | 0 | 1980 | 576.0 |
| | OP4 | OPEN PORCH W/CEILING-ROOF | 5 | 0 | 1980 | 216.0 |
Sketch
Property Image
Land
| 1 | 18 | AC (02.01-03.00) | 2.7100 | 118047.60 | 0.00 | 0.00 | 1.00 | $380,000 | $0 |
Roll Value History
| 2026 | N/A | N/A | N/A | N/A | N/A |
| 2025 | $576,145 | $380,000 | $0 | $956,145 | $956,145 |
| 2024 | $594,075 | $370,000 | $0 | $964,075 | $964,075 |
| 2023 | $366,839 | $340,000 | $0 | $706,839 | $706,839 |
| 2022 | $336,490 | $320,000 | $0 | $656,490 | $656,490 |
| 2021 | $286,443 | $220,000 | $0 | $506,443 | $506,443 |
| 2020 | $280,710 | $180,000 | $0 | $460,710 | $460,710 |
| 2019 | $213,842 | $225,000 | $0 | $438,842 | $438,842 |
| 2018 | $214,533 | $175,000 | $0 | $389,533 | $389,533 |
| 2017 | $215,918 | $135,000 | $0 | $350,918 | $350,918 |
| 2016 | $218,687 | $100,000 | $0 | $318,687 | $318,687 |
| 2015 | $193,888 | $75,000 | $0 | $268,888 | $268,888 |
| 2014 | $196,116 | $75,000 | $0 | $271,116 | $271,116 |
| 2013 | $198,343 | $75,000 | $0 | $273,343 | $273,343 |
| 2012 | $200,570 | $104,000 | $0 | $304,570 | $304,570 |
| 2011 | $202,798 | $130,000 | $0 | $332,798 | $332,798 |
| 2010 | $210,780 | $130,000 | $0 | $340,780 | $340,780 |
| 2009 | $221,538 | $150,000 | $0 | $371,538 | $371,538 |
| 2008 | $222,753 | $155,000 | $0 | $377,753 | $377,753 |
| 2007 | $226,730 | $125,000 | $0 | $351,730 | $351,730 |
Deed and Sales History
| 1 | 09/20/2023 | WD | Warranty Deed | RAYKOVICH, JENNIE LYNN | CHANG, XIN A | | | $1,070,000.00 | 58036 | 4564934 |
| 2 | 03/29/2021 | CPADC | Comm Prop Agmnt & Death Cert | RAYKOVICH, GARY T | RAYKOVICH, JENNIE LYNN | | | | 88987 | |
| 3 | 12/01/1986 | WD | Warranty Deed | , | RAYKOVICH, GARY T | | | $45,000.00 | 63651 | 86016364 |
| 4 | 01/01/1900 | OTHER | Other - Misc. Documents | SCHIFFNER, CRAIG | , | | | $0.00 | 0 | 0 |
| 5 | 01/01/1900 | OTHER | Other - Misc. Documents | Unknown | SCHIFFNER, CRAIG | | | $0.00 | 0 | 0 |
Payout Agreement
| No payout information available.. |