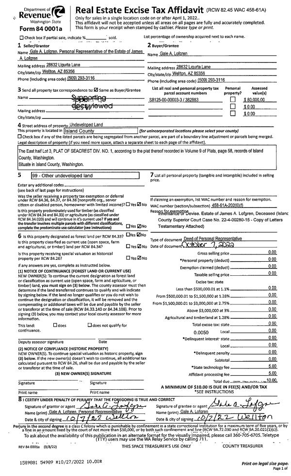
Property
Account |
| Property ID: | 150767 | Abbreviated Legal Description: | 3 - IN GL 5: S/2 OF FOLL DESC PROPERTY AS MEAS @ R/A TO & PARA/W SLN FOLL DESC: PT GL 5: BG SWCR GL 5 N88*E 148.85'TO ELN CO RD N0*W434 .90'CUR/L 200'TPB CONT CUR/ R 105' N82*E237.57' S13*E98 .45' S81*W223.14'TPB TGW: BG SWCR GL 5 N88*E ALG SLN GL 5 148. |
| Geographic ID: | R33025-327-4220 | Agent Code: | |
| Type: | Real | | |
| Tax Area: | 540 - APPRAISER-Stan/Cam Schl Dist, Special Dist, improved & less than 1 acre | Land Use Code | 11 |
| Open Space: | N | DFL | N |
| Historic Property: | N | Remodel Property: | N |
| Multi-Family Redevelopment: | N | | |
| Township: | 30 | Section: | 25 |
| Range: | R3 |
Location |
| Address: | 4155 S EAST CAMANO DR CAMANO ISLAND, WA 98282 | Mapsco: | |
| Neighborhood: | 58RecamWF-East Cam | Map ID: | 891 |
| Neighborhood CD: | 58RecamWF |
Owner |
| Name: | CHIN, KAR WEI | Owner ID: | 300383 |
| Mailing Address: | PENG QIU 4155 SE CAMANO DR CAMANO ISLAND, WA 98282 | % Ownership: | 100.0000000000% |
| | | Exemptions: | |
Taxes and Assessment Details
Values
| (+) Improvement Homesite Value: | + | $0 | |
| (+) Improvement Non-Homesite Value: | + | $621,734 | |
| (+) Land Homesite Value: | + | $0 | |
| (+) Land Non-Homesite Value: | + | $450,000 | |
| (+) Curr Use (HS): | + | $0 | $0 |
| (+) Curr Use (NHS): | + | $0 | $0 |
| | | -------------------------- | |
| (=) Market Value: | = | $1,071,734 | |
| (–) Productivity Loss: | – | $0 | |
| | | -------------------------- | |
| (=) Subtotal: | = | $1,071,734 | |
| (+) Senior Appraised Value: | + | $0 | |
| (+) Non-Senior Appraised Value: | + | $1,071,734 | |
| | | -------------------------- | |
| (=) Total Appraised Value: | = | $1,071,734 | |
| (–) Senior Exemption Loss: | – | $0 | |
| (–) Exemption Loss: | – | $0 | |
| | | -------------------------- | |
| (=) Taxable Value: | = | $1,071,734 | |
Taxing Jurisdiction
| Owner: | CHIN, KAR WEI | | |
| % Ownership: | 100.0000000000% | | |
| Total Value: | $1,071,734 | | |
| Tax Area: | 540 - APPRAISER-Stan/Cam Schl Dist, Special Dist, improved & less than 1 acre |
| CF | Conservation Futures | 0.0316035091 | $1,071,734 | $1,071,734 | $33.87 | | |
| EMS1 | Fire & Rescue Dist #1 Camano GEN (EMS) | 0.3677864386 | $1,071,734 | $1,071,734 | $394.17 | | |
| FIRE1 | Fire & Rescue Dist #1 Camano GEN | 1.2502910536 | $1,071,734 | $1,071,734 | $1,339.98 | | |
| FIRE1BOND | Fire & Rescue Dist #1 Camano BOND | 0.1570001679 | $1,071,734 | $1,071,734 | $168.26 | | |
| CE | County Current Expense | 0.3708482477 | $1,071,734 | $1,071,734 | $397.45 | | |
| CR | County Roads | 0.4584763726 | $1,071,734 | $1,071,734 | $491.36 | | |
| LCIB | Library Sno-Isle BOND (Camano Island) | 0.0396325772 | $1,071,734 | $1,071,734 | $42.48 | | |
| LIB | Library Sno-Isle GEN | 0.3153421757 | $1,071,734 | $1,071,734 | $337.96 | | |
| SCH205_401 | School 205-401 Enrichment | 1.2698420524 | $1,071,734 | $1,071,734 | $1,360.93 | | |
| SCH205BOND | School 205-401 BOND | 0.9396497583 | $1,071,734 | $1,071,734 | $1,007.05 | | |
| ST | State School | 1.3035497053 | $1,071,734 | $1,071,734 | $1,397.06 | | |
| ST2 | State School Part 2 | 0.8169543533 | $1,071,734 | $1,071,734 | $875.56 | | |
| | Total Tax Rate: | 7.3209764117 | | | | | |
| | | | | Taxes w/Current Exemptions: | $7,846.13 | | |
| | | | | Taxes w/o Exemptions: | $7,846.13 | | |
Improvement / Building
| Improvement #1: | RESIDENTIAL | State Code: | Y | 3138.8 sqft | Value: | $621,734 |
| Bathrooms: | 4 | Bedrooms: | 3 | | Ceiling: | DRYWALL PAINTED | Cooling: | HEAT PUMP/CONV/V | | Exterior Wall/Cover: | CEMENT FIBER | Floor Covering: | CERAMIC TILE/HWD 40/60 | | Floor Structure: | WOOD W/SUBFLOOR | Foundation: | CONCRETE | | Interior Finish: | DRYWALL PAINT | Plumbing Fixture Cnt: | 19 | | Roof Slope: | 10" IN 12" | Roof Structure/Cover: | CJ ASPHALT |
|
| | Type | Description | Class CD | Sub Class CD | Year Built | Area |
| | BAS | BASE/MAIN FLOOR | 4 | 0 | 2004 | 1567.9 |
| | BIG | BUILT IN GARAGE | 4 | 0 | 2004 | 869.6 |
| | UPS | UPPER STORY | 4 | 0 | 2004 | 968.5 |
| | OWP | OPEN WOOD PORCH W/STEPS | 4 | 0 | 2004 | 141.5 |
| | OWP | OPEN WOOD PORCH W/STEPS | 4 | 0 | 2004 | 1439.0 |
| | OWP | OPEN WOOD PORCH W/STEPS | 4 | 0 | 2004 | 168.0 |
| | DWN | DOWNSTAIRS LIVING AREA | 4 | 0 | 2004 | 602.4 |
Sketch
Property Image
Land
| 1 | HB | HIGH BLUFF | 0.9500 | 41382.00 | 145.00 | 0.00 | 1.00 | $450,000 | $0 |
Roll Value History
| 2026 | N/A | N/A | N/A | N/A | N/A |
| 2025 | $621,734 | $450,000 | $0 | $1,071,734 | $1,071,734 |
| 2024 | $629,027 | $425,000 | $0 | $1,054,027 | $1,054,027 |
| 2023 | $636,320 | $425,000 | $0 | $1,061,320 | $1,061,320 |
| 2022 | $576,256 | $375,000 | $0 | $951,256 | $951,256 |
| 2021 | $407,536 | $275,000 | $0 | $682,536 | $682,536 |
| 2020 | $382,769 | $250,000 | $0 | $632,769 | $632,769 |
| 2019 | $307,742 | $300,000 | $0 | $607,742 | $607,742 |
| 2018 | $308,624 | $250,000 | $0 | $558,624 | $558,624 |
| 2017 | $310,388 | $185,000 | $0 | $495,388 | $495,388 |
| 2016 | $313,916 | $150,000 | $0 | $463,916 | $463,916 |
| 2015 | $310,388 | $150,000 | $0 | $460,388 | $460,388 |
| 2014 | $326,394 | $200,000 | $0 | $526,394 | $526,394 |
| 2013 | $330,059 | $218,454 | $0 | $548,513 | $548,513 |
| 2012 | $310,000 | $150,000 | $0 | $460,000 | $460,000 |
| 2011 | $155,000 | $150,000 | $0 | $305,000 | $305,000 |
| 2010 | $345,305 | $340,682 | $0 | $685,987 | $685,987 |
| 2009 | $391,688 | $358,628 | $0 | $750,316 | $750,316 |
| 2008 | $392,032 | $289,086 | $0 | $681,118 | $681,118 |
| 2007 | $396,339 | $289,086 | $0 | $685,425 | $685,425 |
Deed and Sales History
| 1 | 07/20/2021 | WD | Warranty Deed | DELLINO, MICHELLE | CHIN, KAR WEI | | | $850,000.00 | 49364 | 4525469 |
| 2 | 01/05/2021 | QCD | Quit Claim Deed | DELLINO, MICHELLE | DELLINO, MICHELLE | | | $0.00 | 46496 | 4507493 |
| 3 | 01/02/2021 | WD | Warranty Deed | DONALDSON JTWROS, SONJA | DELLINO, MICHELLE | | | $760,000.00 | 46495 | 4507492 |
| 4 | 08/03/2016 | OTHER | Other - Misc. Documents | DONALDSON JTWROS, SONJA | DONALDSON JTWROS, SONJA | | | $0.00 | 25571 | 4404629 |
| 5 | 12/17/2010 | WD | Warranty Deed | DEUTSCHE BANK NATIONAL | DONALDSON JTWROS, SONJA | | | $305,000.00 | 3196 | 4287201 |
| 6 | 10/02/2009 | TRUSTEED | Trustee's Deed | LUNSFORD, RONALD M | DEUTSCHE BANK NATIONAL, | | | $506,600.00 | 92377 | 4261462 |
| 7 | 11/14/2006 | 5 | DNU - Marriage License/Name Change | LUNSFORD, RONALD M | LUNSFORD, RONALD M | | | $0.00 | 64852 | 4186863 |
| 8 | 04/10/2004 | WD | Warranty Deed | CONST INC, SUN MOUNTAIN | LUNSFORD, RONALD M | | | $53,000.00 | 41648 | 4098162 |
| 9 | 08/29/2003 | WD | Warranty Deed | PEARSON, JOHN DAVID | CONST INC, SUN MOUNTAIN | | | $52,500.00 | 33912 | 4073436 |
| 10 | 09/11/2001 | PRD | Personal Representatives Deed | PEARSON, ETHYL W | PEARSON, JOHN DAVID | | | $0.00 | 13807 | 20044463 |
| 11 | 09/01/1967 | EXECUTORD | Executor Deed | PEARSON, JACK W | PEARSON, ETHYL W | | | $6,000.00 | 28216 | 0 |
| 12 | 01/01/1900 | OTHER | Other - Misc. Documents | Unknown | PEARSON, JACK W | | | $0.00 | 0 | 0 |
Payout Agreement
| No payout information available.. |