Property
Account |
| Property ID: | 150883 | Abbreviated Legal Description: | IN SW NE: BG NWCR SEC 25 N88*E1310.55' TO NWCR NE NW S1*E35' S54*E805.24' S1*E 949.04' ALG CUR/L 342.08' S34*E252.92' N56*E38.33' ALG CUR/R 334.41' N87*E300' S74*E50' S81*E400' TPB S22*E230.60' N61*E662.03' TO WLN E CAMANO DR NWLY ALG SD LN 558' S27*W475. |
| Geographic ID: | R33025-355-3560 | Agent Code: | |
| Type: | Real | | |
| Tax Area: | 542 - APPRAISER-Stan/Cam Schl Dist, Special Dist, improved, greater than 1 acre | Land Use Code | 11 |
| Open Space: | N | DFL | N |
| Historic Property: | N | Remodel Property: | N |
| Multi-Family Redevelopment: | N | | |
| Township: | 30 | Section: | 25 |
| Range: | R3 |
Location |
| Address: | 4126 S EAST CAMANO DR CAMANO ISLAND, WA 98282 | Mapsco: | |
| Neighborhood: | 58SofTamarackAC | Map ID: | 891 |
| Neighborhood CD: | 58RstamAC |
Owner |
| Name: | KRALMAN, ANNE E | Owner ID: | 285968 |
| Mailing Address: | RICHARD J GILBERT 4126 SE CAMANO DR CAMANO ISLAND, WA 98282 | % Ownership: | 100.0000000000% |
| | | Exemptions: | |
Taxes and Assessment Details
Values
| (+) Improvement Homesite Value: | + | $0 | |
| (+) Improvement Non-Homesite Value: | + | $338,669 | |
| (+) Land Homesite Value: | + | $0 | |
| (+) Land Non-Homesite Value: | + | $320,000 | |
| (+) Curr Use (HS): | + | $0 | $0 |
| (+) Curr Use (NHS): | + | $0 | $0 |
| | | -------------------------- | |
| (=) Market Value: | = | $658,669 | |
| (–) Productivity Loss: | – | $0 | |
| | | -------------------------- | |
| (=) Subtotal: | = | $658,669 | |
| (+) Senior Appraised Value: | + | $0 | |
| (+) Non-Senior Appraised Value: | + | $658,669 | |
| | | -------------------------- | |
| (=) Total Appraised Value: | = | $658,669 | |
| (–) Senior Exemption Loss: | – | $0 | |
| (–) Exemption Loss: | – | $0 | |
| | | -------------------------- | |
| (=) Taxable Value: | = | $658,669 | |
Taxing Jurisdiction
| Owner: | KRALMAN, ANNE E | | |
| % Ownership: | 100.0000000000% | | |
| Total Value: | $658,669 | | |
| Tax Area: | 542 - APPRAISER-Stan/Cam Schl Dist, Special Dist, improved, greater than 1 acre |
| CF | Conservation Futures | 0.0316035091 | $658,669 | $658,669 | $20.82 | | |
| EMS1 | Fire & Rescue Dist #1 Camano GEN (EMS) | 0.3677864386 | $658,669 | $658,669 | $242.25 | | |
| FIRE1 | Fire & Rescue Dist #1 Camano GEN | 1.2502910536 | $658,669 | $658,669 | $823.53 | | |
| FIRE1BOND | Fire & Rescue Dist #1 Camano BOND | 0.1570001679 | $658,669 | $658,669 | $103.41 | | |
| CE | County Current Expense | 0.3708482477 | $658,669 | $658,669 | $244.27 | | |
| CR | County Roads | 0.4584763726 | $658,669 | $658,669 | $301.98 | | |
| LCIB | Library Sno-Isle BOND (Camano Island) | 0.0396325772 | $658,669 | $658,669 | $26.10 | | |
| LIB | Library Sno-Isle GEN | 0.3153421757 | $658,669 | $658,669 | $207.71 | | |
| SCH205_401 | School 205-401 Enrichment | 1.2698420524 | $658,669 | $658,669 | $836.41 | | |
| SCH205BOND | School 205-401 BOND | 0.9396497583 | $658,669 | $658,669 | $618.92 | | |
| ST | State School | 1.3035497053 | $658,669 | $658,669 | $858.61 | | |
| ST2 | State School Part 2 | 0.8169543533 | $658,669 | $658,669 | $538.10 | | |
| | Total Tax Rate: | 7.3209764117 | | | | | |
| | | | | Taxes w/Current Exemptions: | $4,822.11 | | |
| | | | | Taxes w/o Exemptions: | $4,822.11 | | |
Improvement / Building
| Improvement #1: | RESIDENTIAL | State Code: | Y | 1827.0 sqft | Value: | $338,669 |
| Bathrooms: | 2 | Bedrooms: | 3 | | Ceiling: | DRYWALL PAINTED | Exterior Wall/Cover: | CEMENT FIBER | | Floor Covering: | HARDWOOD/CARP 60-40 | Floor Structure: | WOOD W/SUBFLOOR | | Foundation: | CONCRETE | Heating: | WALL HEAT ELECTRIC | | Interior Finish: | DRYWALL PAINT | Plumbing Fixture Cnt: | 9 | | Roof Slope: | 6" IN 12" | Roof Structure/Cover: | CJ ASPHALT |
|
| | Type | Description | Class CD | Sub Class CD | Year Built | Area |
| | BAS | BASE/MAIN FLOOR | 3 | 0 | 2004 | 1827.0 |
| | OP4 | OPEN PORCH W/CEILING-ROOF | 3 | 0 | 2004 | 18.0 |
| | AGR | ATTACHED GARAGE | 3 | 0 | 2004 | 400.0 |
| | OWP | OPEN WOOD PORCH W/STEPS | 3 | 0 | 2004 | 140.0 |
| | ENP | ENCLOSED PORCH | 3 | 0 | 2004 | 160.0 |
| | CPD | OPEN CARPORT DIRT FLOOR | 3 | 0 | 2004 | 630.5 |
| | UTY | STORAGE/UTILITY | 3 | 0 | 2004 | 144.0 |
Sketch
Property Image
Land
| 1 | 32 | AC (03.01-09.99) | 5.0100 | 218235.60 | 0.00 | 0.00 | 1.00 | $320,000 | $0 |
Roll Value History
| 2026 | N/A | N/A | N/A | N/A | N/A |
| 2025 | $338,669 | $320,000 | $0 | $658,669 | $658,669 |
| 2024 | $342,551 | $280,000 | $0 | $622,551 | $622,551 |
| 2023 | $346,431 | $260,000 | $0 | $606,431 | $606,431 |
| 2022 | $316,337 | $210,000 | $0 | $526,337 | $526,337 |
| 2021 | $265,817 | $160,000 | $0 | $425,817 | $425,817 |
| 2020 | $259,216 | $150,000 | $0 | $409,216 | $409,216 |
| 2019 | $194,134 | $200,000 | $0 | $394,134 | $394,134 |
| 2018 | $194,678 | $165,000 | $0 | $359,678 | $359,678 |
| 2017 | $195,766 | $150,000 | $0 | $345,766 | $345,766 |
| 2016 | $197,941 | $130,000 | $0 | $327,941 | $327,941 |
| 2015 | $189,287 | $84,000 | $0 | $273,287 | $273,287 |
| 2014 | $191,379 | $84,000 | $0 | $275,379 | $275,379 |
| 2013 | $193,470 | $84,168 | $0 | $277,638 | $277,638 |
| 2012 | $195,563 | $84,168 | $0 | $279,731 | $279,731 |
| 2011 | $197,654 | $93,000 | $0 | $290,654 | $290,654 |
| 2010 | $204,403 | $93,000 | $0 | $297,403 | $297,403 |
| 2009 | $209,039 | $120,000 | $0 | $329,039 | $329,039 |
| 2008 | $213,244 | $110,000 | $0 | $323,244 | $323,244 |
| 2007 | $215,552 | $110,000 | $0 | $325,552 | $325,552 |
Deed and Sales History
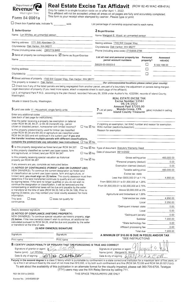
| 1 | 07/06/2018 | WD | Warranty Deed | GLADSJO, ERIK L | KRALMAN, ANNE E | | | $425,000.00 | 34956 | 4447792 |
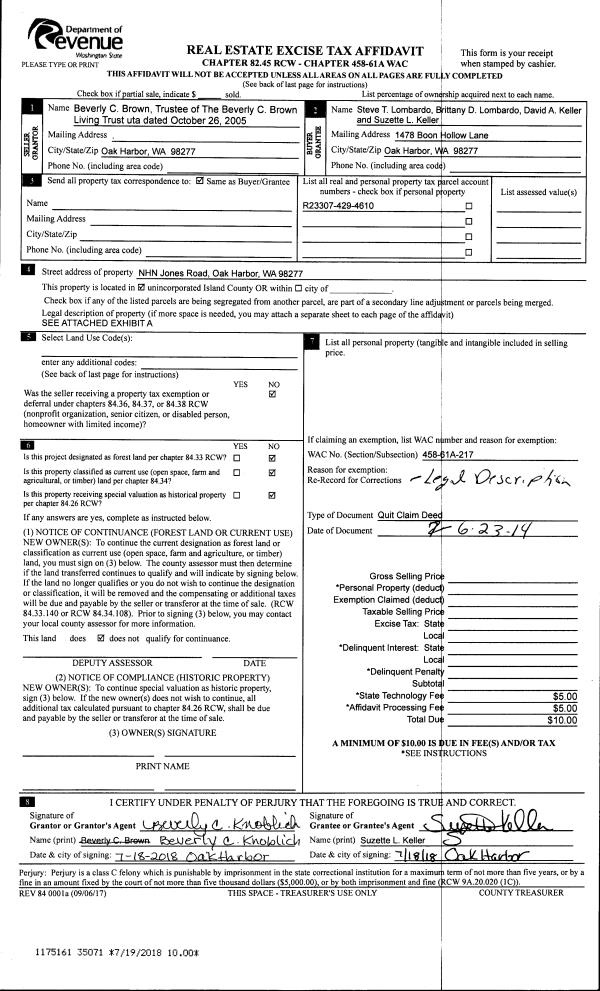
| 2 | 09/15/2016 | QCD | Quit Claim Deed | GLADSJO, ERIK L | GLADSJO, ERIK L | | | $0.00 | 26218 | 4407732 |
| 3 | 08/03/2016 | OTHER | Other - Misc. Documents | GLADSJO, ERIK L | GLADSJO, ERIK L | | | $0.00 | 25571 | 4404629 |
| 4 | 04/09/2004 | WD | Warranty Deed | GARRISON, FIRST F | GLADSJO, ERIK L | | | $239,468.00 | 41394 | 4096708 |
| 5 | 05/01/1996 | QCD | Quit Claim Deed | TIEN, MEI C | GARRISON, FIRST F | | | $0.00 | 61615 | 96008192 |
| 6 | 05/01/1996 | WD | Warranty Deed | GARRISON, FIRST F | TIEN, MEI C | | | $44,300.00 | 62161 | 96010735 |
| 7 | 08/01/1994 | QCD | Quit Claim Deed | GARRISON, JOSEPH B | GARRISON, FIRST F | | | $0.00 | 43714 | 94019514 |
| 8 | 06/01/1990 | QCD | Quit Claim Deed | GARRISON, JOSEPH B | GARRISON, JOSEPH B | | | $0.00 | 4034 | 90013177 |
| 9 | 12/01/1989 | QCD | Quit Claim Deed | JASM, INC | GARRISON, JOSEPH B | | | $0.00 | 95998 | 90006710 |
Payout Agreement
| No payout information available.. |