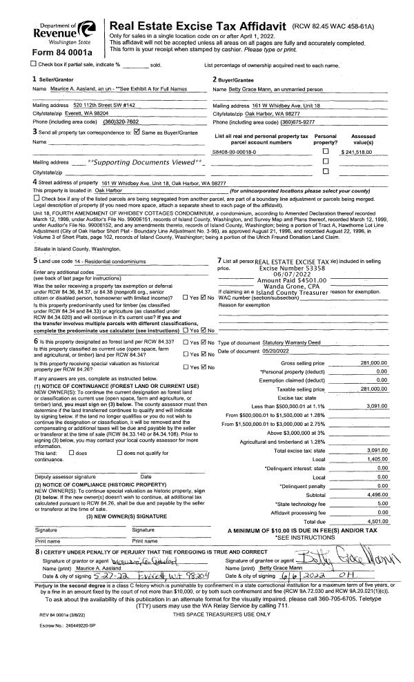
Property
Account |
| Property ID: | 150945 | Abbreviated Legal Description: | MS1:B OF E 8 - IN SW NE & GL5: BG SWCR GL5 N88*E148.85' N434.90' NWLY ALG CUR/L 726.46' TPB CONT ALG CUR/L 37.47' N62*E 120' N79*E533.03' S51*E38 .54' S13*E41.73' S75*W438 .19' TPB (TR B SP 72-093 AF#256520) |
| Geographic ID: | R33025-378-3950 | Agent Code: | |
| Type: | Real | | |
| Tax Area: | 549 - APPRAISER-Stan/Cam Schl Dist, Special Dist, vacant & 50 acres or less | Land Use Code | 91 |
| Open Space: | N | DFL | N |
| Historic Property: | N | Remodel Property: | N |
| Multi-Family Redevelopment: | N | | |
| Township: | 30 | Section: | 25 |
| Range: | R3 |
Location |
| Address: | | Mapsco: | |
| Neighborhood: | 58RecamNB-East Cam | Map ID: | 891 |
| Neighborhood CD: | 58RecamNB |
Owner |
| Name: | CARNELL, CLAYTON L | Owner ID: | 59961 |
| Mailing Address: | LINDA A CARNELL 524 E LAKE STEVENS RD LAKE STEVENS, WA 98258-8667 | % Ownership: | 100.0000000000% |
| | | Exemptions: | |
Taxes and Assessment Details
Values
| (+) Improvement Homesite Value: | + | $0 | |
| (+) Improvement Non-Homesite Value: | + | $0 | |
| (+) Land Homesite Value: | + | $0 | |
| (+) Land Non-Homesite Value: | + | $40,000 | |
| (+) Curr Use (HS): | + | $0 | $0 |
| (+) Curr Use (NHS): | + | $0 | $0 |
| | | -------------------------- | |
| (=) Market Value: | = | $40,000 | |
| (–) Productivity Loss: | – | $0 | |
| | | -------------------------- | |
| (=) Subtotal: | = | $40,000 | |
| (+) Senior Appraised Value: | + | $0 | |
| (+) Non-Senior Appraised Value: | + | $40,000 | |
| | | -------------------------- | |
| (=) Total Appraised Value: | = | $40,000 | |
| (–) Senior Exemption Loss: | – | $0 | |
| (–) Exemption Loss: | – | $0 | |
| | | -------------------------- | |
| (=) Taxable Value: | = | $40,000 | |
Taxing Jurisdiction
| Owner: | CARNELL, CLAYTON L | | |
| % Ownership: | 100.0000000000% | | |
| Total Value: | $40,000 | | |
| Tax Area: | 549 - APPRAISER-Stan/Cam Schl Dist, Special Dist, vacant & 50 acres or less |
| CF | Conservation Futures | 0.0316035091 | $40,000 | $40,000 | $1.26 | | |
| EMS1 | Fire & Rescue Dist #1 Camano GEN (EMS) | 0.3677864386 | $40,000 | $40,000 | $14.71 | | |
| CE | County Current Expense | 0.3708482477 | $40,000 | $40,000 | $14.83 | | |
| CR | County Roads | 0.4584763726 | $40,000 | $40,000 | $18.34 | | |
| LCIB | Library Sno-Isle BOND (Camano Island) | 0.0396325772 | $40,000 | $40,000 | $1.59 | | |
| LIB | Library Sno-Isle GEN | 0.3153421757 | $40,000 | $40,000 | $12.61 | | |
| SCH205_401 | School 205-401 Enrichment | 1.2698420524 | $40,000 | $40,000 | $50.79 | | |
| SCH205BOND | School 205-401 BOND | 0.9396497583 | $40,000 | $40,000 | $37.59 | | |
| ST | State School | 1.3035497053 | $40,000 | $40,000 | $52.14 | | |
| ST2 | State School Part 2 | 0.8169543533 | $40,000 | $40,000 | $32.68 | | |
| | Total Tax Rate: | 5.9136851902 | | | | | |
| | | | | Taxes w/Current Exemptions: | $236.54 | | |
| | | | | Taxes w/o Exemptions: | $236.54 | | |
Improvement / Building
Sketch
| No sketches available for this property. |
Property Image
Land
| 1 | HB | HIGH BLUFF | 0.9400 | 40946.40 | 68.00 | 0.00 | 1.00 | $40,000 | $0 |
Roll Value History
| 2026 | N/A | N/A | N/A | N/A | N/A |
| 2025 | $0 | $40,000 | $0 | $40,000 | $40,000 |
| 2024 | $0 | $40,000 | $0 | $40,000 | $40,000 |
| 2023 | $0 | $40,000 | $0 | $40,000 | $40,000 |
| 2022 | $0 | $40,000 | $0 | $40,000 | $40,000 |
| 2021 | $0 | $40,000 | $0 | $40,000 | $40,000 |
| 2020 | $0 | $40,000 | $0 | $40,000 | $40,000 |
| 2019 | $0 | $40,000 | $0 | $40,000 | $40,000 |
| 2018 | $0 | $40,000 | $0 | $40,000 | $40,000 |
| 2017 | $0 | $30,000 | $0 | $30,000 | $30,000 |
| 2016 | $0 | $30,000 | $0 | $30,000 | $30,000 |
| 2015 | $0 | $30,000 | $0 | $30,000 | $30,000 |
| 2014 | $0 | $30,000 | $0 | $30,000 | $30,000 |
| 2013 | $0 | $23,682 | $0 | $23,682 | $23,682 |
| 2012 | $0 | $23,682 | $0 | $23,682 | $23,682 |
| 2011 | $0 | $29,603 | $0 | $29,603 | $29,603 |
| 2010 | $0 | $29,603 | $0 | $29,603 | $29,603 |
| 2009 | $0 | $116,051 | $0 | $116,051 | $116,051 |
| 2008 | $0 | $101,846 | $0 | $101,846 | $101,846 |
| 2007 | $0 | $101,846 | $0 | $101,846 | $101,846 |
Deed and Sales History
| 1 | 05/03/2004 | WD | Warranty Deed | VELASCO, LUCY | CARNELL, CLAYTON L | | | $58,000.00 | 41871 | 4099599 |
| 2 | 08/01/1997 | DECREE | Divorce Decree/Legal Separation | SAVALA, EDWARD | VELASCO, LUCY | | | $0.00 | 72800 | 97013390 |
| 3 | 12/01/1989 | WD | Warranty Deed | ARRINGTON, DALE E | SAVALA, EDWARD | | | $32,500.00 | 59 | 90000181 |
| 4 | 08/01/1989 | WD | Warranty Deed | VERESS, SANDOR A | ARRINGTON, DALE E | | | $15,000.00 | 93731 | 89012464 |
| 5 | 10/01/1972 | TRUSTEED | Trustee's Deed | SHAW, HENRY E | VERESS, SANDOR A | | | $0.00 | 46475 | 0 |
| 6 | 01/01/1900 | OTHER | Other - Misc. Documents | Unknown | SHAW, HENRY E | | | $0.00 | 0 | 0 |
Payout Agreement
| No payout information available.. |