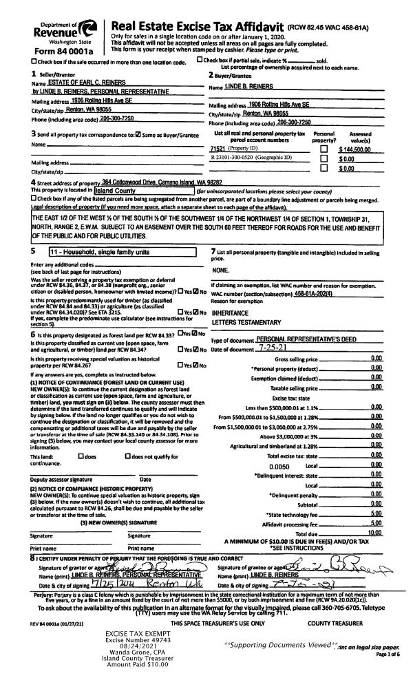
Property
Account |
| Property ID: | 151800 | Abbreviated Legal Description: | 2 - NW NE TGW EZ AF#90018644 |
| Geographic ID: | R33030-463-3620 | Agent Code: | |
| Type: | Real | | |
| Tax Area: | 715 - S Whid Schl Dist, outside Langley, vacant, combined for Forest Protection | Land Use Code | 88 |
| Open Space: | N | DFL | Y |
| Historic Property: | N | Remodel Property: | N |
| Multi-Family Redevelopment: | N | | |
| Township: | 30 | Section: | 30 |
| Range: | R3 |
Location |
| Address: | LANGLEY, WA 98260 | Mapsco: | |
| Neighborhood: | Cycle 4 | Map ID: | 899 |
| Neighborhood CD: | 4 |
Owner |
| Name: | FREI LLC | Owner ID: | 180513 |
| Mailing Address: | C/O FRED FREI JR PO BOX 1306 LANGLEY, WA 98260-1306 | % Ownership: | 100.0000000000% |
| | | Exemptions: | |
Taxes and Assessment Details
Values
| (+) Improvement Homesite Value: | + | $0 | |
| (+) Improvement Non-Homesite Value: | + | $0 | |
| (+) Land Homesite Value: | + | $0 | |
| (+) Land Non-Homesite Value: | + | $0 | |
| (+) Curr Use (HS): | + | $0 | $0 |
| (+) Curr Use (NHS): | + | $510,000 | $5,960 |
| | | -------------------------- | |
| (=) Market Value: | = | $510,000 | |
| (–) Productivity Loss: | – | $504,040 | |
| | | -------------------------- | |
| (=) Subtotal: | = | $5,960 | |
| (+) Senior Appraised Value: | + | $0 | |
| (+) Non-Senior Appraised Value: | + | $5,960 | |
| | | -------------------------- | |
| (=) Total Appraised Value: | = | $5,960 | |
| (–) Senior Exemption Loss: | – | $0 | |
| (–) Exemption Loss: | – | $0 | |
| | | -------------------------- | |
| (=) Taxable Value: | = | $5,960 | |
Taxing Jurisdiction
| Owner: | FREI LLC | | |
| % Ownership: | 100.0000000000% | | |
| Total Value: | $510,000 | | |
| Tax Area: | 715 - S Whid Schl Dist, outside Langley, vacant, combined for Forest Protection |
| CF | Conservation Futures | 0.0316035091 | $5,960 | $5,960 | $0.19 | | |
| HOBOND | Hospital BOND | 0.1910887512 | $5,960 | $5,960 | $1.14 | | |
| HOGEN | Hospital GEN | 0.3902502903 | $5,960 | $5,960 | $2.33 | | |
| CE | County Current Expense | 0.3708482477 | $5,960 | $5,960 | $2.21 | | |
| CR | County Roads | 0.4584763726 | $5,960 | $5,960 | $2.73 | | |
| ISLANDEMS | Hospital GEN (EMS) | 0.5000000000 | $5,960 | $5,960 | $2.98 | | |
| LIB | Library Sno-Isle GEN | 0.3153421757 | $5,960 | $5,960 | $1.88 | | |
| PORTWHID | Port of S Whidbey GEN | 0.1094540357 | $5,960 | $5,960 | $0.65 | | |
| SCH206BOND | School 206 BOND | 0.3161759235 | $5,960 | $5,960 | $1.88 | | |
| SCH206MO | School 206 Enrichment | 0.4547169547 | $5,960 | $5,960 | $2.71 | | |
| ST | State School | 1.3035497053 | $5,960 | $5,960 | $7.77 | | |
| ST2 | State School Part 2 | 0.8169543533 | $5,960 | $5,960 | $4.87 | | |
| SWHIDPRBD | P & R S Whidbey BOND | 0.0152817568 | $5,960 | $5,960 | $0.09 | | |
| SWHIDPRBD2 | P & R S Whidbey BOND2 | 0.0138911264 | $5,960 | $5,960 | $0.08 | | |
| SWHIDPRMT | P & R S Whidbey GEN | 0.2053334452 | $5,960 | $5,960 | $1.22 | | |
| | Total Tax Rate: | 5.4929666475 | | | | | |
| | | | | Taxes w/Current Exemptions: | $32.73 | | |
| | | | | Taxes w/o Exemptions: | $32.73 | | |
Improvement / Building
Sketch
| No sketches available for this property. |
Property Image
Land
| 1 | 37 | AC (31.00-+) | 40.0000 | 1742400.00 | 0.00 | 0.00 | 1.00 | $510,000 | $5,960 |
Roll Value History
| 2026 | N/A | N/A | N/A | N/A | N/A |
| 2025 | $0 | $510,000 | $5,960 | $5,960 | $5,960 |
| 2024 | $0 | $500,000 | $6,000 | $6,000 | $6,000 |
| 2023 | $0 | $450,000 | $5,760 | $5,760 | $5,760 |
| 2022 | $0 | $450,000 | $5,760 | $5,760 | $5,760 |
| 2021 | $0 | $350,000 | $5,760 | $5,760 | $5,760 |
| 2020 | $0 | $350,000 | $5,760 | $5,760 | $5,760 |
| 2019 | $0 | $350,000 | $5,560 | $5,560 | $5,560 |
| 2018 | $0 | $300,000 | $5,480 | $5,480 | $5,480 |
| 2017 | $0 | $300,000 | $5,480 | $5,480 | $5,480 |
| 2016 | $0 | $300,000 | $4,040 | $4,040 | $4,040 |
| 2015 | $0 | $300,000 | $4,040 | $4,040 | $4,040 |
| 2014 | $0 | $295,800 | $4,040 | $4,040 | $4,040 |
| 2013 | $0 | $295,800 | $4,040 | $4,040 | $4,040 |
| 2012 | $0 | $295,800 | $4,040 | $4,040 | $4,040 |
| 2011 | $0 | $348,000 | $4,040 | $4,040 | $4,040 |
| 2010 | $0 | $348,000 | $4,040 | $4,040 | $4,040 |
| 2009 | $0 | $400,000 | $4,040 | $4,040 | $4,040 |
| 2008 | $0 | $349,248 | $4,040 | $4,040 | $4,040 |
| 2007 | $0 | $321,708 | $4,040 | $4,040 | $4,040 |
Deed and Sales History
| 1 | 07/08/1999 | QCD | Quit Claim Deed | FREI, FRED E | FREI, LLC, | | | $0.00 | 92703 | 99016071 |
| 2 | 07/08/1999 | QCD | Quit Claim Deed | Unknown | FREI, FRED E | | | $0.00 | 0 | 90018644 |
Payout Agreement
| No payout information available.. |