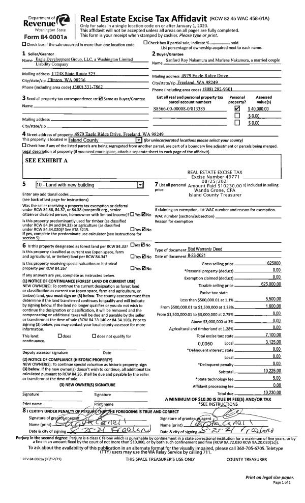
Property
Account |
| Property ID: | 152471 | Abbreviated Legal Description: | 1 - IN GL1: PT GL1 LY E OF PLAT OF DONEGAL HEIGHTS & LY E OF ELN LOT 12 DONEGAL HEIGHTS EXT NLY EX PT LY NLY OF ELY EXT OF NLY LN OF SD LOT 12 EX SARATOGA RD R/W TGW EZ AF#92022230 62/334 |
| Geographic ID: | R33033-183-5200 | Agent Code: | |
| Type: | Real | | |
| Tax Area: | 719 - APPRAISER-S Whid Schl Dist, outside Langley, vacant & 50 acres or less | Land Use Code | 91 |
| Open Space: | N | DFL | N |
| Historic Property: | N | Remodel Property: | N |
| Multi-Family Redevelopment: | N | | |
| Township: | 30 | Section: | 33 |
| Range: | R3 |
Location |
| Address: | | Mapsco: | |
| Neighborhood: | Cycle 4 | Map ID: | 910 |
| Neighborhood CD: | 4 |
Owner |
| Name: | TOMPKINS, PATRIC DANIEL | Owner ID: | 271813 |
| Mailing Address: | HOLLY NICOLE TOMPKINS 28382 MILLWOOD RD PORTOLA HILLS, CA 92679 | % Ownership: | 100.0000000000% |
| | | Exemptions: | |
Taxes and Assessment Details
Values
| (+) Improvement Homesite Value: | + | $0 | |
| (+) Improvement Non-Homesite Value: | + | $0 | |
| (+) Land Homesite Value: | + | $0 | |
| (+) Land Non-Homesite Value: | + | $240,000 | |
| (+) Curr Use (HS): | + | $0 | $0 |
| (+) Curr Use (NHS): | + | $0 | $0 |
| | | -------------------------- | |
| (=) Market Value: | = | $240,000 | |
| (–) Productivity Loss: | – | $0 | |
| | | -------------------------- | |
| (=) Subtotal: | = | $240,000 | |
| (+) Senior Appraised Value: | + | $0 | |
| (+) Non-Senior Appraised Value: | + | $240,000 | |
| | | -------------------------- | |
| (=) Total Appraised Value: | = | $240,000 | |
| (–) Senior Exemption Loss: | – | $0 | |
| (–) Exemption Loss: | – | $0 | |
| | | -------------------------- | |
| (=) Taxable Value: | = | $240,000 | |
Taxing Jurisdiction
| Owner: | TOMPKINS, PATRIC DANIEL | | |
| % Ownership: | 100.0000000000% | | |
| Total Value: | $240,000 | | |
| Tax Area: | 719 - APPRAISER-S Whid Schl Dist, outside Langley, vacant & 50 acres or less |
| CF | Conservation Futures | 0.0316035091 | $240,000 | $240,000 | $7.58 | | |
| HOBOND | Hospital BOND | 0.1910887512 | $240,000 | $240,000 | $45.86 | | |
| HOGEN | Hospital GEN | 0.3902502903 | $240,000 | $240,000 | $93.66 | | |
| CE | County Current Expense | 0.3708482477 | $240,000 | $240,000 | $89.00 | | |
| CR | County Roads | 0.4584763726 | $240,000 | $240,000 | $110.03 | | |
| ISLANDEMS | Hospital GEN (EMS) | 0.5000000000 | $240,000 | $240,000 | $120.00 | | |
| LIB | Library Sno-Isle GEN | 0.3153421757 | $240,000 | $240,000 | $75.68 | | |
| PORTWHID | Port of S Whidbey GEN | 0.1094540357 | $240,000 | $240,000 | $26.27 | | |
| SCH206BOND | School 206 BOND | 0.3161759235 | $240,000 | $240,000 | $75.88 | | |
| SCH206MO | School 206 Enrichment | 0.4547169547 | $240,000 | $240,000 | $109.13 | | |
| ST | State School | 1.3035497053 | $240,000 | $240,000 | $312.85 | | |
| ST2 | State School Part 2 | 0.8169543533 | $240,000 | $240,000 | $196.07 | | |
| SWHIDPRBD | P & R S Whidbey BOND | 0.0152817568 | $240,000 | $240,000 | $3.67 | | |
| SWHIDPRBD2 | P & R S Whidbey BOND2 | 0.0138911264 | $240,000 | $240,000 | $3.33 | | |
| SWHIDPRMT | P & R S Whidbey GEN | 0.2053334452 | $240,000 | $240,000 | $49.28 | | |
| | Total Tax Rate: | 5.4929666475 | | | | | |
| | | | | Taxes w/Current Exemptions: | $1,318.29 | | |
| | | | | Taxes w/o Exemptions: | $1,318.29 | | |
Improvement / Building
Sketch
| No sketches available for this property. |
Property Image
Land
| 1 | 32 | AC (03.01-09.99) | 3.1200 | 135907.20 | 3.12 | 0.00 | 1.00 | $240,000 | $0 |
Roll Value History
| 2026 | N/A | N/A | N/A | N/A | N/A |
| 2025 | $0 | $240,000 | $0 | $240,000 | $240,000 |
| 2024 | $0 | $230,000 | $0 | $230,000 | $230,000 |
| 2023 | $0 | $200,000 | $0 | $200,000 | $200,000 |
| 2022 | $0 | $170,000 | $0 | $170,000 | $170,000 |
| 2021 | $0 | $150,000 | $0 | $150,000 | $150,000 |
| 2020 | $0 | $150,000 | $0 | $150,000 | $150,000 |
| 2019 | $0 | $135,000 | $0 | $135,000 | $135,000 |
| 2018 | $0 | $120,000 | $0 | $120,000 | $120,000 |
| 2017 | $0 | $120,000 | $0 | $120,000 | $120,000 |
| 2016 | $0 | $85,000 | $0 | $85,000 | $85,000 |
| 2015 | $0 | $100,000 | $0 | $100,000 | $100,000 |
| 2014 | $0 | $100,000 | $0 | $100,000 | $100,000 |
| 2013 | $0 | $76,750 | $0 | $76,750 | $76,750 |
| 2012 | $0 | $76,750 | $0 | $76,750 | $76,750 |
| 2011 | $0 | $76,750 | $0 | $76,750 | $76,750 |
| 2010 | $0 | $76,750 | $0 | $76,750 | $76,750 |
| 2009 | $0 | $104,380 | $0 | $104,380 | $104,380 |
| 2008 | $0 | $194,180 | $0 | $194,180 | $194,180 |
| 2007 | $0 | $194,155 | $0 | $194,155 | $194,155 |
Deed and Sales History
| 1 | 12/19/2014 | WD | Warranty Deed | TOMPKINS, TEDMUN D TRUSTEE | TOMPKINS, PATRIC DANIEL | | | $70,000.00 | 18014 | 4370667 |
| 2 | 07/14/2015 | QCD | Quit Claim Deed | TOMPKINS, DON / LORENA | TOMPKINS, TEDMUN D TRUSTEE | | | $0.00 | 20618 | 4382782 |
| 3 | 03/01/1996 | WD | Warranty Deed | TOMPKINS, DON | TOMPKINS, DON/LORENA | | | $0.00 | 60895 | 96004719 |
| 4 | 01/01/1900 | OTHER | Other - Misc. Documents | Unknown | TOMPKINS, DON | | | $0.00 | 0 | 0 |
Payout Agreement
| No payout information available.. |