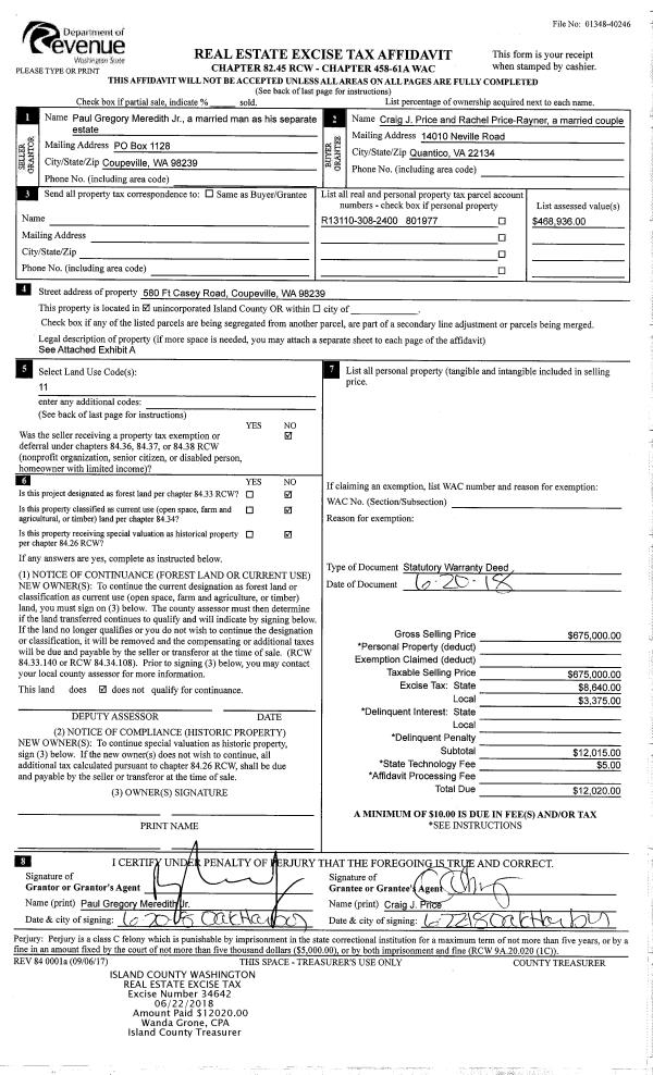
Property
Account |
| Property ID: | 15263 | Abbreviated Legal Description: | 38 - S83.65' OF N868.44' OF GL4 LY W OF RD TGW & SUB EZS |
| Geographic ID: | R13206-050-4170 | Agent Code: | |
| Type: | Real | | |
| Tax Area: | 110 - APPRAISER-OH Schl Dist, outside OH, improved & 1 acre or less | Land Use Code | 11 |
| Open Space: | N | DFL | N |
| Historic Property: | N | Remodel Property: | N |
| Multi-Family Redevelopment: | N | | |
| Township: | 32 | Section: | 06 |
| Range: | R1 |
Location |
| Address: | 2035 WEST BEACH RD OAK HARBOR, WA 98277 | Mapsco: | |
| Neighborhood: | Cycle 1 | Map ID: | 102 |
| Neighborhood CD: | 1 |
Owner |
| Name: | TWENTY THIRTY FIVE WEST BEACH TRUST | Owner ID: | 310636 |
| Mailing Address: | 3225 MCLEOD DR, SUITE 777 LAS VEGAS, NV 89121 | % Ownership: | 100.0000000000% |
| | | Exemptions: | |
Taxes and Assessment Details
Values
| (+) Improvement Homesite Value: | + | $0 | |
| (+) Improvement Non-Homesite Value: | + | $395,121 | |
| (+) Land Homesite Value: | + | $0 | |
| (+) Land Non-Homesite Value: | + | $350,000 | |
| (+) Curr Use (HS): | + | $0 | $0 |
| (+) Curr Use (NHS): | + | $0 | $0 |
| | | -------------------------- | |
| (=) Market Value: | = | $745,121 | |
| (–) Productivity Loss: | – | $0 | |
| | | -------------------------- | |
| (=) Subtotal: | = | $745,121 | |
| (+) Senior Appraised Value: | + | $0 | |
| (+) Non-Senior Appraised Value: | + | $745,121 | |
| | | -------------------------- | |
| (=) Total Appraised Value: | = | $745,121 | |
| (–) Senior Exemption Loss: | – | $0 | |
| (–) Exemption Loss: | – | $0 | |
| | | -------------------------- | |
| (=) Taxable Value: | = | $745,121 | |
Taxing Jurisdiction
| Owner: | TWENTY THIRTY FIVE WEST BEACH TRUST | | |
| % Ownership: | 100.0000000000% | | |
| Total Value: | $745,121 | | |
| Tax Area: | 110 - APPRAISER-OH Schl Dist, outside OH, improved & 1 acre or less |
| CF | Conservation Futures | 0.0316035091 | $745,121 | $745,121 | $23.55 | | |
| CEM1 | Cemetery #1 | 0.0040320932 | $745,121 | $745,121 | $3.00 | | |
| FIRE2 | Fire & Rescue Dist #2 N Whidbey GEN | 0.5475949600 | $745,121 | $745,121 | $408.02 | | |
| HOBOND | Hospital BOND | 0.1910887512 | $745,121 | $745,121 | $142.38 | | |
| HOGEN | Hospital GEN | 0.3902502903 | $745,121 | $745,121 | $290.78 | | |
| CE | County Current Expense | 0.3708482477 | $745,121 | $745,121 | $276.33 | | |
| CR | County Roads | 0.4584763726 | $745,121 | $745,121 | $341.62 | | |
| ISLANDEMS | Hospital GEN (EMS) | 0.5000000000 | $745,121 | $745,121 | $372.56 | | |
| LIB | Library Sno-Isle GEN | 0.3153421757 | $745,121 | $745,121 | $234.97 | | |
| NWHIDPRMT | P & R N Whidbey GEN | 0.2004466701 | $745,121 | $745,121 | $149.36 | | |
| SCH201MO | School 201 Enrichment | 1.8559231640 | $745,121 | $745,121 | $1,382.89 | | |
| ST | State School | 1.3035497053 | $745,121 | $745,121 | $971.30 | | |
| ST2 | State School Part 2 | 0.8169543533 | $745,121 | $745,121 | $608.73 | | |
| | Total Tax Rate: | 6.9861102925 | | | | | |
| | | | | Taxes w/Current Exemptions: | $5,205.49 | | |
| | | | | Taxes w/o Exemptions: | $5,205.49 | | |
Improvement / Building
| Improvement #1: | RESIDENTIAL | State Code: | Y | 2344.5 sqft | Value: | $395,121 |
| Bathrooms: | 2.5 | Bedrooms: | 3 | | Ceiling: | BEAM PAINTED | Cooling: | HEAT PUMP/CONV/V | | Exterior Wall/Cover: | WOOD SIDING | Floor Covering: | CERAMIC TILE/HWD 40/60 | | Floor Structure: | WOOD W/SUBFLOOR | Foundation: | CONCRETE | | Interior Finish: | DRYWALL PAINT | Plumbing Fixture Cnt: | 12 | | Roof Slope: | 4" IN 12" | Roof Structure/Cover: | BEAM ASPHALT |
|
| | Type | Description | Class CD | Sub Class CD | Year Built | Area |
| | BAS | BASE/MAIN FLOOR | 3 | 0 | 1979 | 2344.5 |
| | AGR | ATTACHED GARAGE | 3 | 0 | 1979 | 600.2 |
| | OWP | OPEN WOOD PORCH W/STEPS | 3 | 0 | 1979 | 1081.5 |
| | ENP | ENCLOSED PORCH | 3 | 0 | 1979 | 150.0 |
Sketch
Property Image
Land
| 1 | HB | HIGH BLUFF | 1.0800 | 47044.80 | 84.00 | 0.00 | 1.00 | $350,000 | $0 |
Roll Value History
| 2026 | N/A | N/A | N/A | N/A | N/A |
| 2025 | $395,121 | $350,000 | $0 | $745,121 | $745,121 |
| 2024 | $393,840 | $290,000 | $0 | $683,840 | $683,840 |
| 2023 | $393,840 | $290,000 | $0 | $683,840 | $683,840 |
| 2022 | $361,305 | $290,000 | $0 | $651,305 | $651,305 |
| 2021 | $318,243 | $250,000 | $0 | $568,243 | $568,243 |
| 2020 | $277,580 | $285,000 | $0 | $562,580 | $562,580 |
| 2019 | $215,748 | $250,000 | $0 | $465,748 | $465,748 |
| 2018 | $216,486 | $200,000 | $0 | $416,486 | $416,486 |
| 2017 | $181,701 | $200,000 | $0 | $381,701 | $381,701 |
| 2016 | $184,455 | $200,000 | $0 | $384,455 | $384,455 |
| 2015 | $187,209 | $200,000 | $0 | $387,209 | $387,209 |
| 2014 | $189,962 | $200,000 | $0 | $389,962 | $389,962 |
| 2013 | $192,716 | $191,465 | $0 | $384,181 | $384,181 |
| 2012 | $195,468 | $191,465 | $0 | $386,933 | $386,933 |
| 2011 | $202,442 | $191,465 | $0 | $393,907 | $393,907 |
| 2010 | $221,640 | $191,465 | $0 | $413,105 | $413,105 |
| 2009 | $231,410 | $271,375 | $0 | $502,785 | $502,785 |
| 2008 | $231,918 | $271,375 | $0 | $503,293 | $503,293 |
| 2007 | $235,218 | $271,375 | $0 | $506,593 | $506,593 |
Deed and Sales History
| 1 | 11/08/2023 | WD | Warranty Deed | CHEN, YUNHANG | TWENTY THIRTY FIVE WEST BEACH TRUST | | | $0.00 | 58492 | 4566673 |
| 2 | 11/05/2020 | WD | Warranty Deed | BOELENS, DONALD W | CHEN, YUNHANG | | | $613,000.00 | 45856 | 4503304 |
| 3 | 08/21/2018 | WD | Warranty Deed | JOHNSTON JTWROS, DUKE D | BOELENS, DONALD W | | | $525,000.00 | 35635 | 4450640 |
| 4 | 06/14/2012 | CCOMPROP | Create Community Property | JOHNSTON, DUKE D | JOHNSTON JTWROS, DUKE D | | | $0.00 | 8067 | 4318008 |
| 5 | 02/01/1988 | DECREE | Divorce Decree/Legal Separation | JOHNSON, DUKE D | JOHNSTON, DUKE D | | | $0.00 | 80645 | 88002586 |
| 6 | 09/01/1979 | WD | Warranty Deed | LOFGREN, JAMES A | JOHNSON, DUKE D | | | $122,000.00 | 94869 | 359822 |
| 7 | 01/01/1979 | OTHER | Other - Misc. Documents | Unknown | LOFGREN, JAMES A | | | $30,000.00 | 901380 | 3457660 |
Payout Agreement
| No payout information available.. |