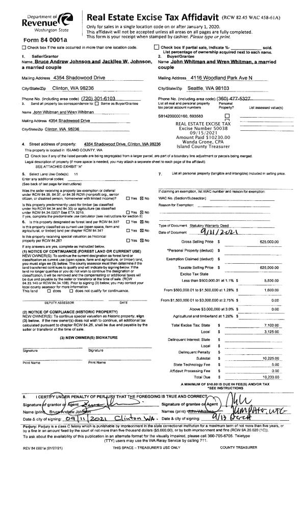
Property
Account |
| Property ID: | 153005 | Abbreviated Legal Description: | 114 - IN GL1: BG S89*E203.7 FR S/4 CR SEC 34 E435.17' N1*E40' TPB W65.17' N1*E94' E90' S1*W69.17' ALG CUR/R 39.1' TPB |
| Geographic ID: | R33034-008-3270 | Agent Code: | |
| Type: | Real | | |
| Tax Area: | 700 - APPRAISER-S Whid Schl Dist, in town of Langley | Land Use Code | 12 |
| Open Space: | N | DFL | N |
| Historic Property: | N | Remodel Property: | N |
| Multi-Family Redevelopment: | N | | |
| Township: | 30 | Section: | 34 |
| Range: | R3 |
Location |
| Address: | 575 LUHN AVE LANGLEY, WA 98260 | Mapsco: | |
| Neighborhood: | City of Langley | Map ID: | 913 |
| Neighborhood CD: | 04-L |
Owner |
| Name: | AKHTAR, CAROLYN CONNERS | Owner ID: | 315740 |
| Mailing Address: | 575 LUHN AVE LANGLEY, WA 98260 | % Ownership: | 100.0000000000% |
| | | Exemptions: | |
Taxes and Assessment Details
Values
| (+) Improvement Homesite Value: | + | $0 | |
| (+) Improvement Non-Homesite Value: | + | $404,664 | |
| (+) Land Homesite Value: | + | $0 | |
| (+) Land Non-Homesite Value: | + | $390,000 | |
| (+) Curr Use (HS): | + | $0 | $0 |
| (+) Curr Use (NHS): | + | $0 | $0 |
| | | -------------------------- | |
| (=) Market Value: | = | $794,664 | |
| (–) Productivity Loss: | – | $0 | |
| | | -------------------------- | |
| (=) Subtotal: | = | $794,664 | |
| (+) Senior Appraised Value: | + | $0 | |
| (+) Non-Senior Appraised Value: | + | $794,664 | |
| | | -------------------------- | |
| (=) Total Appraised Value: | = | $794,664 | |
| (–) Senior Exemption Loss: | – | $0 | |
| (–) Exemption Loss: | – | $0 | |
| | | -------------------------- | |
| (=) Taxable Value: | = | $794,664 | |
Taxing Jurisdiction
| Owner: | AKHTAR, CAROLYN CONNERS | | |
| % Ownership: | 100.0000000000% | | |
| Total Value: | $794,664 | | |
| Tax Area: | 700 - APPRAISER-S Whid Schl Dist, in town of Langley |
| CF | Conservation Futures | 0.0316035091 | $794,664 | $794,664 | $25.11 | | |
| LANG | City of Langley | 1.0093520762 | $794,664 | $794,664 | $802.10 | | |
| LANGBOND | City of Langley BOND | 1.0326110892 | $794,664 | $794,664 | $820.58 | | |
| FIRE3 | Fire & Rescue Dist #3 S Whidbey GEN | 1.2004855531 | $794,664 | $794,664 | $953.98 | | |
| HOBOND | Hospital BOND | 0.1910887512 | $794,664 | $794,664 | $151.85 | | |
| HOGEN | Hospital GEN | 0.3902502903 | $794,664 | $794,664 | $310.12 | | |
| CE | County Current Expense | 0.3708482477 | $794,664 | $794,664 | $294.70 | | |
| ISLANDEMS | Hospital GEN (EMS) | 0.5000000000 | $794,664 | $794,664 | $397.33 | | |
| LIB | Library Sno-Isle GEN | 0.3153421757 | $794,664 | $794,664 | $250.59 | | |
| PORTWHID | Port of S Whidbey GEN | 0.1094540357 | $794,664 | $794,664 | $86.98 | | |
| SCH206BOND | School 206 BOND | 0.3161759235 | $794,664 | $794,664 | $251.25 | | |
| SCH206MO | School 206 Enrichment | 0.4547169547 | $794,664 | $794,664 | $361.35 | | |
| ST | State School | 1.3035497053 | $794,664 | $794,664 | $1,035.88 | | |
| ST2 | State School Part 2 | 0.8169543533 | $794,664 | $794,664 | $649.20 | | |
| SWHIDPRBD | P & R S Whidbey BOND | 0.0152817568 | $794,664 | $794,664 | $12.14 | | |
| SWHIDPRBD2 | P & R S Whidbey BOND2 | 0.0138911264 | $794,664 | $794,664 | $11.04 | | |
| SWHIDPRMT | P & R S Whidbey GEN | 0.2053334452 | $794,664 | $794,664 | $163.17 | | |
| | Total Tax Rate: | 8.2769389934 | | | | | |
| | | | | Taxes w/Current Exemptions: | $6,577.37 | | |
| | | | | Taxes w/o Exemptions: | $6,577.37 | | |
Improvement / Building
| Improvement #1: | RESIDENTIAL | State Code: | A1 | 2406.2 sqft | Value: | $404,664 |
| Bathrooms: | 2.75 | Bedrooms: | 5 | | Ceiling: | DRYWALL PAINTED | Exterior Wall/Cover: | WOOD SIDING | | Floor Covering: | SOFTWOOD/VINYL 60-40 | Floor Structure: | WOOD W/SUBFLOOR | | Foundation: | SLAB | Heating: | BASEBOARD ELECTRIC | | Interior Finish: | DRYWALL PAINT | Plumbing Fixture Cnt: | 16 | | Roof Slope: | 6" IN 12" | Roof Structure/Cover: | CJ ASPHALT |
|
| | Type | Description | Class CD | Sub Class CD | Year Built | Area |
| | BAS | BASE/MAIN FLOOR | 4 | 0 | 1976 | 998.2 |
| | DGR | DETACHED GARAGE | 4 | 0 | 1976 | 440.0 |
| | OWR | OPEN WOOD PORCH W/STEPS/ROOF | 4 | 0 | 1976 | 18.0 |
| | UPS | UPPER STORY | 4 | 0 | 1976 | 396.0 |
| | UTY | STORAGE/UTILITY | 4 | 0 | 1976 | 112.0 |
| | DWN | DOWNSTAIRS LIVING AREA | 4 | 0 | 1976 | 1012.0 |
Sketch
Property Image
Land
| 1 | 14 | SQ (08001-12000) | 0.0000 | 0.00 | 0.00 | 0.00 | 1.00 | $390,000 | $0 |
Roll Value History
| 2026 | N/A | N/A | N/A | N/A | N/A |
| 2025 | $404,664 | $390,000 | $0 | $794,664 | $794,664 |
| 2024 | $417,687 | $390,000 | $0 | $807,687 | $807,687 |
| 2023 | $422,765 | $360,000 | $0 | $782,765 | $782,765 |
| 2022 | $387,421 | $360,000 | $0 | $747,421 | $747,421 |
| 2021 | $340,893 | $320,000 | $0 | $660,893 | $660,893 |
| 2020 | $331,407 | $320,000 | $0 | $651,407 | $651,407 |
| 2019 | $247,128 | $230,000 | $0 | $477,128 | $477,128 |
| 2018 | $247,836 | $220,000 | $0 | $467,836 | $467,836 |
| 2017 | $245,327 | $220,000 | $0 | $465,327 | $465,327 |
| 2016 | $248,181 | $220,000 | $0 | $468,181 | $468,181 |
| 2015 | $251,033 | $220,000 | $0 | $471,033 | $471,033 |
| 2014 | $189,736 | $170,200 | $0 | $359,936 | $359,936 |
| 2013 | $192,109 | $157,250 | $0 | $349,359 | $349,359 |
| 2012 | $194,481 | $157,250 | $0 | $351,731 | $351,731 |
| 2011 | $196,851 | $185,000 | $0 | $381,851 | $381,851 |
| 2010 | $206,943 | $193,000 | $0 | $399,943 | $399,943 |
| 2009 | $215,858 | $161,840 | $0 | $377,698 | $377,698 |
| 2008 | $215,175 | $242,633 | $0 | $457,808 | $457,808 |
| 2007 | $217,096 | $242,633 | $0 | $459,729 | $459,729 |
Deed and Sales History
| 1 | 12/13/2024 | QCD | Quit Claim Deed | AKHTAR, TANVIR | AKHTAR, CAROLYN CONNERS | | | $0.00 | 62793 | 4583173 |
| 2 | 05/24/2017 | WD | Warranty Deed | AKHTAR, TANVIR | AKHTAR, TANVIR | | | $0.00 | 29762 | 4424335 |
| 3 | 05/24/2017 | WD | Warranty Deed | MORGEN JTWROS, MICHAEL | AKHTAR, TANVIR | | | $580,000.00 | 29488 | 4423325 |
| 4 | 05/13/2014 | WD | Warranty Deed | TOMIC, SUSAN A | MORGEN JTWROS, MICHAEL | | | $541,000.00 | 15313 | |
| 5 | 03/25/2013 | PRD | Personal Representatives Deed | TOMIC, SUSAN A | TOMIC, SUSAN A | | | $0.00 | 10801 | 4336325 |
| 6 | 01/10/2013 | QCD | Quit Claim Deed | ERSKINE, JANE E | TOMIC, SUSAN A | | | $0.00 | 10232 | 4332082 |
| 7 | 01/29/2008 | WD | Warranty Deed | ERSKINE, JANE E | ERSKINE, JANE E | | | $0.00 | 80309 | 4221286 |
| 8 | 01/29/2008 | WD | Warranty Deed | BRUNBERG, MICHAEL C | ERSKINE, JANE E | | | $500,000.00 | 80283 | 4221068 |
| 9 | 09/29/2005 | WD | Warranty Deed | GARDNER, MELINDA SUE | BRUNBERG, MICHAEL C | | | $350,000.00 | 54920 | 4149389 |
| 10 | 04/29/2005 | QCD | Quit Claim Deed | GARDNER, MELINDA SUE | GARDNER, MELINDA SUE | | | $0.00 | 51904 | 4133059 |
| 11 | 02/04/2004 | ESTSEPPROP | Establish Separate Property | MAGNUSSON, MELINDA SUE | GARDNER, MELINDA SUE | | | $0.00 | 40478 | 4090790 |
| 12 | 01/21/2003 | DECREE | Divorce Decree/Legal Separation | LASHLEY, DONALD B | MAGNUSSON, MELINDA SUE | | | $0.00 | 30764 | 4049264 |
| 13 | 12/01/1988 | WD | Warranty Deed | LASHLEY, DONALD B | LASHLEY, DONALD B | | | $20,000.00 | 84194 | 88015662 |
| 14 | 12/01/1988 | QCD | Quit Claim Deed | MAGNUSSON, CARL D | LASHLEY, DONALD B | | | $0.00 | 84195 | 88015663 |
| 15 | 12/01/1988 | WD | Warranty Deed | HUDDLESTON, HAROLD D | MAGNUSSON, CARL D | | | $53,500.00 | 84453 | 88016491 |
| 16 | 02/01/1979 | OTHER | Other - Misc. Documents | Unknown | HUDDLESTON, HAROLD D | | | $10,950.00 | 90951 | 348420 |
Payout Agreement
| No payout information available.. |