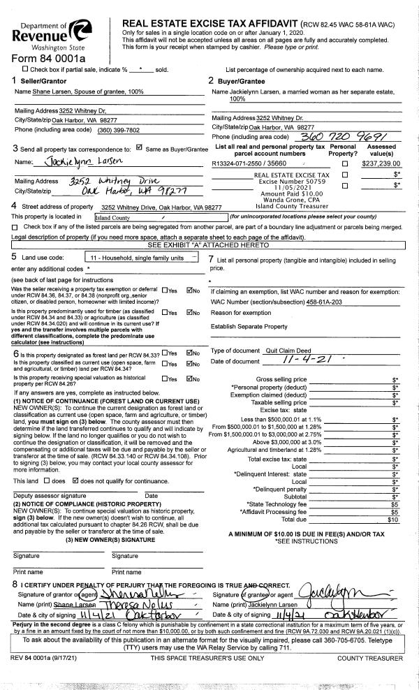
Property
Account |
| Property ID: | 153103 | Abbreviated Legal Description: | 112 - IN GL1: BG INTER EXT CLN ANTHES AVE & SLN SEC 34 S89*E190' N1*E134' TPB S89*E180' N1*E90' N89*W180' S1*W90' TPB |
| Geographic ID: | R33034-016-3130 | Agent Code: | |
| Type: | Real | | |
| Tax Area: | 700 - APPRAISER-S Whid Schl Dist, in town of Langley | Land Use Code | 91 |
| Open Space: | N | DFL | N |
| Historic Property: | N | Remodel Property: | N |
| Multi-Family Redevelopment: | N | | |
| Township: | 30 | Section: | 34 |
| Range: | R3 |
Location |
| Address: | | Mapsco: | |
| Neighborhood: | 42cLG-south | Map ID: | 913 |
| Neighborhood CD: | 42cLGsouth |
Owner |
| Name: | ISLAND ROOTS HOUSING | Owner ID: | 314758 |
| Mailing Address: | PO BOX 114 LANGLEY, WA 98260 | % Ownership: | 100.0000000000% |
| | | Exemptions: | |
Taxes and Assessment Details
Values
| (+) Improvement Homesite Value: | + | $0 | |
| (+) Improvement Non-Homesite Value: | + | $0 | |
| (+) Land Homesite Value: | + | $0 | |
| (+) Land Non-Homesite Value: | + | $230,000 | |
| (+) Curr Use (HS): | + | $0 | $0 |
| (+) Curr Use (NHS): | + | $0 | $0 |
| | | -------------------------- | |
| (=) Market Value: | = | $230,000 | |
| (–) Productivity Loss: | – | $0 | |
| | | -------------------------- | |
| (=) Subtotal: | = | $230,000 | |
| (+) Senior Appraised Value: | + | $0 | |
| (+) Non-Senior Appraised Value: | + | $230,000 | |
| | | -------------------------- | |
| (=) Total Appraised Value: | = | $230,000 | |
| (–) Senior Exemption Loss: | – | $0 | |
| (–) Exemption Loss: | – | $0 | |
| | | -------------------------- | |
| (=) Taxable Value: | = | $230,000 | |
Taxing Jurisdiction
| Owner: | ISLAND ROOTS HOUSING | | |
| % Ownership: | 100.0000000000% | | |
| Total Value: | $230,000 | | |
| Tax Area: | 700 - APPRAISER-S Whid Schl Dist, in town of Langley |
| CF | Conservation Futures | 0.0316035091 | $230,000 | $230,000 | $7.27 | | |
| LANG | City of Langley | 1.0093520762 | $230,000 | $230,000 | $232.15 | | |
| LANGBOND | City of Langley BOND | 1.0326110892 | $230,000 | $230,000 | $237.50 | | |
| FIRE3 | Fire & Rescue Dist #3 S Whidbey GEN | 1.2004855531 | $230,000 | $230,000 | $276.11 | | |
| HOBOND | Hospital BOND | 0.1910887512 | $230,000 | $230,000 | $43.95 | | |
| HOGEN | Hospital GEN | 0.3902502903 | $230,000 | $230,000 | $89.76 | | |
| CE | County Current Expense | 0.3708482477 | $230,000 | $230,000 | $85.30 | | |
| ISLANDEMS | Hospital GEN (EMS) | 0.5000000000 | $230,000 | $230,000 | $115.00 | | |
| LIB | Library Sno-Isle GEN | 0.3153421757 | $230,000 | $230,000 | $72.53 | | |
| PORTWHID | Port of S Whidbey GEN | 0.1094540357 | $230,000 | $230,000 | $25.17 | | |
| SCH206BOND | School 206 BOND | 0.3161759235 | $230,000 | $230,000 | $72.72 | | |
| SCH206MO | School 206 Enrichment | 0.4547169547 | $230,000 | $230,000 | $104.58 | | |
| ST | State School | 1.3035497053 | $230,000 | $230,000 | $299.82 | | |
| ST2 | State School Part 2 | 0.8169543533 | $230,000 | $230,000 | $187.90 | | |
| SWHIDPRBD | P & R S Whidbey BOND | 0.0152817568 | $230,000 | $230,000 | $3.51 | | |
| SWHIDPRBD2 | P & R S Whidbey BOND2 | 0.0138911264 | $230,000 | $230,000 | $3.19 | | |
| SWHIDPRMT | P & R S Whidbey GEN | 0.2053334452 | $230,000 | $230,000 | $47.23 | | |
| | Total Tax Rate: | 8.2769389934 | | | | | |
| | | | | Taxes w/Current Exemptions: | $1,903.69 | | |
| | | | | Taxes w/o Exemptions: | $1,903.69 | | |
Improvement / Building
Sketch
| No sketches available for this property. |
Property Image
Land
| 1 | 15 | SQ (12001-21780) | 0.3700 | 16117.20 | 0.00 | 0.00 | 1.00 | $230,000 | $0 |
Roll Value History
| 2026 | N/A | N/A | N/A | N/A | N/A |
| 2025 | $0 | $230,000 | $0 | $230,000 | $230,000 |
| 2024 | $0 | $230,000 | $0 | $230,000 | $230,000 |
| 2023 | $0 | $170,000 | $0 | $170,000 | $170,000 |
| 2022 | $0 | $170,000 | $0 | $170,000 | $170,000 |
| 2021 | $0 | $170,000 | $0 | $170,000 | $170,000 |
| 2020 | $0 | $170,000 | $0 | $170,000 | $170,000 |
| 2019 | $0 | $154,000 | $0 | $154,000 | $154,000 |
| 2018 | $0 | $154,000 | $0 | $154,000 | $154,000 |
| 2017 | $0 | $154,000 | $0 | $154,000 | $154,000 |
| 2016 | $0 | $154,000 | $0 | $154,000 | $154,000 |
| 2015 | $0 | $154,000 | $0 | $154,000 | $154,000 |
| 2014 | $0 | $296,460 | $0 | $296,460 | $296,460 |
| 2013 | $0 | $296,460 | $0 | $296,460 | $296,460 |
| 2012 | $0 | $296,460 | $0 | $296,460 | $296,460 |
| 2011 | $0 | $296,460 | $0 | $296,460 | $296,460 |
| 2010 | $0 | $296,460 | $0 | $296,460 | $296,460 |
| 2009 | $0 | $296,460 | $0 | $296,460 | $296,460 |
| 2008 | $0 | $296,460 | $0 | $296,460 | $296,460 |
| 2007 | $0 | $296,460 | $0 | $296,460 | $296,460 |
Deed and Sales History
| 1 | 11/22/2024 | WD | Warranty Deed | AZAR TRUSTEE, BETTY S | ISLAND ROOTS HOUSING | | | $0.00 | 61999 | |
| 2 | 02/28/2013 | SPWARDEED | Special Warranty Deed | AZAR, BETTY S | AZAR TRUSTEE, BETTY S | | | $0.00 | 10595 | 4334956 |
| 3 | 09/01/1995 | DECREE | Divorce Decree/Legal Separation | AZAR, DONALD A | AZAR, BETTY S | | | $0.00 | 53602 | 95016499 |
| 4 | 10/01/1994 | WD | Warranty Deed | NORTHWEST, EXCHANGE & | AZAR, DONALD A | | | $0.00 | 44540 | 94023294 |
| 5 | 04/01/1994 | WD | Warranty Deed | AZAR, DONALD A | NORTHWEST, EXCHANGE & | | | $0.00 | 41413 | 94008724 |
| 6 | 05/01/1986 | WD | Warranty Deed | CAPES, ROLAND K | AZAR, DONALD A | | | $33,000.00 | 61107 | 86005216 |
| 7 | 03/01/1969 | EXECUTORD | Executor Deed | LANGLEY, ON W | CAPES, ROLAND K | | | $0.00 | 34445 | 0 |
| 8 | 01/01/1900 | OTHER | Other - Misc. Documents | Unknown | LANGLEY, ON W | | | $0.00 | 0 | 0 |
Payout Agreement
| No payout information available.. |