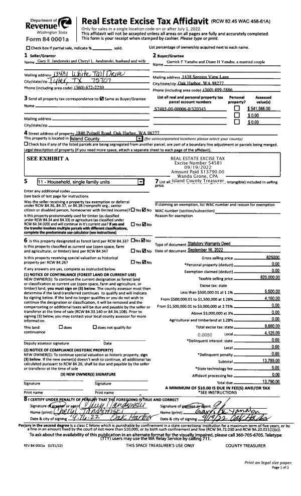
Property
Account |
| Property ID: | 15352 | Abbreviated Legal Description: | 27 - IN GL4:S95.96'OF N245.96'OF GL 4 LY W OF CO RD TGW EZ |
| Geographic ID: | R13206-113-4370 | Agent Code: | |
| Type: | Real | | |
| Tax Area: | 119 - APPRAISER-OH Schl Dist, outside OH, vacant & 50 acres or less | Land Use Code | 91 |
| Open Space: | N | DFL | N |
| Historic Property: | N | Remodel Property: | N |
| Multi-Family Redevelopment: | N | | |
| Township: | 32 | Section: | 06 |
| Range: | R1 |
Location |
| Address: | | Mapsco: | |
| Neighborhood: | Cycle 1 | Map ID: | 102 |
| Neighborhood CD: | 1 |
Owner |
| Name: | BROWNE, WADE W | Owner ID: | 302945 |
| Mailing Address: | REBECCA S BROWNE 16340 JEFTE CT RENO, NV 89511 | % Ownership: | 100.0000000000% |
| | | Exemptions: | |
Taxes and Assessment Details
Values
| (+) Improvement Homesite Value: | + | $0 | |
| (+) Improvement Non-Homesite Value: | + | $0 | |
| (+) Land Homesite Value: | + | $0 | |
| (+) Land Non-Homesite Value: | + | $200,000 | |
| (+) Curr Use (HS): | + | $0 | $0 |
| (+) Curr Use (NHS): | + | $0 | $0 |
| | | -------------------------- | |
| (=) Market Value: | = | $200,000 | |
| (–) Productivity Loss: | – | $0 | |
| | | -------------------------- | |
| (=) Subtotal: | = | $200,000 | |
| (+) Senior Appraised Value: | + | $0 | |
| (+) Non-Senior Appraised Value: | + | $200,000 | |
| | | -------------------------- | |
| (=) Total Appraised Value: | = | $200,000 | |
| (–) Senior Exemption Loss: | – | $0 | |
| (–) Exemption Loss: | – | $0 | |
| | | -------------------------- | |
| (=) Taxable Value: | = | $200,000 | |
Taxing Jurisdiction
| Owner: | BROWNE, WADE W | | |
| % Ownership: | 100.0000000000% | | |
| Total Value: | $200,000 | | |
| Tax Area: | 119 - APPRAISER-OH Schl Dist, outside OH, vacant & 50 acres or less |
| CF | Conservation Futures | 0.0316035091 | $200,000 | $200,000 | $6.32 | | |
| CEM1 | Cemetery #1 | 0.0040320932 | $200,000 | $200,000 | $0.81 | | |
| HOBOND | Hospital BOND | 0.1910887512 | $200,000 | $200,000 | $38.22 | | |
| HOGEN | Hospital GEN | 0.3902502903 | $200,000 | $200,000 | $78.05 | | |
| CE | County Current Expense | 0.3708482477 | $200,000 | $200,000 | $74.17 | | |
| CR | County Roads | 0.4584763726 | $200,000 | $200,000 | $91.70 | | |
| ISLANDEMS | Hospital GEN (EMS) | 0.5000000000 | $200,000 | $200,000 | $100.00 | | |
| LIB | Library Sno-Isle GEN | 0.3153421757 | $200,000 | $200,000 | $63.07 | | |
| NWHIDPRMT | P & R N Whidbey GEN | 0.2004466701 | $200,000 | $200,000 | $40.09 | | |
| SCH201MO | School 201 Enrichment | 1.8559231640 | $200,000 | $200,000 | $371.18 | | |
| ST | State School | 1.3035497053 | $200,000 | $200,000 | $260.71 | | |
| ST2 | State School Part 2 | 0.8169543533 | $200,000 | $200,000 | $163.39 | | |
| | Total Tax Rate: | 6.4385153325 | | | | | |
| | | | | Taxes w/Current Exemptions: | $1,287.71 | | |
| | | | | Taxes w/o Exemptions: | $1,287.71 | | |
Improvement / Building
Sketch
| No sketches available for this property. |
Property Image
Land
| 1 | HB | HIGH BLUFF | 1.3700 | 59677.20 | 96.00 | 0.00 | 1.00 | $200,000 | $0 |
Roll Value History
| 2026 | N/A | N/A | N/A | N/A | N/A |
| 2025 | $0 | $200,000 | $0 | $200,000 | $200,000 |
| 2024 | $0 | $200,000 | $0 | $200,000 | $200,000 |
| 2023 | $0 | $200,000 | $0 | $200,000 | $200,000 |
| 2022 | $0 | $150,000 | $0 | $150,000 | $150,000 |
| 2021 | $0 | $150,000 | $0 | $150,000 | $150,000 |
| 2020 | $0 | $130,000 | $0 | $130,000 | $130,000 |
| 2019 | $0 | $160,000 | $0 | $160,000 | $160,000 |
| 2018 | $0 | $150,000 | $0 | $150,000 | $150,000 |
| 2017 | $0 | $150,000 | $0 | $150,000 | $150,000 |
| 2016 | $0 | $150,000 | $0 | $150,000 | $150,000 |
| 2015 | $0 | $150,000 | $0 | $150,000 | $150,000 |
| 2014 | $0 | $150,000 | $0 | $150,000 | $150,000 |
| 2013 | $0 | $163,809 | $0 | $163,809 | $163,809 |
| 2012 | $0 | $163,809 | $0 | $163,809 | $163,809 |
| 2011 | $0 | $163,809 | $0 | $163,809 | $163,809 |
| 2010 | $0 | $163,809 | $0 | $163,809 | $163,809 |
| 2009 | $0 | $181,810 | $0 | $181,810 | $181,810 |
| 2008 | $0 | $201,131 | $0 | $201,131 | $201,131 |
| 2007 | $0 | $149,008 | $0 | $149,008 | $149,008 |
Deed and Sales History
| 1 | 02/07/2022 | WD | Warranty Deed | LAUVER TTEE, MICHAEL | BROWNE, WADE W | | | $269,500.00 | 51930 | 4539555 |
| 2 | 07/03/2019 | QCD | Quit Claim Deed | LAUVER, MICHAEL | LAUVER TTEE, MICHAEL | | | $0.00 | 39294 | 4466661 |
| 3 | 06/27/2014 | QCD | Quit Claim Deed | LAUVER, ARLINE | LAUVER, MICHAEL | | | $0.00 | 15908 | 4361875 |
| 4 | 05/01/1982 | PACD | Purchaser's Assignment | LAUVER, ARLINE C | LAUVER, ARLINE C | | | $1.00 | 59488 | 395773 |
| 5 | 02/01/1982 | PACD | Purchaser's Assignment | LAUVER, GEORGE I | LAUVER, ARLINE C | | | $1.00 | 59390 | 393500 |
| 6 | 01/01/1900 | OTHER | Other - Misc. Documents | Unknown | LAUVER, GEORGE I | | | $0.00 | 0 | 0 |
Payout Agreement
| No payout information available.. |