Property
Account |
| Property ID: | 153611 | Abbreviated Legal Description: | 94 - BG SECR BLK 11 LANGLEY E180' S118' E180' TPB S60' E TO WLN OF RD NLY ALG RD TP E OF TPB W TPB |
| Geographic ID: | R33034-081-3730 | Agent Code: | |
| Type: | Real | | |
| Tax Area: | 700 - APPRAISER-S Whid Schl Dist, in town of Langley | Land Use Code | 62 |
| Open Space: | N | DFL | N |
| Historic Property: | N | Remodel Property: | N |
| Multi-Family Redevelopment: | N | | |
| Township: | 30 | Section: | 34 |
| Range: | R3 |
Location |
| Address: | 309 CASCADE AVE LANGLEY, WA 98260 | Mapsco: | |
| Neighborhood: | 42cLG-south | Map ID: | 913 |
| Neighborhood CD: | 42cLGsouth |
Owner |
| Name: | BIRDSONG JTWROS, REBECCA | Owner ID: | 306139 |
| Mailing Address: | TOMMY YU JTWROS 309 CASCADE AVE LANGLEY, WA 98260 | % Ownership: | 100.0000000000% |
| | | Exemptions: | |
Taxes and Assessment Details
Values
| (+) Improvement Homesite Value: | + | $0 | |
| (+) Improvement Non-Homesite Value: | + | $347,578 | |
| (+) Land Homesite Value: | + | $0 | |
| (+) Land Non-Homesite Value: | + | $380,000 | |
| (+) Curr Use (HS): | + | $0 | $0 |
| (+) Curr Use (NHS): | + | $0 | $0 |
| | | -------------------------- | |
| (=) Market Value: | = | $727,578 | |
| (–) Productivity Loss: | – | $0 | |
| | | -------------------------- | |
| (=) Subtotal: | = | $727,578 | |
| (+) Senior Appraised Value: | + | $0 | |
| (+) Non-Senior Appraised Value: | + | $727,578 | |
| | | -------------------------- | |
| (=) Total Appraised Value: | = | $727,578 | |
| (–) Senior Exemption Loss: | – | $0 | |
| (–) Exemption Loss: | – | $0 | |
| | | -------------------------- | |
| (=) Taxable Value: | = | $727,578 | |
Taxing Jurisdiction
| Owner: | BIRDSONG JTWROS, REBECCA | | |
| % Ownership: | 100.0000000000% | | |
| Total Value: | $727,578 | | |
| Tax Area: | 700 - APPRAISER-S Whid Schl Dist, in town of Langley |
| CF | Conservation Futures | 0.0316035091 | $727,578 | $727,578 | $22.99 | | |
| LANG | City of Langley | 1.0093520762 | $727,578 | $727,578 | $734.38 | | |
| LANGBOND | City of Langley BOND | 1.0326110892 | $727,578 | $727,578 | $751.31 | | |
| FIRE3 | Fire & Rescue Dist #3 S Whidbey GEN | 1.2004855531 | $727,578 | $727,578 | $873.45 | | |
| HOBOND | Hospital BOND | 0.1910887512 | $727,578 | $727,578 | $139.03 | | |
| HOGEN | Hospital GEN | 0.3902502903 | $727,578 | $727,578 | $283.94 | | |
| CE | County Current Expense | 0.3708482477 | $727,578 | $727,578 | $269.82 | | |
| ISLANDEMS | Hospital GEN (EMS) | 0.5000000000 | $727,578 | $727,578 | $363.79 | | |
| LIB | Library Sno-Isle GEN | 0.3153421757 | $727,578 | $727,578 | $229.44 | | |
| PORTWHID | Port of S Whidbey GEN | 0.1094540357 | $727,578 | $727,578 | $79.64 | | |
| SCH206BOND | School 206 BOND | 0.3161759235 | $727,578 | $727,578 | $230.04 | | |
| SCH206MO | School 206 Enrichment | 0.4547169547 | $727,578 | $727,578 | $330.84 | | |
| ST | State School | 1.3035497053 | $727,578 | $727,578 | $948.43 | | |
| ST2 | State School Part 2 | 0.8169543533 | $727,578 | $727,578 | $594.40 | | |
| SWHIDPRBD | P & R S Whidbey BOND | 0.0152817568 | $727,578 | $727,578 | $11.12 | | |
| SWHIDPRBD2 | P & R S Whidbey BOND2 | 0.0138911264 | $727,578 | $727,578 | $10.11 | | |
| SWHIDPRMT | P & R S Whidbey GEN | 0.2053334452 | $727,578 | $727,578 | $149.40 | | |
| | Total Tax Rate: | 8.2769389934 | | | | | |
| | | | | Taxes w/Current Exemptions: | $6,022.13 | | |
| | | | | Taxes w/o Exemptions: | $6,022.13 | | |
Improvement / Building
| Improvement #1: | RESIDENTIAL/COMMERCIAL | State Code: | F1 | 2184.0 sqft | Value: | $347,578 |
| Bathrooms: | 1 | Bedrooms: | 1 | | Ceiling: | DRYWALL PAINTED | Cooling: | HEAT PUMP/CONV/V | | Exterior Wall/Cover: | WOOD SIDING | Floor Covering: | HARDWOOD/CARP 60-40 | | Floor Structure: | WOOD ON WOOD JOIST | Foundation: | CONCRETE | | Interior Finish: | DRYWALL PAINT | Plumbing Fixture Cnt: | 9 | | Roof Slope: | 4" IN 12" | Roof Structure/Cover: | CJ ALUMINIUM HEAVY |
|
| | Type | Description | Class CD | Sub Class CD | Year Built | Area |
| | BAS | BASE/MAIN FLOOR | 4 | 0 | 1959 | 1092.0 |
| | DWN | DOWNSTAIRS LIVING AREA | 4 | 0 | 1959 | 1092.0 |
| | OWP | OPEN WOOD PORCH W/STEPS | 4 | 0 | 1959 | 54.0 |
| | OWP | OPEN WOOD PORCH W/STEPS | 4 | 0 | 1959 | 40.0 |
Sketch
Property Image
Land
| 1 | 64 | PERSONAL BUSINESS | 0.1400 | 6098.40 | 0.00 | 0.00 | 1.00 | $380,000 | $0 |
Roll Value History
| 2026 | N/A | N/A | N/A | N/A | N/A |
| 2025 | $347,578 | $380,000 | $0 | $727,578 | $727,578 |
| 2024 | $351,562 | $370,000 | $0 | $721,562 | $721,562 |
| 2023 | $355,547 | $330,000 | $0 | $685,547 | $685,547 |
| 2022 | $324,663 | $320,000 | $0 | $644,663 | $644,663 |
| 2021 | $110,742 | $320,000 | $0 | $430,742 | $430,742 |
| 2020 | $87,661 | $320,000 | $0 | $407,661 | $407,661 |
| 2019 | $70,566 | $255,000 | $0 | $325,566 | $325,566 |
| 2018 | $70,894 | $255,000 | $0 | $325,894 | $325,894 |
| 2017 | $71,550 | $250,000 | $0 | $321,550 | $321,550 |
| 2016 | $72,860 | $250,000 | $0 | $322,860 | $322,860 |
| 2015 | $74,171 | $250,000 | $0 | $324,171 | $324,171 |
| 2014 | $102,489 | $216,113 | $0 | $318,602 | $318,602 |
| 2013 | $102,489 | $216,113 | $0 | $318,602 | $318,602 |
| 2012 | $102,489 | $216,113 | $0 | $318,602 | $318,602 |
| 2011 | $102,489 | $216,113 | $0 | $318,602 | $318,602 |
| 2010 | $96,925 | $216,113 | $0 | $313,038 | $313,038 |
| 2009 | $98,887 | $237,517 | $0 | $336,404 | $336,404 |
| 2008 | $104,374 | $237,517 | $0 | $341,891 | $341,891 |
| 2007 | $107,537 | $237,517 | $0 | $345,054 | $345,054 |
Deed and Sales History
| 1 | 08/15/2022 | WD | Warranty Deed | MCALISTER, MEGAN | BIRDSONG JTWROS, REBECCA | | | $950,000.00 | 54384 | 4550560 |
| 2 | 02/12/2021 | QCD | Quit Claim Deed | VANDERWALL, CHRISTIAN | MCALISTER, MEGAN | | | $0.00 | 47098 | 4512072 |
| 3 | 02/11/2021 | WD | Warranty Deed | PAWLAK, JOHN C | MCALISTER, MEGAN | | | $505,000.00 | 47097 | 4512071 |
| 4 | 11/07/2016 | CCOMPROP | Create Community Property | PAWLAK, JOHN C | PAWLAK, JOHN C | | | $0.00 | 27837 | 4415732 |
| 5 | 09/29/2016 | DECREE | Divorce Decree/Legal Separation | PAWLAK, JOHN C | PAWLAK, JOHN C | | | $0.00 | 26432 | 4408696 |
| 6 | 10/27/1999 | WD | Warranty Deed | SIMMONS, HENRY A | PAWLAK, JOHN C | | | $295,000.00 | 94609 | 99025427 |
| 7 | 12/01/1997 | WD | Warranty Deed | NAUJACK, THERESA M | SIMMONS, HENRY A | | | $166,000.00 | 74463 | 97021340 |
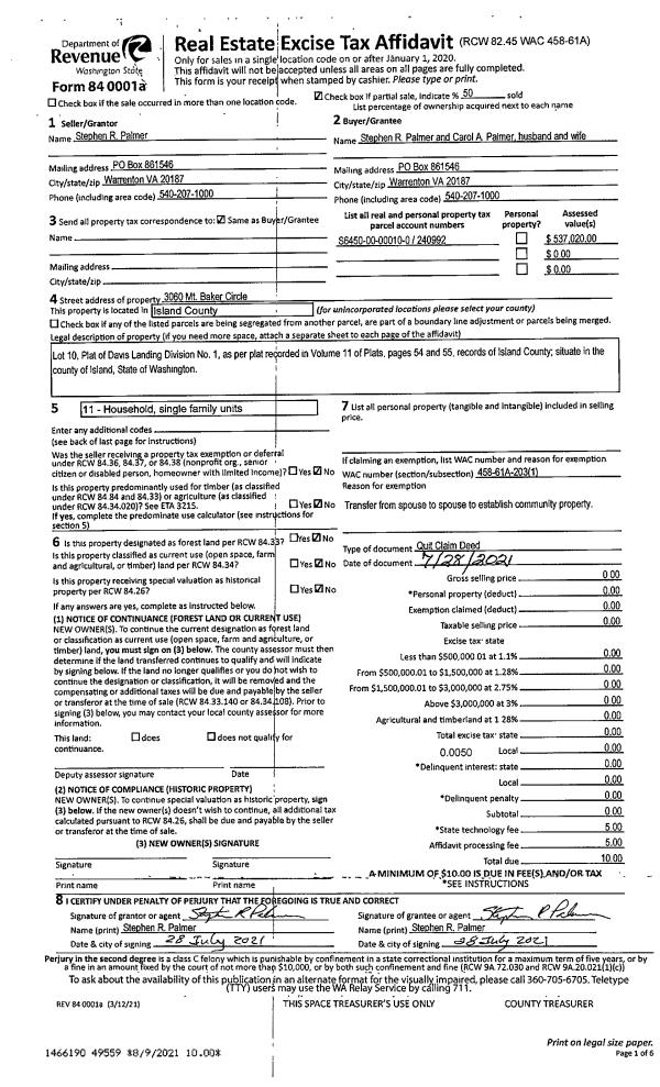
| 8 | 03/01/1992 | QCD | Quit Claim Deed | NAUJACK, THERESA | NAUJACK, THERESA M | | | $0.00 | 20878 | 92004448 |
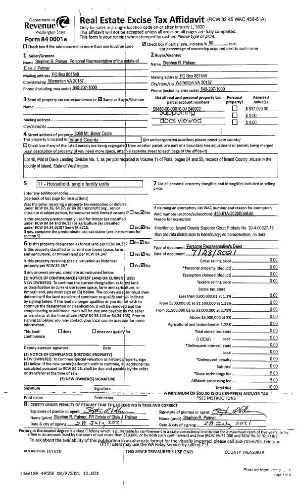
| 9 | 08/01/1985 | PRD | Personal Representatives Deed | NAUJACK, THERESA | NAUJACK, THERESA | | | $0.00 | 52210 | 85008650 |
| 10 | 08/01/1985 | QCD | Quit Claim Deed | NAUJACK, MARIE A | NAUJACK, THERESA | | | $0.00 | 52299 | 85009034 |
Payout Agreement
| No payout information available.. |