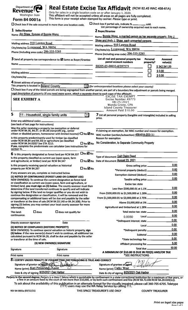
Property
Account |
| Property ID: | 154040 | Abbreviated Legal Description: | 73 - IN GL 3: BG SW CR GL3 E254' N512' W254' TO WLY LN GL3 S TPB EX RD & E4' |
| Geographic ID: | R33034-159-0110 | Agent Code: | |
| Type: | Real | | |
| Tax Area: | 700 - APPRAISER-S Whid Schl Dist, in town of Langley | Land Use Code | 11 |
| Open Space: | N | DFL | N |
| Historic Property: | N | Remodel Property: | N |
| Multi-Family Redevelopment: | N | | |
| Township: | 30 | Section: | 34 |
| Range: | R3 |
Location |
| Address: | 189 BRACKENWOOD AVE LANGLEY, WA 98260 | Mapsco: | |
| Neighborhood: | City of Langley | Map ID: | 912 |
| Neighborhood CD: | 04-L |
Owner |
| Name: | FRAUSE, ROBERT D | Owner ID: | 94918 |
| Mailing Address: | PO BOX 819 LANGLEY, WA 98260-0819 | % Ownership: | 100.0000000000% |
| | | Exemptions: | |
Taxes and Assessment Details
Values
| (+) Improvement Homesite Value: | + | $0 | |
| (+) Improvement Non-Homesite Value: | + | $341,086 | |
| (+) Land Homesite Value: | + | $0 | |
| (+) Land Non-Homesite Value: | + | $340,000 | |
| (+) Curr Use (HS): | + | $0 | $0 |
| (+) Curr Use (NHS): | + | $0 | $0 |
| | | -------------------------- | |
| (=) Market Value: | = | $681,086 | |
| (–) Productivity Loss: | – | $0 | |
| | | -------------------------- | |
| (=) Subtotal: | = | $681,086 | |
| (+) Senior Appraised Value: | + | $0 | |
| (+) Non-Senior Appraised Value: | + | $681,086 | |
| | | -------------------------- | |
| (=) Total Appraised Value: | = | $681,086 | |
| (–) Senior Exemption Loss: | – | $0 | |
| (–) Exemption Loss: | – | $0 | |
| | | -------------------------- | |
| (=) Taxable Value: | = | $681,086 | |
Taxing Jurisdiction
| Owner: | FRAUSE, ROBERT D | | |
| % Ownership: | 100.0000000000% | | |
| Total Value: | $681,086 | | |
| Tax Area: | 700 - APPRAISER-S Whid Schl Dist, in town of Langley |
| CF | Conservation Futures | 0.0316035091 | $681,086 | $681,086 | $21.52 | | |
| LANG | City of Langley | 1.0093520762 | $681,086 | $681,086 | $687.46 | | |
| LANGBOND | City of Langley BOND | 1.0326110892 | $681,086 | $681,086 | $703.30 | | |
| FIRE3 | Fire & Rescue Dist #3 S Whidbey GEN | 1.2004855531 | $681,086 | $681,086 | $817.63 | | |
| HOBOND | Hospital BOND | 0.1910887512 | $681,086 | $681,086 | $130.15 | | |
| HOGEN | Hospital GEN | 0.3902502903 | $681,086 | $681,086 | $265.79 | | |
| CE | County Current Expense | 0.3708482477 | $681,086 | $681,086 | $252.58 | | |
| ISLANDEMS | Hospital GEN (EMS) | 0.5000000000 | $681,086 | $681,086 | $340.54 | | |
| LIB | Library Sno-Isle GEN | 0.3153421757 | $681,086 | $681,086 | $214.78 | | |
| PORTWHID | Port of S Whidbey GEN | 0.1094540357 | $681,086 | $681,086 | $74.55 | | |
| SCH206BOND | School 206 BOND | 0.3161759235 | $681,086 | $681,086 | $215.34 | | |
| SCH206MO | School 206 Enrichment | 0.4547169547 | $681,086 | $681,086 | $309.70 | | |
| ST | State School | 1.3035497053 | $681,086 | $681,086 | $887.83 | | |
| ST2 | State School Part 2 | 0.8169543533 | $681,086 | $681,086 | $556.42 | | |
| SWHIDPRBD | P & R S Whidbey BOND | 0.0152817568 | $681,086 | $681,086 | $10.41 | | |
| SWHIDPRBD2 | P & R S Whidbey BOND2 | 0.0138911264 | $681,086 | $681,086 | $9.46 | | |
| SWHIDPRMT | P & R S Whidbey GEN | 0.2053334452 | $681,086 | $681,086 | $139.85 | | |
| | Total Tax Rate: | 8.2769389934 | | | | | |
| | | | | Taxes w/Current Exemptions: | $5,637.31 | | |
| | | | | Taxes w/o Exemptions: | $5,637.31 | | |
Improvement / Building
| Improvement #1: | RESIDENTIAL | State Code: | Y | 1651.0 sqft | Value: | $341,086 |
| Bathrooms: | 2 | Bedrooms: | 2 | | Ceiling: | PLASTER PAINTED | Exterior Wall/Cover: | WOOD SIDING | | Floor Covering: | HARDWOOD/CARP 80-20 | Floor Structure: | WOOD W/SUBFLOOR | | Foundation: | CONCRETE | Heating: | FHA GAS | | Interior Finish: | PLASTER | Plumbing Fixture Cnt: | 9 | | Roof Slope: | 6" IN 12" | Roof Structure/Cover: | CJ WOOD SHAKES |
|
| | Type | Description | Class CD | Sub Class CD | Year Built | Area |
| | BAS | BASE/MAIN FLOOR | 3 | 0 | 1941 | 1287.0 |
| | OP4 | OPEN PORCH W/CEILING-ROOF | 3 | 0 | 1941 | 42.0 |
| | DGR | DETACHED GARAGE | 3 | 0 | 1941 | 758.8 |
| | UTY | STORAGE/UTILITY | 3 | 0 | 1941 | 49.0 |
| | UPS | UPPER STORY | 3 | 0 | 1941 | 364.0 |
| | OWP | OPEN WOOD PORCH W/STEPS | 3 | 0 | 1941 | 230.0 |
| | OWC | OPEN WOOD PORCH W/STEPS/ROOF/C | 3 | 0 | 1941 | 90.0 |
| | ENP | ENCLOSED PORCH | 3 | 0 | 1941 | 62.0 |
| | oBAR | BARN | 3 | 0 | 1941 | 0.0 |
| | OCP | OPEN CARPORT | 3 | 0 | 1941 | 128.0 |
| | oLOF | STORAGE LOFT | 3 | 0 | 1941 | 384.0 |
Sketch
Property Image
Land
| 1 | 18 | AC (02.01-03.00) | 0.0000 | 0.00 | 0.00 | 0.00 | 1.00 | $340,000 | $0 |
Roll Value History
| 2026 | N/A | N/A | N/A | N/A | N/A |
| 2025 | $341,086 | $340,000 | $0 | $681,086 | $681,086 |
| 2024 | $345,548 | $340,000 | $0 | $685,548 | $685,548 |
| 2023 | $350,009 | $340,000 | $0 | $690,009 | $690,009 |
| 2022 | $325,698 | $290,000 | $0 | $615,698 | $615,698 |
| 2021 | $293,226 | $210,000 | $0 | $503,226 | $503,226 |
| 2020 | $260,821 | $210,000 | $0 | $470,821 | $470,821 |
| 2019 | $206,240 | $240,000 | $0 | $446,240 | $446,240 |
| 2018 | $206,859 | $150,000 | $0 | $356,859 | $356,859 |
| 2017 | $208,094 | $150,000 | $0 | $358,094 | $358,094 |
| 2016 | $210,565 | $150,000 | $0 | $360,565 | $360,565 |
| 2015 | $213,035 | $150,000 | $0 | $363,035 | $363,035 |
| 2014 | $204,203 | $120,000 | $0 | $324,203 | $324,203 |
| 2013 | $206,632 | $95,000 | $0 | $301,632 | $301,632 |
| 2012 | $209,064 | $142,800 | $0 | $351,864 | $351,864 |
| 2011 | $211,494 | $168,000 | $0 | $379,494 | $379,494 |
| 2010 | $230,234 | $168,000 | $0 | $398,234 | $398,234 |
| 2009 | $236,648 | $200,000 | $0 | $436,648 | $436,648 |
| 2008 | $243,828 | $205,700 | $0 | $449,528 | $449,528 |
| 2007 | $247,625 | $205,700 | $0 | $453,325 | $453,325 |
Deed and Sales History
Payout Agreement
| No payout information available.. |