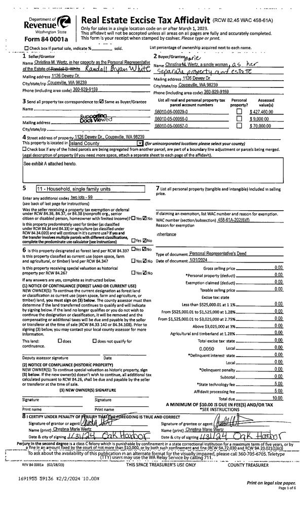
Property
Account |
| Property ID: | 15405 | Abbreviated Legal Description: | 21 - IN GL3:N75'OF S155'OF GL 3 W OF CO RD SUBJ TO & INCL EZ |
| Geographic ID: | R13206-145-4440 | Agent Code: | |
| Type: | Real | | |
| Tax Area: | 112 - APPRAISER-OH Schl Dist, outside OH, improved, greater than 1 acre | Land Use Code | 11 |
| Open Space: | N | DFL | N |
| Historic Property: | N | Remodel Property: | N |
| Multi-Family Redevelopment: | N | | |
| Township: | 32 | Section: | 06 |
| Range: | R1 |
Location |
| Address: | 2115 WEST BEACH RD OAK HARBOR, WA 98277 | Mapsco: | |
| Neighborhood: | Cycle 1 | Map ID: | 102 |
| Neighborhood CD: | 1 |
Owner |
| Name: | LORENE M DAVIDSON ET AL | Owner ID: | 299349 |
| Mailing Address: | 6516 43RD AVE NE SEATTLE, WA 98115-7538 | % Ownership: | 100.0000000000% |
| | | Exemptions: | |
Taxes and Assessment Details
Values
| (+) Improvement Homesite Value: | + | $0 | |
| (+) Improvement Non-Homesite Value: | + | $311,277 | |
| (+) Land Homesite Value: | + | $0 | |
| (+) Land Non-Homesite Value: | + | $350,000 | |
| (+) Curr Use (HS): | + | $0 | $0 |
| (+) Curr Use (NHS): | + | $0 | $0 |
| | | -------------------------- | |
| (=) Market Value: | = | $661,277 | |
| (–) Productivity Loss: | – | $0 | |
| | | -------------------------- | |
| (=) Subtotal: | = | $661,277 | |
| (+) Senior Appraised Value: | + | $0 | |
| (+) Non-Senior Appraised Value: | + | $661,277 | |
| | | -------------------------- | |
| (=) Total Appraised Value: | = | $661,277 | |
| (–) Senior Exemption Loss: | – | $0 | |
| (–) Exemption Loss: | – | $0 | |
| | | -------------------------- | |
| (=) Taxable Value: | = | $661,277 | |
Taxing Jurisdiction
| Owner: | LORENE M DAVIDSON ET AL | | |
| % Ownership: | 100.0000000000% | | |
| Total Value: | $661,277 | | |
| Tax Area: | 112 - APPRAISER-OH Schl Dist, outside OH, improved, greater than 1 acre |
| CF | Conservation Futures | 0.0316035091 | $661,277 | $661,277 | $20.90 | | |
| CEM1 | Cemetery #1 | 0.0040320932 | $661,277 | $661,277 | $2.67 | | |
| FIRE2 | Fire & Rescue Dist #2 N Whidbey GEN | 0.5475949600 | $661,277 | $661,277 | $362.11 | | |
| HOBOND | Hospital BOND | 0.1910887512 | $661,277 | $661,277 | $126.36 | | |
| HOGEN | Hospital GEN | 0.3902502903 | $661,277 | $661,277 | $258.06 | | |
| CE | County Current Expense | 0.3708482477 | $661,277 | $661,277 | $245.23 | | |
| CR | County Roads | 0.4584763726 | $661,277 | $661,277 | $303.18 | | |
| ISLANDEMS | Hospital GEN (EMS) | 0.5000000000 | $661,277 | $661,277 | $330.64 | | |
| LIB | Library Sno-Isle GEN | 0.3153421757 | $661,277 | $661,277 | $208.53 | | |
| NWHIDPRMT | P & R N Whidbey GEN | 0.2004466701 | $661,277 | $661,277 | $132.55 | | |
| SCH201MO | School 201 Enrichment | 1.8559231640 | $661,277 | $661,277 | $1,227.28 | | |
| ST | State School | 1.3035497053 | $661,277 | $661,277 | $862.01 | | |
| ST2 | State School Part 2 | 0.8169543533 | $661,277 | $661,277 | $540.23 | | |
| | Total Tax Rate: | 6.9861102925 | | | | | |
| | | | | Taxes w/Current Exemptions: | $4,619.75 | | |
| | | | | Taxes w/o Exemptions: | $4,619.75 | | |
Improvement / Building
| Improvement #1: | RESIDENTIAL | State Code: | Y | 2407.0 sqft | Value: | $311,277 |
| Bathrooms: | 3 | Bedrooms: | 4 | | Ceiling: | DRYWALL PAINTED | Cooling: | HEAT PUMP/CONV/V | | Exterior Wall/Cover: | WOOD SIDING | Floor Covering: | CARPET/VINYL 80-20 | | Floor Structure: | WOOD W/SUBFLOOR | Foundation: | CONCRETE | | Interior Finish: | DRYWALL PAINT | Plumbing Fixture Cnt: | 12 | | Roof Slope: | 5" IN 12" | Roof Structure/Cover: | CJ ASPHALT |
|
| | Type | Description | Class CD | Sub Class CD | Year Built | Area |
| | BAS | BASE/MAIN FLOOR | 3 | 0 | 1983 | 1659.0 |
| | UB8 | BASEMENT UNFINISHED 8" | 3 | 0 | 1983 | 255.0 |
| | UTY | STORAGE/UTILITY | 3 | 0 | 1983 | 40.0 |
| | OCP | OPEN CARPORT | 3 | 0 | 1983 | 260.0 |
| | OWP | OPEN WOOD PORCH W/STEPS | 3 | 0 | 1983 | 165.0 |
| | OWC | OPEN WOOD PORCH W/STEPS/ROOF/C | 3 | 0 | 1983 | 68.0 |
| | OWC | OPEN WOOD PORCH W/STEPS/ROOF/C | 3 | 0 | 1983 | 75.0 |
| | DWN | DOWNSTAIRS LIVING AREA | 3 | 0 | 1983 | 748.0 |
| | BGR | BASEMENT GARAGE | 3 | 0 | 1983 | 616.0 |
Sketch
Property Image
Land
| 1 | HB | HIGH BLUFF | 1.0800 | 47044.80 | 75.00 | 0.00 | 1.00 | $350,000 | $0 |
Roll Value History
| 2026 | N/A | N/A | N/A | N/A | N/A |
| 2025 | $311,277 | $350,000 | $0 | $661,277 | $661,277 |
| 2024 | $315,772 | $290,000 | $0 | $605,772 | $605,772 |
| 2023 | $320,266 | $290,000 | $0 | $610,266 | $610,266 |
| 2022 | $294,078 | $290,000 | $0 | $584,078 | $584,078 |
| 2021 | $259,266 | $225,000 | $0 | $484,266 | $484,266 |
| 2020 | $253,343 | $200,000 | $0 | $453,343 | $453,343 |
| 2019 | $196,025 | $250,000 | $0 | $446,025 | $446,025 |
| 2018 | $196,678 | $200,000 | $0 | $396,678 | $396,678 |
| 2017 | $162,457 | $200,000 | $0 | $362,457 | $362,457 |
| 2016 | $164,955 | $200,000 | $0 | $364,955 | $364,955 |
| 2015 | $167,455 | $200,000 | $0 | $367,455 | $367,455 |
| 2014 | $169,954 | $200,000 | $0 | $369,954 | $369,954 |
| 2013 | $172,454 | $174,550 | $0 | $347,004 | $347,004 |
| 2012 | $174,954 | $174,550 | $0 | $349,504 | $349,504 |
| 2011 | $182,122 | $174,550 | $0 | $356,672 | $356,672 |
| 2010 | $196,325 | $174,550 | $0 | $370,875 | $370,875 |
| 2009 | $205,000 | $247,401 | $0 | $452,401 | $452,401 |
| 2008 | $207,527 | $247,401 | $0 | $454,928 | $454,928 |
| 2007 | $208,147 | $247,401 | $0 | $455,548 | $455,548 |
Deed and Sales History
| 1 | 05/28/2021 | CPADC | Comm Prop Agmnt & Death Cert | DAMMAN LIFE EST, WINIFRED K | LORENE M DAVIDSON ET AL | | | | 89214 | |
| 2 | 03/20/2019 | EZ | Easement | DAMMAN LIFE EST, WINIFRED K | PUGET SOUND ENERGY | | | $2,000.00 | 40614 | 4473064 |
| 3 | 05/01/1997 | PRD | Personal Representatives Deed | DAMMAN, LESLIE F | DAMMAN, WINIFRED K | | | $0.00 | 71602 | 97007383 |
| 4 | 04/01/1997 | OTHER | Other - Misc. Documents | DAMMAN, LESLIE F | DAMMAN, LESLIE F | | | $0.00 | 67344 | 97005175 |
| 5 | 01/01/1900 | OTHER | Other - Misc. Documents | Unknown | DAMMAN, LESLIE F | | | $0.00 | 0 | 0 |
Payout Agreement
| No payout information available.. |