Property
Account |
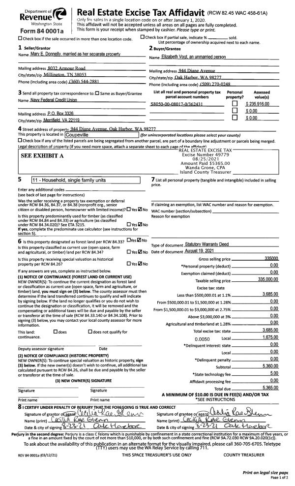
| Property ID: | 154237 | Abbreviated Legal Description: | 74 - BG CTR CO RD 254'E SW CR LT 3 N816.81' TPB S89*E 73.48' N0*E TO ML TH WLY ALG ML TP N0*E TO POB S TPB |
| Geographic ID: | R33034-235-0250 | Agent Code: | |
| Type: | Real | | |
| Tax Area: | 700 - APPRAISER-S Whid Schl Dist, in town of Langley | Land Use Code | 11 |
| Open Space: | N | DFL | N |
| Historic Property: | N | Remodel Property: | N |
| Multi-Family Redevelopment: | N | | |
| Township: | 30 | Section: | 34 |
| Range: | R3 |
Location |
| Address: | 84 BRACKENWOOD AVE LANGLEY, WA 98260 | Mapsco: | |
| Neighborhood: | City of Langley | Map ID: | 912 |
| Neighborhood CD: | 04-L |
Owner |
| Name: | CSC INC | Owner ID: | 20268 |
| Mailing Address: | PO BOX 1588 MEDFORD, OR 97501-0244 | % Ownership: | 100.0000000000% |
| | | Exemptions: | |
Taxes and Assessment Details
Values
| (+) Improvement Homesite Value: | + | $0 | |
| (+) Improvement Non-Homesite Value: | + | $119,262 | |
| (+) Land Homesite Value: | + | $0 | |
| (+) Land Non-Homesite Value: | + | $600,000 | |
| (+) Curr Use (HS): | + | $0 | $0 |
| (+) Curr Use (NHS): | + | $0 | $0 |
| | | -------------------------- | |
| (=) Market Value: | = | $719,262 | |
| (–) Productivity Loss: | – | $0 | |
| | | -------------------------- | |
| (=) Subtotal: | = | $719,262 | |
| (+) Senior Appraised Value: | + | $0 | |
| (+) Non-Senior Appraised Value: | + | $719,262 | |
| | | -------------------------- | |
| (=) Total Appraised Value: | = | $719,262 | |
| (–) Senior Exemption Loss: | – | $0 | |
| (–) Exemption Loss: | – | $0 | |
| | | -------------------------- | |
| (=) Taxable Value: | = | $719,262 | |
Taxing Jurisdiction
| Owner: | CSC INC | | |
| % Ownership: | 100.0000000000% | | |
| Total Value: | $719,262 | | |
| Tax Area: | 700 - APPRAISER-S Whid Schl Dist, in town of Langley |
| CF | Conservation Futures | 0.0316035091 | $719,262 | $719,262 | $22.73 | | |
| LANG | City of Langley | 1.0093520762 | $719,262 | $719,262 | $725.99 | | |
| LANGBOND | City of Langley BOND | 1.0326110892 | $719,262 | $719,262 | $742.72 | | |
| FIRE3 | Fire & Rescue Dist #3 S Whidbey GEN | 1.2004855531 | $719,262 | $719,262 | $863.46 | | |
| HOBOND | Hospital BOND | 0.1910887512 | $719,262 | $719,262 | $137.44 | | |
| HOGEN | Hospital GEN | 0.3902502903 | $719,262 | $719,262 | $280.69 | | |
| CE | County Current Expense | 0.3708482477 | $719,262 | $719,262 | $266.74 | | |
| ISLANDEMS | Hospital GEN (EMS) | 0.5000000000 | $719,262 | $719,262 | $359.63 | | |
| LIB | Library Sno-Isle GEN | 0.3153421757 | $719,262 | $719,262 | $226.81 | | |
| PORTWHID | Port of S Whidbey GEN | 0.1094540357 | $719,262 | $719,262 | $78.73 | | |
| SCH206BOND | School 206 BOND | 0.3161759235 | $719,262 | $719,262 | $227.41 | | |
| SCH206MO | School 206 Enrichment | 0.4547169547 | $719,262 | $719,262 | $327.06 | | |
| ST | State School | 1.3035497053 | $719,262 | $719,262 | $937.59 | | |
| ST2 | State School Part 2 | 0.8169543533 | $719,262 | $719,262 | $587.60 | | |
| SWHIDPRBD | P & R S Whidbey BOND | 0.0152817568 | $719,262 | $719,262 | $10.99 | | |
| SWHIDPRBD2 | P & R S Whidbey BOND2 | 0.0138911264 | $719,262 | $719,262 | $9.99 | | |
| SWHIDPRMT | P & R S Whidbey GEN | 0.2053334452 | $719,262 | $719,262 | $147.69 | | |
| | Total Tax Rate: | 8.2769389934 | | | | | |
| | | | | Taxes w/Current Exemptions: | $5,953.27 | | |
| | | | | Taxes w/o Exemptions: | $5,953.27 | | |
Improvement / Building
| Improvement #1: | RESIDENTIAL | State Code: | Y | 856.0 sqft | Value: | $119,262 |
| Bathrooms: | 2 | Bedrooms: | 2 | | Ceiling: | PLYWOOD PAINTED | Exterior Wall/Cover: | SHINGLE | | Floor Covering: | CARPET/VINYL 60-40 | Floor Structure: | WOOD W/SUBFLOOR | | Foundation: | CONCRETE | Heating: | WALL HEAT ELECTRIC | | Interior Finish: | DRYWALL PAINT | Plumbing Fixture Cnt: | 9 | | Roof Slope: | 5" IN 12" | Roof Structure/Cover: | CJ ASPHALT |
|
| | Type | Description | Class CD | Sub Class CD | Year Built | Area |
| | BAS | BASE/MAIN FLOOR | 3 | 0 | 1950 | 856.0 |
| | UTY | STORAGE/UTILITY | 3 | 0 | 1950 | 72.0 |
| | OWP | OPEN WOOD PORCH W/STEPS | 3 | 0 | 1950 | 112.0 |
| | OWC | OPEN WOOD PORCH W/STEPS/ROOF/C | 3 | 0 | 1950 | 25.0 |
| | OWC | OPEN WOOD PORCH W/STEPS/ROOF/C | 3 | 0 | 1950 | 96.0 |
| | CPD | OPEN CARPORT DIRT FLOOR | 3 | 0 | 1950 | 88.0 |
| | CPD | OPEN CARPORT DIRT FLOOR | 3 | 0 | 1950 | 160.0 |
| | UTY | STORAGE/UTILITY | 3 | 0 | 1950 | 0.0 |
Sketch
Property Image
Land
| 1 | HB | HIGH BLUFF | 0.0000 | 0.00 | 73.00 | 0.00 | 1.00 | $600,000 | $0 |
Roll Value History
| 2026 | N/A | N/A | N/A | N/A | N/A |
| 2025 | $119,262 | $600,000 | $0 | $719,262 | $719,262 |
| 2024 | $121,456 | $600,000 | $0 | $721,456 | $721,456 |
| 2023 | $123,650 | $600,000 | $0 | $723,650 | $723,650 |
| 2022 | $114,181 | $600,000 | $0 | $714,181 | $714,181 |
| 2021 | $101,333 | $350,000 | $0 | $451,333 | $451,333 |
| 2020 | $83,755 | $350,000 | $0 | $433,755 | $433,755 |
| 2019 | $60,028 | $300,000 | $0 | $360,028 | $360,028 |
| 2018 | $60,290 | $300,000 | $0 | $360,290 | $360,290 |
| 2017 | $60,811 | $300,000 | $0 | $360,811 | $360,811 |
| 2016 | $61,853 | $300,000 | $0 | $361,853 | $361,853 |
| 2015 | $62,898 | $250,000 | $0 | $312,898 | $312,898 |
| 2014 | $53,608 | $250,000 | $0 | $303,608 | $303,608 |
| 2013 | $54,630 | $242,897 | $0 | $297,527 | $297,527 |
| 2012 | $55,655 | $242,897 | $0 | $298,552 | $298,552 |
| 2011 | $56,677 | $242,897 | $0 | $299,574 | $299,574 |
| 2010 | $65,465 | $242,897 | $0 | $308,362 | $308,362 |
| 2009 | $67,474 | $347,024 | $0 | $414,498 | $414,498 |
| 2008 | $67,094 | $347,024 | $0 | $414,118 | $414,118 |
| 2007 | $68,273 | $221,211 | $0 | $289,484 | $289,484 |
Deed and Sales History
| 1 | 07/01/1986 | TRUSTEED | Trustee's Deed | THORNDIKE, WILLIAM D | CSC, INC | | | $55,511.00 | 62289 | 86010520 |
| 2 | 05/01/1971 | TRUSTEED | Trustee's Deed | STOWERS, FLORENCE H | THORNDIKE, WILLIAM D | | | $0.00 | 41496 | 0 |
| 3 | 01/01/1900 | OTHER | Other - Misc. Documents | Unknown | STOWERS, FLORENCE H | | | $0.00 | 0 | 0 |
Payout Agreement
| No payout information available.. |