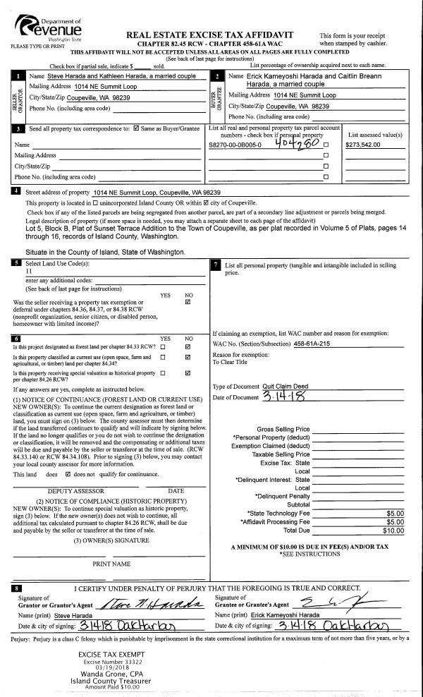
Property
Account |
| Property ID: | 154335 | Abbreviated Legal Description: | 29 - GL 1 EX W40AC INCL ADJ TIDES 600' OUT FR & PAR/W ML TGW CONSERVATION EZ AF#4322295 |
| Geographic ID: | R33105-086-1670 | Agent Code: | |
| Type: | Real | | |
| Tax Area: | 599 - APPRAISER-Stan/Cam Schl Dist, Special Dist, vacant & 50 acres or less | Land Use Code | 76 |
| Open Space: | N | DFL | N |
| Historic Property: | N | Remodel Property: | N |
| Multi-Family Redevelopment: | N | | |
| Township: | 31 | Section: | 05 |
| Range: | R3 |
Location |
| Address: | 299 S SUNRISE BLVD CAMANO ISLAND, WA 98282 | Mapsco: | |
| Neighborhood: | Cycle 5 | Map ID: | 914 |
| Neighborhood CD: | 5 |
Owner |
| Name: | ISLAND COUNTY | Owner ID: | 307696 |
| Mailing Address: | PUBLIC WORKS - PARKS 1 NE 7TH ST COUPEVILLE, WA 98239 | % Ownership: | 100.0000000000% |
| | | Exemptions: | EX |
Taxes and Assessment Details
Values
| (+) Improvement Homesite Value: | + | $0 | |
| (+) Improvement Non-Homesite Value: | + | $0 | |
| (+) Land Homesite Value: | + | $0 | |
| (+) Land Non-Homesite Value: | + | $1,915,000 | |
| (+) Curr Use (HS): | + | $0 | $0 |
| (+) Curr Use (NHS): | + | $0 | $0 |
| | | -------------------------- | |
| (=) Market Value: | = | $1,915,000 | |
| (–) Productivity Loss: | – | $0 | |
| | | -------------------------- | |
| (=) Subtotal: | = | $1,915,000 | |
| (+) Senior Appraised Value: | + | $0 | |
| (+) Non-Senior Appraised Value: | + | $1,915,000 | |
| | | -------------------------- | |
| (=) Total Appraised Value: | = | $1,915,000 | |
| (–) Senior Exemption Loss: | – | $0 | |
| (–) Exemption Loss: | – | $1,915,000 | |
| | | -------------------------- | |
| (=) Taxable Value: | = | $0 | |
Taxing Jurisdiction
| Owner: | ISLAND COUNTY | | |
| % Ownership: | 100.0000000000% | | |
| Total Value: | $1,915,000 | | |
| Tax Area: | 599 - APPRAISER-Stan/Cam Schl Dist, Special Dist, vacant & 50 acres or less |
| CF | Conservation Futures | 0.0316035091 | $1,915,000 | $0 | $0.00 | | |
| EMS1 | Fire & Rescue Dist #1 Camano GEN (EMS) | 0.3677864386 | $1,915,000 | $0 | $0.00 | | |
| CE | County Current Expense | 0.3708482477 | $1,915,000 | $0 | $0.00 | | |
| CR | County Roads | 0.4584763726 | $1,915,000 | $0 | $0.00 | | |
| LCIB | Library Sno-Isle BOND (Camano Island) | 0.0396325772 | $1,915,000 | $0 | $0.00 | | |
| LIB | Library Sno-Isle GEN | 0.3153421757 | $1,915,000 | $0 | $0.00 | | |
| SCH205_401 | School 205-401 Enrichment | 1.2698420524 | $1,915,000 | $0 | $0.00 | | |
| SCH205BOND | School 205-401 BOND | 0.9396497583 | $1,915,000 | $0 | $0.00 | | |
| ST | State School | 1.3035497053 | $1,915,000 | $0 | $0.00 | | |
| ST2 | State School Part 2 | 0.8169543533 | $1,915,000 | $0 | $0.00 | | |
| | Total Tax Rate: | 5.9136851902 | | | | | |
| | | | | Taxes w/Current Exemptions: | $0.00 | | |
| | | | | Taxes w/o Exemptions: | $11,324.71 | | |
Improvement / Building
Sketch
| No sketches available for this property. |
Property Image
Land
| 1 | HB | HIGH BLUFF | 0.0000 | 0.00 | 500.00 | 0.00 | 1.00 | $950,000 | $0 |
| 2 | 55 | TIDES | 0.0000 | 0.00 | 4047.00 | 0.00 | 1.00 | $15,000 | $0 |
| 3 | LB | LOW BANK | 0.0000 | 0.00 | 200.00 | 0.00 | 1.00 | $950,000 | $0 |
Roll Value History
| 2026 | N/A | N/A | N/A | N/A | N/A |
| 2025 | $0 | $1,915,000 | $0 | $1,915,000 | $0 |
| 2024 | $0 | $1,915,000 | $0 | $1,915,000 | $0 |
| 2023 | $0 | $1,915,000 | $0 | $1,915,000 | $0 |
| 2022 | $0 | $1,915,000 | $0 | $1,915,000 | $0 |
| 2021 | $0 | $1,615,000 | $0 | $1,615,000 | $0 |
| 2020 | $0 | $1,615,000 | $0 | $1,615,000 | $0 |
| 2019 | $0 | $1,615,000 | $0 | $1,615,000 | $0 |
| 2018 | $0 | $1,615,000 | $0 | $1,615,000 | $0 |
| 2017 | $0 | $1,615,000 | $0 | $1,615,000 | $0 |
| 2016 | $0 | $1,578,900 | $0 | $1,578,900 | $0 |
| 2015 | $391,226 | $1,859,449 | $0 | $2,250,675 | $2,250,675 |
| 2014 | $396,356 | $1,859,449 | $0 | $2,255,805 | $2,255,805 |
| 2013 | $401,485 | $1,859,449 | $0 | $2,260,934 | $2,260,934 |
| 2012 | $406,612 | $1,859,449 | $0 | $2,266,061 | $2,266,061 |
| 2011 | $411,738 | $2,320,561 | $0 | $2,732,299 | $2,732,299 |
| 2010 | $431,813 | $2,320,561 | $0 | $2,752,374 | $2,752,374 |
| 2009 | $236,000 | $2,714,000 | $0 | $2,950,000 | $2,950,000 |
| 2008 | $458,249 | $1,230,656 | $0 | $1,688,905 | $1,688,905 |
| 2007 | $463,595 | $1,202,327 | $0 | $1,665,922 | $1,665,922 |
Deed and Sales History
| 1 | 01/29/2018 | BARGSLD | Bargain And Sale Deed | WHIDBEY CAMANO LAND TRUST | ISLAND COUNTY | | | $90,000.00 | 32801 | 4438399 |
| 2 | 10/14/2016 | WD | Warranty Deed | STAY, EDWARD L / AMY L | WHIDBEY CAMANO LAND TRUST | | | $1,100,000.00 | 26581 | 4409532 |
| 3 | 02/28/2013 | EZ | Easement | THE NATURE CONSERVANCY | ISLAND COUNTY | | | $250,000.00 | 10851 | 4336595 |
| 4 | 08/23/2012 | EZ | Easement | STAY, EDWARD L / AMY L | THE NATURE CONSERVANCY | | | $500,000.00 | 8721 | 4322295 |
| 5 | 01/01/1998 | QCD | Quit Claim Deed | STAY, EDWARD L | STAY, EDWARD L | | | $0.00 | 80194 | 98000887 |
| 6 | 12/01/1997 | QCD | Quit Claim Deed | STAY, ROBERT E | STAY, EDWARD L | | | $0.00 | 74243 | 97020347 |
| 7 | 02/01/1994 | QCD | Quit Claim Deed | STAY, ROBERT E | STAY, ROBERT E | | | $0.00 | 40629 | 94003999 |
| 8 | 02/01/1994 | QCD | Quit Claim Deed | STAY, MARGARET E | STAY, ROBERT E | | | $0.00 | 40627 | 94003997 |
Payout Agreement
| No payout information available.. |