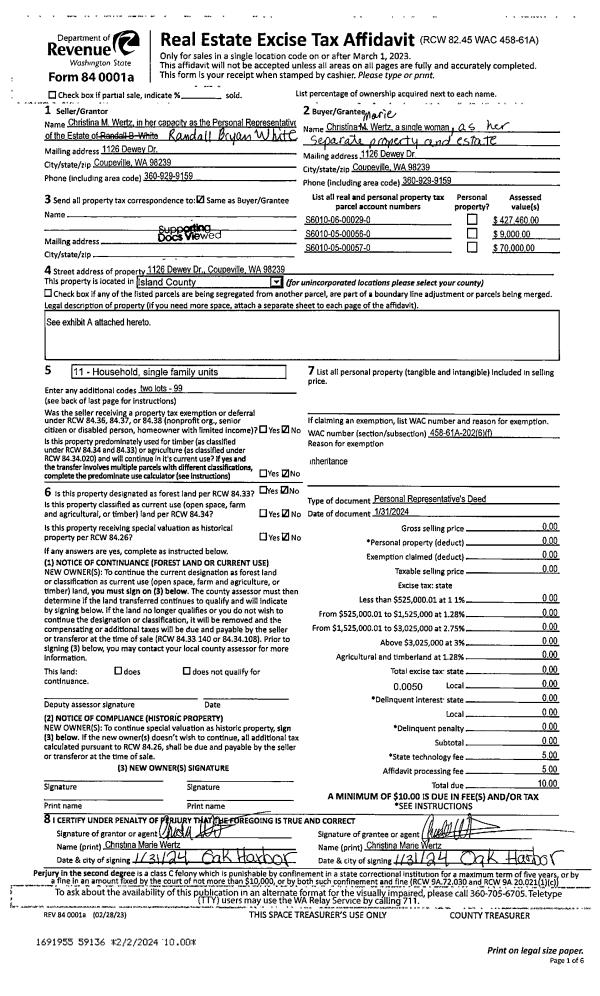
Property
Account |
| Property ID: | 15441 | Abbreviated Legal Description: | 23 - IN GL3: S105' OF N/2 OF S630' OF GL3 LY W OF W BEACH RD TGW EZ (TR A SP 72-040) |
| Geographic ID: | R13206-169-4470 | Agent Code: | |
| Type: | Real | | |
| Tax Area: | 112 - APPRAISER-OH Schl Dist, outside OH, improved, greater than 1 acre | Land Use Code | 11 |
| Open Space: | N | DFL | N |
| Historic Property: | N | Remodel Property: | N |
| Multi-Family Redevelopment: | N | | |
| Township: | 32 | Section: | 06 |
| Range: | R1 |
Location |
| Address: | 2129 WEST BEACH RD OAK HARBOR, WA 98277 | Mapsco: | |
| Neighborhood: | Cycle 1 | Map ID: | 102 |
| Neighborhood CD: | 1 |
Owner |
| Name: | BAIRD, KATHERINE L | Owner ID: | 264610 |
| Mailing Address: | 2129 WEST BEACH RD OAK HARBOR, WA 98277 | % Ownership: | 100.0000000000% |
| | | Exemptions: | |
Taxes and Assessment Details
Values
| (+) Improvement Homesite Value: | + | $0 | |
| (+) Improvement Non-Homesite Value: | + | $547,783 | |
| (+) Land Homesite Value: | + | $0 | |
| (+) Land Non-Homesite Value: | + | $350,000 | |
| (+) Curr Use (HS): | + | $0 | $0 |
| (+) Curr Use (NHS): | + | $0 | $0 |
| | | -------------------------- | |
| (=) Market Value: | = | $897,783 | |
| (–) Productivity Loss: | – | $0 | |
| | | -------------------------- | |
| (=) Subtotal: | = | $897,783 | |
| (+) Senior Appraised Value: | + | $0 | |
| (+) Non-Senior Appraised Value: | + | $897,783 | |
| | | -------------------------- | |
| (=) Total Appraised Value: | = | $897,783 | |
| (–) Senior Exemption Loss: | – | $0 | |
| (–) Exemption Loss: | – | $0 | |
| | | -------------------------- | |
| (=) Taxable Value: | = | $897,783 | |
Taxing Jurisdiction
| Owner: | BAIRD, KATHERINE L | | |
| % Ownership: | 100.0000000000% | | |
| Total Value: | $897,783 | | |
| Tax Area: | 112 - APPRAISER-OH Schl Dist, outside OH, improved, greater than 1 acre |
| CF | Conservation Futures | 0.0316035091 | $897,783 | $897,783 | $28.37 | | |
| CEM1 | Cemetery #1 | 0.0040320932 | $897,783 | $897,783 | $3.62 | | |
| FIRE2 | Fire & Rescue Dist #2 N Whidbey GEN | 0.5475949600 | $897,783 | $897,783 | $491.62 | | |
| HOBOND | Hospital BOND | 0.1910887512 | $897,783 | $897,783 | $171.56 | | |
| HOGEN | Hospital GEN | 0.3902502903 | $897,783 | $897,783 | $350.36 | | |
| CE | County Current Expense | 0.3708482477 | $897,783 | $897,783 | $332.94 | | |
| CR | County Roads | 0.4584763726 | $897,783 | $897,783 | $411.61 | | |
| ISLANDEMS | Hospital GEN (EMS) | 0.5000000000 | $897,783 | $897,783 | $448.89 | | |
| LIB | Library Sno-Isle GEN | 0.3153421757 | $897,783 | $897,783 | $283.11 | | |
| NWHIDPRMT | P & R N Whidbey GEN | 0.2004466701 | $897,783 | $897,783 | $179.96 | | |
| SCH201MO | School 201 Enrichment | 1.8559231640 | $897,783 | $897,783 | $1,666.22 | | |
| ST | State School | 1.3035497053 | $897,783 | $897,783 | $1,170.30 | | |
| ST2 | State School Part 2 | 0.8169543533 | $897,783 | $897,783 | $733.45 | | |
| | Total Tax Rate: | 6.9861102925 | | | | | |
| | | | | Taxes w/Current Exemptions: | $6,272.01 | | |
| | | | | Taxes w/o Exemptions: | $6,272.01 | | |
Improvement / Building
| Improvement #1: | RESIDENTIAL | State Code: | Y | 3012.0 sqft | Value: | $547,783 |
| Bathrooms: | 3 | Bedrooms: | 3 | | Ceiling: | DRYWALL PAINTED | Exterior Wall/Cover: | STUCCO | | Floor Covering: | CERAMIC TILE/CPT 40-60 | Floor Structure: | WOOD W/SUBFLOOR | | Foundation: | CONCRETE | Heating: | WALL HEAT ELECTRIC | | Interior Finish: | DRYWALL PAINT | Plumbing Fixture Cnt: | 14 | | Roof Slope: | 4" IN 12" | Roof Structure/Cover: | CJ CONCRETE TILE |
|
| | Type | Description | Class CD | Sub Class CD | Year Built | Area |
| | BAS | BASE/MAIN FLOOR | 4 | 0 | 2004 | 3012.0 |
| | OP4 | OPEN PORCH W/CEILING-ROOF | 4 | 0 | 2004 | 28.0 |
| | AGR | ATTACHED GARAGE | 4 | 0 | 2004 | 636.0 |
Sketch
Property Image
Land
| 1 | HB | HIGH BLUFF | 1.4800 | 64468.80 | 105.00 | 0.00 | 1.00 | $350,000 | $0 |
Roll Value History
| 2026 | N/A | N/A | N/A | N/A | N/A |
| 2025 | $547,783 | $350,000 | $0 | $897,783 | $897,783 |
| 2024 | $554,208 | $290,000 | $0 | $844,208 | $844,208 |
| 2023 | $528,506 | $290,000 | $0 | $818,506 | $818,506 |
| 2022 | $484,395 | $290,000 | $0 | $774,395 | $774,395 |
| 2021 | $426,270 | $250,000 | $0 | $676,270 | $676,270 |
| 2020 | $415,935 | $250,000 | $0 | $665,935 | $665,935 |
| 2019 | $324,318 | $300,000 | $0 | $624,318 | $624,318 |
| 2018 | $325,259 | $250,000 | $0 | $575,259 | $575,259 |
| 2017 | $290,019 | $250,000 | $0 | $540,019 | $540,019 |
| 2016 | $293,353 | $250,000 | $0 | $543,353 | $543,353 |
| 2015 | $296,688 | $250,000 | $0 | $546,688 | $546,688 |
| 2014 | $300,021 | $250,000 | $0 | $550,021 | $550,021 |
| 2013 | $333,655 | $231,773 | $0 | $565,428 | $565,428 |
| 2012 | $337,362 | $231,773 | $0 | $569,135 | $569,135 |
| 2011 | $351,124 | $231,773 | $0 | $582,897 | $582,897 |
| 2010 | $356,402 | $231,773 | $0 | $588,175 | $588,175 |
| 2009 | $375,434 | $328,507 | $0 | $703,941 | $703,941 |
| 2008 | $376,611 | $328,507 | $0 | $705,118 | $705,118 |
| 2007 | $381,535 | $328,507 | $0 | $710,042 | $710,042 |
Deed and Sales History
| 1 | 12/09/2013 | WD | Warranty Deed | HIPPS, WILLIAM D | BAIRD, KATHERINE L | | | $495,000.00 | 13721 | 4352668 |
| 2 | 01/30/2009 | PRD | Personal Representatives Deed | HIPPS, WILLIAM D | HIPPS, WILLIAM D | | | $0.00 | 90226 | 4243968 |
| 3 | 10/01/1994 | WD | Warranty Deed | D'AMATO, J M | HIPPS, WILLIAM D | | | $63,000.00 | 44497 | 94023080 |
| 4 | 07/01/1989 | WD | Warranty Deed | HAMILTON, CLIFFORD R | D'AMATO, J M | | | $41,500.00 | 93190 | 89010730 |
| 5 | 05/01/1986 | TRUSTEED | Trustee's Deed | FRANSSEN, LEON P | HAMILTON, CLIFFORD R | | | $0.00 | 61496 | 86007039 |
| 6 | 11/01/1984 | WD | Warranty Deed | STARK, THOMAS A | FRANSSEN, LEON P | | | $42,000.00 | 43283 | 84005457 |
| 7 | 10/01/1978 | OTHER | Other - Misc. Documents | Unknown | STARK, THOMAS A | | | $30,000.00 | 84844 | 340615 |
Payout Agreement
| No payout information available.. |