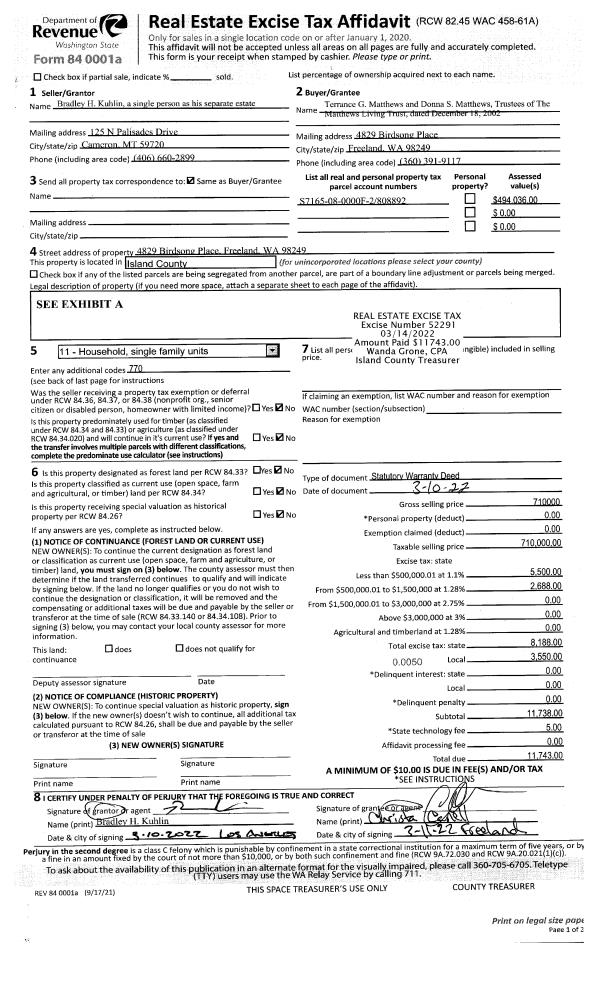
Property
Account |
| Property ID: | 154610 | Abbreviated Legal Description: | 45 - S/2 SE SW NW EX RD TGW & SUB EZ AF#94006692 |
| Geographic ID: | R33105-283-0990 | Agent Code: | |
| Type: | Real | | |
| Tax Area: | 592 - APPRAISER-Stan/Cam Schl Dist, Special Dist, improved, greater than 1 acre | Land Use Code | 11 |
| Open Space: | N | DFL | N |
| Historic Property: | N | Remodel Property: | N |
| Multi-Family Redevelopment: | N | | |
| Township: | 31 | Section: | 05 |
| Range: | R3 |
Location |
| Address: | 180 S SUNRISE BLVD CAMANO ISLAND, WA 98282 | Mapsco: | |
| Neighborhood: | Cycle 5 | Map ID: | 916 |
| Neighborhood CD: | 5 |
Owner |
| Name: | EIDSNESS, DEBORAH K B | Owner ID: | 5144 |
| Mailing Address: | WESLEY D EIDSNESS 180 S SUNRISE BLVD CAMANO ISLAND, WA 98282-8793 | % Ownership: | 100.0000000000% |
| | | Exemptions: | |
Taxes and Assessment Details
Values
| (+) Improvement Homesite Value: | + | $0 | |
| (+) Improvement Non-Homesite Value: | + | $409,831 | |
| (+) Land Homesite Value: | + | $0 | |
| (+) Land Non-Homesite Value: | + | $360,000 | |
| (+) Curr Use (HS): | + | $0 | $0 |
| (+) Curr Use (NHS): | + | $0 | $0 |
| | | -------------------------- | |
| (=) Market Value: | = | $769,831 | |
| (–) Productivity Loss: | – | $0 | |
| | | -------------------------- | |
| (=) Subtotal: | = | $769,831 | |
| (+) Senior Appraised Value: | + | $0 | |
| (+) Non-Senior Appraised Value: | + | $769,831 | |
| | | -------------------------- | |
| (=) Total Appraised Value: | = | $769,831 | |
| (–) Senior Exemption Loss: | – | $0 | |
| (–) Exemption Loss: | – | $0 | |
| | | -------------------------- | |
| (=) Taxable Value: | = | $769,831 | |
Taxing Jurisdiction
| Owner: | EIDSNESS, DEBORAH K B | | |
| % Ownership: | 100.0000000000% | | |
| Total Value: | $769,831 | | |
| Tax Area: | 592 - APPRAISER-Stan/Cam Schl Dist, Special Dist, improved, greater than 1 acre |
| CF | Conservation Futures | 0.0316035091 | $769,831 | $769,831 | $24.33 | | |
| EMS1 | Fire & Rescue Dist #1 Camano GEN (EMS) | 0.3677864386 | $769,831 | $769,831 | $283.13 | | |
| FIRE1 | Fire & Rescue Dist #1 Camano GEN | 1.2502910536 | $769,831 | $769,831 | $962.51 | | |
| FIRE1BOND | Fire & Rescue Dist #1 Camano BOND | 0.1570001679 | $769,831 | $769,831 | $120.86 | | |
| CE | County Current Expense | 0.3708482477 | $769,831 | $769,831 | $285.49 | | |
| CR | County Roads | 0.4584763726 | $769,831 | $769,831 | $352.95 | | |
| LCIB | Library Sno-Isle BOND (Camano Island) | 0.0396325772 | $769,831 | $769,831 | $30.51 | | |
| LIB | Library Sno-Isle GEN | 0.3153421757 | $769,831 | $769,831 | $242.76 | | |
| SCH205_401 | School 205-401 Enrichment | 1.2698420524 | $769,831 | $769,831 | $977.56 | | |
| SCH205BOND | School 205-401 BOND | 0.9396497583 | $769,831 | $769,831 | $723.37 | | |
| ST | State School | 1.3035497053 | $769,831 | $769,831 | $1,003.51 | | |
| ST2 | State School Part 2 | 0.8169543533 | $769,831 | $769,831 | $628.92 | | |
| | Total Tax Rate: | 7.3209764117 | | | | | |
| | | | | Taxes w/Current Exemptions: | $5,635.90 | | |
| | | | | Taxes w/o Exemptions: | $5,635.90 | | |
Improvement / Building
| Improvement #1: | RESIDENTIAL | State Code: | Y | 1704.0 sqft | Value: | $409,831 |
| Bathrooms: | 2 | Bedrooms: | 3 | | Ceiling: | DRYWALL PAINTED | Exterior Wall/Cover: | PLY/HARDBOARD T-111 | | Floor Covering: | CARPET/VINYL 80-20 | Floor Structure: | WOOD W/SUBFLOOR | | Foundation: | CONCRETE | Heating: | WALL HEAT ELECTRIC | | Interior Finish: | DRYWALL PAINT | Plumbing Fixture Cnt: | 10 | | Roof Slope: | 5" IN 12" | Roof Structure/Cover: | CJ ASPHALT |
|
| | Type | Description | Class CD | Sub Class CD | Year Built | Area |
| | BAS | BASE/MAIN FLOOR | 3 | 0 | 1994 | 1704.0 |
| | AGR | ATTACHED GARAGE | 3 | 0 | 1994 | 480.0 |
| | OWP | OPEN WOOD PORCH W/STEPS | 3 | 0 | 1994 | 174.4 |
| | OWP | OPEN WOOD PORCH W/STEPS | 3 | 0 | 1994 | 872.0 |
| | OWC | OPEN WOOD PORCH W/STEPS/ROOF/C | 3 | 0 | 1994 | 49.0 |
| | oOBD | Out Buildings | 3 | 0 | 1994 | 0.0 |
| | DGR | DETACHED GARAGE | 3 | 0 | 1994 | 1024.0 |
| | OCP | OPEN CARPORT | 3 | 0 | 1994 | 704.0 |
| | OWC | OPEN WOOD PORCH W/STEPS/ROOF/C | 3 | 0 | 1994 | 224.0 |
Sketch
Property Image
Land
| 1 | 32 | AC (03.01-09.99) | 4.7800 | 0.00 | 0.00 | 0.00 | 1.00 | $360,000 | $0 |
Roll Value History
| 2026 | N/A | N/A | N/A | N/A | N/A |
| 2025 | $409,831 | $360,000 | $0 | $769,831 | $769,831 |
| 2024 | $414,395 | $340,000 | $0 | $754,395 | $754,395 |
| 2023 | $418,957 | $320,000 | $0 | $738,957 | $738,957 |
| 2022 | $386,322 | $300,000 | $0 | $686,322 | $686,322 |
| 2021 | $332,652 | $230,000 | $0 | $562,652 | $562,652 |
| 2020 | $324,791 | $190,000 | $0 | $514,791 | $514,791 |
| 2019 | $245,572 | $220,000 | $0 | $465,572 | $465,572 |
| 2018 | $246,197 | $190,000 | $0 | $436,197 | $436,197 |
| 2017 | $247,442 | $150,000 | $0 | $397,442 | $397,442 |
| 2016 | $249,941 | $135,000 | $0 | $384,941 | $384,941 |
| 2015 | $240,504 | $135,000 | $0 | $375,504 | $375,504 |
| 2014 | $242,587 | $135,000 | $0 | $377,587 | $377,587 |
| 2013 | $244,672 | $107,072 | $0 | $351,744 | $351,744 |
| 2012 | $246,753 | $107,072 | $0 | $353,825 | $353,825 |
| 2011 | $248,839 | $133,840 | $0 | $382,679 | $382,679 |
| 2010 | $257,768 | $133,840 | $0 | $391,608 | $391,608 |
| 2009 | $266,483 | $152,960 | $0 | $419,443 | $419,443 |
| 2008 | $270,510 | $205,540 | $0 | $476,050 | $476,050 |
| 2007 | $274,106 | $141,010 | $0 | $415,116 | $415,116 |
Deed and Sales History
| 1 | 08/27/2007 | QCD | Quit Claim Deed | EIDSNESS, DEBORAH K B | EIDSNESS, DEBORAH K B | | | $0.00 | 72975 | 4210898 |
| 2 | 11/14/2006 | OTHER | Other - Misc. Documents | SANDE, DEBORAH K B | EIDSNESS, DEBORAH K B | | | $0.00 | 80065 | 0 |
| 3 | 11/22/2002 | DECREE | Divorce Decree/Legal Separation | SANDE, WILLIAM N | SANDE, DEBORAH K B | | | $0.00 | 24758 | 4038872 |
| 4 | 10/31/2000 | WD | Warranty Deed | O'BRIEN, MICHAEL T | SANDE, WILLIAM N | | | $208,850.00 | 4306 | 20019716 |
| 5 | 07/01/1998 | DECREE | Divorce Decree/Legal Separation | O'BRIEN, MICHAEL T | O'BRIEN, MICHAEL T | | | $0.00 | 82862 | 98014927 |
| 6 | 12/01/1994 | WD | Warranty Deed | RAINIER, LIMITED G | O'BRIEN, MICHAEL T | | | $167,500.00 | 44931 | 94025125 |
| 7 | 04/01/1993 | WD | Warranty Deed | DAVIS, GLENN C | RAINIER, LIMITED G | | | $0.00 | 31387 | 93007137 |
| 8 | 01/01/1992 | WD | Warranty Deed | SEGEBARTH, CLAUS J | DAVIS, GLENN C | | | $30,660.00 | 23348 | 92016371 |
| 9 | 07/01/1984 | QCD | Quit Claim Deed | SEGEBARTH, CLAUS J | SEGEBARTH, CLAUS J | | | $0.00 | 42642088 | 84002563 |
| 10 | 01/01/1900 | OTHER | Other - Misc. Documents | Unknown | O'BRIEN, MICHAEL T | | | $0.00 | 82862 | 98014927 |
| 11 | 01/01/1900 | OTHER | Other - Misc. Documents | O'BRIEN, MICHAEL T | SEGEBARTH, CLAUS J | | | $0.00 | 0 | 0 |
Payout Agreement
| No payout information available.. |