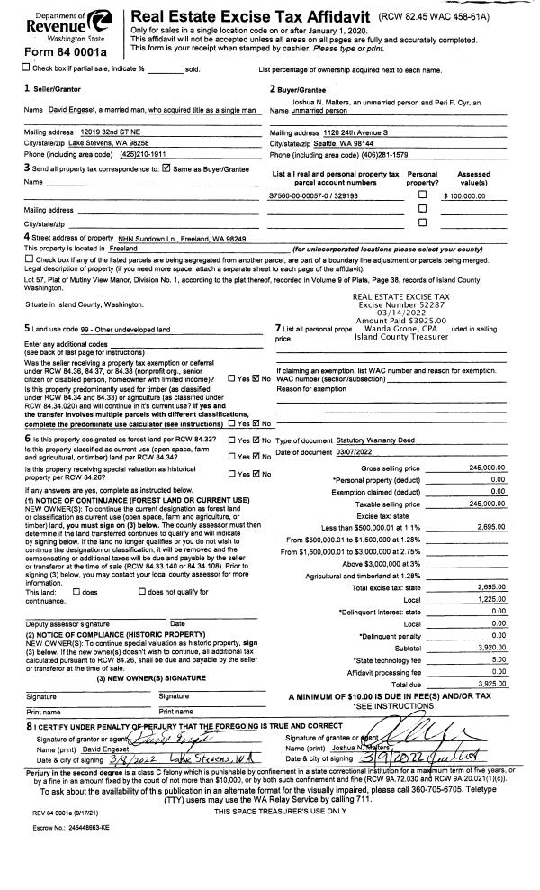
Property
Account |
| Property ID: | 154665 | Abbreviated Legal Description: | 48 - W/2 N/2 S/2 SW NW |
| Geographic ID: | R33105-316-0330 | Agent Code: | |
| Type: | Real | | |
| Tax Area: | 592 - APPRAISER-Stan/Cam Schl Dist, Special Dist, improved, greater than 1 acre | Land Use Code | 11 |
| Open Space: | N | DFL | N |
| Historic Property: | N | Remodel Property: | N |
| Multi-Family Redevelopment: | N | | |
| Township: | 31 | Section: | 05 |
| Range: | R3 |
Location |
| Address: | 156 S SUNRISE BLVD CAMANO ISLAND, WA 98282 | Mapsco: | |
| Neighborhood: | Cycle 5 | Map ID: | 916 |
| Neighborhood CD: | 5 |
Owner |
| Name: | FRENCH, JONATHAN E | Owner ID: | 292337 |
| Mailing Address: | 156 S SUNRISE BLVD CAMANO ISLAND, WA 98282 | % Ownership: | 100.0000000000% |
| | | Exemptions: | |
Taxes and Assessment Details
Values
| (+) Improvement Homesite Value: | + | $0 | |
| (+) Improvement Non-Homesite Value: | + | $712,603 | |
| (+) Land Homesite Value: | + | $0 | |
| (+) Land Non-Homesite Value: | + | $360,000 | |
| (+) Curr Use (HS): | + | $0 | $0 |
| (+) Curr Use (NHS): | + | $0 | $0 |
| | | -------------------------- | |
| (=) Market Value: | = | $1,072,603 | |
| (–) Productivity Loss: | – | $0 | |
| | | -------------------------- | |
| (=) Subtotal: | = | $1,072,603 | |
| (+) Senior Appraised Value: | + | $0 | |
| (+) Non-Senior Appraised Value: | + | $1,072,603 | |
| | | -------------------------- | |
| (=) Total Appraised Value: | = | $1,072,603 | |
| (–) Senior Exemption Loss: | – | $0 | |
| (–) Exemption Loss: | – | $0 | |
| | | -------------------------- | |
| (=) Taxable Value: | = | $1,072,603 | |
Taxing Jurisdiction
| Owner: | FRENCH, JONATHAN E | | |
| % Ownership: | 100.0000000000% | | |
| Total Value: | $1,072,603 | | |
| Tax Area: | 592 - APPRAISER-Stan/Cam Schl Dist, Special Dist, improved, greater than 1 acre |
| CF | Conservation Futures | 0.0316035091 | $1,072,603 | $1,072,603 | $33.90 | | |
| EMS1 | Fire & Rescue Dist #1 Camano GEN (EMS) | 0.3677864386 | $1,072,603 | $1,072,603 | $394.49 | | |
| FIRE1 | Fire & Rescue Dist #1 Camano GEN | 1.2502910536 | $1,072,603 | $1,072,603 | $1,341.07 | | |
| FIRE1BOND | Fire & Rescue Dist #1 Camano BOND | 0.1570001679 | $1,072,603 | $1,072,603 | $168.40 | | |
| CE | County Current Expense | 0.3708482477 | $1,072,603 | $1,072,603 | $397.77 | | |
| CR | County Roads | 0.4584763726 | $1,072,603 | $1,072,603 | $491.76 | | |
| LCIB | Library Sno-Isle BOND (Camano Island) | 0.0396325772 | $1,072,603 | $1,072,603 | $42.51 | | |
| LIB | Library Sno-Isle GEN | 0.3153421757 | $1,072,603 | $1,072,603 | $338.24 | | |
| SCH205_401 | School 205-401 Enrichment | 1.2698420524 | $1,072,603 | $1,072,603 | $1,362.04 | | |
| SCH205BOND | School 205-401 BOND | 0.9396497583 | $1,072,603 | $1,072,603 | $1,007.87 | | |
| ST | State School | 1.3035497053 | $1,072,603 | $1,072,603 | $1,398.19 | | |
| ST2 | State School Part 2 | 0.8169543533 | $1,072,603 | $1,072,603 | $876.27 | | |
| | Total Tax Rate: | 7.3209764117 | | | | | |
| | | | | Taxes w/Current Exemptions: | $7,852.51 | | |
| | | | | Taxes w/o Exemptions: | $7,852.51 | | |
Improvement / Building
| Improvement #1: | RESIDENTIAL | State Code: | Y | 3706.0 sqft | Value: | $712,603 |
| Bathrooms: | 2 | Bedrooms: | 3 | | Ceiling: | TONGUE & GROOVE | Cooling: | HEAT PUMP/CONV/V | | Exterior Wall/Cover: | WOOD SIDING | Floor Covering: | HARDWOOD/CARP 80-20 | | Floor Structure: | WOOD W/SUBFLOOR | Foundation: | CONCRETE | | Interior Finish: | DRYWALL PAINT | Plumbing Fixture Cnt: | 12 | | Roof Slope: | 8" IN 12" | Roof Structure/Cover: | BEAM CONCRETE TILE |
|
| | Type | Description | Class CD | Sub Class CD | Year Built | Area |
| | BAS | BASE/MAIN FLOOR | 4 | 0 | 1993 | 3706.0 |
| | UB8 | BASEMENT UNFINISHED 8" | 4 | 0 | 1993 | 144.0 |
| | AGR | ATTACHED GARAGE | 4 | 0 | 1993 | 1058.4 |
| | OWP | OPEN WOOD PORCH W/STEPS | 4 | 0 | 1993 | 659.2 |
| | OWC | OPEN WOOD PORCH W/STEPS/ROOF/C | 4 | 0 | 1993 | 231.0 |
Sketch
Property Image
Land
| 1 | 32 | AC (03.01-09.99) | 5.0000 | 0.00 | 0.00 | 0.00 | 1.00 | $360,000 | $0 |
Roll Value History
| 2026 | N/A | N/A | N/A | N/A | N/A |
| 2025 | $712,603 | $360,000 | $0 | $1,072,603 | $1,072,603 |
| 2024 | $721,374 | $340,000 | $0 | $1,061,374 | $1,061,374 |
| 2023 | $730,146 | $320,000 | $0 | $1,050,146 | $1,050,146 |
| 2022 | $669,110 | $300,000 | $0 | $969,110 | $969,110 |
| 2021 | $581,824 | $230,000 | $0 | $811,824 | $811,824 |
| 2020 | $569,071 | $190,000 | $0 | $759,071 | $759,071 |
| 2019 | $387,301 | $220,000 | $0 | $607,301 | $607,301 |
| 2018 | $388,463 | $190,000 | $0 | $578,463 | $578,463 |
| 2017 | $384,555 | $150,000 | $0 | $534,555 | $534,555 |
| 2016 | $389,134 | $135,000 | $0 | $524,134 | $524,134 |
| 2015 | $391,155 | $135,000 | $0 | $526,155 | $526,155 |
| 2014 | $362,894 | $135,000 | $0 | $497,894 | $497,894 |
| 2013 | $389,282 | $112,000 | $0 | $501,282 | $501,282 |
| 2012 | $394,151 | $112,000 | $0 | $506,151 | $506,151 |
| 2011 | $399,020 | $140,000 | $0 | $539,020 | $539,020 |
| 2010 | $414,067 | $140,000 | $0 | $554,067 | $554,067 |
| 2009 | $448,534 | $160,000 | $0 | $608,534 | $608,534 |
| 2008 | $452,400 | $215,000 | $0 | $667,400 | $667,400 |
| 2007 | $458,778 | $147,500 | $0 | $606,278 | $606,278 |
Deed and Sales History
| 1 | 09/30/2019 | WD | Warranty Deed | BINGHAM, JOHN W | FRENCH, JONATHAN E | | | $825,000.00 | 40813 | 4473981 |
| 2 | 02/21/2014 | WD | Warranty Deed | WINGET, KIMBERLY A | BINGHAM, JOHN W | | | $520,000.00 | 14409 | 4355803 |
| 3 | 07/09/2004 | WD | Warranty Deed | WINGETT, KIMBERLY A | WINGET, KIMBERLY A | | | $0.00 | 50648 | 4126307 |
| 4 | 07/09/2004 | WD | Warranty Deed | FLENER, BARRY M | WINGETT, KIMBERLY A | | | $485,000.00 | 43093 | 4106587 |
| 5 | 09/01/1982 | EXECUTORD | Executor Deed | HERSHAW, RICHARD A | FLENER, BARRY M | | | $26,250.00 | 22113 | 400165 |
| 6 | 01/01/1900 | OTHER | Other - Misc. Documents | Unknown | HERSHAW, RICHARD A | | | $0.00 | 0 | 0 |
Payout Agreement
| No payout information available.. |