Property
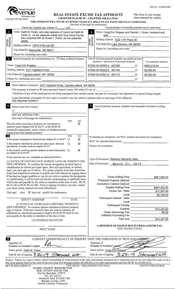
Account |
| Property ID: | 154674 | Abbreviated Legal Description: | 47 - E/2 N/2 S/2 SW NW EX SUNRISE BLVD |
| Geographic ID: | R33105-316-0990 | Agent Code: | |
| Type: | Real | | |
| Tax Area: | 592 - APPRAISER-Stan/Cam Schl Dist, Special Dist, improved, greater than 1 acre | Land Use Code | 11 |
| Open Space: | N | DFL | N |
| Historic Property: | N | Remodel Property: | N |
| Multi-Family Redevelopment: | N | | |
| Township: | 31 | Section: | 05 |
| Range: | R3 |
Location |
| Address: | 150 S SUNRISE BLVD CAMANO ISLAND, WA 98282 | Mapsco: | |
| Neighborhood: | Cycle 5 | Map ID: | 916 |
| Neighborhood CD: | 5 |
Owner |
| Name: | PICARD, JESSE | Owner ID: | 288636 |
| Mailing Address: | CARRIE PICARD 150 S SUNRISE BLVD CAMANO ISLAND, WA 98282 | % Ownership: | 100.0000000000% |
| | | Exemptions: | |
Taxes and Assessment Details
Values
| (+) Improvement Homesite Value: | + | $0 | |
| (+) Improvement Non-Homesite Value: | + | $434,466 | |
| (+) Land Homesite Value: | + | $0 | |
| (+) Land Non-Homesite Value: | + | $360,000 | |
| (+) Curr Use (HS): | + | $0 | $0 |
| (+) Curr Use (NHS): | + | $0 | $0 |
| | | -------------------------- | |
| (=) Market Value: | = | $794,466 | |
| (–) Productivity Loss: | – | $0 | |
| | | -------------------------- | |
| (=) Subtotal: | = | $794,466 | |
| (+) Senior Appraised Value: | + | $0 | |
| (+) Non-Senior Appraised Value: | + | $794,466 | |
| | | -------------------------- | |
| (=) Total Appraised Value: | = | $794,466 | |
| (–) Senior Exemption Loss: | – | $0 | |
| (–) Exemption Loss: | – | $0 | |
| | | -------------------------- | |
| (=) Taxable Value: | = | $794,466 | |
Taxing Jurisdiction
| Owner: | PICARD, JESSE | | |
| % Ownership: | 100.0000000000% | | |
| Total Value: | $794,466 | | |
| Tax Area: | 592 - APPRAISER-Stan/Cam Schl Dist, Special Dist, improved, greater than 1 acre |
| CF | Conservation Futures | 0.0316035091 | $794,466 | $794,466 | $25.11 | | |
| EMS1 | Fire & Rescue Dist #1 Camano GEN (EMS) | 0.3677864386 | $794,466 | $794,466 | $292.19 | | |
| FIRE1 | Fire & Rescue Dist #1 Camano GEN | 1.2502910536 | $794,466 | $794,466 | $993.31 | | |
| FIRE1BOND | Fire & Rescue Dist #1 Camano BOND | 0.1570001679 | $794,466 | $794,466 | $124.73 | | |
| CE | County Current Expense | 0.3708482477 | $794,466 | $794,466 | $294.63 | | |
| CR | County Roads | 0.4584763726 | $794,466 | $794,466 | $364.24 | | |
| LCIB | Library Sno-Isle BOND (Camano Island) | 0.0396325772 | $794,466 | $794,466 | $31.49 | | |
| LIB | Library Sno-Isle GEN | 0.3153421757 | $794,466 | $794,466 | $250.53 | | |
| SCH205_401 | School 205-401 Enrichment | 1.2698420524 | $794,466 | $794,466 | $1,008.85 | | |
| SCH205BOND | School 205-401 BOND | 0.9396497583 | $794,466 | $794,466 | $746.52 | | |
| ST | State School | 1.3035497053 | $794,466 | $794,466 | $1,035.63 | | |
| ST2 | State School Part 2 | 0.8169543533 | $794,466 | $794,466 | $649.04 | | |
| | Total Tax Rate: | 7.3209764117 | | | | | |
| | | | | Taxes w/Current Exemptions: | $5,816.27 | | |
| | | | | Taxes w/o Exemptions: | $5,816.27 | | |
Improvement / Building
| Improvement #1: | RESIDENTIAL | State Code: | Y | 2664.0 sqft | Value: | $434,466 |
| Bathrooms: | 2.5 | Bedrooms: | 3 | | Ceiling: | DRYWALL PAINTED | Exterior Wall/Cover: | WOOD SIDING | | Floor Covering: | HARDWOOD/CARP 60-40 | Floor Structure: | WOOD W/SUBFLOOR | | Foundation: | CONCRETE | Heating: | WALL HEAT ELECTRIC | | Interior Finish: | DRYWALL PAINT | Plumbing Fixture Cnt: | 13 | | Roof Slope: | 12" IN 12" | Roof Structure/Cover: | CJ ASPHALT |
|
| | Type | Description | Class CD | Sub Class CD | Year Built | Area |
| | BAS | BASE/MAIN FLOOR | 4 | 0 | 1985 | 1319.0 |
| | UPH | HALF STORY | 4 | 0 | 1985 | 200.0 |
| | UPS | UPPER STORY | 4 | 0 | 1985 | 1145.0 |
| | OWC | OPEN WOOD PORCH W/STEPS/ROOF/C | 4 | 0 | 1985 | 132.5 |
| | OWC | OPEN WOOD PORCH W/STEPS/ROOF/C | 4 | 0 | 1985 | 150.0 |
| | OWC | OPEN WOOD PORCH W/STEPS/ROOF/C | 4 | 0 | 1985 | 42.0 |
| | oOBD | Out Buildings | 4 | 0 | 1985 | 0.0 |
| | CPD | OPEN CARPORT DIRT FLOOR | 4 | 0 | 1985 | 1120.0 |
Sketch
Property Image
Land
| 1 | 32 | AC (03.01-09.99) | 4.7800 | 0.00 | 0.00 | 0.00 | 1.00 | $360,000 | $0 |
Roll Value History
| 2026 | N/A | N/A | N/A | N/A | N/A |
| 2025 | $434,466 | $360,000 | $0 | $794,466 | $794,466 |
| 2024 | $440,262 | $340,000 | $0 | $780,262 | $780,262 |
| 2023 | $446,057 | $320,000 | $0 | $766,057 | $766,057 |
| 2022 | $411,199 | $300,000 | $0 | $711,199 | $711,199 |
| 2021 | $360,395 | $230,000 | $0 | $590,395 | $590,395 |
| 2020 | $352,553 | $190,000 | $0 | $542,553 | $542,553 |
| 2019 | $272,355 | $220,000 | $0 | $492,355 | $492,355 |
| 2018 | $250,693 | $190,000 | $0 | $440,693 | $440,693 |
| 2017 | $252,190 | $150,000 | $0 | $402,190 | $402,190 |
| 2016 | $255,205 | $135,000 | $0 | $390,205 | $390,205 |
| 2015 | $254,427 | $135,000 | $0 | $389,427 | $389,427 |
| 2014 | $257,356 | $135,000 | $0 | $392,356 | $392,356 |
| 2013 | $260,289 | $107,072 | $0 | $367,361 | $367,361 |
| 2012 | $263,220 | $107,072 | $0 | $370,292 | $370,292 |
| 2011 | $266,149 | $133,840 | $0 | $399,989 | $399,989 |
| 2010 | $274,803 | $133,840 | $0 | $408,643 | $408,643 |
| 2009 | $307,442 | $152,960 | $0 | $460,402 | $460,402 |
| 2008 | $313,084 | $205,540 | $0 | $518,624 | $518,624 |
| 2007 | $318,659 | $141,010 | $0 | $459,669 | $459,669 |
Deed and Sales History
| 1 | 01/25/2019 | WD | Warranty Deed | LANDUCCI TRUSTEE, ADOLPH P | PICARD, JESSE | | | $532,500.00 | 37465 | 4458607 |
| 2 | 01/14/2016 | TRUSTEED | Trustee's Deed | LANDUCCI, ADOLPH P | LANDUCCI TRUSTEE, ADOLPH P | | | $0.00 | 22972 | 4393251 |
| 3 | 05/15/2012 | QCD | Quit Claim Deed | LANDUCCI TRUSTEE, ADOLPH P | LANDUCCI, ADOLPH P | | | $0.00 | 7896 | 4316954 |
| 4 | 09/29/2006 | 5 | DNU - Marriage License/Name Change | LANDUCCI, AL P | LANDUCCI TRUSTEE, ADOLPH P | | | $0.00 | 63892 | 4181231 |
| 5 | 11/01/1990 | WD | Warranty Deed | FLENER, BARRY M | LANDUCCI, AL P | | | $208,000.00 | 6224 | 90021355 |
| 6 | 09/01/1982 | EXECUTORD | Executor Deed | HERSHAW, RICHARD A | FLENER, BARRY M | | | $26,250.00 | 22114 | 400166 |
| 7 | 01/01/1900 | OTHER | Other - Misc. Documents | Unknown | HERSHAW, RICHARD A | | | $0.00 | 0 | 0 |
Payout Agreement
| No payout information available.. |