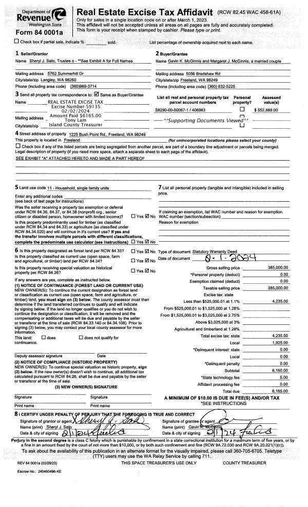
Property
Account |
| Property ID: | 15469 | Abbreviated Legal Description: | 24 - IN GL3: N/2 OF S630' OF GL3 LY W OF W BEACH RD EX S105' & N105' TGW EZ (TR B SP 72-040 AF#252241) |
| Geographic ID: | R13206-180-4490 | Agent Code: | |
| Type: | Real | | |
| Tax Area: | 112 - APPRAISER-OH Schl Dist, outside OH, improved, greater than 1 acre | Land Use Code | 11 |
| Open Space: | N | DFL | N |
| Historic Property: | N | Remodel Property: | N |
| Multi-Family Redevelopment: | N | | |
| Township: | 32 | Section: | 06 |
| Range: | R1 |
Location |
| Address: | 2137 WEST BEACH RD OAK HARBOR, WA 98277 | Mapsco: | |
| Neighborhood: | Cycle 1 | Map ID: | 102 |
| Neighborhood CD: | 1 |
Owner |
| Name: | GIESMAN, PAUL | Owner ID: | 273718 |
| Mailing Address: | KRISTI M GIESMAN 2137 WEST BEACH RD OAK HARBOR, WA 98277 | % Ownership: | 100.0000000000% |
| | | Exemptions: | |
Taxes and Assessment Details
Values
| (+) Improvement Homesite Value: | + | $0 | |
| (+) Improvement Non-Homesite Value: | + | $532,935 | |
| (+) Land Homesite Value: | + | $0 | |
| (+) Land Non-Homesite Value: | + | $350,000 | |
| (+) Curr Use (HS): | + | $0 | $0 |
| (+) Curr Use (NHS): | + | $0 | $0 |
| | | -------------------------- | |
| (=) Market Value: | = | $882,935 | |
| (–) Productivity Loss: | – | $0 | |
| | | -------------------------- | |
| (=) Subtotal: | = | $882,935 | |
| (+) Senior Appraised Value: | + | $0 | |
| (+) Non-Senior Appraised Value: | + | $882,935 | |
| | | -------------------------- | |
| (=) Total Appraised Value: | = | $882,935 | |
| (–) Senior Exemption Loss: | – | $0 | |
| (–) Exemption Loss: | – | $0 | |
| | | -------------------------- | |
| (=) Taxable Value: | = | $882,935 | |
Taxing Jurisdiction
| Owner: | GIESMAN, PAUL | | |
| % Ownership: | 100.0000000000% | | |
| Total Value: | $882,935 | | |
| Tax Area: | 112 - APPRAISER-OH Schl Dist, outside OH, improved, greater than 1 acre |
| CF | Conservation Futures | 0.0316035091 | $882,935 | $882,935 | $27.90 | | |
| CEM1 | Cemetery #1 | 0.0040320932 | $882,935 | $882,935 | $3.56 | | |
| FIRE2 | Fire & Rescue Dist #2 N Whidbey GEN | 0.5475949600 | $882,935 | $882,935 | $483.49 | | |
| HOBOND | Hospital BOND | 0.1910887512 | $882,935 | $882,935 | $168.72 | | |
| HOGEN | Hospital GEN | 0.3902502903 | $882,935 | $882,935 | $344.57 | | |
| CE | County Current Expense | 0.3708482477 | $882,935 | $882,935 | $327.43 | | |
| CR | County Roads | 0.4584763726 | $882,935 | $882,935 | $404.80 | | |
| ISLANDEMS | Hospital GEN (EMS) | 0.5000000000 | $882,935 | $882,935 | $441.47 | | |
| LIB | Library Sno-Isle GEN | 0.3153421757 | $882,935 | $882,935 | $278.43 | | |
| NWHIDPRMT | P & R N Whidbey GEN | 0.2004466701 | $882,935 | $882,935 | $176.98 | | |
| SCH201MO | School 201 Enrichment | 1.8559231640 | $882,935 | $882,935 | $1,638.66 | | |
| ST | State School | 1.3035497053 | $882,935 | $882,935 | $1,150.95 | | |
| ST2 | State School Part 2 | 0.8169543533 | $882,935 | $882,935 | $721.32 | | |
| | Total Tax Rate: | 6.9861102925 | | | | | |
| | | | | Taxes w/Current Exemptions: | $6,168.28 | | |
| | | | | Taxes w/o Exemptions: | $6,168.28 | | |
Improvement / Building
| Improvement #1: | RESIDENTIAL | State Code: | Y | 2409.1 sqft | Value: | $532,935 |
| Bathrooms: | 3.25 | Bedrooms: | 3 | | Ceiling: | DRYWALL PAINTED | Cooling: | HEAT PUMP/CONV/V | | Exterior Wall/Cover: | CEMENT FIBER | Floor Covering: | HARDWOOD/CARP 20-80 | | Floor Structure: | WOOD W/SUBFLOOR | Foundation: | CONCRETE | | Interior Finish: | DRYWALL PAINT | Plumbing Fixture Cnt: | 17 | | Roof Slope: | 5" IN 12" | Roof Structure/Cover: | CJ ASPHALT |
|
| | Type | Description | Class CD | Sub Class CD | Year Built | Area |
| | BAS | BASE/MAIN FLOOR | 4 | 0 | 1992 | 1806.0 |
| | BAW | BALCONY WOOD RAIL | 4 | 0 | 1992 | 45.0 |
| | DGR | DETACHED GARAGE | 4 | 0 | 1992 | 1152.0 |
| | DWN | DOWNSTAIRS LIVING AREA | 4 | 0 | 1992 | 432.0 |
| | UPS | UPPER STORY | 4 | 0 | 1992 | 171.1 |
| | OWC | OPEN WOOD PORCH W/STEPS/ROOF/C | 4 | 0 | 1992 | 145.0 |
Sketch
Property Image
Land
| 1 | HB | HIGH BLUFF | 1.4800 | 64468.80 | 105.00 | 0.00 | 1.00 | $350,000 | $0 |
Roll Value History
| 2026 | N/A | N/A | N/A | N/A | N/A |
| 2025 | $532,935 | $350,000 | $0 | $882,935 | $882,935 |
| 2024 | $539,660 | $290,000 | $0 | $829,660 | $829,660 |
| 2023 | $532,935 | $290,000 | $0 | $822,935 | $822,935 |
| 2022 | $488,669 | $290,000 | $0 | $778,669 | $778,669 |
| 2021 | $430,226 | $250,000 | $0 | $680,226 | $680,226 |
| 2020 | $418,580 | $250,000 | $0 | $668,580 | $668,580 |
| 2019 | $310,174 | $300,000 | $0 | $610,174 | $610,174 |
| 2018 | $311,105 | $250,000 | $0 | $561,105 | $561,105 |
| 2017 | $290,204 | $250,000 | $0 | $540,204 | $540,204 |
| 2016 | $293,925 | $250,000 | $0 | $543,925 | $543,925 |
| 2015 | $334,642 | $250,000 | $0 | $584,642 | $584,642 |
| 2014 | $339,044 | $250,000 | $0 | $589,044 | $589,044 |
| 2013 | $343,447 | $231,773 | $0 | $575,220 | $575,220 |
| 2012 | $347,851 | $231,773 | $0 | $579,624 | $579,624 |
| 2011 | $338,706 | $231,773 | $0 | $570,479 | $570,479 |
| 2010 | $342,143 | $231,773 | $0 | $573,916 | $573,916 |
| 2009 | $356,593 | $328,507 | $0 | $685,100 | $685,100 |
| 2008 | $359,436 | $328,507 | $0 | $687,943 | $687,943 |
| 2007 | $363,890 | $328,507 | $0 | $692,397 | $692,397 |
Deed and Sales History
| 1 | 08/10/2015 | WD | Warranty Deed | PEPLINSKI, ANTHONY J | GIESMAN, PAUL | | | $489,900.00 | 20927 | 4384067 |
| 2 | 09/12/2011 | BARGSLD | Bargain And Sale Deed | THE BANK OF NEW YORK MELLON FKA THE BANK OF NEW YORK | PEPLINSKI, ANTHONY J | | | $241,000.00 | 5546 | 4301210 |
| 3 | 07/08/2011 | TRUSTEED | Trustee's Deed | ROSE, KAREN Z | THE BANK OF NEW YORK MELLON FKA THE BANK OF NEW YORK | | | $479,152.00 | 5040 | 4298593 |
| 4 | 01/13/2004 | WD | Warranty Deed | SMITH, BECKY B | ROSE, KAREN Z | | | $390,000.00 | 40192 | 4088687 |
| 5 | 03/01/1995 | WD | Warranty Deed | SMITH, BECKY B | SMITH, BECKY B | | | $0.00 | 51170 | 95005470 |
| 6 | 08/01/1988 | WD | Warranty Deed | SMITH, BECKY B | SMITH, BECKY B | | | $35,000.00 | 82531 | 88009542 |
| 7 | 07/01/1988 | QCD | Quit Claim Deed | FRYER, ELEANOR L | SMITH, BECKY B | | | $0.00 | 82532 | 88009543 |
| 8 | 09/01/1978 | OTHER | Other - Misc. Documents | Unknown | FRYER, ELEANOR L | | | $30,000.00 | 84611 | 339980 |
Payout Agreement
| No payout information available.. |