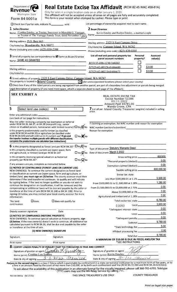
Property
Account |
| Property ID: | 154709 | Abbreviated Legal Description: | 44 - S/2 N/2 W/2 SE NW EX N10' OF W200' EX RDS |
| Geographic ID: | R33105-348-1640 | Agent Code: | |
| Type: | Real | | |
| Tax Area: | 592 - APPRAISER-Stan/Cam Schl Dist, Special Dist, improved, greater than 1 acre | Land Use Code | 11 |
| Open Space: | N | DFL | N |
| Historic Property: | N | Remodel Property: | N |
| Multi-Family Redevelopment: | N | | |
| Township: | 31 | Section: | 05 |
| Range: | R3 |
Location |
| Address: | 131 S SUNRISE BLVD CAMANO ISLAND, WA 98282 | Mapsco: | |
| Neighborhood: | Cycle 5 | Map ID: | 916 |
| Neighborhood CD: | 5 |
Owner |
| Name: | BENHAM TRUSTEE, TERRY LYNN | Owner ID: | 279782 |
| Mailing Address: | ELLYN CHARITY THOREEN TRUSTEE 131 S SUNRISE BLVD CAMANO ISLAND, WA 98282 | % Ownership: | 100.0000000000% |
| | | Exemptions: | |
Taxes and Assessment Details
Values
| (+) Improvement Homesite Value: | + | $0 | |
| (+) Improvement Non-Homesite Value: | + | $619,048 | |
| (+) Land Homesite Value: | + | $0 | |
| (+) Land Non-Homesite Value: | + | $360,000 | |
| (+) Curr Use (HS): | + | $0 | $0 |
| (+) Curr Use (NHS): | + | $0 | $0 |
| | | -------------------------- | |
| (=) Market Value: | = | $979,048 | |
| (–) Productivity Loss: | – | $0 | |
| | | -------------------------- | |
| (=) Subtotal: | = | $979,048 | |
| (+) Senior Appraised Value: | + | $0 | |
| (+) Non-Senior Appraised Value: | + | $979,048 | |
| | | -------------------------- | |
| (=) Total Appraised Value: | = | $979,048 | |
| (–) Senior Exemption Loss: | – | $0 | |
| (–) Exemption Loss: | – | $0 | |
| | | -------------------------- | |
| (=) Taxable Value: | = | $979,048 | |
Taxing Jurisdiction
| Owner: | BENHAM TRUSTEE, TERRY LYNN | | |
| % Ownership: | 100.0000000000% | | |
| Total Value: | $979,048 | | |
| Tax Area: | 592 - APPRAISER-Stan/Cam Schl Dist, Special Dist, improved, greater than 1 acre |
| CF | Conservation Futures | 0.0316035091 | $979,048 | $979,048 | $30.94 | | |
| EMS1 | Fire & Rescue Dist #1 Camano GEN (EMS) | 0.3677864386 | $979,048 | $979,048 | $360.08 | | |
| FIRE1 | Fire & Rescue Dist #1 Camano GEN | 1.2502910536 | $979,048 | $979,048 | $1,224.09 | | |
| FIRE1BOND | Fire & Rescue Dist #1 Camano BOND | 0.1570001679 | $979,048 | $979,048 | $153.71 | | |
| CE | County Current Expense | 0.3708482477 | $979,048 | $979,048 | $363.08 | | |
| CR | County Roads | 0.4584763726 | $979,048 | $979,048 | $448.87 | | |
| LCIB | Library Sno-Isle BOND (Camano Island) | 0.0396325772 | $979,048 | $979,048 | $38.80 | | |
| LIB | Library Sno-Isle GEN | 0.3153421757 | $979,048 | $979,048 | $308.74 | | |
| SCH205_401 | School 205-401 Enrichment | 1.2698420524 | $979,048 | $979,048 | $1,243.24 | | |
| SCH205BOND | School 205-401 BOND | 0.9396497583 | $979,048 | $979,048 | $919.96 | | |
| ST | State School | 1.3035497053 | $979,048 | $979,048 | $1,276.24 | | |
| ST2 | State School Part 2 | 0.8169543533 | $979,048 | $979,048 | $799.84 | | |
| | Total Tax Rate: | 7.3209764117 | | | | | |
| | | | | Taxes w/Current Exemptions: | $7,167.59 | | |
| | | | | Taxes w/o Exemptions: | $7,167.59 | | |
Improvement / Building
| Improvement #1: | RESIDENTIAL | State Code: | Y | 2295.6 sqft | Value: | $619,048 |
| Bathrooms: | 2.5 | Bedrooms: | 2 | | Ceiling: | DRYWALL PAINTED | Cooling: | HEAT PUMP/CONV/V | | Exterior Wall/Cover: | SHINGLE | Floor Covering: | HARDWOOD/CARP 60-40 | | Floor Structure: | WOOD W/SUBFLOOR | Foundation: | CONCRETE | | Interior Finish: | DRYWALL PAINT | Plumbing Fixture Cnt: | 13 | | Roof Slope: | 6" IN 12" | Roof Structure/Cover: | BEAM ASPHALT |
|
| | Type | Description | Class CD | Sub Class CD | Year Built | Area |
| | BAS | BASE/MAIN FLOOR | 4 | 0 | 2006 | 2295.6 |
| | OP4 | OPEN PORCH W/CEILING-ROOF | 4 | 0 | 2006 | 234.4 |
| | OP4 | OPEN PORCH W/CEILING-ROOF | 4 | 0 | 2006 | 67.3 |
| | AGR | ATTACHED GARAGE | 4 | 0 | 2006 | 687.7 |
| | OWP | OPEN WOOD PORCH W/STEPS | 4 | 0 | 2006 | 414.4 |
| | OWP | OPEN WOOD PORCH W/STEPS | 4 | 0 | 2006 | 289.8 |
Sketch
Property Image
Land
| 1 | 32 | AC (03.01-09.99) | 4.8000 | 0.00 | 0.00 | 0.00 | 1.00 | $360,000 | $0 |
Roll Value History
| 2026 | N/A | N/A | N/A | N/A | N/A |
| 2025 | $619,048 | $360,000 | $0 | $979,048 | $979,048 |
| 2024 | $624,252 | $340,000 | $0 | $964,252 | $964,252 |
| 2023 | $629,799 | $320,000 | $0 | $949,799 | $949,799 |
| 2022 | $574,680 | $300,000 | $0 | $874,680 | $874,680 |
| 2021 | $467,234 | $230,000 | $0 | $697,234 | $697,234 |
| 2020 | $453,921 | $190,000 | $0 | $643,921 | $643,921 |
| 2019 | $338,529 | $220,000 | $0 | $558,529 | $558,529 |
| 2018 | $339,455 | $190,000 | $0 | $529,455 | $529,455 |
| 2017 | $341,215 | $150,000 | $0 | $491,215 | $491,215 |
| 2016 | $344,926 | $135,000 | $0 | $479,926 | $479,926 |
| 2015 | $339,221 | $135,000 | $0 | $474,221 | $474,221 |
| 2014 | $342,969 | $135,000 | $0 | $477,969 | $477,969 |
| 2013 | $346,717 | $107,520 | $0 | $454,237 | $454,237 |
| 2012 | $350,463 | $107,520 | $0 | $457,983 | $457,983 |
| 2011 | $354,211 | $134,400 | $0 | $488,611 | $488,611 |
| 2010 | $359,071 | $134,400 | $0 | $493,471 | $493,471 |
| 2009 | $355,517 | $153,600 | $0 | $509,117 | $509,117 |
| 2008 | $357,860 | $206,400 | $0 | $564,260 | $564,260 |
| 2007 | $358,030 | $141,600 | $0 | $499,630 | $499,630 |
Deed and Sales History
| 1 | 04/27/2017 | ESTSEPPROP | Establish Separate Property | BENHAM, TERRY | BENHAM TRUSTEE, TERRY LYNN | | | $0.00 | 29187 | 4422070 |
| 2 | 05/06/2005 | WD | Warranty Deed | SCHONBERG, VIRGINIA M | BENHAM, TERRY | | | $145,000.00 | 51984 | 4133414 |
| 3 | 05/01/1995 | QCD | Quit Claim Deed | NESS, VIRGINIA M | SCHONBERG, VIRGINIA M | | | $0.00 | 51714 | 95008086 |
| 4 | 05/01/1979 | REC | Real Estate Contract | NESS, VIRGINIA M | NESS, VIRGINIA M | | | $0.00 | 0 | 5497 |
| 5 | 01/01/1900 | OTHER | Other - Misc. Documents | Unknown | NESS, VIRGINIA M | | | $0.00 | 0 | 0 |
Payout Agreement
| No payout information available.. |