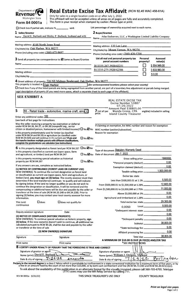
Property
Account |
| Property ID: | 154825 | Abbreviated Legal Description: | 7 - N/2 N/2 W/2 SE NW LY N OF LN: BG 16'S OF NWCR SD SUBD SELY TP 210'S OF NECR N/2 N/2 W/2 SE NW TERM PT OF LN |
| Geographic ID: | R33105-388-1800 | Agent Code: | |
| Type: | Real | | |
| Tax Area: | 599 - APPRAISER-Stan/Cam Schl Dist, Special Dist, vacant & 50 acres or less | Land Use Code | 91 |
| Open Space: | N | DFL | N |
| Historic Property: | N | Remodel Property: | N |
| Multi-Family Redevelopment: | N | | |
| Township: | 31 | Section: | 05 |
| Range: | R3 |
Location |
| Address: | | Mapsco: | |
| Neighborhood: | Cycle 5 | Map ID: | 916 |
| Neighborhood CD: | 5 |
Owner |
| Name: | SCHONBERG, VIRGINIA M N | Owner ID: | 60030 |
| Mailing Address: | ROY W SCHONBERG 101 S SUNRISE BLVD CAMANO ISLAND, WA 98282-8793 | % Ownership: | 100.0000000000% |
| | | Exemptions: | |
Taxes and Assessment Details
Values
| (+) Improvement Homesite Value: | + | $0 | |
| (+) Improvement Non-Homesite Value: | + | $0 | |
| (+) Land Homesite Value: | + | $0 | |
| (+) Land Non-Homesite Value: | + | $25,000 | |
| (+) Curr Use (HS): | + | $0 | $0 |
| (+) Curr Use (NHS): | + | $0 | $0 |
| | | -------------------------- | |
| (=) Market Value: | = | $25,000 | |
| (–) Productivity Loss: | – | $0 | |
| | | -------------------------- | |
| (=) Subtotal: | = | $25,000 | |
| (+) Senior Appraised Value: | + | $0 | |
| (+) Non-Senior Appraised Value: | + | $25,000 | |
| | | -------------------------- | |
| (=) Total Appraised Value: | = | $25,000 | |
| (–) Senior Exemption Loss: | – | $0 | |
| (–) Exemption Loss: | – | $0 | |
| | | -------------------------- | |
| (=) Taxable Value: | = | $25,000 | |
Taxing Jurisdiction
| Owner: | SCHONBERG, VIRGINIA M N | | |
| % Ownership: | 100.0000000000% | | |
| Total Value: | $25,000 | | |
| Tax Area: | 599 - APPRAISER-Stan/Cam Schl Dist, Special Dist, vacant & 50 acres or less |
| CF | Conservation Futures | 0.0316035091 | $25,000 | $25,000 | $0.79 | | |
| EMS1 | Fire & Rescue Dist #1 Camano GEN (EMS) | 0.3677864386 | $25,000 | $25,000 | $9.19 | | |
| CE | County Current Expense | 0.3708482477 | $25,000 | $25,000 | $9.27 | | |
| CR | County Roads | 0.4584763726 | $25,000 | $25,000 | $11.46 | | |
| LCIB | Library Sno-Isle BOND (Camano Island) | 0.0396325772 | $25,000 | $25,000 | $0.99 | | |
| LIB | Library Sno-Isle GEN | 0.3153421757 | $25,000 | $25,000 | $7.88 | | |
| SCH205_401 | School 205-401 Enrichment | 1.2698420524 | $25,000 | $25,000 | $31.75 | | |
| SCH205BOND | School 205-401 BOND | 0.9396497583 | $25,000 | $25,000 | $23.49 | | |
| ST | State School | 1.3035497053 | $25,000 | $25,000 | $32.59 | | |
| ST2 | State School Part 2 | 0.8169543533 | $25,000 | $25,000 | $20.42 | | |
| | Total Tax Rate: | 5.9136851902 | | | | | |
| | | | | Taxes w/Current Exemptions: | $147.83 | | |
| | | | | Taxes w/o Exemptions: | $147.83 | | |
Improvement / Building
Sketch
| No sketches available for this property. |
Property Image
Land
| 1 | 17 | AC (01.01-02.00) | 1.2500 | 54450.00 | 0.00 | 0.00 | 1.00 | $25,000 | $0 |
Roll Value History
| 2026 | N/A | N/A | N/A | N/A | N/A |
| 2025 | $0 | $25,000 | $0 | $25,000 | $25,000 |
| 2024 | $0 | $25,000 | $0 | $25,000 | $25,000 |
| 2023 | $0 | $25,000 | $0 | $25,000 | $25,000 |
| 2022 | $0 | $25,000 | $0 | $25,000 | $25,000 |
| 2021 | $0 | $25,000 | $0 | $25,000 | $25,000 |
| 2020 | $0 | $25,000 | $0 | $25,000 | $25,000 |
| 2019 | $0 | $25,000 | $0 | $25,000 | $25,000 |
| 2018 | $0 | $25,000 | $0 | $25,000 | $25,000 |
| 2017 | $0 | $25,000 | $0 | $25,000 | $25,000 |
| 2016 | $0 | $25,000 | $0 | $25,000 | $25,000 |
| 2015 | $0 | $25,000 | $0 | $25,000 | $25,000 |
| 2014 | $0 | $25,000 | $0 | $25,000 | $25,000 |
| 2013 | $0 | $25,000 | $0 | $25,000 | $25,000 |
| 2012 | $0 | $42,750 | $0 | $42,750 | $42,750 |
| 2011 | $0 | $42,750 | $0 | $42,750 | $42,750 |
| 2010 | $0 | $42,750 | $0 | $42,750 | $42,750 |
| 2009 | $0 | $60,750 | $0 | $60,750 | $60,750 |
| 2008 | $0 | $63,000 | $0 | $63,000 | $63,000 |
| 2007 | $0 | $63,000 | $0 | $63,000 | $63,000 |
Deed and Sales History
| 1 | 05/01/1995 | QCD | Quit Claim Deed | NESS, VIRGINIA M | SCHONBERG, VIRGINIA M | | | $0.00 | 51714 | 95008086 |
| 2 | 08/01/1979 | EXECUTORD | Executor Deed | SHERTZER, WILLIAM R | NESS, VIRGINIA M | | | $12,100.00 | 94353 | 360259 |
| 3 | 01/01/1900 | OTHER | Other - Misc. Documents | Unknown | SHERTZER, WILLIAM R | | | $0.00 | 0 | 0 |
Payout Agreement
| No payout information available.. |