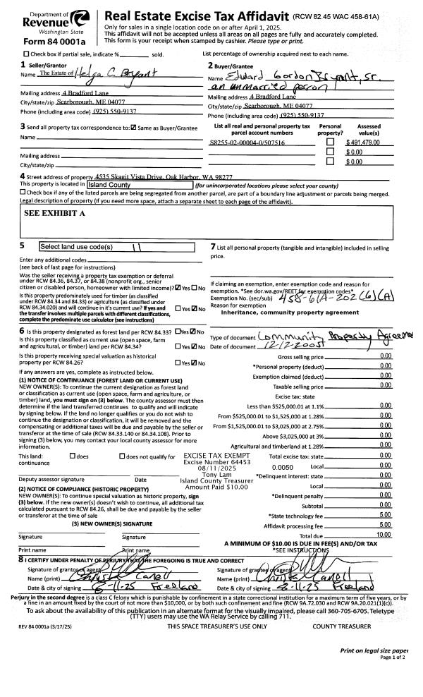
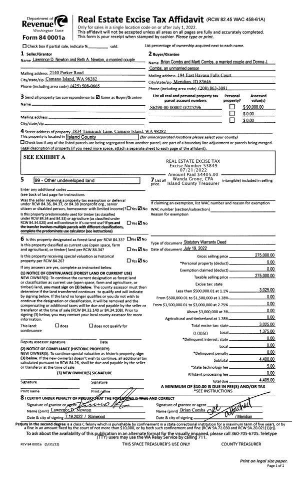
Property
Account |
| Property ID: | 155067 | Abbreviated Legal Description: | 20 - IN GL2: BG W/4 CR SEC 6 S945.52' TPB E589.56' S01*W371.69' W582.11' N371 .89' TPB (LOT G V4 SUR P129 AF#312915) |
| Geographic ID: | R33106-152-0300 | Agent Code: | |
| Type: | Real | | |
| Tax Area: | 599 - APPRAISER-Stan/Cam Schl Dist, Special Dist, vacant & 50 acres or less | Land Use Code | 91 |
| Open Space: | N | DFL | N |
| Historic Property: | N | Remodel Property: | N |
| Multi-Family Redevelopment: | N | | |
| Township: | 31 | Section: | 06 |
| Range: | R3 |
Location |
| Address: | 23 W CAMANO HILL RD CAMANO ISLAND, WA 98282 | Mapsco: | |
| Neighborhood: | Cycle 5 | Map ID: | 918 |
| Neighborhood CD: | 5 |
Owner |
| Name: | GETTER FINE HOMES, LLC | Owner ID: | 312693 |
| Mailing Address: | 3415 280TH ST NW STANWOOD, WA 98292 | % Ownership: | 100.0000000000% |
| | | Exemptions: | |
Taxes and Assessment Details
Values
| (+) Improvement Homesite Value: | + | $0 | |
| (+) Improvement Non-Homesite Value: | + | $0 | |
| (+) Land Homesite Value: | + | $0 | |
| (+) Land Non-Homesite Value: | + | $260,000 | |
| (+) Curr Use (HS): | + | $0 | $0 |
| (+) Curr Use (NHS): | + | $0 | $0 |
| | | -------------------------- | |
| (=) Market Value: | = | $260,000 | |
| (–) Productivity Loss: | – | $0 | |
| | | -------------------------- | |
| (=) Subtotal: | = | $260,000 | |
| (+) Senior Appraised Value: | + | $0 | |
| (+) Non-Senior Appraised Value: | + | $260,000 | |
| | | -------------------------- | |
| (=) Total Appraised Value: | = | $260,000 | |
| (–) Senior Exemption Loss: | – | $0 | |
| (–) Exemption Loss: | – | $0 | |
| | | -------------------------- | |
| (=) Taxable Value: | = | $260,000 | |
Taxing Jurisdiction
| Owner: | GETTER FINE HOMES, LLC | | |
| % Ownership: | 100.0000000000% | | |
| Total Value: | $260,000 | | |
| Tax Area: | 599 - APPRAISER-Stan/Cam Schl Dist, Special Dist, vacant & 50 acres or less |
| CF | Conservation Futures | 0.0316035091 | $260,000 | $260,000 | $8.22 | | |
| EMS1 | Fire & Rescue Dist #1 Camano GEN (EMS) | 0.3677864386 | $260,000 | $260,000 | $95.62 | | |
| CE | County Current Expense | 0.3708482477 | $260,000 | $260,000 | $96.42 | | |
| CR | County Roads | 0.4584763726 | $260,000 | $260,000 | $119.20 | | |
| LCIB | Library Sno-Isle BOND (Camano Island) | 0.0396325772 | $260,000 | $260,000 | $10.30 | | |
| LIB | Library Sno-Isle GEN | 0.3153421757 | $260,000 | $260,000 | $81.99 | | |
| SCH205_401 | School 205-401 Enrichment | 1.2698420524 | $260,000 | $260,000 | $330.16 | | |
| SCH205BOND | School 205-401 BOND | 0.9396497583 | $260,000 | $260,000 | $244.31 | | |
| ST | State School | 1.3035497053 | $260,000 | $260,000 | $338.92 | | |
| ST2 | State School Part 2 | 0.8169543533 | $260,000 | $260,000 | $212.41 | | |
| | Total Tax Rate: | 5.9136851902 | | | | | |
| | | | | Taxes w/Current Exemptions: | $1,537.55 | | |
| | | | | Taxes w/o Exemptions: | $1,537.55 | | |
Improvement / Building
| Improvement #1: | RESIDENTIAL | State Code: | Y | 0.0 sqft | Value: | $0 |
| | Type | Description | Class CD | Sub Class CD | Year Built | Area |
| | BAS | BASE/MAIN FLOOR | 4 | 0 | 2025 | 0.0 |
| | AGR | ATTACHED GARAGE | 4 | 0 | 2025 | 0.0 |
| | DWN | DOWNSTAIRS LIVING AREA | 4 | 0 | 2025 | 0.0 |
| | OWP | OPEN WOOD PORCH W/STEPS | 4 | 0 | 2025 | 0.0 |
| | OWR | OPEN WOOD PORCH W/STEPS/ROOF | 4 | 0 | 2025 | 0.0 |
Sketch
| No sketches available for this property. |
Property Image
Land
| 1 | 32 | AC (03.01-09.99) | 5.0000 | 0.00 | 0.00 | 0.00 | 1.00 | $260,000 | $0 |
Roll Value History
| 2026 | N/A | N/A | N/A | N/A | N/A |
| 2025 | $0 | $260,000 | $0 | $260,000 | $260,000 |
| 2024 | $0 | $250,000 | $0 | $250,000 | $250,000 |
| 2023 | $0 | $240,000 | $0 | $240,000 | $240,000 |
| 2022 | $0 | $220,000 | $0 | $220,000 | $220,000 |
| 2021 | $0 | $190,000 | $0 | $190,000 | $190,000 |
| 2020 | $0 | $160,000 | $0 | $160,000 | $160,000 |
| 2019 | $0 | $170,000 | $0 | $170,000 | $170,000 |
| 2018 | $0 | $135,000 | $0 | $135,000 | $135,000 |
| 2017 | $0 | $130,000 | $0 | $130,000 | $130,000 |
| 2016 | $0 | $100,000 | $0 | $100,000 | $100,000 |
| 2015 | $0 | $100,000 | $0 | $100,000 | $100,000 |
| 2014 | $0 | $100,000 | $0 | $100,000 | $100,000 |
| 2013 | $0 | $120,000 | $0 | $120,000 | $120,000 |
| 2012 | $0 | $120,000 | $0 | $120,000 | $120,000 |
| 2011 | $0 | $120,000 | $0 | $120,000 | $120,000 |
| 2010 | $0 | $120,000 | $0 | $120,000 | $120,000 |
| 2009 | $0 | $150,000 | $0 | $150,000 | $150,000 |
| 2008 | $0 | $152,500 | $0 | $152,500 | $152,500 |
| 2007 | $0 | $130,000 | $0 | $130,000 | $130,000 |
Deed and Sales History
| 1 | 01/29/2025 | WD | Warranty Deed | MYERS, JENNIFER L | GETTER FINE HOMES, LLC | | | $365,000.00 | 62437 | 4581768 |
|   | |
| 2 | 04/18/2018 | WD | Warranty Deed | SWANSON, RICHARD | MYERS, JENNIFER L | | | $280,000.00 | 33752 | 4442938 |
|   | |
| 3 | 04/10/2017 | WD | Warranty Deed | ROE, M J | SWANSON, RICHARD | | | $135,000.00 | 28844 | 4420625 |
| 4 | 05/04/2004 | WD | Warranty Deed | ROE, M J | Roe, M J | | | $21,840.00 | 44102 | 4111675 |
| 5 | 12/01/1988 | WD | Warranty Deed | ROE, M J | ROE, M J | | | $0.00 | 84253 | 88015892 |
| 6 | 09/01/1988 | WD | Warranty Deed | ELLIOTT, JAMES B | ROE, M J | | | $26,180.00 | 83417 | 88012795 |
| 7 | 01/01/1900 | OTHER | Other - Misc. Documents | Roe, M J | ROE, M J | | | $0.00 | 0 | 0 |
| 8 | 01/01/1900 | OTHER | Other - Misc. Documents | Unknown | ELLIOTT, JAMES B | | | $0.00 | 0 | 0 |
Payout Agreement
| No payout information available.. |