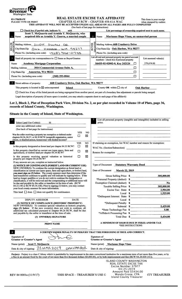
Property
Account |
| Property ID: | 155361 | Abbreviated Legal Description: | 42 - N319.02' OF SW NW LY W OF CAMANO HILL RD |
| Geographic ID: | R33106-378-0350 | Agent Code: | |
| Type: | Real | | |
| Tax Area: | 592 - APPRAISER-Stan/Cam Schl Dist, Special Dist, improved, greater than 1 acre | Land Use Code | 11 |
| Open Space: | N | DFL | N |
| Historic Property: | N | Remodel Property: | N |
| Multi-Family Redevelopment: | N | | |
| Township: | 31 | Section: | 06 |
| Range: | R3 |
Location |
| Address: | 37 E CAMANO HILL RD CAMANO ISLAND, WA 98282 | Mapsco: | |
| Neighborhood: | Cycle 5 | Map ID: | 920 |
| Neighborhood CD: | 5 |
Owner |
| Name: | DODD, CHARLES A | Owner ID: | 288653 |
| Mailing Address: | 4827 GARDNER AVE EVERETT, WA 98203 | % Ownership: | 100.0000000000% |
| | | Exemptions: | |
Taxes and Assessment Details
Values
| (+) Improvement Homesite Value: | + | $0 | |
| (+) Improvement Non-Homesite Value: | + | $87,750 | |
| (+) Land Homesite Value: | + | $0 | |
| (+) Land Non-Homesite Value: | + | $440,000 | |
| (+) Curr Use (HS): | + | $0 | $0 |
| (+) Curr Use (NHS): | + | $0 | $0 |
| | | -------------------------- | |
| (=) Market Value: | = | $527,750 | |
| (–) Productivity Loss: | – | $0 | |
| | | -------------------------- | |
| (=) Subtotal: | = | $527,750 | |
| (+) Senior Appraised Value: | + | $0 | |
| (+) Non-Senior Appraised Value: | + | $527,750 | |
| | | -------------------------- | |
| (=) Total Appraised Value: | = | $527,750 | |
| (–) Senior Exemption Loss: | – | $0 | |
| (–) Exemption Loss: | – | $0 | |
| | | -------------------------- | |
| (=) Taxable Value: | = | $527,750 | |
Taxing Jurisdiction
| Owner: | DODD, CHARLES A | | |
| % Ownership: | 100.0000000000% | | |
| Total Value: | $527,750 | | |
| Tax Area: | 592 - APPRAISER-Stan/Cam Schl Dist, Special Dist, improved, greater than 1 acre |
| CF | Conservation Futures | 0.0316035091 | $527,750 | $527,750 | $16.68 | | |
| EMS1 | Fire & Rescue Dist #1 Camano GEN (EMS) | 0.3677864386 | $527,750 | $527,750 | $194.10 | | |
| FIRE1 | Fire & Rescue Dist #1 Camano GEN | 1.2502910536 | $527,750 | $527,750 | $659.84 | | |
| FIRE1BOND | Fire & Rescue Dist #1 Camano BOND | 0.1570001679 | $527,750 | $527,750 | $82.86 | | |
| CE | County Current Expense | 0.3708482477 | $527,750 | $527,750 | $195.72 | | |
| CR | County Roads | 0.4584763726 | $527,750 | $527,750 | $241.96 | | |
| LCIB | Library Sno-Isle BOND (Camano Island) | 0.0396325772 | $527,750 | $527,750 | $20.92 | | |
| LIB | Library Sno-Isle GEN | 0.3153421757 | $527,750 | $527,750 | $166.42 | | |
| SCH205_401 | School 205-401 Enrichment | 1.2698420524 | $527,750 | $527,750 | $670.16 | | |
| SCH205BOND | School 205-401 BOND | 0.9396497583 | $527,750 | $527,750 | $495.90 | | |
| ST | State School | 1.3035497053 | $527,750 | $527,750 | $687.95 | | |
| ST2 | State School Part 2 | 0.8169543533 | $527,750 | $527,750 | $431.15 | | |
| | Total Tax Rate: | 7.3209764117 | | | | | |
| | | | | Taxes w/Current Exemptions: | $3,863.66 | | |
| | | | | Taxes w/o Exemptions: | $3,863.66 | | |
Improvement / Building
| Improvement #1: | RESIDENTIAL | State Code: | Y | 0.0 sqft | Value: | $87,750 |
Sketch
Property Image
Land
| 1 | 32 | AC (03.01-09.99) | 5.0000 | 0.00 | 0.00 | 0.00 | 1.00 | $440,000 | $0 |
Roll Value History
| 2026 | N/A | N/A | N/A | N/A | N/A |
| 2025 | $87,750 | $440,000 | $0 | $527,750 | $527,750 |
| 2024 | $87,750 | $420,000 | $0 | $507,750 | $507,750 |
| 2023 | $87,750 | $400,000 | $0 | $487,750 | $487,750 |
| 2022 | $87,750 | $380,000 | $0 | $467,750 | $467,750 |
| 2021 | $80,000 | $280,000 | $0 | $360,000 | $360,000 |
| 2020 | $80,000 | $220,000 | $0 | $300,000 | $300,000 |
| 2019 | $80,000 | $210,000 | $0 | $290,000 | $290,000 |
| 2018 | $50,000 | $120,000 | $0 | $170,000 | $170,000 |
| 2017 | $50,000 | $90,000 | $0 | $140,000 | $140,000 |
| 2016 | $50,000 | $100,000 | $0 | $150,000 | $150,000 |
| 2015 | $50,000 | $100,000 | $0 | $150,000 | $150,000 |
| 2014 | $50,000 | $100,000 | $0 | $150,000 | $150,000 |
| 2013 | $75,240 | $90,000 | $0 | $165,240 | $165,240 |
| 2012 | $75,240 | $78,400 | $0 | $153,640 | $153,640 |
| 2011 | $75,240 | $98,000 | $0 | $173,240 | $173,240 |
| 2010 | $75,240 | $98,000 | $0 | $173,240 | $173,240 |
| 2009 | $78,210 | $112,000 | $0 | $190,210 | $190,210 |
| 2008 | $81,180 | $152,500 | $0 | $233,680 | $233,680 |
| 2007 | $83,160 | $147,500 | $0 | $230,660 | $230,660 |
Deed and Sales History
| 1 | 01/30/2019 | WD | Warranty Deed | KINCH, ALAN L / CATHERINE D | DODD, CHARLES A | | | $325,000.00 | 37482 | 4458664 |
| 2 | 01/01/1998 | WD | Warranty Deed | ROSEMAN, LAWRENCE J | KINCH, ALAN L | | | $70,000.00 | 80375 | 98001925 |
| 3 | 02/01/1996 | QCD | Quit Claim Deed | ROSEMAN, LAWRENCE J | ROSEMAN, LAWRENCE J | | | $0.00 | 60425 | 96002293 |
| 4 | 07/01/1986 | QCD | Quit Claim Deed | ROSEMAN, LAWRENCE J | ROSEMAN, LAWRENCE J | | | $0.00 | 62955 | 86013295 |
| 5 | 01/01/1900 | OTHER | Other - Misc. Documents | Unknown | ROSEMAN, LAWRENCE J | | | $0.00 | 0 | 0 |
Payout Agreement
| No payout information available.. |