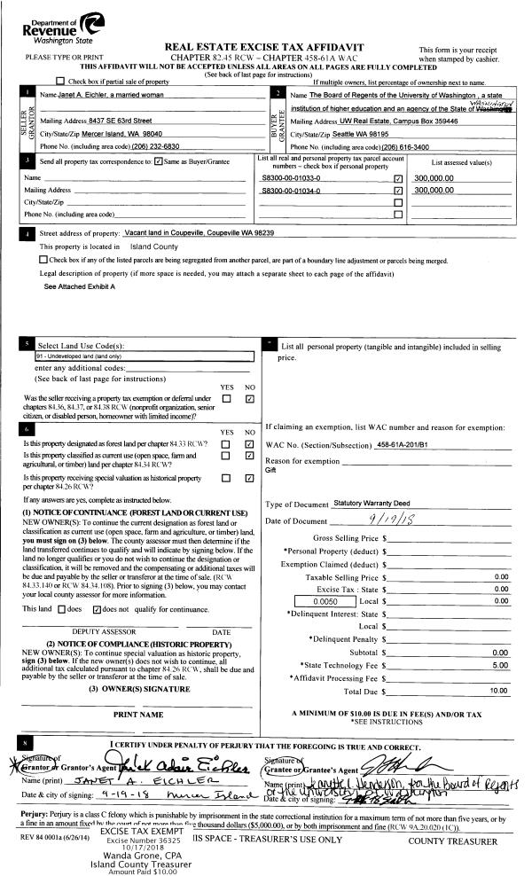
Property
Account |
| Property ID: | 155600 | Abbreviated Legal Description: | W72 - BG S SEC CR COM/W SECS 7 & 12 W150' N1356.19' E150' N205.50' TPB S89*E 514.60' TO WLN RD N ALG RD TO WLN LOT 19 DRIFTWOOD HTS #4 N TO NWCR LOT 19 W TO WLN SEC 7 S384.50' TPB TGW & SUB EZ AF#422415 |
| Geographic ID: | R33107-170-2310 | Agent Code: | |
| Type: | Real | | |
| Tax Area: | 512 - APPRAISER-Stan/Cam Schl Dist, improved, greater than 1 acre | Land Use Code | 11 |
| Open Space: | N | DFL | N |
| Historic Property: | N | Remodel Property: | N |
| Multi-Family Redevelopment: | N | | |
| Township: | 31 | Section: | 07 |
| Range: | R3 |
Location |
| Address: | 675 HAWTHORNE LN CAMANO ISLAND, WA 98282 | Mapsco: | |
| Neighborhood: | Cycle 5 | Map ID: | 922 |
| Neighborhood CD: | 5 |
Owner |
| Name: | ZAMARCHI, RICHARD D | Owner ID: | 286240 |
| Mailing Address: | JANICE L HARDISTY 675 HAWTHORNE LANE CAMANO ISLAND, WA 98282-8565 | % Ownership: | 100.0000000000% |
| | | Exemptions: | |
Taxes and Assessment Details
Values
| (+) Improvement Homesite Value: | + | $0 | |
| (+) Improvement Non-Homesite Value: | + | $740,178 | |
| (+) Land Homesite Value: | + | $0 | |
| (+) Land Non-Homesite Value: | + | $440,000 | |
| (+) Curr Use (HS): | + | $0 | $0 |
| (+) Curr Use (NHS): | + | $0 | $0 |
| | | -------------------------- | |
| (=) Market Value: | = | $1,180,178 | |
| (–) Productivity Loss: | – | $0 | |
| | | -------------------------- | |
| (=) Subtotal: | = | $1,180,178 | |
| (+) Senior Appraised Value: | + | $0 | |
| (+) Non-Senior Appraised Value: | + | $1,180,178 | |
| | | -------------------------- | |
| (=) Total Appraised Value: | = | $1,180,178 | |
| (–) Senior Exemption Loss: | – | $0 | |
| (–) Exemption Loss: | – | $0 | |
| | | -------------------------- | |
| (=) Taxable Value: | = | $1,180,178 | |
Taxing Jurisdiction
| Owner: | ZAMARCHI, RICHARD D | | |
| % Ownership: | 100.0000000000% | | |
| Total Value: | $1,180,178 | | |
| Tax Area: | 512 - APPRAISER-Stan/Cam Schl Dist, improved, greater than 1 acre |
| CF | Conservation Futures | 0.0316035091 | $1,180,178 | $1,180,178 | $37.30 | | |
| EMS1 | Fire & Rescue Dist #1 Camano GEN (EMS) | 0.3677864386 | $1,180,178 | $1,180,178 | $434.05 | | |
| FIRE1 | Fire & Rescue Dist #1 Camano GEN | 1.2502910536 | $1,180,178 | $1,180,178 | $1,475.57 | | |
| FIRE1BOND | Fire & Rescue Dist #1 Camano BOND | 0.1570001679 | $1,180,178 | $1,180,178 | $185.29 | | |
| CE | County Current Expense | 0.3708482477 | $1,180,178 | $1,180,178 | $437.67 | | |
| CR | County Roads | 0.4584763726 | $1,180,178 | $1,180,178 | $541.08 | | |
| LCIB | Library Sno-Isle BOND (Camano Island) | 0.0396325772 | $1,180,178 | $1,180,178 | $46.77 | | |
| LIB | Library Sno-Isle GEN | 0.3153421757 | $1,180,178 | $1,180,178 | $372.16 | | |
| SCH205_401 | School 205-401 Enrichment | 1.2698420524 | $1,180,178 | $1,180,178 | $1,498.64 | | |
| SCH205BOND | School 205-401 BOND | 0.9396497583 | $1,180,178 | $1,180,178 | $1,108.95 | | |
| ST | State School | 1.3035497053 | $1,180,178 | $1,180,178 | $1,538.42 | | |
| ST2 | State School Part 2 | 0.8169543533 | $1,180,178 | $1,180,178 | $964.15 | | |
| | Total Tax Rate: | 7.3209764117 | | | | | |
| | | | | Taxes w/Current Exemptions: | $8,640.05 | | |
| | | | | Taxes w/o Exemptions: | $8,640.05 | | |
Improvement / Building
| Improvement #1: | RESIDENTIAL | State Code: | Y | 3375.0 sqft | Value: | $740,178 |
| Bathrooms: | 4 | Bedrooms: | 2 | | Ceiling: | DRYWALL PAINTED | Cooling: | HEAT PUMP/CONV/V | | Exterior Wall/Cover: | STUCCO | Floor Covering: | HARDWOOD/CARP 60-40 | | Floor Structure: | WOOD W/SUBFLOOR | Foundation: | CONCRETE | | Interior Finish: | DRYWALL PAINT | Plumbing Fixture Cnt: | 18 | | Roof Slope: | 8" IN 12" | Roof Structure/Cover: | CJ ASPHALT |
|
| | Type | Description | Class CD | Sub Class CD | Year Built | Area |
| | BAS | BASE/MAIN FLOOR | 4 | 0 | 1990 | 2713.0 |
| | OP4 | OPEN PORCH W/CEILING-ROOF | 4 | 0 | 1990 | 40.0 |
| | AGR | ATTACHED GARAGE | 4 | 0 | 1990 | 518.0 |
| | UPS | UPPER STORY | 4 | 0 | 1990 | 662.0 |
| | OWP | OPEN WOOD PORCH W/STEPS | 4 | 0 | 1990 | 572.0 |
| | UTY | STORAGE/UTILITY | 4 | 0 | 1990 | 240.0 |
| | DGR | DETACHED GARAGE | 4 | 0 | 1990 | 840.0 |
Sketch
Property Image
Land
| 1 | 32 | AC (03.01-09.99) | 5.0000 | 0.00 | 0.00 | 0.00 | 1.00 | $440,000 | $0 |
Roll Value History
| 2026 | N/A | N/A | N/A | N/A | N/A |
| 2025 | $740,178 | $440,000 | $0 | $1,180,178 | $1,180,178 |
| 2024 | $749,070 | $420,000 | $0 | $1,169,070 | $1,169,070 |
| 2023 | $757,960 | $400,000 | $0 | $1,157,960 | $1,157,960 |
| 2022 | $694,398 | $380,000 | $0 | $1,074,398 | $1,074,398 |
| 2021 | $596,826 | $280,000 | $0 | $876,826 | $876,826 |
| 2020 | $557,918 | $220,000 | $0 | $777,918 | $777,918 |
| 2019 | $437,304 | $260,000 | $0 | $697,304 | $697,304 |
| 2018 | $380,873 | $230,000 | $0 | $610,873 | $610,873 |
| 2017 | $383,062 | $200,000 | $0 | $583,062 | $583,062 |
| 2016 | $387,441 | $200,000 | $0 | $587,441 | $587,441 |
| 2015 | $319,765 | $200,000 | $0 | $519,765 | $519,765 |
| 2014 | $323,484 | $200,000 | $0 | $523,484 | $523,484 |
| 2013 | $327,202 | $200,000 | $0 | $527,202 | $527,202 |
| 2012 | $330,920 | $200,000 | $0 | $530,920 | $530,920 |
| 2011 | $334,640 | $250,000 | $0 | $584,640 | $584,640 |
| 2010 | $342,057 | $250,000 | $0 | $592,057 | $592,057 |
| 2009 | $328,730 | $300,000 | $0 | $628,730 | $628,730 |
| 2008 | $340,583 | $392,500 | $0 | $733,083 | $733,083 |
| 2007 | $394,237 | $203,092 | $0 | $597,329 | $597,329 |
Deed and Sales History
| 1 | 07/25/2018 | BARGSLD | Bargain And Sale Deed | LARSEN, ROBERT C | ZAMARCHI, RICHARD D | | | $0.00 | 36547 | 4454554 |
| 2 | 07/25/2018 | WD | Warranty Deed | LARSEN, ROBERT C | ZAMARCHI, RICHARD D | | | $715,000.00 | 35248 | 4449070 |
| 3 | 08/30/2006 | WD | Warranty Deed | MADDEN, JOHN W | LARSEN, ROBERT C | | | $700,000.00 | 63821 | 4180874 |
| 4 | 01/01/1989 | WD | Warranty Deed | CHRISTIANSEN, PATRICIA A | MADDEN, JOHN W | | | $35,000.00 | 90078 | 89000250 |
| 5 | 03/01/1984 | EZ | Easement | SHAW, PATRICIA A | CHRISTIANSEN, PATRICIA A | | | $0.00 | 60679 | 422415 |
| 6 | 01/01/1900 | OTHER | Other - Misc. Documents | CHRISTIANSEN, PATRICIA A | SHAW, PATRICIA A | | | $0.00 | 0 | 0 |
| 7 | 01/01/1900 | OTHER | Other - Misc. Documents | Unknown | CHRISTIANSEN, PATRICIA A | | | $0.00 | 58892 | 0 |
Payout Agreement
| No payout information available.. |