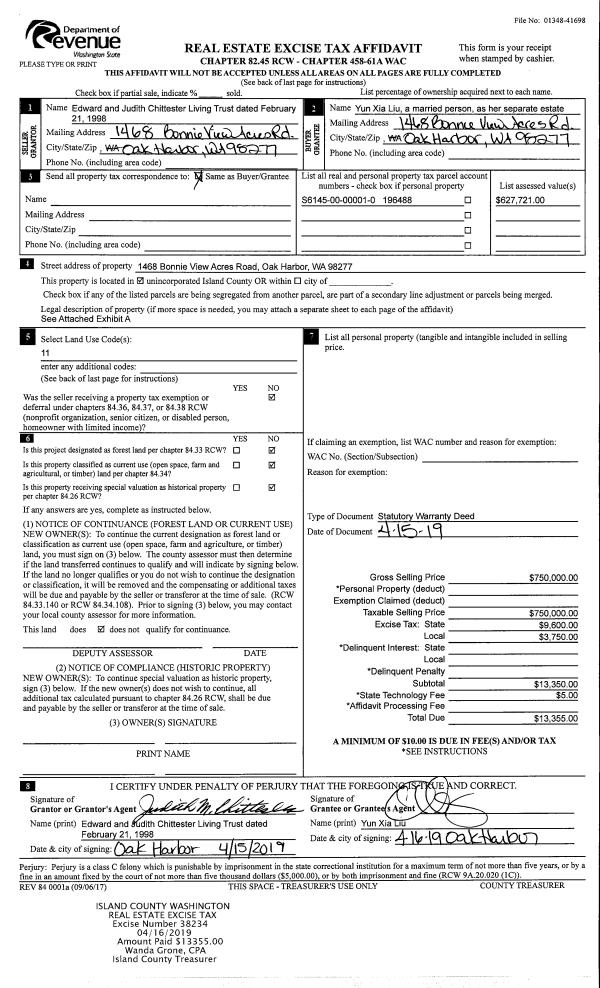
Property
Account |
| Property ID: | 155708 | Abbreviated Legal Description: | 18 - IN GL3: BG MC SECS 7 & 18 N4*W576.2' N6*E1705.4' N38*E865.9' N44*E241.4' W150' N45*W60' TPB N45*W180 S44*W150' S45*E180' N44*E 150' TPB EX SWLY 53.334' |
| Geographic ID: | R33107-327-1770 | Agent Code: | |
| Type: | Real | | |
| Tax Area: | 510 - APPRAISER-Stan/Cam Schl Dist, improved & 1 acre or less | Land Use Code | 11 |
| Open Space: | N | DFL | N |
| Historic Property: | N | Remodel Property: | N |
| Multi-Family Redevelopment: | N | | |
| Township: | 31 | Section: | 07 |
| Range: | R3 |
Location |
| Address: | 137 DRIFTWOOD SHORES RD CAMANO ISLAND, WA 98282 | Mapsco: | |
| Neighborhood: | Cycle 5 | Map ID: | 923 |
| Neighborhood CD: | 5 |
Owner |
| Name: | WASHBURN, STEVE | Owner ID: | 290171 |
| Mailing Address: | MANDY WASHBURN 136 DRIFTWOOD SHORES RD CAMANO ISLAND, WA 98282 | % Ownership: | 100.0000000000% |
| | | Exemptions: | |
Taxes and Assessment Details
Values
| (+) Improvement Homesite Value: | + | $0 | |
| (+) Improvement Non-Homesite Value: | + | $88,914 | |
| (+) Land Homesite Value: | + | $0 | |
| (+) Land Non-Homesite Value: | + | $170,000 | |
| (+) Curr Use (HS): | + | $0 | $0 |
| (+) Curr Use (NHS): | + | $0 | $0 |
| | | -------------------------- | |
| (=) Market Value: | = | $258,914 | |
| (–) Productivity Loss: | – | $0 | |
| | | -------------------------- | |
| (=) Subtotal: | = | $258,914 | |
| (+) Senior Appraised Value: | + | $0 | |
| (+) Non-Senior Appraised Value: | + | $258,914 | |
| | | -------------------------- | |
| (=) Total Appraised Value: | = | $258,914 | |
| (–) Senior Exemption Loss: | – | $0 | |
| (–) Exemption Loss: | – | $0 | |
| | | -------------------------- | |
| (=) Taxable Value: | = | $258,914 | |
Taxing Jurisdiction
| Owner: | WASHBURN, STEVE | | |
| % Ownership: | 100.0000000000% | | |
| Total Value: | $258,914 | | |
| Tax Area: | 510 - APPRAISER-Stan/Cam Schl Dist, improved & 1 acre or less |
| CF | Conservation Futures | 0.0316035091 | $258,914 | $258,914 | $8.18 | | |
| EMS1 | Fire & Rescue Dist #1 Camano GEN (EMS) | 0.3677864386 | $258,914 | $258,914 | $95.23 | | |
| FIRE1 | Fire & Rescue Dist #1 Camano GEN | 1.2502910536 | $258,914 | $258,914 | $323.72 | | |
| FIRE1BOND | Fire & Rescue Dist #1 Camano BOND | 0.1570001679 | $258,914 | $258,914 | $40.65 | | |
| CE | County Current Expense | 0.3708482477 | $258,914 | $258,914 | $96.02 | | |
| CR | County Roads | 0.4584763726 | $258,914 | $258,914 | $118.71 | | |
| LCIB | Library Sno-Isle BOND (Camano Island) | 0.0396325772 | $258,914 | $258,914 | $10.26 | | |
| LIB | Library Sno-Isle GEN | 0.3153421757 | $258,914 | $258,914 | $81.65 | | |
| SCH205_401 | School 205-401 Enrichment | 1.2698420524 | $258,914 | $258,914 | $328.78 | | |
| SCH205BOND | School 205-401 BOND | 0.9396497583 | $258,914 | $258,914 | $243.29 | | |
| ST | State School | 1.3035497053 | $258,914 | $258,914 | $337.51 | | |
| ST2 | State School Part 2 | 0.8169543533 | $258,914 | $258,914 | $211.52 | | |
| | Total Tax Rate: | 7.3209764117 | | | | | |
| | | | | Taxes w/Current Exemptions: | $1,895.52 | | |
| | | | | Taxes w/o Exemptions: | $1,895.52 | | |
Improvement / Building
| Improvement #1: | RESIDENTIAL | State Code: | Y | 630.0 sqft | Value: | $88,914 |
| Bathrooms: | 1 | Bedrooms: | 1 | | Ceiling: | DRYWALL PAINTED | Exterior Wall/Cover: | SHINGLE | | Floor Covering: | CARPET 100% | Floor Structure: | WOOD W/SUBFLOOR | | Foundation: | PIERS/CONCRETE | Heating: | (NONE) | | Interior Finish: | (NONE) | Plumbing Fixture Cnt: | 2 | | Roof Slope: | 3" IN 12" | Roof Structure/Cover: | CJ ASPHALT |
|
| | Type | Description | Class CD | Sub Class CD | Year Built | Area |
| | BAS | BASE/MAIN FLOOR | 2 | 0 | 1975 | 630.0 |
| | UTY | STORAGE/UTILITY | 2 | 0 | 1975 | 728.0 |
| | DGR | DETACHED GARAGE | 2 | 0 | 1975 | 936.0 |
| | OWR | OPEN WOOD PORCH W/STEPS/ROOF | 2 | 0 | 1975 | 240.0 |
| | OWP | OPEN WOOD PORCH W/STEPS | 2 | 0 | 1975 | 336.0 |
| | UTY | STORAGE/UTILITY | 2 | 0 | 1975 | 200.0 |
Sketch
Property Image
Land
| 1 | 15 | SQ (12001-21780) | 0.4000 | 17424.00 | 0.00 | 0.00 | 1.00 | $170,000 | $0 |
Roll Value History
| 2026 | N/A | N/A | N/A | N/A | N/A |
| 2025 | $88,914 | $170,000 | $0 | $258,914 | $258,914 |
| 2024 | $89,782 | $160,000 | $0 | $249,782 | $249,782 |
| 2023 | $90,648 | $150,000 | $0 | $240,648 | $240,648 |
| 2022 | $90,398 | $150,000 | $0 | $240,398 | $240,398 |
| 2021 | $29,000 | $120,000 | $0 | $149,000 | $149,000 |
| 2020 | $29,000 | $120,000 | $0 | $149,000 | $149,000 |
| 2019 | $29,000 | $100,000 | $0 | $129,000 | $129,000 |
| 2018 | $29,000 | $100,000 | $0 | $129,000 | $129,000 |
| 2017 | $29,000 | $70,000 | $0 | $99,000 | $99,000 |
| 2016 | $29,000 | $60,000 | $0 | $89,000 | $89,000 |
| 2015 | $91,018 | $85,000 | $0 | $176,018 | $176,018 |
| 2014 | $92,077 | $85,000 | $0 | $177,077 | $177,077 |
| 2013 | $93,137 | $85,000 | $0 | $178,137 | $178,137 |
| 2012 | $94,196 | $76,000 | $0 | $170,196 | $170,196 |
| 2011 | $95,256 | $95,000 | $0 | $190,256 | $190,256 |
| 2010 | $103,216 | $95,000 | $0 | $198,216 | $198,216 |
| 2009 | $108,109 | $125,000 | $0 | $233,109 | $233,109 |
| 2008 | $109,926 | $129,790 | $0 | $239,716 | $239,716 |
| 2007 | $111,851 | $129,790 | $0 | $241,641 | $241,641 |
Deed and Sales History
| 1 | 06/05/2019 | WD | Warranty Deed | HEDREEN, JAMES MICHAEL | WASHBURN, STEVE | | | $264,628.00 | 38890 | 4465030 |
| 2 | 06/25/2015 | WD | Warranty Deed | BROBECK, ALAN G | HEDREEN, JAMES MICHAEL | | | $878,000.00 | 20256 | 4381220 |
|   | |
| 3 | 08/01/1990 | WD | Warranty Deed | LOUTZENHISER, RICHARD H | BROBECK, ALAN G | | | $26,000.00 | 5141 | 90017070 |
| 4 | 01/01/1900 | OTHER | Other - Misc. Documents | Unknown | LOUTZENHISER, RICHARD H | | | $0.00 | 0 | 0 |
Payout Agreement
| No payout information available.. |